NEU - Erstbezug zum Top Preis - Moderne Pärchenwohnung mit Terrasse

Wohnung zum Kauf in 1100 Wien - Kaufpreis: 349.900 € / Objektnummer: 25978
Ausstattung: Boden Fahrstuhl Wohnküche / offene Küche Bad Fahrradraum Fußbodenheizung Terrasse

Preisinformationen

Kaufpreis:
349.900 €
Vermittlungsprovision:
Ja
Provision:
3% des Kaufpreises zzgl. 20% USt.

Fakten

Objektnummer:
25978
Objekttyp:
Wohnung
Terrasse:
1
Wohnfläche:
52,23 m²
Zimmer:
2
Badezimmer:
1
Toilette:
2
Baujahr:
2025
Zustand:
Erstbezug
Verfügbarkeit:
Verfügbar

Beschreibung

Der Projektname ist Programm: AUFLEEBEN verbindet modernes Wohnen mit nachhaltigem Mehrwert. Die Wohnungen bieten optimale Voraussetzungen – sowohl für die Eigennutzung als auch als attraktive Anlageimmobilie – und schaffen den perfekten Rahmen für Ihr zukünftiges Zuhause.

Ein Teil des Projekts ermöglicht – unter bestimmten Voraussetzungen – eine kurzfristige Vermietung, etwa über Plattformen wie Airbnb. In Anbetracht der aktuellen gesetzlichen Rahmenbedingungen stellt dies eine seltene Gelegenheit dar, die sich besonders für Anleger als äußerst interessant erweist.

Projektbeschreibung

In einer ruhigen Seitengasse zwischen der Inzersdorfer Straße und der Laxenburger Straße, mitten im Herzen des 10. Wiener Gemeindebezirks, entsteht derzeit ein hochwertiges Neubauprojekt. 

Das Wohnprojekt umfasst 52 moderne Wohneinheiten, verteilt auf zwei Gebäude. Alle Wohnungen verfügen über durchdachte, effiziente Grundrisse und sind bereits mit neutralen weißen Einbauküchen ausgestattet. Der Großteil der Einheiten bietet zusätzlich private Freiflächen wie Balkone, Terrassen oder Gärten.

Ausstattung & Nachhaltigkeit

Den Bewohnern stehen zahlreiche Allgemeinflächen zur Verfügung, darunter ein Fahrradraum, Kinderwagenraum, Hobbyraum sowie Kellerabteile. Eine hauseigene Tiefgarage rundet das Angebot ab.
Die Anbindung an das Fernwärmenetz in Kombination mit einer Photovoltaikanlage am Dach sorgt für energieeffizientes und kostenschonendes Wohnen. Bei der Umsetzung des Neubaus liegt der Fokus auf Energieeffizienz und Wohnkomfort:

* Vollwärmeschutzfassade mit niedrigem Heizwärmebedarf
* Fußbodenheizung über Fernwärme
* Isolierverglaste Fenster
* Klimaanlagen in allen Dachgeschosswohnungen
* Teilweise elektrische Außenbeschattung
* Sicherheitseingangstüren 
* Glasfaseranschluss

Projekt-Highlights auf einen Blick

* Ruhige, zentrale Lage nahe Paltramplatz
* Effiziente und moderne Wohnungsgrundrisse
* Nachhaltiges Energiekonzept mit Fernwärme & Photovoltaik
* Tiefgarage sowie umfangreiche Gemeinschaftsräume
* Sehr gute Vermietbarkeit und langfristiges Wertsteigerungspotenzial

Lage & Infrastruktur

Die Lage überzeugt durch eine ausgezeichnete Infrastruktur sowie eine optimale Anbindung an den öffentlichen Verkehr. Die Straßenbahnlinie 11 ist in etwa 3 Gehminuten erreichbar und bietet eine direkte Verbindung zu mehreren U-Bahn-Linien (U1, U3) sowie zur S-Bahn. Ebenfalls in rund 3 Gehminuten befindet sich die Buslinie 7A, während die U1-Station Reumannplatz in etwa 11 Minuten fußläufig erreichbar ist. Zusätzlich steht mit der Buslinie 65A eine direkte Verbindung in Richtung Wienerberg City zur Verfügung.

Die Nahversorgung ist hervorragend: Ein BILLA PLUS liegt nur wenige Gehminuten entfernt, weitere Supermärkte und Nahversorger befinden sich in unmittelbarer Umgebung und decken den täglichen Bedarf komfortabel ab.

Für Freizeit und Erholung bieten der nahegelegene Arthaberpark sowie der Paltramplatz attraktive Grünflächen. Das Erholungsgebiet Wienerberg ist in wenigen Stationen erreichbar, das beliebte Amalienbad in kurzer Fahrzeit. 

Das Columbus Center sowie die Fußgängerzone Favoritenstraße sorgen für vielfältige Shopping-, Gastronomie- und Unterhaltungsmöglichkeiten. Auch die Gesundheitsversorgung ist bestens gegeben: Eine Apotheke befindet sich in fußläufiger Distanz, die Klinik Favoriten ist öffentlich sehr gut angebunden.

Abgerundet wird das Angebot durch die familienfreundliche Umgebung, die mit mehreren Schulen und Bildungseinrichtungen in der näheren Umgebung überzeugt. 

_- Einige Bilder wurden mittels Virtual Staging aufbereitet, um das Einrichtungspotenzial der Räume zu visualisieren. Die Möblierung ist nicht im Kaufpreis enthalten. - _

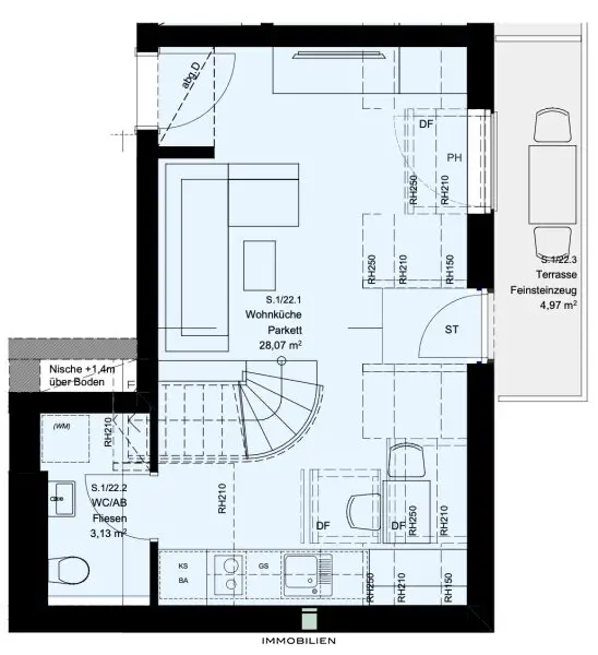
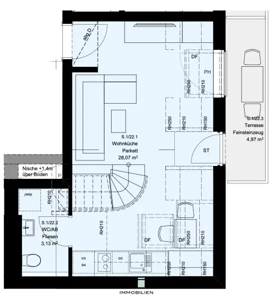
Raumaufteilung 1. DG:
- Wohnküche mit Zugang zur Terrasse
- Toilette mit Waschbecken und Waschmaschinenanschluss
- Terrasse

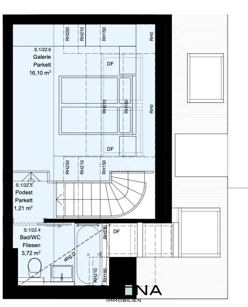
Raumaufteilung 2. DG:
- Schlafzimmer/Galerie
- Badezimmer mit Badewanne, Waschbecken und Toilette

Kosten:
Kaufpreis: € 349.900,- exkl. 20% USt. für Anleger (€ 389.900,- für Endnutzer)
3% des Kaufpreises zzgl. 20% USt.

Kontakt:
Bei Fragen oder zur Vereinbarung eines Besichtigungstermins wenden Sie sich bitte an Frau Johanna Obkircher unter obkircher@estina.at oder mobil unter 0676 316 37 08.
Beschreibung weiterlesen

Energieeffizienz

HWB:
35,7 kWh/(m²*a)
HWB Klasse:
B
fGEE:
0,75
fGEE Klasse:
A
Energieausweisart:
Energiebedarfs-ausweis
Gültig bis:
23.04.2034

Grundrisse

Lageplan

1100 Wien | Wien 10., Favoriten

Lade...
Johanna Obkircher

Johanna Obkircher

ESTINA Immobilien GmbH

Lade...

Fotomix

Bild 1 Bild 2 Bild 3 Bild 4 Bild 5 Bild 6