NEU - Exklusive Berghütte in Alleinlage – traumhafter Ausblick & Kaminromantik

Haus zum Kauf in 8650 Kindberg - Kaufpreis: 90.000 € / Objektnummer: 3812/344
Ausstattung: Bad Möbliert
Kataster
Flächenwidmung
Hochwasser

Preisinformationen

Kaufpreis:
90.000 €
Preisinfos:
Pacht: € 1.000,– pro Jahr (Pachtrecht auf Lebenszeit) Wasserbezugsrecht: ca. € 300,– pro Jahr
Vermittlungsprovision:
Ja
Provision:
3% des Kaufpreises zzgl. 20% USt.

Fakten

Objektnummer:
3812/344
Objekttyp:
Haus
Wohnfläche:
48 m²
Grundstücksfläche:
190 m²
Zimmer:
2
Badezimmer:
1
Zustand:
Gepflegt
Verfügbarkeit:
Verfügbar

Beschreibung

Exklusives Alpenrefugium – Berghütte in Traumlage mit unvergleichlichem Panoramablick
Preis: 90.000 €
Verfügbar ab: Sofort
Kontakt: Denise Engelmaier | 0664 357 60 21 | d.engelmaier@remax-smart.at
____________________
Ihr Rückzugsort über den Wolken
Stellen Sie sich vor: Morgens die Sonne, die über dem Tal aufgeht, Vogelgezwitscher, frische Bergluft und absolute Ruhe. Diese exklusive Berghütte in Alleinlage verbindet Natur, Komfort und Charme auf einzigartige Weise. Hier erleben Sie Natur pur, Ruhe und atemberaubende Aussicht, die jeden Tag zu etwas Besonderem machen.
____________________
Ein Zuhause mit Charakter und Herz
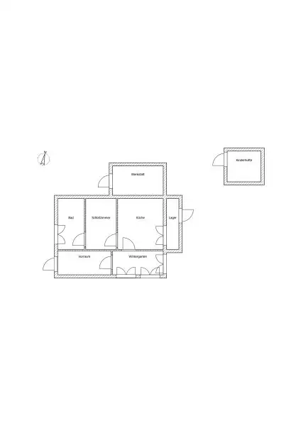
Diese liebevoll gepflegte Hütte auf ca. 50 m² bietet:
• 2 gemütliche Schlafzimmer – perfekt für Familie oder Freunde
• Küche mit Tischherd & Backofenfunktion – Kochen wie früher, genießen wie heute
• Wintergarten – kuschelige Stunden, während draußen die Natur glitzert
• Badezimmer & WC – praktischer Komfort in den Bergen
• Warmwasser & Strom – alles modern und effizient
• Inklusive Inventar: Hochwertige Möbel, Geschirr, Dekoration, Grill – Sie packen nur Ihr Gepäck!
Besonderheiten: Externe Kinderhütte mit Stockbett & Spielmöglichkeiten, Geräteschuppen, Hochbeete, Hollywoodschaukel mit unverbaubarem Talblick.
____________________
Top-Zustand & nachhaltige Ausstattung
• Dach und Fenster wurden im Jahr 2005 erneuert. Die Fenster sind doppelt verglast und optimal an die Bedingungen über 1000 m Seehöhe angepasst. Zudem sind sie mit einbruchsicheren Elementen ausgestattet, die zusätzlichen Schutz bieten.
• Die Stromversorgung wurde im Jahr 2006 modernisiert, um den aktuellen Sicherheitsstandards zu entsprechen und eine zuverlässige Energieversorgung zu gewährleisten. Warmwasser über 80 l Stromboiler
• Wasser aus eigener Quelle mit Filter – Unabhängigkeit in Perfektion
• Tischherd sorgt im Winter für behagliche Wärme
• Regelmäßige Wartung und Pflege, Hütte innen & außen in makellosem Zustand

Kosten:

• Pacht: € 1.000,– pro Jahr (Pachtrecht auf Lebenszeit)
• Wasserpacht: ca. € 300,– pro Jahr
• Stromkosten: ca. € 50,– pro Monat
• Versicherung: ca. € 50,– pro Monat

____________________
Lage, Infrastruktur & Mobilität
• Nur ca. 10 Minuten Fahrzeit von Kindberg entfernt
• Mobilität: Bahnhof Kindberg, regionale Buslinien, gute Straßenanbindung
• Nahversorgung: Ärzte, Apotheke, Supermärkte, Gastronomie
• Bildung & Betreuung: Kindergarten und Schulen in der Nähe
• Ruhige Grünlage am Waldrand – Ihr Privatparadies im Herzen der Steiermark

____________________
Warum diese Berghütte einzigartig ist
Diese Hütte ist mehr als ein Rückzugsort – sie ist ein Erlebnis für alle Sinne:
• Alleinlage & Natur: absolute Ruhe und Privatsphäre
• Panoramablick & Sonnenschein: genießen Sie jeden Tag wie Urlaub
• Top-Zustand & Komfort: sofort beziehbar, kein Renovierungsaufwand
• Familienfreundlich & durchdacht: Kinderhütte, Spielbereich, Garten – alles inklusive

____________________
Ihr Traum wird wahr – greifen Sie zu

Ob Sommer oder Winter, Wochenende oder Ferien: Diese Hütte bietet Erholung, Natur und Wohlgefühl in Vollendung. Einziehen, durchatmen, genießen – hier wartet Ihr persönliches Alpenrefugium auf Sie!

Besichtigung: Termine nach Vereinbarung
📞 Denise Engelmaier | 0664 357 60 21
✉️ d.engelmaier@remax-smart.at

Ein einzigartiges Angebot für ein einzigartiges Zuhause!

Der Vermittler ist als Doppelmakler tätig.

Infrastruktur / Entfernungen

Gesundheit
Arzt <1.500m
Apotheke <2.000m
Krankenhaus <7.000m

Kinder & Schulen
Schule <2.000m
Kindergarten <1.500m

Nahversorgung
Supermarkt <2.000m
Bäckerei <2.000m

Sonstige
Bank <2.000m
Geldautomat <2.000m
Post <2.000m
Polizei <2.000m

Verkehr
Bus <1.500m
Autobahnanschluss <2.000m
Bahnhof <1.500m

Angaben Entfernung Luftlinie / Quelle: OpenStreetMap
Beschreibung weiterlesen

Lage und Verkehrsanbindung

Kindberg

Grundriss

Lageplan

8650 Kindberg | Bruck-Mürzzuschlag

Lade...
Denise Engelmaier

Denise Engelmaier
Makler

RE/MAX Smart

Lade...

Fotomix

Bild 1 Bild 2 Bild 3 Bild 4 Bild 5 Bild 6 Bild 7 Bild 8 Bild 9 Bild 10 Bild 11 Bild 12 Bild 13 Kataster Bild 15 Flächenwidmung Hochwasser