NEU - Exklusive Bürofläche in Innenstadtlage

Büro zur Miete in 1010 Wien / Objektnummer: 16225

Preisinformationen

Betriebskosten netto:
3,67 € / Monat
Miete/m² netto:
20,00 €
Vermittlungsprovision:
Ja

Fakten

Objektnummer:
16225
Objekttyp:
Büro
Nutzfläche:
164 m²
Bürofläche:
164 m²
Gesamtfläche:
164 m²
Verfügbarkeit:
Verfügbar

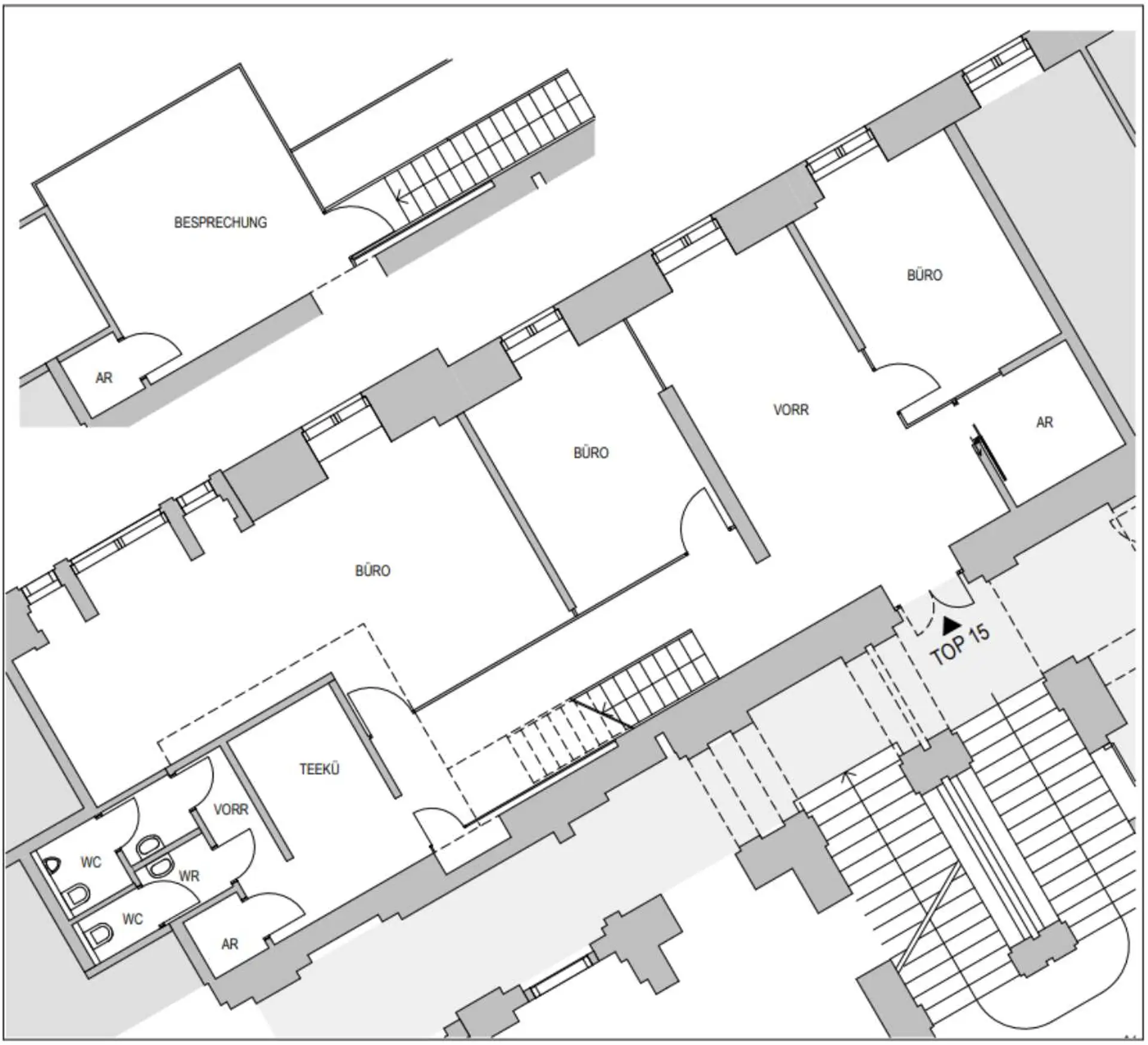
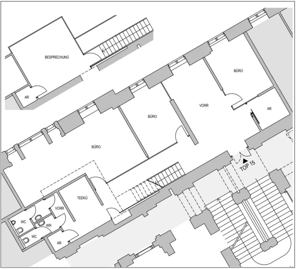
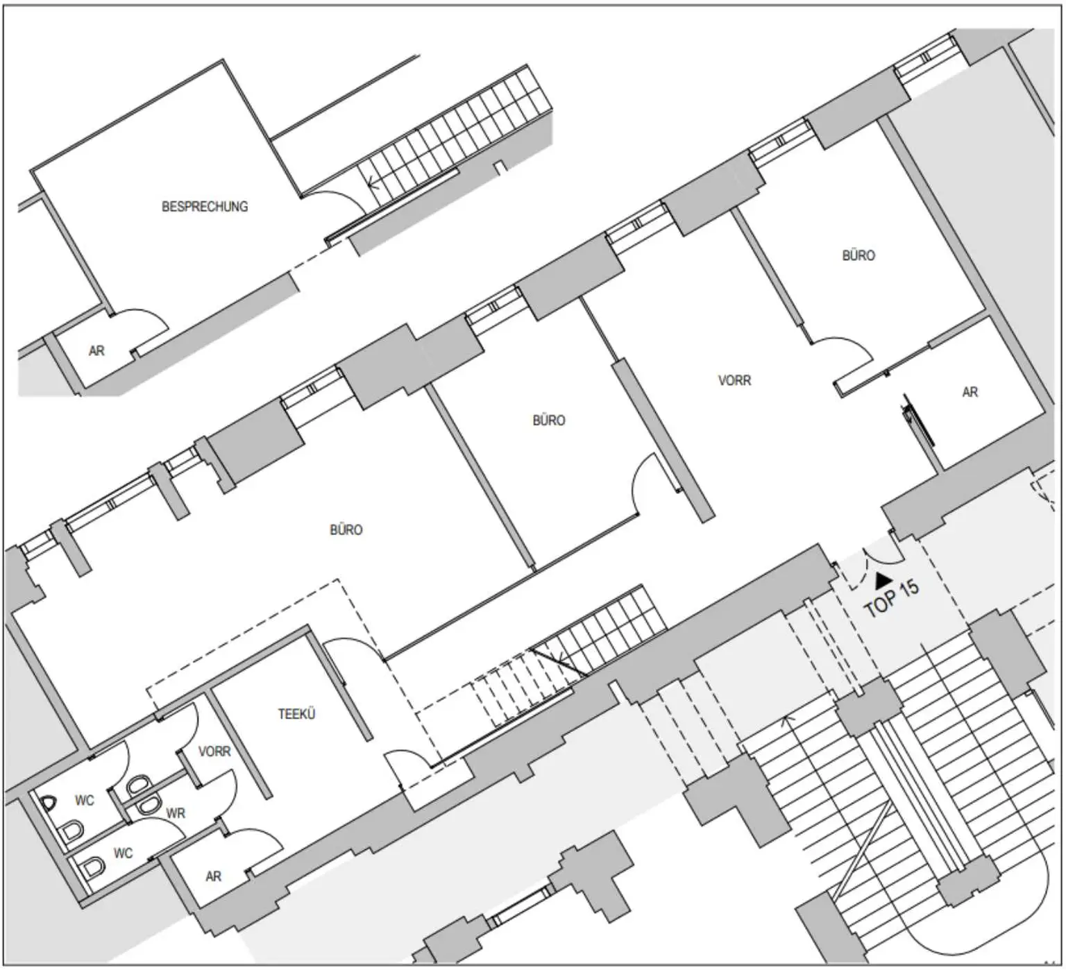
Beschreibung

Diese Bürofläche befindet sich im ehemaligen Gebäude der Österreichischen Nationalbank und vereint historische Architektur mit moderner Ausstattung in absoluter Bestlage der Wiener Innenstadt. Auf rund 164 m im 2. Obergeschoß bietet die Einheit ein repräsentatives Arbeitsumfeld mit beeindruckender Raumhöhe und hochwertiger Innenausstattung. Der Grundriss umfasst einen einladenden Empfangsbereich, drei separat begehbare Büroräume sowie funktionale Nebenflächen. Ein besonderes Highlight stellt der Besprechungsraum auf der internen Galerie dar, der über eine interne Treppe erschlossen wird und ideale Voraussetzungen für Meetings bietet. Zudem ist der Besprechungsraum mit einer Kühlung und Lüftung ausgestattet.
Beschreibung weiterlesen

Lage und Verkehrsanbindung

Die Bürofläche befindet sich in zentraler Innenstadtlage in der Bankgasse im 1. Wiener Gemeindebezirk. Die Umgebung zeichnet sich durch eine sehr gute Infrastruktur mit zahlreichen Gastronomie-, Dienstleistungs- und Einkaufsmöglichkeiten aus.

Öffentliche Verkehrsanbindung:
U-Bahn: U3
Bus: 1A, 2A

Individualverkehr:
Straßenanbindung B1, B227

Grundrisse

Fabian Muzik

Fabian Muzik

Modesta Real Estate

Lade...

Fotomix

Bild 1 Bild 2 Bild 3 Bild 4 Bild 5 Bild 6 Bild 7 Bild 8 Bild 9 Bild 10 Bild 11