NEU - Exklusive Dachgeschoss Maisonette mit 2 Sonnenterrassen & Skylineblick in absoluter Ruhelag – bestens Angebunden zum Stephansplatz

Wohnung zum Kauf in 1030 Wien - Kaufpreis: 715.000 € / Objektnummer: 5116
Ausstattung: Boden Fahrstuhl Wohnküche / offene Küche Bad Rollladen Abstellraum Zentralheizung Terrasse WG geeignet

Preisinformationen

Kaufpreis:
715.000 €
Betriebskosten netto:
173,18 € / Monat
Vermittlungsprovision:
Ja
Provision:
3% des Kaufpreises zzgl. 20% USt.

Fakten

Objektnummer:
5116
Objekttyp:
Wohnung
Terrasse:
2
Wohnfläche:
84,48 m²
Nutzfläche:
103,71 m²
Zimmer:
3
Badezimmer:
1
Toilette:
1
Stockwerk:
2
Baujahr:
1911
Altbau:
Ja
Zustand:
Modernisiert
Verfügbarkeit:
Verfügbar

Beschreibung

_Im Falle der Notwendigkeit einer Fremdfinanzierung Ihrer Wunschimmobilie ermittelt unser Wohnbau-Finanzierungsexperte gerne die optimale Finanzierungslösung und findet das passende Zins- und Konditionsangebot für Sie. Er vergleicht die aktuellen Angebote aller relevanten Banken und Bausparkassen. Der Angebotsvergleich kann aus einem Portfolio von über 120 Banken erfolgen. Das Erstgespräch ist für Sie kostenfrei und unverbindlich, gerne auch bei Ihnen vor Ort. So sparen Sie Ihre wertvolle Zeit und erhalten eine professionelle und unabhängige Finanzierungslösung vom Spezialisten. Sprechen Sie uns wegen eines Termins gerne an!_

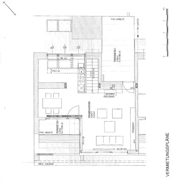
Diese außergewöhnliche Dachgeschoss-Maisonette erstreckt sich über das 1. und 2. Dachgeschoss und verbindet urbanen Wohnkomfort mit einem stilvollen Raumgefühl und zwei traumhaften Außenflächen.

 

Eingangsebene – Rückzugsort mit Komfort

Beim Betreten der Wohnung öffnet sich die private Schlafetage, ideal durchdacht und hochwertig ausgestattet:

* 2 Schlafzimmer mit jeweils ca.12 m² – perfekt als Kinderzimmer, Gästezimmer oder Home-Office
* Elegantes Badezimmer mit Badewanne, geschmackvollen Armaturen
* Separates WC für zusätzlichen Komfort
* Praktischer Abstellbereich unter der Treppe, ausgestattet mit Waschmaschinenanschluss und Stauraum für Alltag & Organisation

 

Obere Ebene – ca. 42 m² Wohngefühl über den Dächern

Über eine stilvolle Wendetreppe gelangt man auf die sonnige Wohn- und Genießer-Ebene.

Hier öffnet sich ein weitläufiger Wohn- und Kochbereich mit ca.42 m², der durch seine Großzügigkeit, Raumhöhe und hochwertige Ausstattung beeindruckt:

* Offene Designer-Küche mit moderner Geräteausstattung
* Großzügige Fensterflächen und ein luftiges Raumgefühl
* Perfekte Ausrichtung eines hellen, freundlichen Wohnbereichs

 

Zwei Terrassen – zwei Erlebnisse

Die Wohnung offeriert zwei besonders rare Außenflächen, die absolute Highlights darstellen:

* ca. 15 m² hofseitige Terrasse (Nord-Ost)
– Ideal für Frühstück in der Morgensonne
– Ruhiger Blick in den Innenhof, weitgehend windgeschützt
– Viel Platz für Lounge, Pflanzen oder einen kleinen Essbereich
* ca. 4,5 m² straßenseitige Terrasse (Süd-Ost)
– Perfekt für Sonne bis in den Nachmittag
– Urbaner Stadtblick, ideal für eine kleine Café- oder Leseecke

Beide Terrassen verbinden den offenen Wohnraum mit dem Flair der Stadt und schaffen ein unvergleichliches Penthouse-Feeling.

 

Highlights auf einen Blick

* Maisonette über 2 Ebenen im Dachgeschoss
* ca. 42 m² Wohn-/Essbereich mit offener Luxus-Küche
* 2 Schlafzimmer à ca. 12 m²
* Badezimmer mit Wanne + separates WC
* 2 Terrassen ca. (15 m² & 4,5 m²) mit Ausblick in zwei Himmelsrichtungen
* Waschmaschinenanschluss & Stauraum im Untergeschoss
* Lichtdurchflutetes Wohnkonzept mit herrlichem Stadtblick

Die stilvolle und bestens erhaltene Liegenschaft besticht durch ihre erstklassige Lage direkt am Kardinal-Nagl-Platz, eingebettet in eine ruhige, verkehrsberuhigte Einbahnstraße. Dieses durchdachte Penthouse wurde im Rahmen des DG-Ausbaues 2008 errichtet.

Dank der unmittelbaren Nähe zur U-Bahn-Station ist eine hervorragende Anbindung an das Stadtzentrum gegeben, während die charmante Umgebung mit zahlreichen Geschäften, Cafés und Grünflächen ein angenehmes Wohngefühl vermittelt.

Gerne lassen wir Ihnen bei ernsthaftem Interesse - vor Kaufanbotlegung - weitere vertraulichen Dokumente zu dieser Liegenschaft zukommen, welche nicht veröffentlicht werden dürfen.

Überzeugen Sie sich selbst von diesem überaus attraktiven Objekt. Für Besichtigungen und nähere Informationen stehen wir Ihnen gerne zur Verfügung!

Stephan Wallner
national - Tel: 0664 5228831 [tel:06645228831]
international - Tel: +43 664 5228831 [tel:+436645228831]
e-mail: wallner@lifestyle-properties.at

Wir weisen darauf hin, dass zwischen dem Vermittler und dem zu vermittelnden Dritten ein familiäres oder wirtschaftliches Naheverhältnis besteht.

Der Vermittler ist als Doppelmakler tätig.

 

 

Infrastruktur / Entfernungen

Gesundheit
Arzt <500m
Apotheke <500m
Klinik <500m
Krankenhaus <500m

Kinder & Schulen
Schule <500m
Kindergarten <500m
Universität <1.000m
Höhere Schule <500m

Nahversorgung
Supermarkt <500m
Bäckerei <500m
Einkaufszentrum <500m

Sonstige
Geldautomat <500m
Bank <500m
Post <500m
Polizei <500m

Verkehr
Bus <500m
U-Bahn <500m
Straßenbahn <1.000m
Bahnhof <500m
Autobahnanschluss <1.000m

Angaben Entfernung Luftlinie / Quelle: OpenStreetMap
Beschreibung weiterlesen

Lage und Verkehrsanbindung

Kardinal Nagl Platz

Energieeffizienz

HWB:
111,1 kWh/(m²*a)
HWB Klasse:
D
fGEE:
1,88
fGEE Klasse:
D
Energieausweisart:
Energiebedarfs-ausweis
Gültig bis:
20.08.2033

Grundrisse

Lageplan

1030 Wien | Wien 3., Landstraße

Lade...
Stephan Wallner

Stephan Wallner
Real Estate Agent

IM Lifestyle Properties GmbH

Lade...

Fotomix

Bild 1 Bild 2 Bild 3 Bild 4 Bild 5 Bild 6 Bild 7 Bild 8 Bild 9 Bild 10 Bild 11 Bild 12 Bild 13 Bild 14 Bild 15 Bild 16 Bild 17 Bild 18 Bild 19 Bild 20 Bild 21 Bild 22 Bild 23 Bild 24