NEU - Exklusive Dachgeschoßwohnung mit Galerie, Terrassen und Blick zum Anninger

Wohnung zum Kauf in 2340 Mödling - Kaufpreis: 949.900 € / Objektnummer: 311018
Ausstattung: Boden Wohnküche / offene Küche Bad Sauna Abstellraum Fußbodenheizung Balkon Terrasse

Preisinformationen

Kaufpreis:
949.900 €
Betriebskosten netto:
341,75 € / Monat
Preisinfos:
Monatliche Heizkostenvorschreibung 213,89EUR plus 20% USt.
Vermittlungsprovision:
Ja
Provision:
3% des Kaufpreises zzgl. 20% USt.

Fakten

Objektnummer:
311018
Objekttyp:
Wohnung
Balkon:
1
Terrasse:
1
Balkonfläche:
35 m²
Wohnfläche:
218 m²
Zimmer:
5
Badezimmer:
2
Toilette:
2
Baujahr:
1913
Neubau:
Ja
Zustand:
Modernisiert
Verfügbarkeit:
Verfügbar

Beschreibung

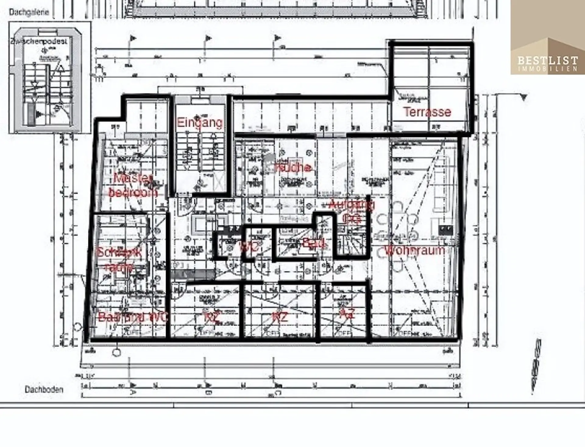
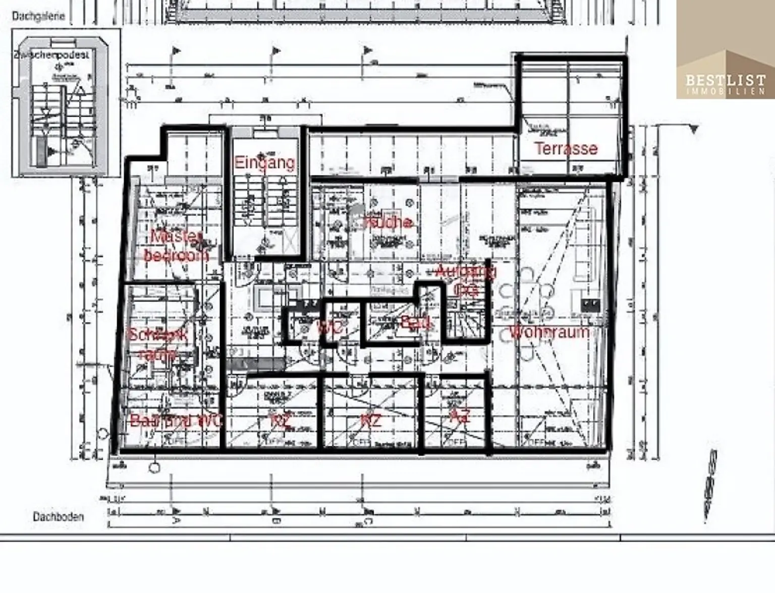
Zum Verkauf gelangt eine außergewöhnlich repräsentative 5-Zimmer-Wohnung in einem vollständig renovierten Bürgerhaus in begehrter Lage von Mödling.
Diese Immobilie vereint den Charakter historischer Bausubstanz mit zeitgemäßem Wohnkomfort und richtet sich an Käufer, die Substanz, Großzügigkeit und architektonische Qualität bewusst zu schätzen wissen. Die Wohnung befindet sich im 2. Stock ohne Lift. 

Mit hoher handwerklicher Präzision, viel Liebe zum Detail und einem klaren gestalterischen Konzept wurde hier ein Wohnraum geschaffen, der Eleganz, Funktionalität und Atmosphäre auf höchstem Niveau miteinander verbindet.

Der Zugang zur Wohnung erfolgt über eine interne Treppe in das obere Geschoss. Bereits beim Eintreten setzt eine markante schwarze Holz-Glas-Schwenktüre ein architektonisches Statement und eröffnet den großzügigen Wohnbereich.

Das geräumige Vorzimmer verfügt über einen maßgefertigten Einbaukasten sowie ein außergewöhnliches Gestaltungselement:
Eine dreiecksförmige, in den Dachstuhl integrierte Bibliothek, erreichbar über eine elegante Holzleiter – ein Detail, das Charakter zeigt und die Individualität dieser Wohnung unterstreicht.

Rechterhand befindet sich der hochwertig ausgeführte Master-Bereich, bestehend aus:

*
Schlafzimmer

*
Großzügigem begehbarem Schrankraum

*
Badezimmer mit Badewanne und Dusche

*
Separatem WC mit Bidet

Großformatige Feinsteinzeugfliesen verleihen diesem Bereich einen ruhigen, eleganten Wellness-Charakter.

Linkerhand erschließt sich der offen gestaltete Wohn- und Essbereich.
Den Auftakt bildet die luxuriöse Wohnküche in edlem Silbergrau, ausgestattet mit:

*
Backrohr & Dampfgarer

*
Kühl- und Gefrierschrank

*
Weinschrank

*
Freistehendem Küchenblock mit Induktionskochfeld

*
Integriertem Hochtisch aus Vollholz

Ergänzt wird die Küche durch eine separate Speisekammer sowie eine voll ausgestattete Waschküche mit Waschmaschine und Trockner.

Von der Küche aus gelangt man auf die erste großzügige, südlich ausgerichtete Terrasse mit Fernblick. Der Lärchenholzboden und die großzügige Fläche bieten ideale Voraussetzungen für Sitz- und Aufenthaltsbereiche.

Der anschließende Wohnbereich überzeugt durch:

*
Großzügigen Essbereich

*
Verglasten Kamin

*
Wohnzimmer mit integrierter Bibliothek

Die offene L-Form, eine Raumhöhe von über 4 Metern, sichtbare historische Dachbalken sowie Fischgrätparkett aus Eichenholz schaffen ein außergewöhnlich repräsentatives Wohnambiente.

Über eine geschwungene Treppe erreicht man das offen gestaltete Atelier bzw. die Galerie direkt unter dem Dach. Dieser Bereich eignet sich ideal als Arbeits-, Lese- oder Rückzugsraum. Von hier aus gelangt man auf die zweite, großzügige Terrasse mit freiem Blick bis zum Anninger.

Im unteren Bereich der Wohnung befinden sich:

*
Drei helle Zimmer, ideal als Kinder-, Arbeits- oder Gästezimmer

*
Ein zusätzlicher Schrankraum

*
Ein separates WC

*
Ein weiteres Badezimmer mit Dusche und integrierter Holzsauna

Auch hier unterstreichen großformatige Feinsteinzeugfliesen den hohen Ausstattungsstandard.

Lage & Infrastruktur

Die Immobilie befindet sich in ausgezeichneter Lage von Mödling und überzeugt durch ihre hervorragende Infrastruktur:

*
Einkaufsmöglichkeiten, Schulen, Kindergärten und Ärzte in unmittelbarer Umgebung

*
Bequem fußläufig oder mit dem Fahrrad erreichbar

*
Shopping City Süd sowie Autobahnanschluss Richtung Wien in wenigen Fahrminuten

*
Schnellbahnanschluss Richtung Wien, Bahnhof Mödling ca. 10 Gehminuten entfernt

Lassen Sie sich diese Möglichkeit nicht entgehen und vereinbaren Sie einen Besichtigungstermin.

 

Unser nachhaltiger Denkansatz sieht auch die Vermeidung von unnötigen Ausdrucken in Papierform vor, daher geben Sie uns Bescheid, ob Sie schriftliche Unterlagen ausgehändigt haben möchten oder ob wir diese einfach per Mail an Sie senden sollen. Wir richten uns gerne nach Ihren Wünschen!

Wir weisen darauf hin, dass zwischen dem Vermittler und dem zu vermittelnden Dritten ein familiäres oder wirtschaftliches Naheverhältnis besteht.

Der Vermittler ist als Doppelmakler tätig.

Infrastruktur / Entfernungen

Gesundheit
Arzt <500m
Apotheke <500m
Klinik <1.500m
Krankenhaus <500m

Kinder & Schulen
Kindergarten <250m
Schule <250m
Höhere Schule <1.750m
Universität <10.000m

Nahversorgung
Supermarkt <500m
Bäckerei <500m
Einkaufszentrum <500m

Sonstige
Bank <500m
Geldautomat <750m
Post <1.250m
Polizei <1.250m

Verkehr
Bus <250m
U-Bahn <5.000m
Bahnhof <500m
Straßenbahn <4.750m
Autobahnanschluss <2.000m

Angaben Entfernung Luftlinie / Quelle: OpenStreetMap
Beschreibung weiterlesen

Grundrisse

Lageplan

2340 Mödling | Mödling

Lade...
Florian Stift

Florian Stift
Geschäftsführer / Zertifizierter Immobilienexperte

BESTLIST Immobilien GmbH

Lade...

Fotomix

Bild 1 Bild 2 Bild 3 Bild 4 Bild 5 Bild 6 Bild 7 Bild 8 Bild 9 Bild 10