NEU - Exklusive Maisonette mit Dachterrasse – 88,52 m² Wohnfläche | Lift

Wohnung zur Miete in 3100 St. Pölten - Gesamtmiete: 1.248,99 € / Objektnummer: 5782
Ausstattung: Boden Fahrstuhl Wohnküche / offene Küche Bad Gäste-WC Kabel/Satelliten-TV Klimaanlage Fahrradraum Abstellraum Zentralheizung Fußbodenheizung Terrasse
Wohnküche
Wohnküche
Wohnküche
Dachterrasse
Dachterrasse
Dachterrasse
Galerie
Galerie / Treppenhaus
Treppenhaus
Vorraum / Badezimmer / Schlafzimmer
Badezimmer
Zimmer
Zimmer
Zimmer
Treppenhaus / Abstellraum / Zimmer
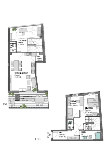
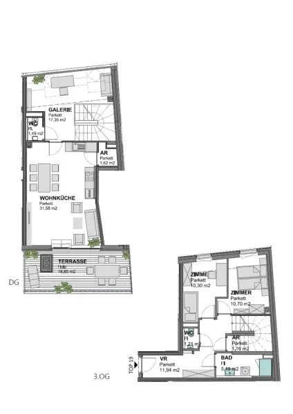
Grundrissskizze

Preisinformationen

Gesamtmiete:
1.248,99 € / Monat
Betriebskosten netto:
234,51 € / Monat
Umsatzsteuer:
113,54 €
Kaution:
3 Bruttomonatsmieten
Provision:
Gemäß Erstauftraggeberprinzip bezahlt der Abgeber die Provision.

Fakten

Objektnummer:
5782
Objekttyp:
Wohnung
Terrasse:
1
Keller Fläche:
10 m²
Wohnfläche:
88,52 m²
Zimmer:
3
Badezimmer:
1
Toilette:
2
Stockwerk:
1
Baujahr:
2015
Neubau:
Ja
Zustand:
Neuwertig
Verfügbarkeit:
Verfügbar

Beschreibung

88,52 m² Wohnfläche + 18,85 m² Dachterrasse  
3. + 4. Obergeschoss mit Lift – 01.04.2026 

Raumaufteilung: 

1. Etage: Vorzimmer, Treppenhaus, Abstellraum, Duschbad, Toilette, zwei Zimmer

2. Etage: Wohnküche, Dachterrasse, Galerie, Abstellraum, Gästetoilette

Ausstattung: Einbauküche mit Markeneinbaugeräten, teilweise LED Einbauspots, Parkett und Fliesenböden, hochqualitative Zargen und Innentüren, hochwertige Sanitäreinrichtungen, Sicherheitstür, Fußbodenheizung, elektrische Außenraffstores   

Miete gesamt: € 1.257,15 inkl. BK/USt.

Kaution: 3 BMM 

Wir weisen darauf hin, dass zwischen dem Vermittler und dem zu vermittelnden Dritten ein familiäres oder wirtschaftliches Naheverhältnis besteht.

Der Immobilienmakler erklärt, dass er – entgegen dem in der Immobilienwirtschaft üblichen Geschäftsgebrauch des Doppelmaklers – einseitig nur für den Vermieter tätig ist.

Infrastruktur / Entfernungen

Gesundheit
Arzt <250m
Apotheke <250m
Klinik <750m
Krankenhaus <1.000m

Kinder & Schulen
Schule <250m
Kindergarten <500m
Universität <1.000m
Höhere Schule <250m

Nahversorgung
Supermarkt <250m
Bäckerei <250m
Einkaufszentrum <250m

Sonstige
Bank <250m
Geldautomat <250m
Polizei <250m
Post <250m

Verkehr
Bus <250m
Bahnhof <250m
Autobahnanschluss <3.000m
Flughafen <6.000m

Angaben Entfernung Luftlinie / Quelle: OpenStreetMap
Beschreibung weiterlesen

Lage und Verkehrsanbindung

Inmitten der Fußgängerzone
1 Minute vom Hauptbahnhof & P+R ÖBB entfernt
2 Minuten vom Rathausplatz gelegen
4 Minuten zum Universitätsklinikum St. Pölten
27 Minuten mit dem Zug zum Wien Hauptbahnhof
55 Minuten mit dem Zug zum Flughafen Wien

Hauptbahnhof, Fußgängerzone, Rathausplatz

Energieeffizienz

HWB:
31,9 kWh/(m²*a)
HWB Klasse:
B
fGEE:
0,71
fGEE Klasse:
A
Energieausweisart:
Energiebedarfs-ausweis
Gültig bis:
09.02.2025

Grundriss

Lageplan

3100 St. Pölten | Sankt Pölten (Stadt)

Lade...
Marion Kleebinder

Marion Kleebinder
Immobilienvermittlung

IMMOCENTRAL Immobilientreuhand GmbH

Lade...

Fotomix

Wohnküche Wohnküche Wohnküche Dachterrasse Dachterrasse Dachterrasse Galerie Galerie / Treppenhaus Treppenhaus Vorraum / Badezimmer / Schlafzimmer Badezimmer Zimmer Zimmer Zimmer Treppenhaus / Abstellraum / Zimmer