NEU - Exklusive Neubau- & Dachgeschosswohnungen mit 360°-Blick über Wien und Revitalisierter Altbau in 1100 Wien

Wohnung zum Kauf in 1100 Wien - Kaufpreis: 395.000 € / Objektnummer: 2721
Ausstattung: Barrierefrei Boden Fahrstuhl Wohnküche / offene Küche Bad Klimaanlage Fahrradraum Fußbodenheizung

Preisinformationen

Kaufpreis:
395.000 €
Betriebskosten netto:
121,82 € / Monat
Vermittlungsprovision:
Ja
Provision:
3% des Kaufpreises zzgl. 20% USt.

Fakten

Objektnummer:
2721
Objekttyp:
Wohnung
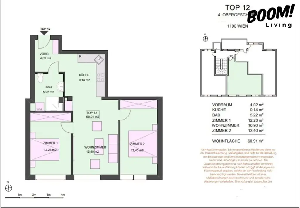
Wohnfläche:
60,91 m²
Zimmer:
3,5
Badezimmer:
1
Toilette:
1
Stockwerk:
4
Zustand:
Erstbezug
Verfügbarkeit:
Verfügbar

Beschreibung

In attraktiver Lage des 10. Wiener Bezirks entsteht ein hochwertiges Wohnprojekt mit insgesamt nur 15 exklusiven Wohneinheiten. Das Projekt verbindet den Charme eines revitalisierten Altbaus mit moderner Neubauarchitektur - und Dachgeschossprojekt mit 360°-Blick über Wien  und schafft ein einzigartiges Wohnkonzept.

Die ersten beiden Stockwerke des Gebäudes werden liebevoll revitalisiert und bewahren den klassischen Charakter eines Wiener Zinshauses. Darüber entstehen zwei neue Geschosse sowie ein modernes Dachgeschoss, welche mit zeitgemäßer Architektur, durchdachten Grundrissen und hochwertigen Materialien überzeugen.

Alle Wohnungen verfügen über attraktive Freiflächen wie Balkone, Terrassen , die zusätzlichen Wohnkomfort bieten. Die Dachgeschosswohnungen begeistern mit großzügigen Flachdachterrassen, die einen beeindruckenden Rundumblick 360° über die Dächer Wiens ermöglichen.

Die Wohnungsgrößen reichen von kompakten Stadtwohnungen bis hin zu großzügigen Dachgeschosswohnungen und bieten somit sowohl ideale Eigennutzerwohnungen als auch attraktive Anlageobjekte. Das 3. und 4. Obergeschoss sowie die Dachgeschosswohnungen unterliegen dem freien Mietzins, wodurch sich besonders attraktive Perspektiven für Investoren und Anleger ergeben .

Hochwertige Ausstattung & moderne Technik :

Besonderes Augenmerk wurde auf eine hochwertige und nachhaltige Ausstattung gelegt:

*
Energieeffiziente Luft-Wasser-Wärmepumpen von DAIKIN für Heizung, Kühlung und Warmwasser

*
Eichenparkett in den Wohnräumen

*
Großformatige Feinsteinzeug-Fliesen in den Nassbereichen

*
Fußbodenheizung für angenehmen Wohnkomfort

*
Hochwertige Sanitärausstattung von Villeroy & Boch sowie Armaturen von Grohe

*
Moderne Fenster- und Türelemente

Der vollständig sanierte Innenhof, ein repräsentatives Stiegenhaus, eine neue Aufzugsanlage sowie eine hochwertige Schließanlage (EVVA) unterstreichen den exklusiven Charakter dieses Projekts.

Hinweis : Bei den dargestellten Bildern handelt es sich teilweise um Visualisierungen, die auf Basis der Grundrisse erstellt wurden.

 

Ich freue mich auf Ihre Anfrage! Erleben Sie diese einzigartige Immobilie persönlich – Besichtigungen sind 7 Tage die Woche möglich, gerne auch abends oder am Wochenende.

📞 Telefon: 0676 3305971
📧 E-Mail: mariana.hiebl@boom-living.com

 

........................................................................................................................................................................................................

Die Angaben über das angebotene Objekt erfolgen mit der Sorgfalt eines ordentlichen Immobilienmaklers; für die Richtigkeit solcher Angaben, die auf Informationen der über das Objekt Verfügungsberechtigten beruhen, wird keine Gewähr geleistet. Es gelten die Bestimmungen der beiliegenden Immobilienmaklerverordnung; des Weiteren wurde die Übersicht der zu erwartenden Nebenkosten gem. KSchG übermittelt. Gemäß § 6 Abs. 4 dritter Satz MaklerG und § 30b KSchG weist der Immobilienmakler auf ein bestehendes wirtschaftliches Naheverhältnis zu dem Verkäufer aufgrund regelmäßiger geschäftlicher Tätigkeit hin. Es besteht jedoch keinerlei gesellschaftsrechtliche Verbindung zum Verkäufer. Dieses Angebot ist ausschließlich für den Adressaten bestimmt. Eine Weitergabe an Dritte ist nur mit unserer ausdrücklichen, in Schriftform übermittelten, Zustimmung gestattet. Hinweis: Seit 1.1.2009 besteht für den Verkäufer bzw. den Vermieter einer Immobilie die Verpflichtung zur Vorlage eines gültigen Energieausweises. Im Falle der Nichtvorlage gilt eine dem Alter und der Art des Gebäudes entsprechende Gesamtenergieeffizienz als vereinbart. Der Vermittler, die Boom Living GmbH & Co KG, ist als Doppelmakler tätig. 

Wir weisen darauf hin, dass zwischen dem Vermittler und dem zu vermittelnden Dritten ein familiäres oder wirtschaftliches Naheverhältnis besteht.

Der Vermittler ist als Doppelmakler tätig.

Infrastruktur / Entfernungen

Gesundheit
Arzt <500m
Apotheke <500m
Klinik <500m
Krankenhaus <1.500m

Kinder & Schulen
Schule <500m
Kindergarten <500m
Universität <1.500m
Höhere Schule <2.000m

Nahversorgung
Supermarkt <500m
Bäckerei <500m
Einkaufszentrum <1.500m

Sonstige
Geldautomat <500m
Bank <500m
Post <500m
Polizei <1.000m

Verkehr
Bus <500m
U-Bahn <1.000m
Straßenbahn <500m
Bahnhof <1.000m
Autobahnanschluss <2.000m

Angaben Entfernung Luftlinie / Quelle: OpenStreetMap
Beschreibung weiterlesen

Lage und Verkehrsanbindung

Die Immobilie befindet sich in der Buchengasse im 10. Wiener Gemeindebezirk Favoriten, einem aufstrebenden Wohnbezirk mit hervorragender Infrastruktur und optimaler Anbindung an das Wiener Stadtzentrum.

Die Umgebung bietet eine ausgezeichnete Nahversorgung: Zahlreiche Supermärkte, Restaurants, Cafés sowie Apotheken und Banken befinden sich in unmittelbarer Nähe. Auch Schulen, Kindergärten und medizinische Einrichtungen sind bequem erreichbar und machen die Lage besonders attraktiv für Familien, Eigennutzer und Anleger.

Ein besonderer Vorteil dieser Lage ist die hervorragende Anbindung an den öffentlichen Verkehr. Mehrere Straßenbahn- und Buslinien befinden sich in fußläufiger Entfernung und sorgen für eine schnelle Verbindung in die Innenstadt sowie zu wichtigen Verkehrsknotenpunkten der Stadt.

Öffentliche Verkehrsanbindungen :
U-Bahn: U1 Reumannplatz (ca. wenige Minuten entfernt)
Straßenbahn: Linien 6, 11 und O
Bus: Linien 14A und 7A
S-Bahn: Wien Hauptbahnhof in kurzer Zeit erreichbar

Durch diese ausgezeichnete Anbindung gelangt man in etwa 10–15 Minuten direkt in die Wiener Innenstadt.

Für Erholung und Freizeit sorgen zahlreiche Grünflächen und Parkanlagen in der Umgebung, darunter der beliebte Helmut-Zilk-Park sowie weitere Naherholungsgebiete rund um den Wiener Hauptbahnhof.

Die Kombination aus urbaner Infrastruktur, guter Verkehrsanbindung und wachsender Wohnqualität macht diese Lage zu einem besonders attraktiven Wohn- und Investmentstandort in Wien.

Reumannplatz

Energieeffizienz

HWB:
40 kWh/(m²*a)
HWB Klasse:
B
fGEE:
1,18
fGEE Klasse:
C
Energieausweisart:
Energiebedarfs-ausweis

Grundriss

Lageplan

1100 Wien | Wien 10., Favoriten

Lade...
Mariana Hiebl

Mariana Hiebl
Sales Associate | Selbstständig

Boom Living GmbH & Co KG

Lade...

Fotomix

Bild 1 Bild 2 Bild 3 Bild 4 Bild 5 Bild 6 Bild 7 Bild 8 Bild 9