NEU - Exklusiver Rohdachboden mit rechtskräftiger Baubewilligung in Toplage – Schönbrunner Straße 60

Wohnung zum Kauf in 1050 Wien - Kaufpreis: 849.000 € / Objektnummer: 101/18504
Ausstattung: Fahrstuhl Etagenheizung
(c)2026 ZOOMVP_JPI
(c)2026 ZOOMVPJPI S
(c)2026 ZOOMVP_JP
(c)2026 ZOOMV_JPI S
(c)2026 ZOOJPI S
_DSC2941
_DSC2969
_DSC2950
_DSC9336
_DSC2593
_DSC2532
Rohdachboden 1
Rohdachboden

Preisinformationen

Kaufpreis:
849.000 €
Kaufpreis/m²
3.032,14 €
Vermittlungsprovision:
Ja
Provision:
3%

Fakten

Objektnummer:
101/18504
Objekttyp:
Wohnung
Wohnfläche:
280 m²
Verfügbarkeit:
Verfügbar

Beschreibung

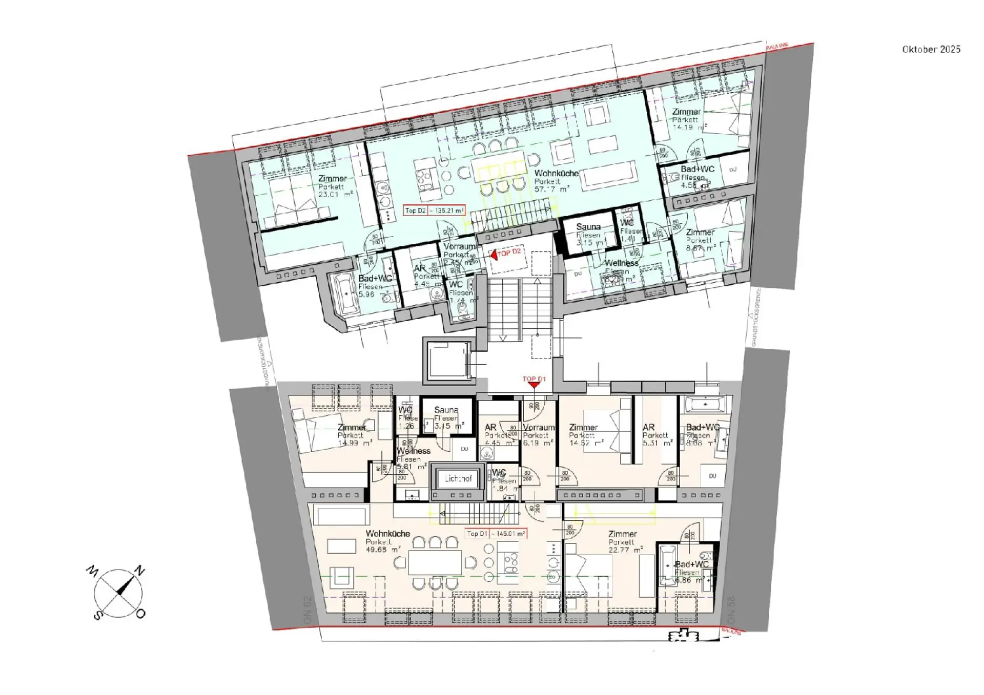
In einem hervorragend angebundenen Altbau in der Schönbrunner Straße 60 gelangt ein baubewilligter Rohdachboden mit großem Entwicklungspotenzial zum Verkauf. Dieses Projekt bietet eine seltene Gelegenheit, hochwertigen Wohnraum über den Dächern Wiens zu schaffen – sofort umsetzbar und bestens vorbereitet. Highlight-Facts im Überblick: • Rechtskräftige Baubewilligung inklusive aller Einreichunterlagen • Attraktives Flächenpotenzial: rund 280 m² erzielbare Nettofläche sowie ca. 167 m² Freiflächen laut Entwurfsplanung • Planungsflexibilität: Neben der Einreichplanung liegt ein alternativer Entwurf für zwei großzügige Wohnungen vor, ohne Planwechsel realisierbar • Wesentliche Vorleistungen bereits erledigt: Aufzug gemäß Einreichplanung fertiggestellt Balkone in den Bestandsgeschossen bereits errichtet • Moderne Energieversorgung: Luftwärmepumpe vorgesehen • Baubeginnsanzeige (u. a. für Aufzugseinbau) bereits mit 05/2025 erfolgt • Kaufpreis: € 849.000,- Dieses Projekt eignet sich perfekt für Käufer, die ein baureifes, klar strukturiertes Dachgeschoßprojekt suchen – mit bereits umgesetzten Kernmaßnahmen und außergewöhnlichem Gestaltungsspielraum. Gerne stellen wir sämtliche Unterlagen wie Einreichpläne und Baubewilligung auf Anfrage zur Verfügung. Lage Die Schönbrunner Straße 60 überzeugt mit ihrer zentralen Lage im lebendigen Margareten. Die Umgebung bietet eine hervorragende Infrastruktur mit Geschäften, Cafés und Restaurants sowie eine ausgezeichnete Verkehrsanbindung durch die nahe U4-Station "Pilgramgasse". Zudem befinden sich mehrere Buslinien in unmittelbarer Nähe, darunter die Linien 12A, 13A und 59A, die an der Station "Margaretenplatz/Schönbrunner Straße" halten. Diese vielfältigen Verkehrsanbindungen ermöglichen eine schnelle und bequeme Erreichbarkeit sowohl des Stadtzentrums als auch anderer Bezirke Wiens. Ebenso sorgen der Wienfluss, Parks und das nahegelegene Naschmarkt-Viertel für Freizeit- und Erholungsmöglichkeiten. Eine ideale Lage für alle, die urbanes Leben mit hervorragender Erreichbarkeit verbinden möchten. Ansprechpartner Frau Doris Kurzweil || +43 699 17 55 66 16 || dk@jpi.at Herr Vladimir Adamovic || +43 699 17 55 66 41 || va@jpi.at Wir weisen darauf hin, dass wir mit dem Abgeber in ständiger Geschäftsbeziehung stehen und schon aus diesem Grund ein wirtschaftliches Naheverhältnis vorliegt.
Beschreibung weiterlesen

Lage und Verkehrsanbindung

Pilgramgasse

Energieeffizienz

HWB:
144,8 kWh/(m²*a)
HWB Klasse:
D
fGEE:
2,65
fGEE Klasse:
E

Grundrisse

Vladimir Adamovic

Vladimir Adamovic

JP Immobilien

Lade...

Fotomix

(c)2026 ZOOMVP_JPI (c)2026 ZOOMVPJPI S (c)2026 ZOOMVP_JP (c)2026 ZOOMV_JPI S (c)2026 ZOOJPI S _DSC2941 _DSC2969 _DSC2950 _DSC9336 _DSC2593 _DSC2532