Exklusives Reihenhaus Top A1 in Nußdorf-Zell am Attersee

Haus zum Kauf in 4865 Nußdorf am Attersee - Kaufpreis: 759.900 € / Objektnummer: I-1078-RH-A1-21c
Ausstattung: Boden Bad Gäste-WC Kabel/Satelliten-TV Fußbodenheizung Terrasse Garten
Reihenhaus
Reihenhaus
Doppelhaus
21c
Startseite
Die Lage
Der Überblick
RH Top A 1 21c
Reihenhaus
Öffentliche Badeplätze 01
Weg zum öffentlichen Badeplatz
Energieskala
Verkaufsplan RH Haus A EG 21a_21b_21c
Verkaufsplan RH Haus A OG 21a_21b_21c
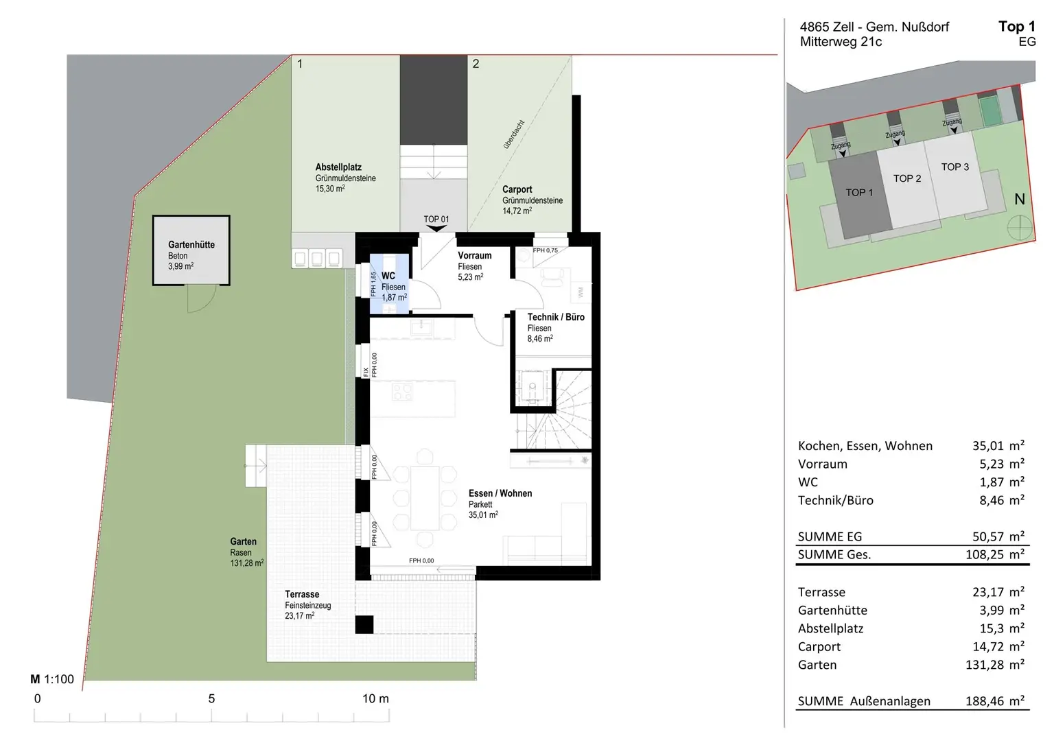
Verkaufsplan RH Top 1 EG 21c
Verkaufsplan RH Top 1 OG 21c

Preisinformationen

Kaufpreis:
759.900 €
Preisinfos:
€ 738.900,- belagsfertig
Provision:
3 % zzgl. 20% USt.

Fakten

Objektnummer:
I-1078-RH-A1-21c
Objekttyp:
Haus
Terrasse:
1
Wohnfläche:
108,25 m²
Gartenfläche:
131,28 m²
Zimmer:
4
Schlafzimmer:
3
Badezimmer:
1
Toilette:
1
Baujahr:
2025
Zustand:
Erstbezug
Verfügbarkeit:
Verfügbar

Beschreibung

Exklusives Reihenhaus Top A1 in Nußdorf-Zell am Attersee. Mit oder ohne Pool!
Schlüssel- oder belagsfertig! Hauptwohnsitz erforderlich.

In Zell in der Gemeinde Nußdorf am Attersee errichtet die Nu5 Projekt GmbH ein Doppelhaus mit zwei und ein Reihenhaus mit drei Wohneinheiten in schlüsselfertiger Ausführung. Öffentliche Badeplätze in wenigen Minuten erreichbar.

In absoluter Ruhelage am Westufer des Attersees mit der malerischen Bergkulisse des Salzkammerguts im Hintergrund entstehen hochwertige Wohnungen im Stile eines Doppel- und Reihenhauses in optisch ansprechender Architektur.
Bei den südseitig ausgerichteten Einheiten wurde bei der Planung, unter bestmöglicher Berücksichtigung der Rahmenbedingungen und örtlichen Gegebenheiten, auf ein modernes Raumkonzept mit besonderem Augenmerk auf praktikable Nutzbarkeit geachtet.
Ausgewählte Baumaterialien, hochwertige Boden- und Wandbeläge. Modernes Heizungssystem mit Luftwärmepumpe und Fußbodenheizung. Perfekt in Kombination mit der serienmäßigen Photovoltaikanlage.

Ihre Auswahl - schlüsselfertig
- Reihenhaus A Top 1 € 759.900, -
- Reihenhaus A Top 2 € 699.900, -
- Reihenhaus A Top 3 € 749.900, -
- Doppelhaus B Top 1 € 719.900, -
- Doppelhaus B Top 2 € 729.900, -

Ihre Auswahl - belagsfertig
- Reihenhaus A Top 1 € 738.900, -
- Reihenhaus A Top 2 € 678.900, -
- Reihenhaus A Top 3 € 728.900, -
- Doppelhaus B Top 1 € 708.900, -
- Doppelhaus B Top 2 € 698.900, -

- Mehrpreis für Doppel-Carport € 12.500,-
- Mehrpreis Pool € 41.800,-
- Anlegerpreise - siehe Preisliste

BITTE BEACHTEN SIE, dass wir aufgrund der Nachweispflicht gegenüber dem Eigentümer nur Anfragen mit vollständiger Angabe des Namens und der Anschrift bearbeiten können. Gerne senden wir Ihnen ein kostenloses Detailangebot mit weiteren Informationen zu.
Beschreibung weiterlesen

Lage und Verkehrsanbindung

Nußdorf am Attersee, eingebettet am malerischen Ufer des Attersees, erhebt sich als eine bezaubernde Gemeinde inmitten der atemberaubenden Landschaft des Salzkammerguts. Diese idyllische Lage macht Nußdorf zu einem begehrten Wohnort für Naturliebhaber, Wassersportbegeisterte und Erholungssuchende gleichermaßen.

Die Gemeinde liegt in Oberösterreich, nur etwa eine Autostunde von der Landeshauptstadt Linz und der Festspielstadt Salzburg entfernt. Die hervorragende Anbindung an das Straßennetz macht Nußdorf sowohl für Pendler als auch für Urlauber äußerst attraktiv.

Umgeben von majestätischen Bergen und dem klaren, tiefblauen Wasser des Attersees bietet Nußdorf eine Fülle an Freizeitmöglichkeiten. Wassersportarten wie Segeln, Surfen und Schwimmen können direkt vor der Haustür ausgeübt werden. Wanderer und Bergsteiger finden in den umliegenden Bergen unzählige Routen für jedes Können, die mit spektakulären Ausblicken belohnt werden.

Die Gemeinde selbst besticht durch ihren charmanten Ortskern mit traditionellen Gasthäusern, gemütlichen Cafés und kleinen Geschäften. Hier pulsiert das Leben und dennoch herrscht eine angenehme Ruhe, die zum Verweilen einlädt. Kulturelle Veranstaltungen und regionale Feste bringen Bewohner und Besucher gleichermaßen zusammen und sorgen für ein lebendiges Gemeinschaftsgefühl.

Für Familien bietet Nußdorf eine ausgezeichnete Infrastruktur mit Kindergärten, Schulen und vielfältigen Freizeitangeboten für Kinder jeden Alters. Die Sicherheit und Geborgenheit einer kleineren Gemeinde gepaart mit einem breiten Spektrum an Bildungs- und Freizeitmöglichkeiten machen Nußdorf zu einem idealen Ort, um eine Familie zu gründen.

Insgesamt besticht Nußdorf am Attersee durch seine einzigartige Kombination aus natürlicher Schönheit, erstklassiger Lage und einer lebendigen Gemeinschaft, die ein erfülltes Leben inmitten der österreichischen Alpen ermöglicht.

Zell (Ort)

Energieeffizienz

HWB:
50 kWh/(m²*a)
HWB Klasse:
C
fGEE:
0,71
fGEE Klasse:
A
Gebäudeart:
listing.status.epcBuildingType_wohn

Dokumente

Grundrisse

Lageplan

4865 Nußdorf am Attersee | Vöcklabruck

Lade...
Hermann Purkart

Hermann Purkart

IMMOTEAM4YOU Immobilien GmbH

Virtuelle Tour

Anrufen
Lade...

Fotomix

Reihenhaus Reihenhaus Doppelhaus 21c Startseite Die Lage Der Überblick RH Top A 1 21c Reihenhaus Öffentliche Badeplätze 01 Weg zum öffentlichen Badeplatz Energieskala