NEU - Exklusives Wohnen in Simmering – Neubau mit urbaner Infrastruktur & erholsamer Umgebung!

Wohnung zur Miete in 1110 Wien - Gesamtmiete: 879,00 € / Objektnummer: 1757827
Ausstattung: Boden Fahrstuhl Wohnküche / offene Küche Bad Rollladen Fußbodenheizung Terrasse Garten

Preisinformationen

Gesamtmiete:
879,00 € / Monat
Betriebskosten netto:
84,55 € / Monat
Umsatzsteuer:
79,91 €
Kaution:
3 Bruttomonatsmieten
Provision:
Gemäß Erstauftraggeberprinzip bezahlt der Abgeber die Provision.

Fakten

Objektnummer:
1757827
Objekttyp:
Wohnung
Terrasse:
1
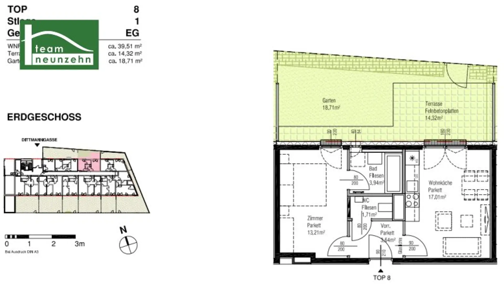
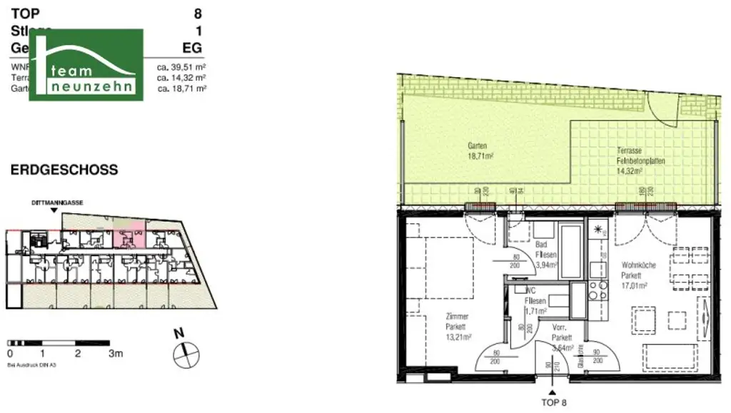
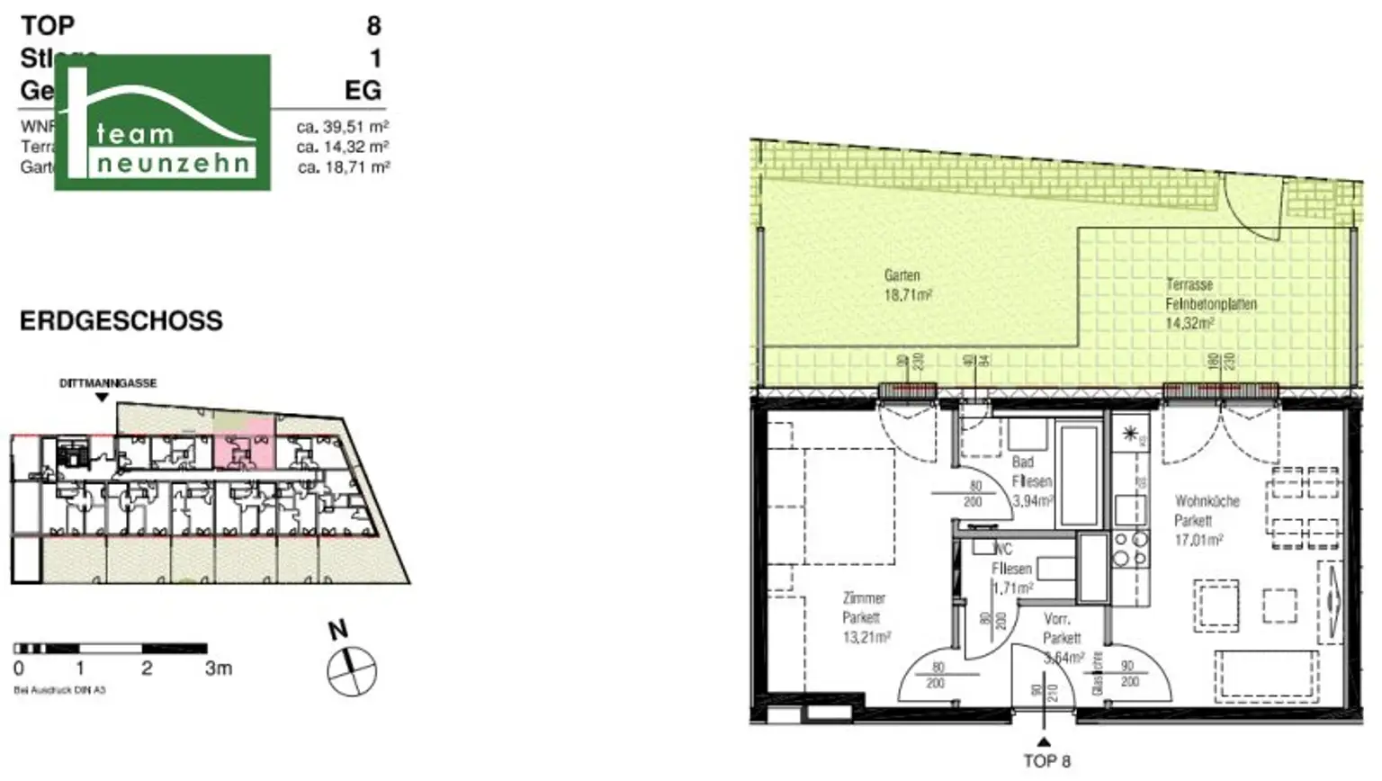
Wohnfläche:
39,51 m²
Nutzfläche:
72,54 m²
Gesamtfläche:
72,54 m²
Gartenfläche:
18,71 m²
Zimmer:
2
Badezimmer:
1
Toilette:
1
Baujahr:
2020
Neubau:
Ja
Zustand:
Neuwertig
Verfügbarkeit:
Verfügbar

Beschreibung

ZENTRAL UND RUHIG WOHNEN – DAS BESTE AUS STADT UND ERHOLUNG!

Wohnen im Herzen von Simmering – Dittmanngasse 4, 1110 Wien

Das moderne Neubauprojekt verbindet urbanes Leben mit Ruhe und Lebensqualität. Die familienfreundliche Wohnanlage liegt in einer ruhigen Seitengasse, nur wenige Minuten vom U3-Enkplatz entfernt – mit direkter Verbindung ins Stadtzentrum und hervorragender Nahversorgung.

Besonderes Augenmerk wurde auf funktionale Grundrisse, viel Tageslicht und eine klare, moderne Architektur gelegt. Die Wohnungen überzeugen mit optimal genutztem Raum, großzügigen Freiflächen und heller Atmosphäre. Kinderwagen- und Fahrradabstellräume, ein Müllraum sowie ein eigenes Kellerabteil pro Einheit sorgen für zusätzlichen Stauraum.

Die Lage vereint städtische Infrastruktur mit ruhiger Wohnqualität. Die U3 ist rasch zu Fuß erreichbar, ebenso Bus- und Straßenbahnlinien sowie der Verkehrsknoten Simmering mit Regionalzuganschluss. Trotz der sehr guten Anbindung genießt man hier ein ruhiges Wohnumfeld – mitten in der Stadt.

Nahversorger wie Supermärkte, Drogerien, Apotheken und Cafés befinden sich ebenfalls in unmittelbarer Nähe. Für Erholung und Freizeit laden der Herderpark und der Simmeringer Badeteich zu Spaziergängen, sportlicher Aktivität oder entspannten Stunden im Grünen ein.

Die Wohnungen werden mit einer Befristung auf 5 Jahre vermietet.

 

Highlights:

* Fahrradraum, Kinderwagenraum und Kellerabteile verfügbar
* Hauseigene Tiefgarage
* Großer Innenhof mit Kinderspielplatz
* U3 Enkplatz in 3 Gehminuten erreichbar
* Hervorragende Infrastruktur in unmittelbarer Umgebung: BILLA PLUS, Apotheke in Gehweite, Restaurants, Kindergärten und Schulen
* Naherholungsgebiete Herderpark und Braunhuberpark in Gehweite

 

Ausstattungsstandard:

* Fußbodenheizung
* Alle Einheiten verfügen über hochwertige Tischlerküchen inklusive Markengeräten von Zanussi
* Edler Eichenparkettboden in sämtlichen Wohn- und Schlafräumen
* Internet- und Glasfaseranschluss (Magenta & A1 verfügbar)
* 3-fach verglaste Kunststofffenster
* Video-Gegensprechanlage
* Eigene Kellerabteile für zusätzlichen Stauraum
* Barrierefreier Zugang dank behindertengerechtem Aufzug
* Sonnenschutz in Form außenliegender Rollläden

Wohnung Stiege 1 Top 8:

Diese charmante Wohnung überzeugt durch eine durchdachte Raumaufteilung und ein angenehmes Wohngefühl. Der Vorraum bietet ausreichend Platz für Garderobe und Stauraum. Angrenzend befindet sich ein gemütliches Zimmer, das sich ideal als Schlaf-, Arbeits- oder Gästezimmer nutzen lässt. Das Herzstück der Wohnung ist die offene Wohnküche, die genug Raum für Kochen, Essen und Wohnen bietet.

Das Badezimmer ist modern ausgestattet und bietet genügend Platz für Komfort im Alltag. Ein separates WC sorgt für zusätzlichen Komfort.

Ein echtes Highlight der Wohnung ist die großzügige Terrasse, die zu entspannten Stunden im Freien einlädt. Der dazugehörige Garten bietet viel Platz für Erholung, Spiel und Gestaltungsmöglichkeiten.

 

Einige Bilder des Inserats wurden zum Zweck der besseren Visualisierung digital mit KI möbliert. Die Wohnung wird unmöbliert übergeben.

 

Kostenübersicht:

Der monatliche Mietpreis inklusive Betriebskosten und USt. beläuft sich auf € 879,00.

Kaution: 3 Bruttomonatsmieten

Bei dem angeführten Mietpreis handelt es sich um eine Kaltmiete, somit sind sämtliche Energiekosten wie Warmwasser-, Heiz- und Stromkosten nicht inkludiert.

 

Bei Bedarf besteht auch die Möglichkeit einen Stellplatz in der hauseigenen Tiefgarage anzumieten.

Der Mietpreis für den PKW-Stellplatz beläuft sich auf 130,00 Euro inkl. 20% USt..

 

Infrastruktur:

In nur wenigen Gehminuten erreichen Sie die U-Bahnlinie U3 am Enkplatz, von wo aus Sie in rund 12 Minuten die Wiener Innenstadt erreichen. Darüber hinaus befinden sich in der näheren Umgebung mehrere Straßenbahnlinien (z. B. Linie 71 Richtung Zentrum), Busverbindungen sowie der Bahnhof Simmering, der Ihnen schnellen Zugang zu Regionalzügen und dem S-Bahn-Netz ermöglicht.

Die hervorragende Anbindung wird durch die verkehrsgünstige Lage zusätzlich unterstrichen – egal ob öffentlich oder mit dem Auto unterwegs, Sie sind in alle Richtungen optimal verbunden.

Auch in puncto Nahversorgung lässt die Umgebung keine Wünsche offen: Ein BILLA PLUS sowie weitere Supermärkte, Apotheken, Drogeriemärkte, Bäckereien, Cafés und zahlreiche Restaurants sind bequem fußläufig erreichbar. Für größere Einkäufe oder Shoppingtouren stehen zudem das Simmeringer Einkaufszentrum (SES) sowie der EKZ-Zentrum Simmering nur wenige Minuten entfernt zur Verfügung.

Für Familien besonders attraktiv: In direkter Umgebung befinden sich mehrere Kindergärten, Volksschulen sowie weiterführende Bildungseinrichtungen – alles bequem erreichbar und ideal für den Alltag mit Kindern.

Auch das Freizeitangebot kommt nicht zu kurz: Der nahegelegene Herderpark, der Braunhuberpark sowie das Simmeringer Bad bieten vielfältige Möglichkeiten zur Erholung, Bewegung und für Spiel & Spaß im Grünen. Sportplätze, Radwege und Grünflächen machen das Wohnumfeld zusätzlich lebens- und liebenswert.

 

Energieausweis:

Der Referenz-Heizwärmebedarf beträgt 20,81 kWh/m²a und entspricht somit der Klasse A.

Der fGEE beträgt 0,73 und entspricht somit sogar der Klasse A.

 

Für Fragen bzw. Besichtigungen steht Ihnen Herr Stefan Djukic sehr gerne unter 0664 536 84 47 oder via E-Mail unter Djukic@teamneunzehn.at zur Verfügung.

Wir weisen darauf hin, dass zwischen dem Vermittler und dem zu vermittelnden Dritten ein familiäres oder wirtschaftliches Naheverhältnis besteht.

Der Immobilienmakler erklärt, dass er – entgegen dem in der Immobilienwirtschaft üblichen Geschäftsgebrauch des Doppelmaklers – einseitig nur für den Vermieter tätig ist.

"Leben braucht Raum" * T19-RE Real Estate GmbH & Co KG * www.teamneunzehn.at [https://www.teamneunzehn.at]

Doppelmakler

Wir werden als Immobilienmakler kraft bestehenden Geschäftsgebrauchs als Doppelmakler tätig und haben sohin beide Seiten des Vertrages (Verkäufer-Käufer, Vermieter-Mieter) zu unterstützen.

Wirtschaftliches Naheverhältnis

Es wird bekannt gegeben, dass folgendes wirtschaftliches Naheverhältnis zwischen der teamneunzehn-Gruppe und dem Verkäufer/der vermietenden Partei besteht: ständige und dauerhafte Beauftragung mit der Vermittlung des bestehenden Immobilienportfolios

Haftungserklärung zum Inserat

Irrtum und Änderungen vorbehalten! Sofern es sich bei Bildern um Visualisierungen handelt, können Abänderungen zur tatsächlichen Ausführung resultieren. Wir weisen ausdrücklich darauf hin, dass das auf Fotos oder Visualisierungen ersichtliche Mobiliar bzw. Inventar nicht Bestandteil des inserierten Preises ist.

 

 

Infrastruktur / Entfernungen

Gesundheit
Arzt <125m
Apotheke <125m
Klinik <1.050m
Krankenhaus <2.525m

Kinder & Schulen
Schule <300m
Kindergarten <200m
Universität <1.475m
Höhere Schule <1.675m

Nahversorgung
Supermarkt <100m
Bäckerei <175m
Einkaufszentrum <350m

Sonstige
Geldautomat <125m
Bank <125m
Post <125m
Polizei <225m

Verkehr
Bus <100m
U-Bahn <125m
Straßenbahn <200m
Bahnhof <125m
Autobahnanschluss <1.125m

Angaben Entfernung Luftlinie / Quelle: OpenStreetMap
Beschreibung weiterlesen

Lage und Verkehrsanbindung

Enkplatz, Simmeringer Hauptstraße, Mautner Markhof Gasse

Energieeffizienz

HWB:
20,81 kWh/(m²*a)
HWB Klasse:
A
fGEE:
0,73
fGEE Klasse:
A
Energieausweisart:
Energiebedarfs-ausweis

Grundriss

Lageplan

1110 Wien | Wien 11., Simmering

Lade...
Stefan Djukic

Stefan Djukic
Immobilienvermittlung

teamneunzehn-Gruppe

Anrufen
Lade...

Fotomix

Bild 1 Bild 2 Bild 3 Bild 4 Bild 5 Bild 6 Bild 7 Bild 8 Bild 9 Bild 10 Bild 11 Bild 12 Bild 13 Bild 14 Bild 15 Bild 16 Bild 17 Bild 18 Bild 19 Bild 20 Bild 21 Bild 22 Bild 23 Bild 24 Bild 25 Bild 26 Bild 27 Bild 28