NEU - Familienfreundliche 3-Zimmer-Wohnung am Laaer Berg – Grün & ruhig!

Wohnung zur Miete in 1100 Wien - Gesamtmiete: 1.249,38 € / Objektnummer: 1750522
Ausstattung: Boden Fahrstuhl Bad Tiefgarage Parkplatz Fahrradraum Zentralheizung Balkon Loggia
Schlafzimmer VS
Schlafzimmer
Wohnzimmer
Kochnische
Bad
WC
Außensicht
Außensicht
Außensicht
Außensicht

Preisinformationen

Gesamtmiete:
1.249,38 € / Monat
Betriebskosten netto:
176,37 € / Monat
Umsatzsteuer:
113,58 €
Kaution:
3 Bruttomonatsmieten
Provision:
Gemäß Erstauftraggeberprinzip bezahlt der Abgeber die Provision.

Fakten

Objektnummer:
1750522
Objekttyp:
Wohnung
Balkon:
1
Loggia:
1
Balkonfläche:
0,43 m²
Wohnfläche:
65,94 m²
Loggia Fläche:
8,69 m²
Nutzfläche:
75,06 m²
Gesamtfläche:
75,06 m²
Zimmer:
3
Badezimmer:
1
Toilette:
1
Neubau:
Ja
Zustand:
Neuwertig
Verfügbarkeit:
Verfügbar

Beschreibung

Wohnen am Laaer Berg – Lebensqualität zwischen Stadt und Natur!

Inmitten des 10. Wiener Bezirks entsteht in der Laaer-Berg-Straße 110 ein modernes Neubauprojekt, das urbanes Wohnen mit naturnahem Lebensgefühl verbindet. Nur wenige Schritte vom weitläufigen Laaer Wald entfernt, bieten die Mietwohnungen durchdachte Raumkonzepte, viel Tageslicht und private Freiflächen wie Balkon, Loggia oder Garten – ideal für entspannte Stunden im Freien.

Die Ausstattung lässt keine Wünsche offen: Eine moderne Einbauküche ist in jeder Wohnung inkludiert. Zusätzlichen Stauraum schafft ein privates Kellerabteil, das zu jeder Einheit gehört. Für den Alltag besonders praktisch: Im Erdgeschoss befinden sich Gemeinschaftsflächen wie ein großzügiger Fahrrad- und Kinderwagenraum, eine Waschküche sowie separate Räume zur gemeinsamen Nutzung.

Wer mit dem Auto unterwegs ist, kann optional einen Stellplatz in der Tiefgarage um € 120,– monatlich anmieten.

Die Lage überzeugt durch eine hervorragende Nahversorgung – Supermärkte, Apotheken und weitere Einrichtungen des täglichen Bedarfs sind rasch erreichbar. Dank der guten Anbindung an die U1 sowie mehrere Buslinien gelangen Sie zügig ins Stadtzentrum. Auch über die nahe gelegene A23 erreichen Sie die SCS in rund 20 Minuten – eines der größten Einkaufszentren Österreichs mit umfangreichem Gastronomie- und Freizeitangebot.

Laaer Berg Straße 110 – für alle, die modernes Wohnen mit Naturbezug und guter Infrastruktur schätzen.

 

Das Projekt überzeugt durch folgende Highlights:

* Toplage in Grünruhelage nahe dem Laaer Wald
* Helle, gut geschnittene Grundrisse mit optimaler Raumnutzung
* Freiflächen: Balkon, Loggia oder Garten bei jeder Einheit
* Voll ausgestattete Einbauküche inklusive
* Hochwertiger Eichenparkettboden in allen Wohnräumen
* Großformatige Fliesen in Bad und WC
* Sicherheitseingangstüre für zusätzlichen Schutz
* Mehrfachisolierverglaste Fenster
* Außenliegender Sonnenschutz 
* Nachhaltige Wärmeerzeugung mittels Fernwärme
* Kellerabteil zu jeder Wohnung
* Fahrrad- und Kinderwagenraum, Waschküche und Gemeinschaftsflächen
* Tiefgaragenstellplätze optional für € 120,– / Monat verfügbar
* Sehr gute Nahversorgung (Supermärkte, Apotheken etc.) fußläufig erreichbar
* Schnelle Anbindung an U1, Buslinien und die A23
* Shopping City Süd (SCS) in ca. 20 Minuten erreichbar

 

 

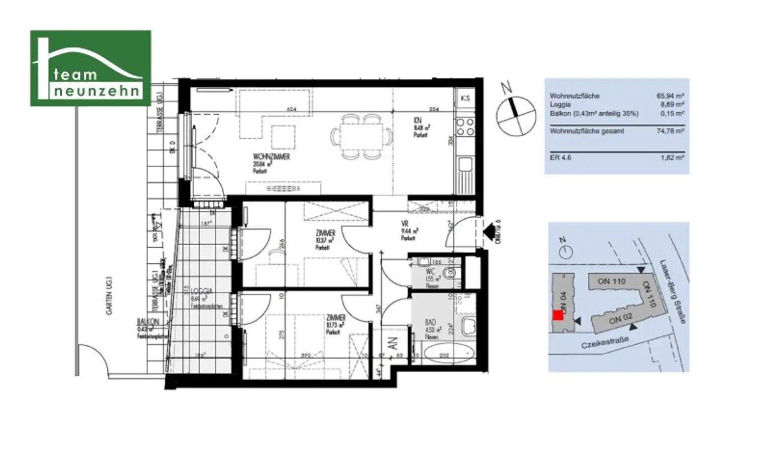
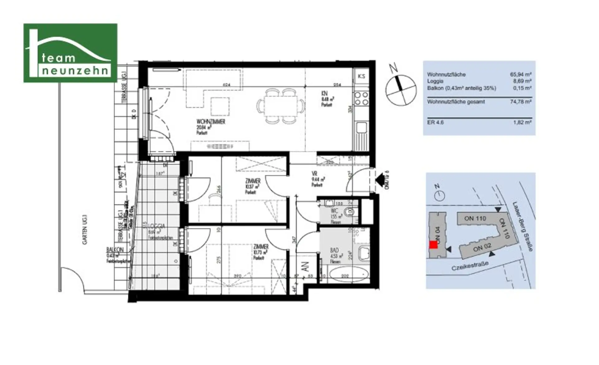
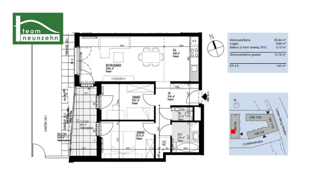
Wohnung Stiege 2 Top 6

Die Wohnung mit ca. 65,94 m² Wohnfläche und ca. 8,69 m² Loggia und 0,43 m² Balkon liegt im Erdgeschoss und gliedert sich in folgende Raumaufteilung:

* Vorraum: ca. 9,44 m²
* Wohnküche mit Küchennische: ca. 29,32 m²
* Zimmer 1: ca. 10,37 m²
* Zimmer 2: ca. 10,73 m²
* Bad: ca. 4,53 m²
* WC: ca. 1,55 m²

Der Wohnung ist ein Kellerabteil zugeordnet.

 

Wir weisen höflichst darauf hin, dass es sich bei den Fotos anbei um Musterfotos handelt. Die Wohnung wird gleich oder gleichwertig übergeben.

 

Einige Bilder des Inserats wurden zum Zweck der besseren Visualisierung digital mit KI möbliert. Die Wohnung wird unmöbliert übergeben.

 

Kostenübersicht:

monatliche Miete: 1.249,38 € (inkl. BK und USt)

Kaution: 3 Bruttomonatsmieten

Bei dem angeführten Mietpreis handelt es sich um die Kaltmiete, somit sind sämtliche Energiekosten wie Warmwasser-, Heiz- und Stromkosten nicht inkludiert!

 

Nebenkosten:

Mietvertragserrichtung: € 108,00 inkl. 20% USt.

 

Infrastruktur:

Die Laaer-Berg-Straße 110 punktet mit einer sehr guten Nahversorgung: Supermärkte, Apotheken, Kindergärten und Schulen sind alle bequem erreichbar. Die öffentliche Anbindung über U1 (Altes Landgut/Oberlaa) sowie die Buslinien 68A, 68B und 15A sorgt für eine schnelle Verbindung ins Stadtzentrum.

Mit dem Auto erreichen Sie die A23 in wenigen Minuten – die SCS ist in ca. 20 Minuten erreichbar. Eine ideale Lage für alle, die ruhiges Wohnen mit urbaner Erreichbarkeit verbinden möchten.

 

Öffentliche Verkehrsanbindungen:

Schnelle Anbindung durch die Buslinien 68A und 68B sowie die U1-Station Altes Landgut, die fußläufig gut erreichbar ist.

 

Energieausweis:

Der Heizwärmebedarf beträgt 23,51 kWh/m²a, welcher der Klasse A entspricht.

Der fGEE beträgt 0,83 und entspricht somit sogar der Klasse A.

 

Für Fragen bzw. Besichtigungen steht Ihnen Herr Stefan Djukic sehr gerne unter 0664 536 84 47 oder via E-Mail unter Djukic@teamneunzehn.at zur Verfügung.

Wir weisen darauf hin, dass zwischen dem Vermittler und dem zu vermittelnden Dritten ein familiäres oder wirtschaftliches Naheverhältnis besteht.

Der Immobilienmakler erklärt, dass er – entgegen dem in der Immobilienwirtschaft üblichen Geschäftsgebrauch des Doppelmaklers – einseitig nur für den Vermieter tätig ist.

"Leben braucht Raum" * T19-RE Real Estate GmbH & Co KG * www.teamneunzehn.at [https://www.teamneunzehn.at]

Doppelmakler

Wir werden als Immobilienmakler kraft bestehenden Geschäftsgebrauchs als Doppelmakler tätig und haben sohin beide Seiten des Vertrages (Verkäufer-Käufer, Vermieter-Mieter) zu unterstützen.

Wirtschaftliches Naheverhältnis

Es wird bekannt gegeben, dass folgendes wirtschaftliches Naheverhältnis zwischen der teamneunzehn-Gruppe und dem Verkäufer/der vermietenden Partei besteht: ständige und dauerhafte Beauftragung mit der Vermittlung des bestehenden Immobilienportfolios

Haftungserklärung zum Inserat

Irrtum und Änderungen vorbehalten! Sofern es sich bei Bildern um Visualisierungen handelt, können Abänderungen zur tatsächlichen Ausführung resultieren. Wir weisen ausdrücklich darauf hin, dass das auf Fotos oder Visualisierungen ersichtliche Mobiliar bzw. Inventar nicht Bestandteil des inserierten Preises ist.

 

 

Infrastruktur / Entfernungen

Gesundheit
Arzt <700m
Apotheke <625m
Klinik <1.550m
Krankenhaus <3.300m

Kinder & Schulen
Schule <425m
Kindergarten <625m
Universität <950m
Höhere Schule <3.025m

Nahversorgung
Supermarkt <325m
Bäckerei <825m
Einkaufszentrum <1.225m

Sonstige
Geldautomat <1.200m
Bank <1.200m
Post <1.250m
Polizei <725m

Verkehr
Bus <250m
U-Bahn <675m
Straßenbahn <725m
Bahnhof <675m
Autobahnanschluss <550m

Angaben Entfernung Luftlinie / Quelle: OpenStreetMap
Beschreibung weiterlesen

Lage und Verkehrsanbindung

Nähe: Böhmischer Prater, Löwygrube, Erholungsgebiet Laaer Wald, Kurpark Oberlaa, Südosttangente A23

Böhmischer Prater, Löwygrube, Erholungsgebiet Laaer Wald, Kurpark Oberlaa, Südosttangente A23

Energieeffizienz

HWB:
23,51 kWh/(m²*a)
HWB Klasse:
A
fGEE:
0,83
fGEE Klasse:
A
Energieausweisart:
Energiebedarfs-ausweis

Grundriss

Lageplan

1100 Wien | Wien 10., Favoriten

Lade...
Stefan Djukic

Stefan Djukic
Immobilienvermittlung

teamneunzehn-Gruppe

Lade...

Fotomix

Schlafzimmer VS Schlafzimmer Wohnzimmer Kochnische Bad WC Bild 7 Außensicht Außensicht Außensicht Außensicht Bild 12 Bild 13