Familienfreundliches Miethaus mit viel Platz & Garten in Kledering

Haus zur Miete in 2320 Schwechat - Gesamtmiete: 2.160,73 € / Objektnummer: 2068
Ausstattung: Bad Möbliert Garage Parkplatz Zentralheizung

Preisinformationen

Gesamtmiete:
2.160,73 € / Monat
Betriebskosten netto:
160,73 € / Monat
Kaution:
6.482,19 €
Provision:
Gemäß Erstauftraggeberprinzip bezahlt der Abgeber die Provision.

Fakten

Objektnummer:
2068
Objekttyp:
Haus
Keller Fläche:
66 m²
Wohnfläche:
178 m²
Grundstücksfläche:
500 m²
Zimmer:
5
Badezimmer:
2
Toilette:
2
Baujahr:
1985
Neubau:
Ja
Zustand:
Gepflegt
Verfügbarkeit:
Verfügbar
Verfügbar ab:
ab sofort

Beschreibung

Hier fühlt sich die ganze Familie wohl | Auch Haustiere sind herzlich willkommen

Im sehr gut angebundenen Schwechater Stadtteil Kledering befindet sich dieses gepflegte Einfamilienhaus mit großzügigem Garten. Sie sind eine große Familie und haben vielleicht sogar ein Haustier? Dann könnte dieses Haus genau das Richtige für Sie sein.
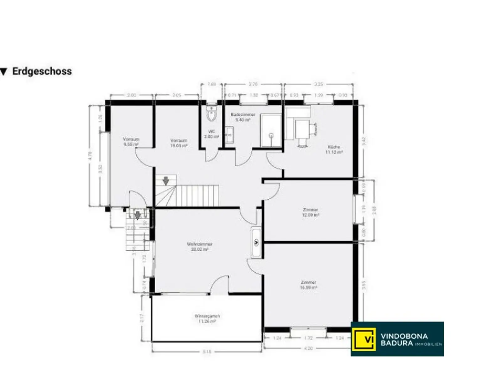
Das Erdgeschoss verfügt über ein Esszimmer mit Einbauküche, ein Wohnzimmer mit Zugang zum Wintergarten und einem Kachelofen, sowie zwei weitere Zimmer, die sich ideal als Schlaf- oder Kinderzimmer nutzen lassen.
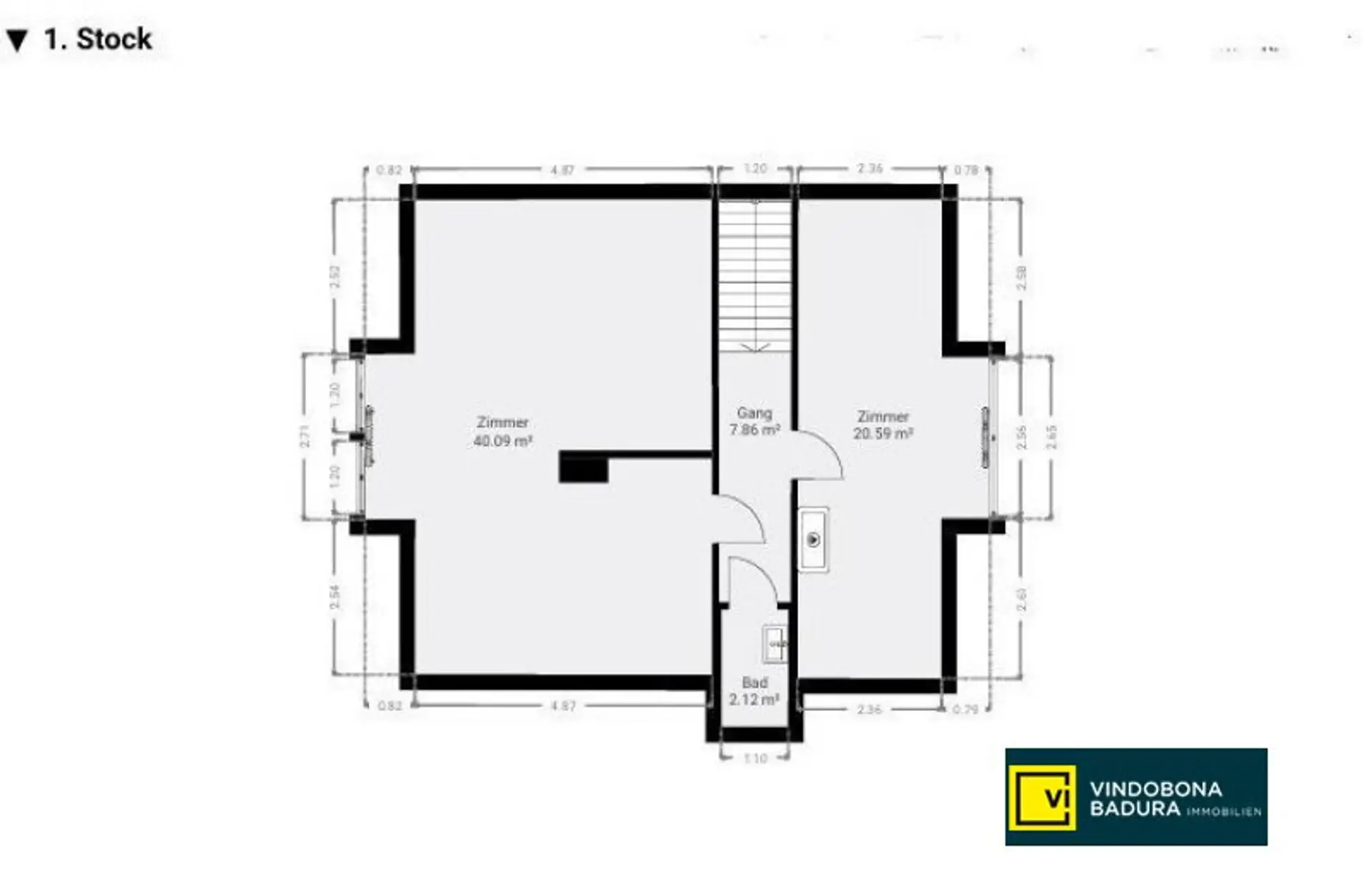
Im Obergeschoss befinden sich zwei Zimmer, die flexibel als Schlafräume, Homeoffice, Gästezimmer oder Hobbyräume genutzt werden können.
Der Garten bietet ausreichend Platz zum Genießen, Spielen und Gärtnern.
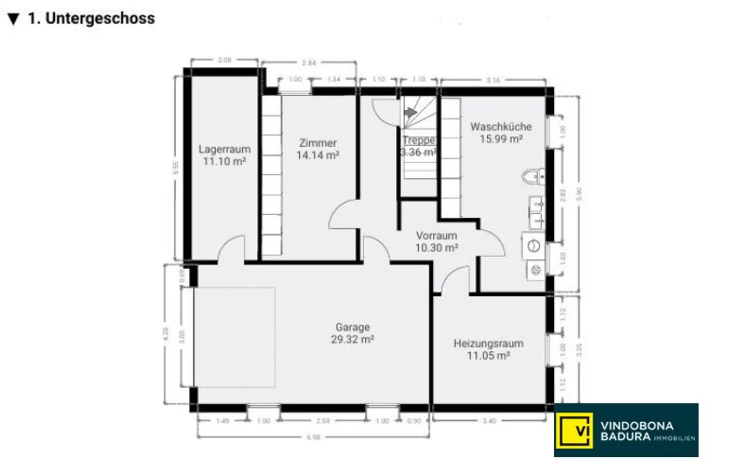
Der Keller verfügt über umfangreiche Lagerflächen, eine Waschküche und ermöglicht den Zugang zur Garage.

Details auf einen Blick:

* Wohnfläche: 178m²
* Grundstücksfläche: 500m²
* Keller: 66 m²
* Wohnzimmer + 4 Schlafzimmer
* Außenrollläden
* Gemütlicher Kachelofen
* Große Garage mit elektrischem Tor
* Sofort verfügbar

Die Raumaufteilung gliedert sich wie folgt: 
Erdgeschoss: Vorraum 9,55 m², Vorraum mit Garderobenschrank 19,03 m², Wohnzimmer 20,02 m², Badezimmer 5,4 m², WC 2,00 m², Küche 11,12 m², Zimmer 12,09 m², Zimmer 16,59 m², Wintergarten 11,26 m²
Obergeschoss: Zimmer 40,09 m², Zimmer 20,59 m², Gang 7,86 m², Bad mit WB 2,12 m²
Kellergeschoss: Lagerraum 11,10 m², Lagerraum 14,14 m², Vorraum 10,30 m², Waschküche 15,99 m², Heizungsraum 11,05m², Garage 29,32 m²

***Lassen Sie sich zu einer Besichtigung einladen und vereinbaren Sie mit uns einen individuellen Termin***

 

Der Immobilienmakler erklärt, dass er – entgegen dem in der Immobilienwirtschaft üblichen Geschäftsgebrauch des Doppelmaklers – einseitig nur für den Vermieter tätig ist.
Beschreibung weiterlesen

Lage und Verkehrsanbindung

Kledering bietet eine gute Infrastruktur mit Kindergarten, Bahnhof mit Anbindung nach Wien sowie weiteren öffentlichen Verkehrsmitteln Richtung Schwechat und zur U1-Station Oberlaa. Einkaufsmöglichkeiten sind in wenigen Fahrminuten erreichbar.

Schwechat, Wien-Oberlaa, Wien-Simmering, Bahnhof, Autobahn S1

Energieeffizienz

HWB:
159 kWh/(m²*a)
HWB Klasse:
E
fGEE:
2,27
fGEE Klasse:
D
Energieausweisart:
Energiebedarfs-ausweis
Gültig bis:
10.12.2035

Grundrisse

Lageplan

2320 Schwechat | Bruck an der Leitha

Lade...
Jana Messerle

Jana Messerle
Immobilienberaterin

Badura Immobilien GmbH

Lade...

Fotomix

Bild 1 Bild 2 Bild 3 Bild 4 Bild 5 Bild 6 Bild 7 Bild 8 Bild 9 Bild 10 Bild 11 Bild 12 Bild 13 Bild 14 Bild 15