NEU - Familienfreundliches Wohnen am Stoober Bach - Modern, hell, naturnah - Miete mit Kaufoption

Haus zur Miete in 7344 Stoob - Gesamtmiete: 1.052,84 € / Objektnummer: 133096_1
Ausstattung: Boden Bad Gäste-WC Abstellraum Fußbodenheizung Terrasse Garten
Gesamt vorne 2
BT1 vorne 1
WZ 2
WZ vorne ohne Stiege 2
WZ 4
DH Reihe 1
Ter vordere Häuser 1
Bad
Galerie
SZ 4
SZ 3
BT1 vorne 3
BT1 vorne Eingang 1
BT1 Parkplätze
Vorraum
Haus 14 online

Preisinformationen

Gesamtmiete:
1.052,84 € / Monat
Nettomiete:
957,13 € / Monat
Umsatzsteuer:
95,71 €

Fakten

Objektnummer:
133096_1
Objekttyp:
Haus
Terrasse:
1
Wohnfläche:
118,51 m²
Gartenfläche:
119,78 m²
Zimmer:
5
Schlafzimmer:
4
Badezimmer:
1
Toilette:
2
Baujahr:
2025
Zustand:
Erstbezug
Verfügbarkeit:
Verfügbar

Beschreibung

Sie lieben das Besondere,.....

.... schätzen die Natur und möchten doch modern wohnen mit viel Platz für die Familie? Genau hier können Sie all Ihre Wohnträume verwirklichen!

In ruhiger Lage von Stoob, direkt am Ufer des Stoober Bachs, warten diese 16 Doppelhaushälften, die in massiver, energieeffizienter Bauweise errichtet wurden, auf ihre Bewohner.
Alle Einheiten verfügen über 5 Zimmer, Terrassen und Eigengärten. Bei der Konzeptionierung wurde auf optimale Nutzbarkeit geachtet, was sich in praktischen und großzügigen Grundrissen widerspiegelt. Wohnkomfort und Qualität stehen im Vordergrund.

Helle Wohnräume, wohnliche Eichenparkettböden, elegantes Feinsteinzeug, hochwertige Sanitäranlagen und elektrische Außenjalousien repräsentieren die qualitätvolle Ausstattung.

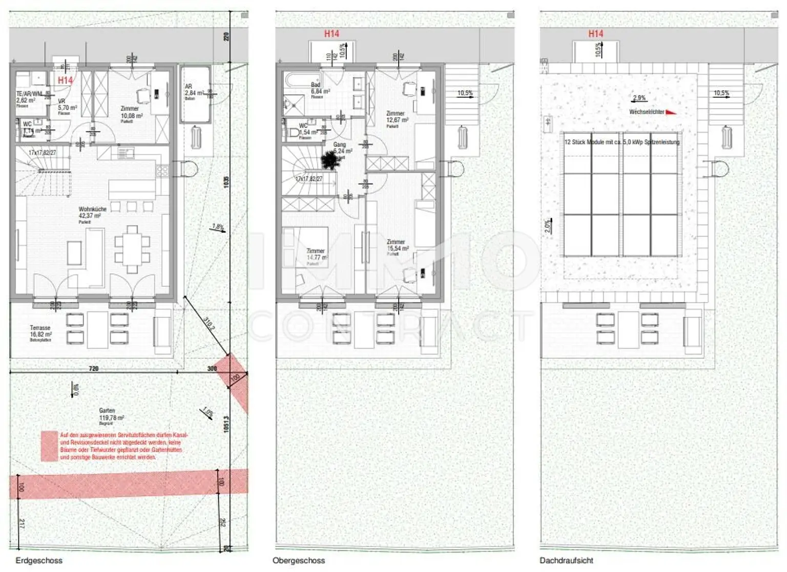
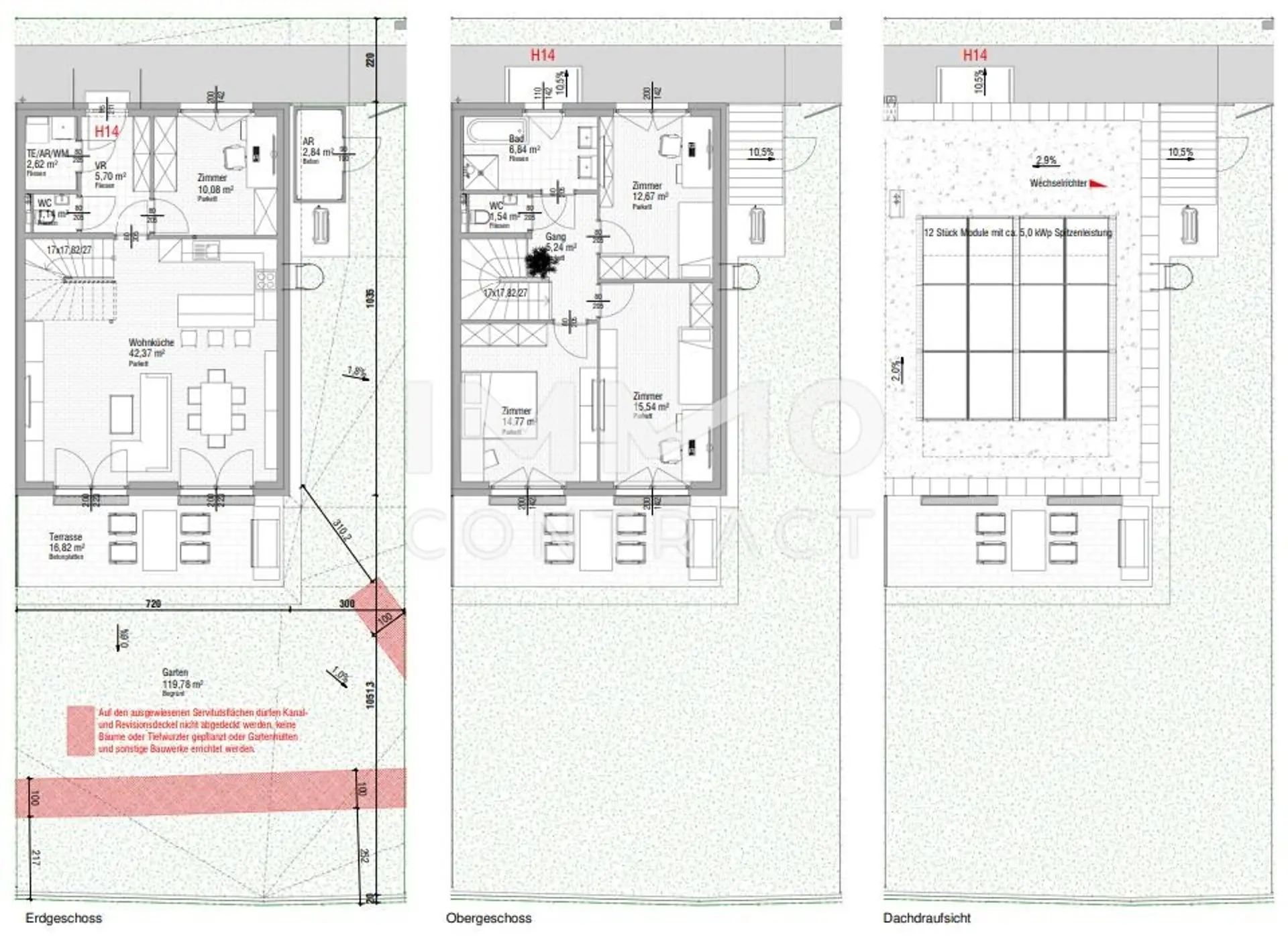
Das Erdgeschoß besteht aus einem großen Wohn-/Esszimmer mit integrierter Küche, Gäste-/Arbeitszimmer, Technikraum, Vorzimmer und WC. Die Küche ist nicht möbliert - so haben Sie die Möglichkeit, Ihre eigenen Einrichtungsideen umzusetzen.
Über eine offene Holztreppe gelangen Sie ins 1. Obergeschoß mit 3 großzügigen Schlafzimmern, geräumigem Bad mit Badewanne, Dusche, Doppelwaschbecken und Fenster, und einem separaten WC.

Geheizt wird mittels Luftwärmepumpe - eine Fußbodenheizung sorgt für Behaglichkeit, die zentrale Lüftungsanlage mit Wärmerückgewinnung garantiert frische Luft und ein gesundes Raumklima. Die Photovoltaikanlage sorgt für mehr Unabhängigkeit vom Stromanbieter und hält Ihre Energiekosten auf einem Niedrigstand.

Große Eigengärten laden zur Erholung vom Alltagsstress ein - eine Ruheoase für die ganze Familie!
Jeder Einheit sind 2 Pkw-Stellplätze zugeordnet - jeweils in einem Carport und einem Abstellplatz im Freien.

Haus 14
Dieses Haus hat eine Wohnfläche von 118,51 m2, der Garten ist 119,78 m2 groß und befindet sich direkt am Stoober Bachufer mit grandiosem Grünblick, der Ruhe garantiert.

Es handelt sich hierbei um ein freifinanziertes Haus mit Kaufoption:
- Finanzierungsbeitrag € 59.304,41 - Miete € 1.052,84
Ein Sofortkauf ist ebenfalls möglich.

Vereinbaren Sie noch heute einen unverbindlichen Besichtigungstermin. Ich freue mich, Ihnen dieses traumhafte Projekt näher bringen zu dürfen!

Frau Simone VASICEK 0676 / 841 420 605
Beschreibung weiterlesen

Lage und Verkehrsanbindung

Die Marktgemeinde Stoob mit ihren ca. 1,400 Einwohnern liegt im Bezirk Oberpullendorf, mitten im reizvollen Mittelburgenland. Die Lage ist geprägt von sanften Hügeln, Streuobstwiesen und dem Landschaftsschutzgebiet "Stoober Biri", das als 110 Hektar großes Natur- und Erholungsgebiet einen hohen Freizeit- und Erlebniswert bietet. Die Umgebung ist ruhig, grün und ideal für Menschen, die naturnah wohnen, aber dennoch eine gute Grundversorgung erreichen möchten.

Stoob ist mit dem Auto über die S31 rasch zu erreichen, wodurch Oberpullendorf (7 Min.), Mattersburg (20 Min.), Eisenstadt (30 Min.) und auch Wiener Neustadt (35 Min.) gut ansteuerbar sind. Innerorts bestehen Busverbindungen, unter anderem zum nahegelegenen Einkaufszentrum Stoob, das wichtige Nahversorgungs- und Dienstleistungsbereiche abdeckt.

Im Ort selbst stehen Kindergarten, Volksschule und eine Neue Mittelschule zur Verfügung, während weiterführende Schulen in Oberpullendorf erreichbar sind.

Sport- und Freizeitangebote wie Wanderwege, Radstrecken, Tennisanlagen sowie naturnahe Erholungsmöglichkeiten rund um das „Biri“ machen Stoob besonders für Familien attraktiv. Aber auch Weinliebhaber finden in näherer Umgebung Buschenschenken und Weingüter.

Stoob

Energieeffizienz

Gebäudeart:
listing.status.epcBuildingType_wohn
Energieausweisart:
Energiebedarfs-ausweis

Grundriss

Lageplan

7344 Stoob | Oberpullendorf

Lade...
Simone Vasicek

Simone Vasicek
Immobilienfachberaterin

IMMOcontract Immobilien Vermittlung GmbH

Anrufen
Lade...

Fotomix

Gesamt vorne 2 BT1 vorne 1 WZ 2 WZ vorne ohne Stiege 2 WZ 4 DH Reihe 1 Ter vordere Häuser 1 Bad Galerie SZ 4 SZ 3 BT1 vorne 3 BT1 vorne Eingang 1 BT1 Parkplätze Vorraum