NEU - FAMILIENTRAUM mit Terrasse ! TOP AUSSTATTUNG ! ERSTBEZUG !

Wohnung zum Kauf in 1090 Wien - Kaufpreis: 599.000 € / Objektnummer: 1939/133012
Ausstattung: Barrierefrei Boden Fahrstuhl Bad Gäste-WC Möbliert Klimaanlage Fahrradraum Fußbodenheizung Terrasse
Tolle Wohnküche
Top Designer Küche
Frühstücksbar
Duschbad mit WC
Gäste WC
Moderner Wohnraum
Einbaumöbel im 1. Schlafzimmer
Einbauten in den Schlafzimmern
Hofseitige Terrasse
Luxusküche mit Bar
U Bahn vis a vis
Von der Terrasse in den Vorraum
Vorraum
Hereinspaziert

Preisinformationen

Kaufpreis:
599.000 €
Kaufpreis/m²
6.845,71 €
Betriebskosten netto:
185,00 € / Monat
Heizkosten netto:
34,00 €
Vermittlungsprovision:
Ja
Provision:
3% des Kaufpreises zzgl. 20% USt.

Fakten

Objektnummer:
1939/133012
Objekttyp:
Wohnung
Terrasse:
1
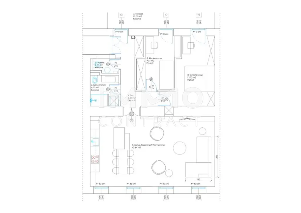
Wohnfläche:
80 m²
Zimmer:
3
Badezimmer:
1
Toilette:
1
Baujahr:
1907
Letzte Sanierung:
2025
Zustand:
Erstbezug
Verfügbarkeit:
Verfügbar

Beschreibung

In einem gepflegten Altbau Ecke Nussdorfer Straße und Währinger Gürtel wurde diese 3 Zimmer Wohnung mit Terrasse komplett umgebaut und hochwertig ausgestattet.
Sie können einziehen und glücklich sein- es wurde an alles gedacht.

Im 1. Liftstock erwartet Sie dieser besondere Familientraum mit 3 Zimmern und einer ca. 15 m² hofseitigen Terrasse, die zu Ihrer Entspannung dient.

Ihr Wohnkomfort beinhaltet ein geräumiges Entree mit
Einbaukästen , alle Zimmer zentral begehbar und hochwertige Top Ausstattung !

Hofseitig befinden sich 2 ruhige Schlafzimmer, die komplett mit Tischler Einbauten ausgestattet sind. Von beiden Zimmern aus können Sie auf Ihre Terrasse gehen.
Ein Luxusduschbad mit WC sowie ein extra Gäste WC werden Sie ebenso erfreuen.

Das Highlight ist das große Wohnzimmer mit Einbauten und die Luxusküche mit Frühstücksbar. Sie hören hier keine Verkehrsgeräusche, da eigene Schallschutzfenster eingebaut sind.
Mit einer Raumhöhe von ca. 3,20 m blieb der Altbaucharme erhalten., der noch durch den wunderschönen dunklen Eichen Parkettboden unterstrichen wird.

Die Fußbodenheizung vermittelt Ihnen ein wohliges Gefühl im Winter und Sommer und zusätzlich finden Sie noch eine Klimaanlage.
Die Technik mit Luft/Wärmepumpe spiegelt den aktuellen hochwertigen Zustand dieser Wohnung wieder.

Warten Sie nicht lange und vereinbaren Sie rasch einen Besichtigungstermin mit mir. Tel: 0676 841 420 587 !

Der Vermittler ist als Doppelmakler tätig.

Infrastruktur / Entfernungen

Gesundheit
Arzt <500m
Apotheke <500m
Klinik <500m
Krankenhaus <1.500m

Kinder & Schulen
Schule <500m
Kindergarten <500m
Universität <500m
Höhere Schule <1.000m

Nahversorgung
Supermarkt <500m
Bäckerei <500m
Einkaufszentrum <2.000m

Sonstige
Geldautomat <500m
Bank <500m
Post <500m
Polizei <500m

Verkehr
Bus <500m
U-Bahn <500m
Straßenbahn <500m
Bahnhof <500m
Autobahnanschluss <1.500m

Angaben Entfernung Luftlinie / Quelle: OpenStreetMap
Beschreibung weiterlesen

Lage und Verkehrsanbindung

Die Infrastruktur ist perfekt ( U-Bahn U6 vor der Haustüre, Straßenbahnlinien 37,38 sowie Buslinien 35 A und 37 A ) und die Nahversorgung bietet alles, was Sie benötigen.

Im Haus befindet sich auch eine Apotheke und Billa, Hofer, Pagro sind in unmittelbarer Nähe.

Dies ist Ihr idealer Rückzugsort im lebendigen Stadt Leben Wiens!

Energieeffizienz

HWB:
126 kWh/(m²*a)
HWB Klasse:
D
fGEE:
3,34
Energieausweisart:
Energiebedarfs-ausweis
Gültig bis:
16.12.2029

Grundriss

Lageplan

1090 Wien | Wien 9., Alsergrund

Lade...
Silvia Reischitz-Martys

Silvia Reischitz-Martys
Immobilienfachberaterin | Partner der IMMOCONTRACT

IMMOcontract Immobilien Vermittlung GmbH

Lade...

Fotomix

Tolle Wohnküche Top Designer Küche Frühstücksbar Duschbad mit WC Gäste WC Moderner Wohnraum Einbaumöbel im 1. Schlafzimmer Einbauten in den Schlafzimmern Hofseitige Terrasse Luxusküche mit Bar U Bahn vis a vis Von der Terrasse in den Vorraum Vorraum Hereinspaziert