NEU - Familientraumwohnung mit Terrassen in NEUWALDEGG

Wohnung zum Kauf in 1170 Wien - Kaufpreis: 1.530.000 € / Objektnummer: 1609/46951
Ausstattung: Fahrstuhl Wohnküche / offene Küche Bad Gäste-WC Klimaanlage Garage Parkplatz Fahrradraum Zentralheizung Balkon Terrasse

Preisinformationen

Kaufpreis:
1.530.000 €
Betriebskosten netto:
362,58 € / Monat
Heizkosten netto:
220,00 €
Garage Kosten brutto:
22,24 €
Vermittlungsprovision:
Ja
Provision:
3% des Kaufpreises zzgl. 20% USt.

Fakten

Objektnummer:
1609/46951
Objekttyp:
Wohnung
Balkon:
1
Terrasse:
2
Balkonfläche:
7,65 m²
Keller Fläche:
5,82 m²
Wohnfläche:
152,17 m²
Zimmer:
5
Badezimmer:
2
Stockwerk:
1
Baujahr:
2006
Neubau:
Ja
Zustand:
Neuwertig
Verfügbarkeit:
Verfügbar

Beschreibung

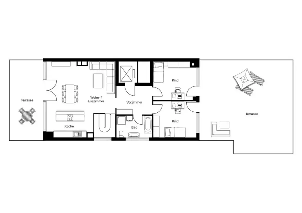
Diese außergewöhnliche Terrassenwohnung im 1. Dachgeschoss vereint großzügiges Raumangebot, hochwertige Ausstattung und eine begehrte Grünruhelage im Herzen von 1170 Wien. Mit einer Wohnfläche von ca. 152,17 m², fünf Zimmern, zwei Terrassen und einem Balkon bietet dieses Zuhause den perfekten Rückzugsort für junge Familien, die urbanes Leben mit naturnahem Wohnkomfort verbinden möchten.

ECKDATEN AUF EINEN BLICK

* Wohnfläche: ca. 152,17 m²
* Zimmer: 5
* Außenflächen: 2 Terrassen (Wohnzimmer Richtung Schwarzenbergallee) + Balkon (überdacht)
* Bäder: 2
* Garage: 1 Stellplatz vorhanden 
* Lage: 1. Dachgeschoss und 2. Dachgeschoss
* Ausblick: Grünblick

 

WOHNKOMFORT AUF 152 M² – LICHT, RAUM UND LEBENSQUALITÄT

Der durchdachte Grundriss schafft ein harmonisches Zusammenspiel aus Offenheit und Privatsphäre. Der großzügige Wohn- und Essbereich mit Kamin bildet das Herzstück der Wohnung – ein Ort für gemeinsame Familienmomente und stilvolle Abende mit Freunden. Große Fensterflächen mit Beschattungsmöglichkeit sorgen für ein lichtdurchflutetes Ambiente und eröffnen einen herrlichen Grünblick.

Fünf vielseitig nutzbare Zimmer bieten ausreichend Platz für Kinderzimmer, Homeoffice oder Gästezimmer. Zwei modern ausgestattete Badezimmer – jeweils mit Fenster – verfügen über Badewanne und Dusche und garantieren Komfort im Alltag.

 

AUSSENFLÄCHEN MIT SELTENHEITSWERT

Zwei großzügige Terrassen, teils mit direktem Blick in den Wald, sowie ein zusätzlicher Balkon erweitern den Wohnraum ins Freie. Genießen Sie entspannte Stunden im Grünen, Frühstück an der frischen Luft oder laue Sommerabende mit Blick ins Grüne – hier wird Lebensqualität spürbar.

 

HOCHWERTIGE AUSSTATTUNG FÜR ANSPRUCHSVOLLES WOHNEN

* Gas-Zentralheizung
* Kamin für behagliche Atmosphäre
* Klimaanlage für angenehmes Raumklima im OG
* Personenaufzug direkt in die Wohnung
* Badezimmer mit Fenster
* Badewanne & Dusche

 

PERFEKTE INFRASTRUKTUR UND VERKEHRSANBINDUNG

Die Lage im 17. Bezirk überzeugt durch ihre ausgezeichnete Infrastruktur und familienfreundliche Umgebung.

Verkehrsanbindungen

Die Lage an der Neuwaldegger Straße ist gut an das Wiener Verkehrsnetz angebunden:

Öffentliche Verkehrsmittel

* Buslinien: 10A, 42A, 43A und 445 halten direkt in der Nähe oder in wenigen Minuten Fußweg. 
* Straßenbahn: Linie 43 erreicht man ca. ~5–10 Minuten zu Fuß – verbindet z. B. Richtung Schottentor/Innenstadt. 
* S-Bahn: Nahe S45 Hernals bzw. Stationen wie Neuwaldegg sind fußläufig erreichbar. 

Von hier aus kommt man schnell ins Stadtzentrum, in andere Bezirke und zur U-Bahn bzw. zu weiteren Anschlüssen ins Wiener Verkehrsnetz. 

Auto

*
Gute Erreichbarkeit über die Hernalser Hauptstraße und Anbindung an die äußeren Ringstraßen bzw. Stadtausfahrten.

 

FREIZEITAKTIVITÄTEN & UMGEBUNG

Direkt und in der Umgebung der Adresse gibt es mehrere Möglichkeiten für Freizeit und Erholung:

In der Nähe

*
Kraxlerei N17 – beliebte Kletterhalle im Stadtteil, ideal für Sport und Fitness

*
Schwarzenbergpark / Pötzleinsdorfer Schlosspark: große, grüne Parkanlagen zum Spazierengehen, Joggen oder Picknicken (typisch für Neuwaldegg und Hernals). 

*
Nahe Wälder und Wanderwege am Wienerwald laden zu Outdoor-Aktivitäten ein.

SONNENSTAND vom Wohnzimmer [https://app.shadowmap.org/?lat=48.14360&lng=16.29410&zoom=15.00&azimuth=0.00000&basemap=map&elevation=nextzen&f=29.0&hud=true&polar=0.52360&time=1772023671115&vq=2]

Kaufpreis: € 1.530.000,-

PKW Garagenplatz: € 40.000,—
Käuferprovision: 3% + 20% USt.

----------------------------------------

RECHTLICHE HINWEISE:
Wir ersuchen um Verständnis, dass wir von Ihnen vor der Zusendung des Exposés die Bestätigung des sofortigen Tätigwerdens sowie die Bestätigung über die Aufklärung des Rücktrittrechtes gemäß FAGG (Fern- und Auswärtsgeschäfte-Gesetz) benötigen. Anschließend freuen wir uns über eine Terminvereinbarung.

Am 20. März 2024 wurde im Nationalrat die temporäre Befreiung von den Gebühren für die Eintragung von Eigentumsrecht und Pfandrecht (Bis 500.000 Euro) im Grundbuch bei Erwerb von Wohnraum beschlossen. (Zu Beachten sind die Bedingungen lt. Bundesministerium für Justiz).

Die Verpflichtung zur Zahlung einer Vermittlungsprovision entsteht für Sie selbstverständlich nur bei erfolgreicher Vermittlung und wird erst mit der Rechtswirksamkeit des vermittelten Geschäftes fällig.
Wir können, aufgrund des bestehenden Geschäftsgebrauchs, als Doppelmakler tätig sein.

Die Angaben beruhen teilweise auf Informationen des Eigentümers und sind ohne Gewähr!

Der Vermittler ist als Doppelmakler tätig.

Infrastruktur / Entfernungen

Gesundheit
Arzt <1.500m
Apotheke <1.000m
Klinik <2.500m
Krankenhaus <2.000m

Kinder & Schulen
Schule <2.000m
Kindergarten <1.000m
Universität <2.000m
Höhere Schule <4.000m

Nahversorgung
Supermarkt <500m
Bäckerei <1.000m
Einkaufszentrum <3.000m

Sonstige
Geldautomat <3.000m
Bank <3.000m
Post <500m
Polizei <3.000m

Verkehr
Bus <500m
U-Bahn <3.000m
Straßenbahn <1.000m
Bahnhof <3.000m
Autobahnanschluss <6.000m

Angaben Entfernung Luftlinie / Quelle: OpenStreetMap
Beschreibung weiterlesen

Lage und Verkehrsanbindung

Neuwaldegg Nähe Marswiese

Marswiese

Energieeffizienz

HWB:
57,9 kWh/(m²*a)
HWB Klasse:
C
fGEE:
2,12
fGEE Klasse:
D
Energieausweisart:
Energiebedarfs-ausweis
Gültig bis:
30.09.2030

Grundrisse

Lageplan

1170 Wien | Wien 17., Hernals

Lade...
Alexandra Fellner

Alexandra Fellner

RE/MAX First - REM Immobilienmakler GmbH & Co KG

Virtuelle Tour

Lade...

Fotomix

Bild 1 Bild 2 Bild 3 Bild 4 Bild 5 Bild 6 Bild 7 Bild 8 Bild 9 Bild 10 Bild 11 Bild 12 Bild 13 Bild 14 Bild 15 Bild 16 Bild 17 Bild 18 Bild 19 Bild 20 Bild 21 Bild 22 Bild 23 Bild 24 Bild 25 Bild 26 Bild 27 Bild 28 Bild 29 Bild 30 Bild 31 Bild 32 Bild 33 Bild 34 Bild 35