NEU - Flexibel gestaltbares Büro mit großen Glasfronten am Donaukanal

Immobilie zum Kauf in 1020 Wien - Kaufpreis: 375.000 € / Objektnummer: 25444
Ausstattung: Teeküche Bad Etagenheizung Fußbodenheizung

Preisinformationen

Kaufpreis:
375.000 €
Betriebskosten netto:
186,59 € / Monat
Vermittlungsprovision:
Ja
Provision:
3% des Kaufpreises zzgl. 20% USt.

Fakten

Objektnummer:
25444
Nutzfläche:
111,32 m²
Badezimmer:
1
Toilette:
1
Verfügbarkeit:
Verfügbar

Beschreibung

Highlights

* Gute Sichtbarkeit
* Flexible Raumgestaltung
* Beeindruckende Raumhöhe
* Große Glasfront 
* Straßenseitiger Eingang

Objektbeschreibung

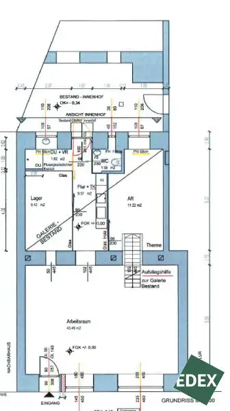
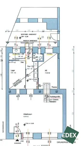
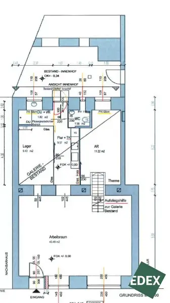
Zum Verkauf gelangt diese moderne ca. 111 m² große Geschäftsfläche in der Schüttelstraße im 2. Wiener Gemeindebezirk. Die Einheit verfügt über eine gut sichtbare Glasfront mit straßenseitigem Eingang und bietet zusätzlich einen Zugang über das Stiegenhaus.

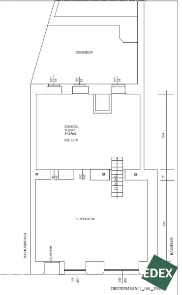
Der großzügige Verkaufs- bzw. Büroraum im vorderen Bereich (ca. 43 m²) überzeugt durch seine offene Gestaltung. Die Galerie schafft zusätzliche Nutzfläche (ca. 34 m²). Die großflächigen Verglasungen sorgen für eine helle, freundliche Atmosphäre und schaffen ein einladendes Ambiente. 

Im rückwärtigen Teil des Objekts befinden sich zwei weitere Räume (jeweils ca. 10 m²), die flexibel als Büro, Werkstatt oder Lager genutzt werden können. Darüber hinaus stehen ein Badezimmer mit Dusche sowie ein separates WC zur Verfügung. Eine voll ausgestattete Teeküche ist ebenfalls vorhanden und erhöht den Nutzungskomfort.

Beheizt wird die Fläche mittels Gastherme. Zusätzlich zur Fußbodenheizung sorgen Radiatoren entlang der Glasfronten im Hauptraum für ein angenehmes Raumklima – auch in den kalten Monaten. Die monatliche Vorschreibung hierfür beläuft sich derzeit auf EUR 140.- inkl USt.

Ausstattung

* Sicherheitstüre
* Innenliegende Lamellenbeschattung
* Designerlampen von Zumtobel
* Fußbodenheizung 
* Teeküche
* Kabelanschluss

Lage & Infrastruktur

Die Geschäftsfläche befindet sich im 2. Wiener Gemeindebezirk unweit des Praters und des Donaukanals. In unmittelbarer Umgebung finden sich zahlreiche Einkaufsmöglichkeiten, Cafés und Restaurants sowie Schulen und Kindergärten.

Die U3-Station Kardinal-Nagl-Platz, sowie die Straßenbahnlinien 1 und die Buslinien 80A und 4A befinden sich in Gehweite und bieten eine schnelle Verbindung in die Innenstadt und andere Bezirke. Wien Mitte-Landstraße, von wo sowohl U3 und U4, sowie auch die S-Bahn und einige Straßenbahnlinien weggehen, ist 15 Minuten zu Fuß erreichbar. Mit dem Fahrrad ist man auf einem durchgehenden Radweg in kurzer Zeit in der Inneren Stadt. 

Für Erholung und Freizeitaktivitäten bieten der nahegelegene Prater sowie der Donaukanal ideale Möglichkeiten für Spaziergänge, Sport und Entspannung im Grünen.

Mit dem Auto erreicht man etwa den Verkehrsknotenpunkt Erdberg in nur wenigen Minuten, den Flughafen Wien Schwechat in 15 Minuten. 

Verkehrsverbindungen 

Bus 80A Station 150 Meter entfernt 

Bus 4A und Straßenbahn 1 Station 350 Meter entfernt 

U3 Kardinal-Nagl-Platz 600 Meter entfernt

U4 Wien Mitte-Landstraße 1200 Meter entfernt

Infrastruktur / Entfernungen

Gesundheit
Arzt 500m
Apotheke 500m
Klinik 500m
Krankenhaus 1.000m

Kinder & Schulen
Schule 500m
Kindergarten 500m
Universität 1.250m
Höhere Schule 750m

Nahversorgung
Supermarkt 250m
Bäckerei 500m
Einkaufszentrum 750m

Sonstige
Geldautomat 500m
Bank 500m
Post 750m
Polizei 500m

Verkehr
Bus 250m
U-Bahn 750m
Straßenbahn 500m
Bahnhof 750m
Autobahnanschluss 1.250m

Angaben Entfernung Luftlinie / Quelle: OpenStreetMap
Beschreibung weiterlesen

Lage und Verkehrsanbindung

Erdberger Lände, Schüttelstraße, Jesuitenwiese

Energieeffizienz

HWB:
213 kWh/(m²*a)
HWB Klasse:
F
fGEE:
3,51
fGEE Klasse:
F
Energieausweisart:
Energiebedarfs-ausweis
Gültig bis:
15.06.2033

Grundrisse

Lageplan

1020 Wien | Wien 2., Leopoldstadt

Lade...
Cornelia Pflug

Cornelia Pflug
Consultant

EDEX Immobilien GmbH

Anrufen
Lade...

Fotomix

Bild 1 Bild 2 Bild 3 Bild 4 Bild 5 Bild 6 Bild 7 Bild 8 Bild 9 Bild 10 Bild 11 Bild 12 Bild 13 Bild 14 Bild 15 Bild 16 Bild 17 Bild 18 Bild 19