NEU - FRANZ JOSEPH - RUHIGER WOHNTRAUM IM TRENDIGEN SONNWENDVIERTEL!

Wohnung zur Miete in 1100 Wien - Gesamtmiete: 1.949,99 € / Objektnummer: 60607
Ausstattung: Boden Fahrstuhl Wohnküche / offene Küche Bad Tiefgarage Parkplatz Fußbodenheizung Balkon

Preisinformationen

Gesamtmiete:
1.949,99 € / Monat
Betriebskosten netto:
213,19 € / Monat
Umsatzsteuer:
177,27 €
Kaution:
5.849,97 €
Provision:
Gemäß Erstauftraggeberprinzip bezahlt der Abgeber die Provision.

Fakten

Objektnummer:
60607
Objekttyp:
Wohnung
Balkon:
1
Balkonfläche:
10,57 m²
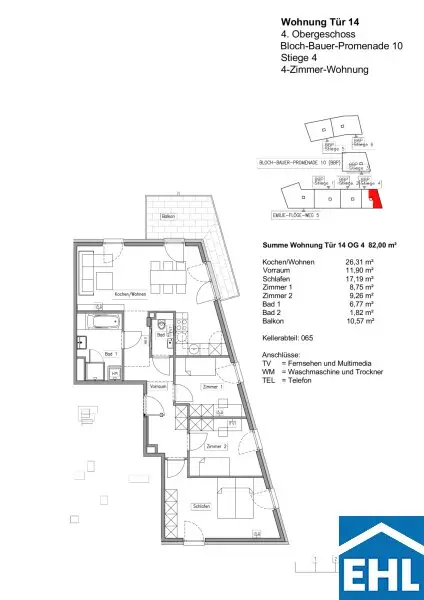
Wohnfläche:
82 m²
Zimmer:
4
Badezimmer:
1
Toilette:
1
Stockwerk:
4
Neubau:
Ja
Zustand:
Gepflegt
Verfügbarkeit:
Verfügbar

Beschreibung

FRANZ JOSEPH -  RUHIGER WOHNTRAUM IM TRENDIGEN SONNWENDVIERTEL!

Erleben Sie im Franz Joseph ein einzigartiges Wohngefühl zwischen dem Helmut-Zilk-Park und dem Wiener Hauptbahnhof!

Auf Sie warten variantenreiche 1-, 2-, 3- und 4-Zimmer Wohnungen mit teils großen Balkonen, Terrassen und Gärten in grüner Umgebung. 

Durch den angrenzenden Helmut-Zilk-Park, die guten Nahversorgungsmöglichkeiten und eine perfekte Verkehrsanbindung (U1) in das Stadtzentrum, überzeugt dieses Areal mit einzigartiger Wohnqualität.
Lassen Sie Ihrer Bewegung freien Lauf im angrenzenden  "Motorikpark"  sowie in den umliegenden Sportstätten.
Zahlreiche Geschäfte für den täglichen Bedarf und Gastronomiebetriebe für den kulinarischen Genuss stehen Ihnen in der BahnhofCity Wien Hauptbahnhof zur Verfügung.
Mit dem Auto sind Sie innerhalb weniger Minuten auf der A23 und erreichen so alle weiterführenden Autobahnen. 

Die Wohnung befindet sich in der 4. Etage und verfügt über eine geräumige Wohnküche, drei Schafzimmer, ein Badezimmer mit Badewanne, Dusche und Waschmaschinenanschluss, ein separates WC und einen Vorraum. Der rund 11m² große Balkon rundet das perfekte Wohngefühl ab.

Ausstattung

* Attraktive Einbauküche
* Badezimmer mit Dusche und Badewanne
* Hochwertige Parkettböden in den Wohnräumen
* Fliesen in den Nassräumen 
* Fernwärme mit Fußbodenheizung 
* Traumhafte Ausblicke auf Wien 
* Kellerabteil inkl. Steckdose
* Tiefgaragenplatz kann gesondert angemietet werden
* Außenliegender Sonnenschutz
* Kinder- und Jugendspielplatz direkt beim Helmut-Zilk-Park (Motorikpark)
* Kinderwagen- und Fahrradabstellräume sowie ein Lift befinden sich im Haus

Öffentliche Verkehrsanbindung:

Hauptbahnhof - U-Bahn Linie U1

Hauptbahnhof - Schnellbahnlinien S1, S2, S3, S 60 und S 80 sowie Fernverkehr
Buslinie 14A, 69A
Straßenbahnlinie D

Befristung: 5 Jahre, 1 Jahr Kündigungsverzicht, 3 Monate Kündigungsfrist

Heizung und Warmwasser werden nach Verbrauch abgerechnet.

Bezug: ab sofort

Nebenkosten 
3 BMM Kaution, Vertragserrichtungsgebühr

Wir weisen darauf hin, dass zwischen dem Vermittler und dem zu vermittelnden Dritten ein familiäres oder wirtschaftliches Naheverhältnis besteht.

Der Immobilienmakler erklärt, dass er – entgegen dem in der Immobilienwirtschaft üblichen Geschäftsgebrauch des Doppelmaklers – einseitig nur für den Vermieter tätig ist.

Infrastruktur / Entfernungen

Gesundheit
Arzt <150m
Apotheke <400m
Klinik <625m
Krankenhaus <1.725m

Kinder & Schulen
Schule <275m
Kindergarten <150m
Universität <850m
Höhere Schule <1.575m

Nahversorgung
Supermarkt <125m
Bäckerei <100m
Einkaufszentrum <625m

Sonstige
Geldautomat <300m
Bank <550m
Post <650m
Polizei <550m

Verkehr
Bus <225m
U-Bahn <625m
Straßenbahn <225m
Bahnhof <625m
Autobahnanschluss <1.275m

Angaben Entfernung Luftlinie / Quelle: OpenStreetMap
Beschreibung weiterlesen

Lage und Verkehrsanbindung

Hauptbahnhof

Energieeffizienz

HWB:
25,6 kWh/(m²*a)
HWB Klasse:
B
fGEE:
0,76
fGEE Klasse:
A
Energieausweisart:
Energiebedarfs-ausweis
Gültig bis:
15.07.2031

Grundriss

Lageplan

1100 Wien | Wien 10., Favoriten

Lade...
Josef Michelfeit

Josef Michelfeit
Immobilienberater

EHL Wohnen GmbH

Lade...

Fotomix

Bild 1 Bild 2 Bild 3 Bild 4 Bild 5 Bild 6 Bild 7 Bild 8