NEU - Für Anleger oder Eigennutzer! Top moderne Neubau Erstbezugswohnungen Nähe U Bahn! Küche inkludiert!

Wohnung zum Kauf in 1110 Wien - Kaufpreis: 215.600 € / Objektnummer: 1758106

Preisinformationen

Kaufpreis:
215.600 €
Kaufpreis/m²
5.417,09 €
Preisinfos:
Kaufpreis ist Anlegerpreis und versteht sich netto zzgl. 20% USt.
Provision:
Provision bezahlt der Abgeber.

Fakten

Objektnummer:
1758106
Objekttyp:
Wohnung
Balkon:
1
Balkonfläche:
5,1 m²
Wohnfläche:
34,7 m²
Nutzfläche:
39,8 m²
Gesamtfläche:
39,8 m²
Zimmer:
2
Badezimmer:
1
Toilette:
1
Stockwerk:
2
Baujahr:
2026
Neubau:
Ja
Zustand:
Erstbezug
Verfügbarkeit:
Verfügbar

Beschreibung

Hochwertiger Neubau-Erstbezug bei der U3. Nachhaltige Bauweise hochwertig ausgestattet. Jetzt schon die Wohnung sichern!

Das Vorsorgewohnungsprojekt bei der Dampfmühlgasse/Simmeringer Haupt­straße bietet aufgrund seiner zentralen Lage in unmittelbarer Nähe zur U Bahn Station U3 Zippererstraße für Mieter einen klaren Startvorteil.  Und somit auch für Anleger! Die nachhaltige Bauweise mit Luft-Wärme-Pumpe und Fußbodenheizung, Deckenkühlung und geplanter Photovoltaikanlage ist ein weiterer Pluspunkt dieses Vorzeigeprojektes. Die Nähe zum Grünen Prater sowie die sehr gute fußläufige Nahversorgung mit Supermärkten, Apotheken, Bäckereien, Cafés und Restaurants runden die hervorragende Wohnlage ab. Zwei Arztpraxen im Erdgeschoss des Gebäudes ergänzen das Angebot. Die geplante Begrünung der Simmeringer Hauptstraße durch die Stadt Wien erhöht die Attraktivität der Wohnlage. Im Zuge der städtebaulichen Aufwertung werden im Bereich rund um das Wohnprojekt rund 5.500 m² Asphalt entsiegelt und 52 neue Bäume gepflanzt.

Zusätzlicher Vorteil: die Küchen sind bereits im Kaufpreis inkludiert! Zum Teil haben die Wohnungen einen Tiefgaragenplatz!

Alles in allem bietet dieses Projekt Anlegern und Eigennutzern ein spezielles und sinnvolles Immobilieninvestment.  Die Kaufpreise starten bei 202.000 Euro netto + USt.

Die Fertigstellung ist geplant in Q3 2027.

 

Highlights

* Küchen vollausgestattet im Preis inkludiert
* U Bahn U3 in Gehweite
* Nachhaltiger und effizienter Neubau mit moderner Luft-Wärme-Pumpe
* Im Zuge der städtebaulichen Aufwertung werden im Bereich rund um das Wohnprojekt rund 5.500 m² Asphalt entsiegelt und 52 neue Bäume gepflanzt.

 

Hochwertige Ausstattung

* Zwei- bis Vier-Zimmer-Wohnungen
* 32 m² bis 125 m²
* 10 Stellplätze vorgesehen
* Alle Einheiten verfügen über Freiflächen und Kellerabteile
* Bereits inkludiert: eine hochwertige vollausgestattete Küche
* Fußbodenheizung
* Eichenparkettboden
* Deckenkühlung
* Sicherheitseingangstüren
* Kunststoff-Alu-Fenster mit 3-Scheiben-Isolierverglasung
* Außenliegender elektrischer Sonnenschutz
* Luft-Wärme-Pumpe als nachhaltiges Heizungssystem

 

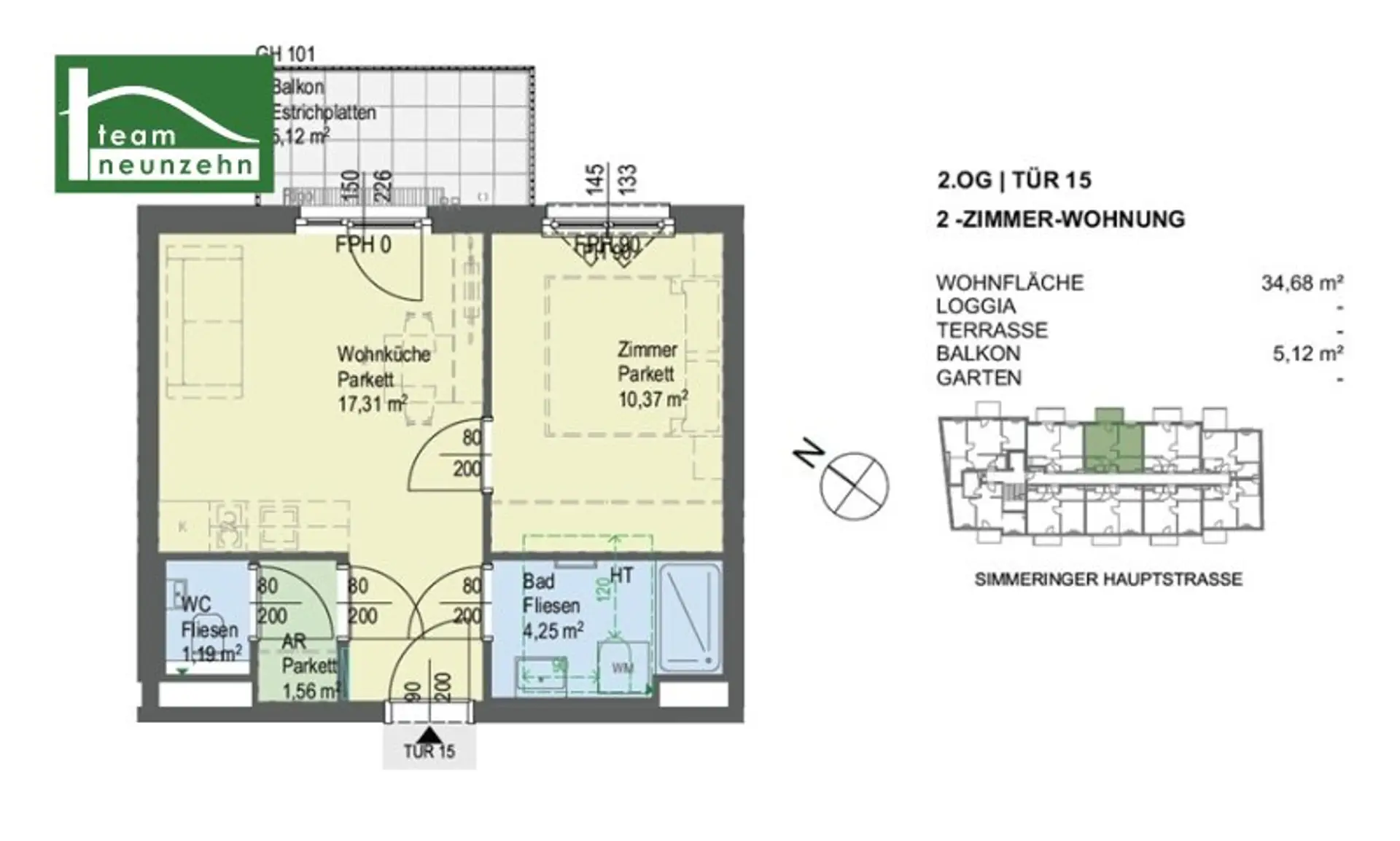
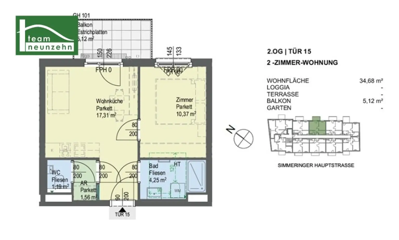
Wohnung Top 15:

Die Wohnung mit ca. 34,68 m² Wohnfläche und ca. 5,10 m² Balkon befindet sich im 2. Obergeschoss und hat folgende Raumaufteilung:

* Abstellraum: ca. 1,56 m²
* Wohnküche: 17,31 m²
* Zimmer: 10,37 m²
* Bad: 4,25 m²
* WC: ca. 1,19 m²

 

Kaufpreis:

Der Kaufpreis beläuft sich auf 241.5000,- € für den Endnutzer. Der Anlegerkaufpreis beläuft sich auf 215.600,- € Netto zzgl. 20% USt.

Ein Garagenplatz kann zu einem Preis von 30.000,- € (Anleger: 26.500,- € Netto zzgl. 20% USt.) erworben werden.

PROVISIONSFREI

 

Lage und Infrastruktur

100m zur Strassenbahn 71 Molitorgasse

450m zur U3 Station Zippererstrasse

400m zum Hyblerpark

5 Radminuten zum Gasometer

8 Radminuten zum Schweizergarten

11 Radminuten zum Böhmischen Prater

Nahversorgung

Supermärkte, Ärzte, Apotheken und eine vielfältige Auswahl an Restaurants sind in unmittelbarer Umgebung vorhanden. Schulen und ein Kindergarten sorgen für kurze Wege für Ihre Kinder.

 

Energieausweis:

HWB 22,5 Klasse A, fGEE 0,56 Klasse A+, gültig bis 8.9.2035

 

Für Fragen bzw. Besichtigungen steht Ihnen Herr Mag. Christian Leikam sehr gerne unter 0664 889 253 51 oder via E-Mail unter Leikam@teamneunzehn.at zur Verfügung.

Wir freuen uns darauf, Ihnen Ihr neues Zuhause zu zeigen.

 

Wir weisen darauf hin, dass zwischen dem Vermittler und dem zu vermittelnden Dritten ein familiäres oder wirtschaftliches Naheverhältnis besteht.

"Leben braucht Raum" * T19-RE Real Estate GmbH & Co KG * www.teamneunzehn.at [https://www.teamneunzehn.at]

Doppelmakler

Wir werden als Immobilienmakler kraft bestehenden Geschäftsgebrauchs als Doppelmakler tätig und haben sohin beide Seiten des Vertrages (Verkäufer-Käufer, Vermieter-Mieter) zu unterstützen.

Wirtschaftliches Naheverhältnis

Es wird bekannt gegeben, dass folgendes wirtschaftliches Naheverhältnis zwischen der teamneunzehn-Gruppe und dem Verkäufer/der vermietenden Partei besteht: ständige und dauerhafte Beauftragung mit der Vermittlung des bestehenden Immobilienportfolios

Haftungserklärung zum Inserat

Irrtum und Änderungen vorbehalten! Sofern es sich bei Bildern um Visualisierungen handelt, können Abänderungen zur tatsächlichen Ausführung resultieren. Wir weisen ausdrücklich darauf hin, dass das auf Fotos oder Visualisierungen ersichtliche Mobiliar bzw. Inventar nicht Bestandteil des inserierten Preises ist.

 

 

Infrastruktur / Entfernungen

Gesundheit
Arzt 500m
Apotheke 500m
Klinik 1.000m
Krankenhaus 2.000m

Kinder & Schulen
Schule 500m
Kindergarten 1.000m
Universität 1.000m
Höhere Schule 1.000m

Nahversorgung
Supermarkt 500m
Bäckerei 500m
Einkaufszentrum 1.000m

Sonstige
Geldautomat 1.000m
Bank 1.000m
Post 500m
Polizei 1.000m

Verkehr
Bus 500m
U-Bahn 500m
Straßenbahn 500m
Bahnhof 500m
Autobahnanschluss 500m

Angaben Entfernung Luftlinie / Quelle: OpenStreetMap
Beschreibung weiterlesen

Lage und Verkehrsanbindung

Lage: Dampfmühlgasse, Simmeringer Haupstrasse, Molitorgasse

U3 Simmering

Energieeffizienz

HWB:
22,5 kWh/(m²*a)
HWB Klasse:
A
fGEE:
0,56
fGEE Klasse:
A+
Energieausweisart:
Energiebedarfs-ausweis
Gültig bis:
08.09.2035

Grundriss

Lageplan

1110 Wien | Wien 11., Simmering

Lade...
Christian Leikam

Christian Leikam
Investment Consulting

teamneunzehn-Gruppe

Anrufen
Lade...

Fotomix

Bild 1 Bild 2