NEU - Für Sonnenanbeter - südseitige 2 Zimmer zum Genießen

Wohnung zum Kauf in 1180 Wien - Kaufpreis: 520.500 € / Objektnummer: Etage 3/Top 14 _01
Ausstattung: Boden Fahrstuhl Wohnküche / offene Küche Bad Kabel/Satelliten-TV Klimaanlage Fahrradraum Abstellraum Fernwärme Fußbodenheizung Loggia Terrasse WG geeignet
Ausblick
Wohnzimmer mit südseitiger Loggia
Loggia
Schlafzimmer
Badewanne
Badezimmer
Stiegenhaus
Innenhof mit Spielplatz
Hausansicht
Fahrradraum
Keller
Tiefgarage
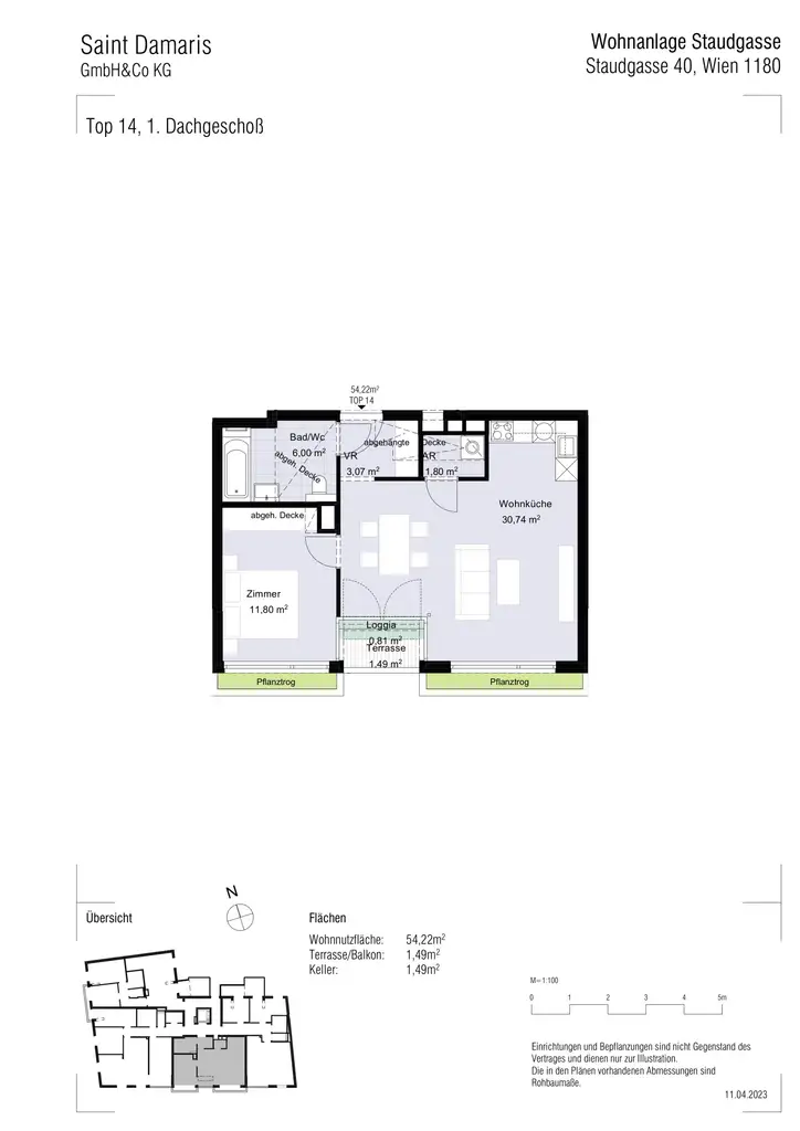
Top 14, 1. Dachgeschoß_0.jpg
14.jpg
Geolyzer Kartenausschnitt

Preisinformationen

Kaufpreis:
520.500 €
Betriebskosten netto:
104,98 € / Monat
Provision:
3 % zzgl. 20% USt.

Fakten

Objektnummer:
Etage 3/Top 14 _01
Objekttyp:
Wohnung
Terrasse:
1
Loggia:
1
Keller Fläche:
1,49 m²
Wohnfläche:
53,21 m²
Zimmer:
2
Badezimmer:
1
Toilette:
1
Stockwerk:
3
Baujahr:
2023
Zustand:
Erstbezug
Verfügbarkeit:
Verfügbar

Beschreibung

Egal ob erste eigene Single-Wohnung oder Domizil für ein junges Pärchen: Diese moderne Wohnung ist ein echtes Naturtalent und punktet mit Gemütlichkeit, gut durchdachtem Grundriss und vor allem einer tollen Lage beim Kutschkermarkt. Lebensmittelpunkt bildet das große, lichtdurchflutete Wohlfühl-Wohnzimmer mit Küche und Zugang zur südseitigen Loggia. Egal ob geschmackvolle Küchenkräuter oder dekoratives Pampasgras: französische Fenster mit Blumenbeeten laden sowohl im Wohnzimmer als auch im Schlafzimmer zum Urban Gardening ein! Das Badezimmer punktet mit Fliesen aus elegantem Feinsteinzeug und ist mit Badewanne und Toilette top ausgestattet. Zusätzlich ist die Wohnung mit einem Abstellraum samt WM-Anschluss ausgestattet.
Eine Nutzung als Praxis / Büro ist laut WEV gestattet.

Zur Eigennutzung oder als Anlageform möglich!
Anlegerpreis: € 477.523,-
Beschreibung weiterlesen

Lage und Verkehrsanbindung

- Straßenbahn: Nr. 40, 41, 42 Eduardgasse (2 Gehminuten), Nr. 9 Vinzenzgasse (7 Gehminuten), Nr. 43 Palffygasse (12 Gehminuten)
- U-Bahn: U6 Michelbeuern AKH (10 Gehminuten, bzw. 5 Min. Fahrzeit - Tram)
- Nachtbus: N8 Michelbeuern AKH (6 Gehminuten), N41 Martinstraße (7 Gehminuten), N43 Alser Straße (15 Gehminuten)
- Supermarkt / Lebensmittel: Billa (3 Gehminuten), Hofer (2 Gehminuten), sowie der beliebte Kutschkermarkt mit trendigen Cafés und Restaurants (5 Gehminuten)
- Kinderbetreuung: z.B. Kindergruppe Kleiner Pinguin (1 Gehminute), Zwergengarten (3 Gehminuten)
- Schulen: PVS + PMS De La Salle (3 Gehminuten), RG Schopenhauerstraße (3 Gehminuten), Campus Sacre Coeur (9 Gehminuten)
- Universitäten: MedUni (15 Gehminuten, bzw. 8 Min. Fahrzeit - Rad), Uni Wien (15 Min. Fahrzeit mit den Öffis), TU Wien (22 Min. Fahrzeit mit dem Rad), WU Wien (26 Min. Fahrzeit mit dem Rad), 
- Parks: Für Sportbegeisterte und Naturverbundene gibt es unzählige Parks und Grünflächen in unmittelbarer Nähe. Hervorzuheben ist der Schubertpark mit Hundezone, Fußball- und Tennisplätzen sowie Spielplätzen, ebenfalls ist der Türkenschanzpark fußläufig erreichbar

18. Bezirk, Währing

Energieeffizienz

HWB:
27,1 kWh/(m²*a)
HWB Klasse:
B
fGEE:
0,78
fGEE Klasse:
A
Gebäudeart:
listing.status.epcBuildingType_wohn
Ausstellung:
ab dem 1.5.2014
Gültig bis:
22.05.2027

Grundrisse

Lageplan

1180 Wien | Wien 18., Währing

Lade...
Markus Kappel

Markus Kappel

Wohn3 Team GmbH

Lade...

Fotomix

Ausblick Wohnzimmer mit südseitiger Loggia Loggia Schlafzimmer Badewanne Badezimmer Stiegenhaus Innenhof mit Spielplatz Hausansicht Fahrradraum Keller Tiefgarage