NEU - Für Umbauprofis!!! Geschäftslokal + Lager kann zu 2 Wohnungen umgebaut werden!!!!

Wohnung zum Kauf in 8020 Graz - Kaufpreis: 179.900 € / Objektnummer: O2100166703
Ausstattung: Wohnküche / offene Küche Zentralheizung
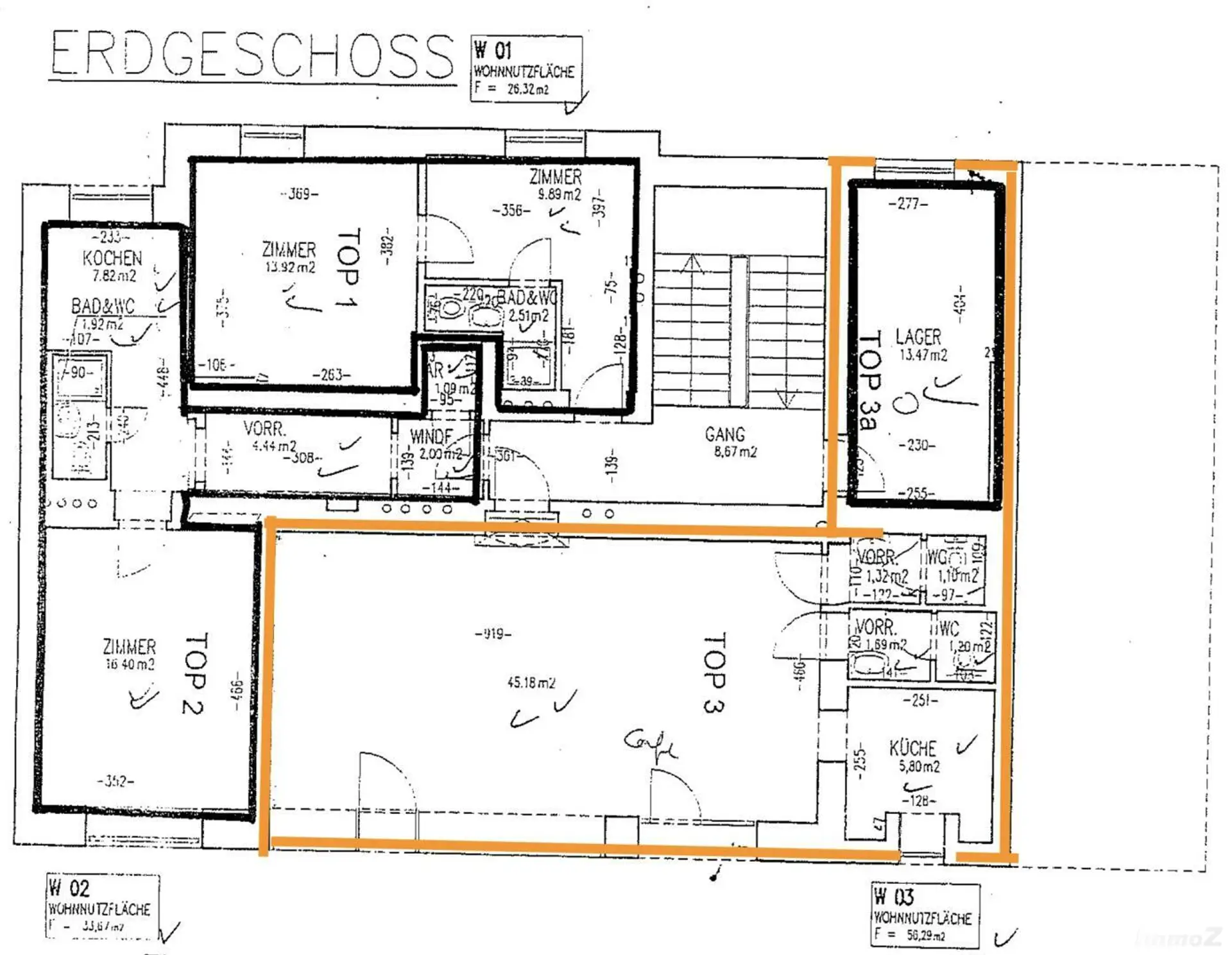
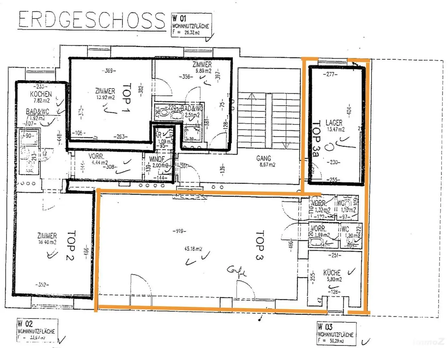
Grundriss Bestand
20230613_082326276_iOS

Preisinformationen

Kaufpreis:
179.900 €
Preisinfos:
fix inkl. BK exkl. MwSt. und HK
Provision:
3 % zzgl. 20% MwSt.

Fakten

Objektnummer:
O2100166703
Objekttyp:
Wohnung
Wohnfläche:
69,76 m²
Gesamtfläche:
69,76 m²
Zimmer:
2
Toilette:
2
Verfügbarkeit:
Verfügbar

Beschreibung

Verkauft werden zwei Einheiten welche aktuell noch als Geschäftslokal und Lager vermietet sind. Diese können zu 2 Wohnungen umgebaut werden. Einreichung dazu läuft bereits. 

Whg 1 mit ca. 43 m2 und Wohnung 2 mit ca. 26 m2. Ideal zum vermieten. (Vermessung erfolgt)

Verkaufspreis 179.900.-
Beschreibung weiterlesen

Energieeffizienz

HWB:
97,62 kWh/(m²*a)
HWB Klasse:
C
Patrick Großschädl

Patrick Großschädl

Papst Immobilien GmbH

Lade...

Fotomix

Grundriss Bestand 20230613_082326276_iOS