NEU - Ganzes Geschoss am Schubertring zu mieten!

Büro zur Miete in 1010 Wien / Objektnummer: 16368

Preisinformationen

Betriebskosten netto:
5,62 € / Monat
Miete/m² netto:
22,00 €
Vermittlungsprovision:
Ja

Fakten

Objektnummer:
16368
Objekttyp:
Büro
Nutzfläche:
690,81 m²
Bürofläche:
690,81 m²
Gesamtfläche:
690,81 m²
Verfügbarkeit:
Verfügbar

Beschreibung

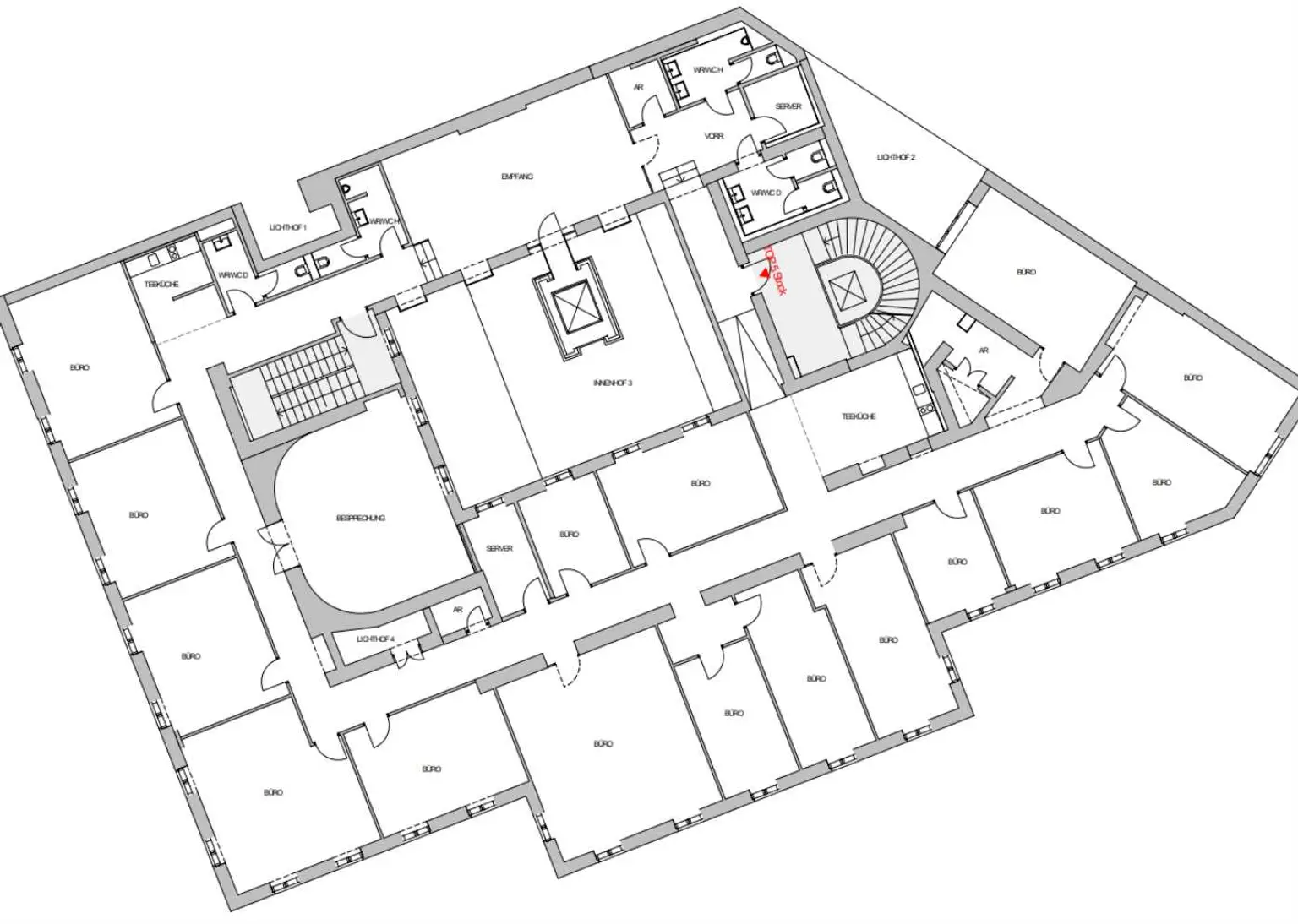
Zur Vermietung gelangt ein repräsentatives Bürogeschoß in einem Wiener Stilaltbau am Schubertring. Die Einheit befindet sich im 5. Obergeschoss und umfasst rund 690 m. Ein besonderes Highlight ist der direkte Liftzugang in die Bürofläche, der ein hohes Maß an Komfort, Diskretion und Exklusivität bietet. Die Büroflächen überzeugen durch ihre gemischte Raumaufteilung mit sowohl Einzel- als auch Gruppenbüros.
Beschreibung weiterlesen

Lage und Verkehrsanbindung

Die Liegenschaft befindet sich in absoluter Toplage der Wiener Innenstadt am Schubertring, direkt an der Ringstraße. Die Umgebung ist geprägt von renommierten Unternehmen, Kanzleien, Hotels sowie kulturellen Institutionen wie der Wiener Staatsoper und dem Stadtpark.

Die öffentliche Verkehrsanbindung:
U-Bahn: U1, U2, U4
Straßenbahn: 1, 2, 71, D
Bus: 2A, 3A

Grundrisse

Antonia Vrcic, MA

Antonia Vrcic, MA

Modesta Real Estate

Lade...

Fotomix

Bild 1 Bild 2 Bild 3 Bild 4 Bild 5 Bild 6 Bild 7 Bild 8 Bild 9 Bild 10 Bild 11 Bild 12