NEU - Garten-Wohnung mit viel Sonne: Provisionsfreier Neubau-Erstbezug beim Rosenhügel (NEW)

Wohnung zum Kauf in 1230 Wien - Kaufpreis: 768.000 € / Objektnummer: 1939/162774
Ausstattung: Barrierefrei Boden Fahrstuhl Wohnküche / offene Küche Bad Gäste-WC Kabel/Satelliten-TV Klimaanlage Tiefgarage Parkplatz Fahrradraum Abstellraum Fußbodenheizung Terrasse Garten WG geeignet
Gartenwohnung
Innenvisualisierung
Projekt (Übersicht)
Projekt
Hofansicht
Liesingbach
Riverside
Schönbrunn
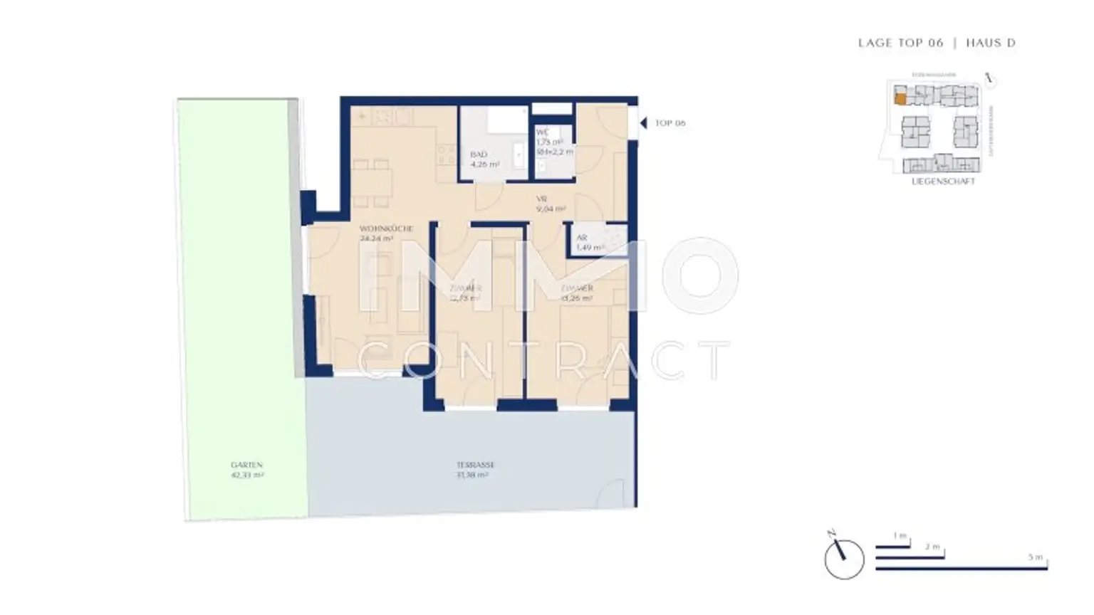
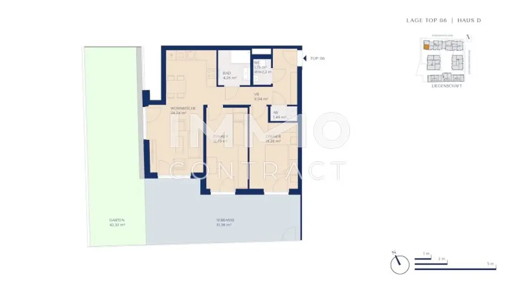
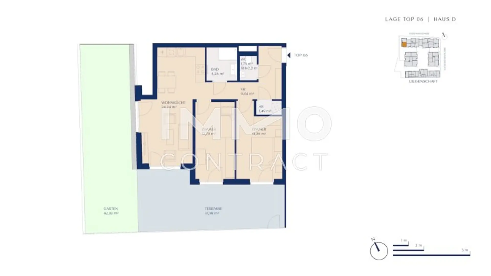
Wohnungsplan Whg. 1 (Skizze Wohnungszusammenlegung verfügbar)
Wohnungsplan Whg. 2 (Skizze Zusammenlegung) verfügbar)

Preisinformationen

Kaufpreis:
768.000 €
Kaufpreis/m²
4.993,50 €
Provision:
Provision bezahlt der Abgeber.

Fakten

Objektnummer:
1939/162774
Objekttyp:
Wohnung
Terrasse:
2
Wohnfläche:
122 m²
Gartenfläche:
64,28 m²
Zimmer:
5
Badezimmer:
2
Toilette:
2
Stockwerk:
1
Baujahr:
2025
Neubau:
Ja
Zustand:
Erstbezug
Verfügbarkeit:
Verfügbar

Beschreibung

City Garden: Ihr neuer Wohntraum zwischen Rosenhügel und Liesingbach

Neu am Markt: Durch Zusammenlegung von zwei Wohnungen kann diese fantastische Gartenwohnung mit grozügiger Terrasse geschaffen werden. Eine Skizze liegt auf und kann gerne in einem persönlichen Termin gezeigt und besprochen werden. Bitte beachten Sie, dass die Kosten der Umplanung usw. bei diesem Kaufpreis noch nicht berücksichtigt sind!

Am Rosenhügel entsteht ein Wohnprojekt, das modernen Komfort, historische Details und eine nachhaltige Lebensweise harmonisch miteinander verbindet. Das Ensemble umfasst vier stilvolle Neubauten und ein liebevoll revitalisiertes Bestandsgebäude, das mit seinem besonderen Charme begeistert. Mit insgesamt 130 Wohnungen, die von einem bis fünf Zimmern reichen, bietet das Projekt eine Vielzahl an Wohnlösungen – vom kompakten Rückzugsort bis hin zur großzügigen Familienwohnung. Jede Einheit verfügt über eine private Freifläche wie Balkon, Terrasse oder Garten und sorgt so für Lebensqualität in jeder Lebensphase.

Für Komfort sorgen eine Tiefgarage mit direkten Liftfahrten zu den Gebäuden, Stellplätze für PKWs und Motorräder (teilweise mit E-Ladestationen) sowie moderne Gemeinschaftsräume wie ein Paketraum, Fahrrad- und Kinderwagenabstellräume. Die großzügig gestalteten Außenflächen mit Spielplätzen für verschiedene Altersgruppen laden zum Entspannen, Spielen und Verweilen ein.

Das gesamte Projekt setzt ein starkes Zeichen für Nachhaltigkeit und Innovation. Die Energieversorgung erfolgt CO₂-frei über Erdwärme, die durch Tiefenbohrungen und moderne Wärmepumpen bereitgestellt wird. Eine Photovoltaikanlage auf den Dächern erzeugt saubere Energie, während Regenwassernutzungssysteme die Grünflächen effizient bewässern. Diese durchdachten Maßnahmen tragen dazu bei, die Umwelt zu schonen, die laufenden Kosten zu senken und die Lebensqualität zu erhöhen.

Die Fertigstellung ist für ca. Spätsommer 2027 geplant.

Der Verkauf erfolgt provisionsfrei für den Käufer.

 

Wir weisen darauf hin, dass zwischen dem Vermittler und dem zu vermittelnden Dritten ein familiäres oder wirtschaftliches Naheverhältnis besteht.

Der Vermittler ist als Doppelmakler tätig.

Infrastruktur / Entfernungen

Gesundheit
Arzt <1.000m
Apotheke <500m
Klinik <1.500m
Krankenhaus <1.000m

Kinder & Schulen
Schule <1.000m
Kindergarten <500m
Universität <4.000m
Höhere Schule <4.500m

Nahversorgung
Supermarkt <500m
Bäckerei <500m
Einkaufszentrum <2.000m

Sonstige
Geldautomat <1.000m
Bank <1.000m
Post <2.000m
Polizei <2.000m

Verkehr
Bus <500m
U-Bahn <2.000m
Straßenbahn <1.500m
Bahnhof <1.000m
Autobahnanschluss <2.500m

Angaben Entfernung Luftlinie / Quelle: OpenStreetMap
Beschreibung weiterlesen

Lage und Verkehrsanbindung

Die Lage des Projekts bietet das Beste aus beiden Welten: Die lebendige Stadt ist nur einen Katzensprung entfernt, während die umliegenden Grünflächen und der Liesingbach zum Durchatmen und Entspannen einladen.

Zahlreiche Nahversorger wie Supermärkte, Drogerien und Apotheken befinden sich nur wenige Schritte entfernt, und auch ein Kindergarten liegt in unmittelbarer Nähe. Für kulinarische Genüsse sorgen namhafte Weingüter, Heurige und Gasthäuser während das Einkaufszentrum Riverside eine Vielzahl an Einkaufs- und Freizeitmöglichkeiten bietet. Sport- und Naturbegeisterte finden im Liesingbachgebiet und im neu geschaffenen Stadtpark Atzgersdorf ideale Orte für Spaziergänge, Laufrunden und Erholung. Selbst das beliebte Liesinger Bad ist mit dem Fahrrad in weniger als zehn Minuten erreichbar.

Der nahegelegene Autobus bringt Sie in nur 13 Minuten nach Hietzing, und der Schnellbahn-Bahnhof Atzgersdorf ist lediglich eine kurze Spazierstrecke oder eine zweiminütige Busfahrt entfernt. Von dort aus erreichen Sie die zentralen Verkehrsknotenpunkte Wien Meidling und Wien Hauptbahnhof in nur sechs bzw. zwölf Minuten. Diese gute Anbindung macht das Projekt zur idealen Basis für ein urbanes Leben im Grünen – auch ohne eigenem Auto!

Rosenhügel, Liesingbach

Energieeffizienz

HWB:
24,8 kWh/(m²*a)
HWB Klasse:
B
fGEE:
0,66
fGEE Klasse:
A+
Energieausweisart:
Energiebedarfs-ausweis
Gültig bis:
31.03.2033

Dokumente

Grundrisse

Lageplan

1230 Wien | Wien 23., Liesing

Lade...
Ines Lirsch-Toifl

Ines Lirsch-Toifl
Leitung Projektvertrieb Österreich

IMMOcontract Immobilien Vermittlung GmbH

Lade...

Fotomix

Gartenwohnung Innenvisualisierung Projekt (Übersicht) Projekt Hofansicht Liesingbach Riverside Schönbrunn