NEU - Gartenresidenz mit privatem SPA in exklusiver Villa – nur 3 Wohnungen im Haus | 195 m² Luxus-Maisonette

Wohnung zum Kauf in 1180 Wien - Kaufpreis: 1.100.000 € / Objektnummer: 296770
Ausstattung: Boden Fahrstuhl Wohnküche / offene Küche Bad Sauna Wellnessbereich Klimaanlage Abstellraum Etagenheizung Fußbodenheizung Terrasse

Preisinformationen

Kaufpreis:
1.100.000 €
Kaufpreis/m²
5.654,95 €
Vermittlungsprovision:
Ja
Provision:
3% des Kaufpreises zzgl. 20% USt.

Fakten

Objektnummer:
296770
Objekttyp:
Wohnung
Terrasse:
1
Wohnfläche:
194,52 m²
Nutzfläche:
194,52 m²
Zimmer:
5
Badezimmer:
2
Altbau:
Ja
Verfügbarkeit:
Verfügbar

Beschreibung

Gartenresidenz mit privatem SPA in exklusiver Villa – nur 3 Wohnungen im Haus | 195 m² Luxus-Maisonette

_Exklusives Wohnen auf höchstem Niveau – eine von nur drei Etagenwohnungen_

-------------

HIGHLIGHTS AUF EINEN BLICK

* Nur 3 exklusive Wohnungen im gesamten Haus – eine pro Etage
* Repräsentatives Entree, prachtvolles Stiegenhaus sowie modern verglaster Lift mit Blick ins Grüne
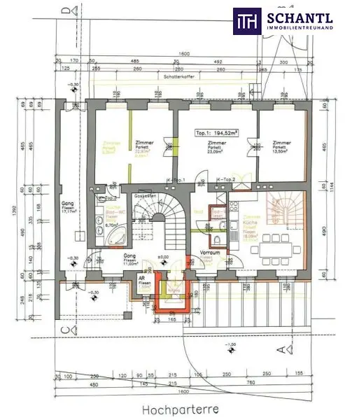
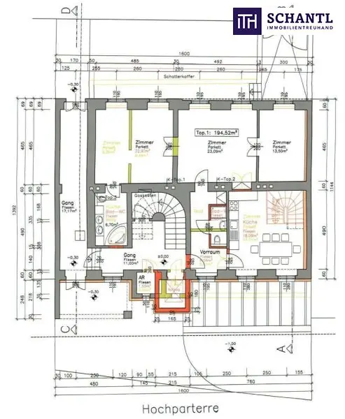
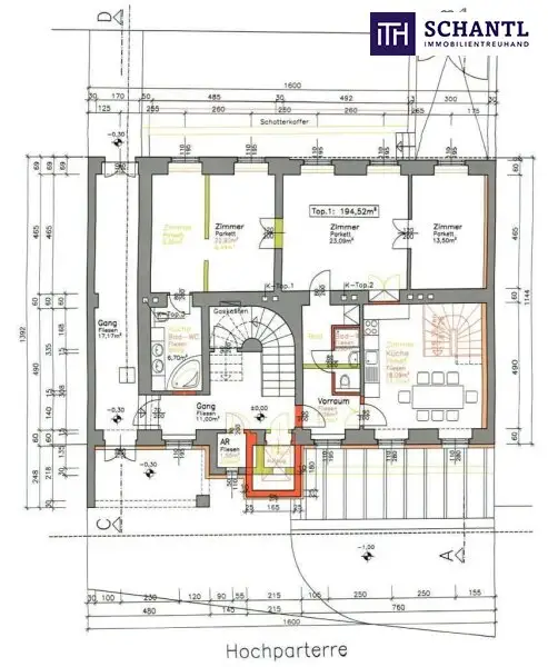
* Ca. 195 m² auf zwei Ebenen (Hochparterre ca. 96,84 m² & Souterrain ca. 97,68 m²)
* Privater Wellnessbereich mit Sauna, Whirlpool & Bad
* Eigengarten 
* 4 Zimmer in Hochparterre mit flexibler Nutzung
* Perfekt für Wohnen & Arbeiten dank klar getrennten Bereichen
* Hochwertige Ausstattung mit Feinsteinböden & historischen Flügeltüren
* Fußbodenheizung & isolierverglaste Holz-Alu-Fenster
* Unterirdischer Wintergarten als architektonisches Highlight
* Ruhige Grünlage bei gleichzeitig ausgezeichneter Infrastruktur

In einem stilvollen Altbau mit nur drei exklusiven Wohneinheiten – eine pro Etage – präsentiert sich diese außergewöhnliche Gartenresidenz als seltene Gelegenheit für anspruchsvolle Käufer. Die Gartenwohnung vereint auf rund 195 m² Nutzfläche historische Eleganz, moderne Ausstattung und ein Höchstmaß an Privatsphäre.

Der Wohnbereich im Hochparterre beeindruckt mit großzügigen Raumhöhen, klassischen Flügeltüren und einer eleganten Materialauswahl. Vier lichtdurchflutete Zimmer bieten vielfältige Nutzungsmöglichkeiten – von repräsentativen Wohnräumen bis hin zu ruhigen Rückzugsorten oder stilvollen Arbeitsbereichen. Edle Feinsteinböden sowie zwei hochwertig ausgestattete Badezimmer, darunter ein Tageslichtbad, unterstreichen den gehobenen Wohnanspruch.

Im Souterrain eröffnet sich ein in dieser Form kaum zu findendes Highlight: Ihr privater SPA- und Wellnessbereich. Ausgestattet mit Sauna, Whirlpool und eigenem Badezimmer entsteht hier eine exklusive Rückzugsoase. Der außergewöhnliche unterirdische Wintergarten sorgt zusätzlich für eine einzigartige Atmosphäre. Ergänzt wird diese Ebene durch weitere Nebenräume: z.B als Arbeits- oder Fitnessräume.

Der pflegeleichter Eigengarten bietet eine geschützte grüne Oase mitten in der Stadt.

Dank der Raumstruktur eignet sich die Wohnung zudem ideal, um Wohnen und Arbeiten auf höchstem Niveau miteinander zu verbinden – ob Home-Office, Atelier oder Praxis.

Moderne Haustechnik, Fußbodenheizung und hochwertige Holz-Alu-Fenster sorgen für zeitgemäßen Komfort, während die Kombination aus historischen Details und exklusiver Ausstattung den besonderen Charakter dieser Immobilie prägt.

Diese Residenz ist mehr als nur ein Zuhause – sie ist ein Ort für Menschen, die Wert auf Ruhe, Stil und außergewöhnliche Wohnqualität legen.

Eine seltene Gelegenheit: Nur drei Wohnungen im Haus – und eine davon kann Ihre sein. Vereinbaren Sie noch heute einen Besichtigungstermin.

 

Kaufpreis: €1.100.000

Bezug: sofort verfügbar

 

Weitere Informationen

Hat diese Immobilie Ihr Interesse geweckt? Ich freue mich auf Ihre Anfrage! Für weitere Fragen stehe ich Ihnen gerne jederzeit zur Verfügung! Lediglich Anfragen mit vollständigem Namen, einer Telefonnummer sowie einer E-Mail-Adresse können unsererseits bearbeitet werden. Die von uns bereitgestellten Informationen beruhen auf Angaben des Abgebers. Für die Richtigkeit und Vollständigkeit der Angaben kann keine Gewähr bzw. Haftung übernommen werden. Änderungen vorbehalten!

www.schantl-ith.at

 

Bei konkretem Interesse senden wir Ihnen sehr gerne weiterführende Dokumente zu.

Unser Service für Sie: Wenn Sie sich für diese Immobilie entschieden haben, begleiten wir Sie gerne vom Kaufanbot weg inkl. Klärung von Sonderwünschen und der Vertragsunterzeichnung über die Wohnungsübergabe bis hin zu diversen Ummeldungen wie Strom und Gas. Entsprechende Formulare oder auch Meldezettel stellen wir Ihnen sehr gerne zur Verfügung.

Gerne unterstützen wir Sie auch bei der Finanzierung Ihres Traumobjekts und finden mit unseren langjährigen Partnern die besten Konditionen für Sie.

Vereinbaren Sie noch heute einen Termin, wir beraten Sie gerne!

Wir weisen darauf hin, dass zwischen dem Vermittler und dem zu vermittelnden Dritten ein familiäres oder wirtschaftliches Naheverhältnis besteht.

Der Vermittler ist als Doppelmakler tätig.

Infrastruktur / Entfernungen

Gesundheit
Arzt <250m
Apotheke <500m
Klinik <750m
Krankenhaus <1.750m

Kinder & Schulen
Schule <250m
Kindergarten <500m
Universität <1.000m
Höhere Schule <500m

Nahversorgung
Supermarkt <250m
Bäckerei <500m
Einkaufszentrum <1.250m

Sonstige
Geldautomat <500m
Bank <500m
Post <750m
Polizei <750m

Verkehr
Bus <250m
U-Bahn <1.250m
Straßenbahn <250m
Bahnhof <250m
Autobahnanschluss <3.000m

Angaben Entfernung Luftlinie / Quelle: OpenStreetMap
Beschreibung weiterlesen

Lage und Verkehrsanbindung

Die Umgebung besticht durch viel Grün und eine hohe Lebensqualität.
Nur 15 Gehminuten entfernt befindet sich die Amadeus International School Vienna.
Die Anbindung an den öffentlichen Verkehr ist ausgezeichnet: Straßenbahnlinie 40, 41 Bus 10A und die S-Bahn-Station Gersthof sind zu Fuß schnell erreichbar.
Einkaufsmöglichkeiten, Restaurants und Parks befinden sich in unmittelbarer Nähe.
Die ruhige und sichere Wohngegend bietet ideale Voraussetzungen für gehobenes Wohnen.
Diese Immobilie verbindet urbanes Wohnen mit hohem Freizeitwert. Vereinbaren Sie noch heute einen Besichtigungstermin und überzeugen Sie sich selbst von dieser außergewöhnlichen Wohnung in einer der besten Lagen Wiens!

Gersthof

Energieeffizienz

HWB:
78,37 kWh/(m²*a)
HWB Klasse:
C
Energieausweisart:
Energiebedarfs-ausweis

Grundrisse

Lageplan

1180 Wien | Wien 18., Währing

Lade...
Hanna Herzenstein

Hanna Herzenstein
Immobilienvermittlung

Schantl ITH Immobilientreuhand GmbH

Lade...

Fotomix

Bild 1 Bild 2 Bild 3 Bild 4 Bild 5 Bild 6 Bild 7 Bild 8 Bild 9 Bild 10 Bild 11 Bild 12 Bild 13 Bild 14 Bild 15 Bild 16 Bild 17 Bild 18 Bild 19 Bild 20 Bild 21 Bild 22