NEU - GARTENTRAUM - RUHELAGE TRIFFT WOHNGENUSS – Wohnen im Grünen - Einziehen und wohlfühlen

Wohnung zum Kauf in 1220 Wien - Kaufpreis: 269.000 € / Objektnummer: 1718/1748533
Ausstattung: Barrierefrei Boden Fahrstuhl Bad Klimaanlage Parkplatz Außenparkplatz Fahrradraum Abstellraum Zentralheizung Terrasse Garten

Preisinformationen

Kaufpreis:
269.000 €
Vermittlungsprovision:
Ja
Provision:
3% des Kaufpreises zzgl. 20% USt.

Fakten

Objektnummer:
1718/1748533
Objekttyp:
Wohnung
Terrasse:
1
Wohnfläche:
46,62 m²
Nutzfläche:
92,02 m²
Gesamtfläche:
92,02 m²
Gartenfläche:
33,04 m²
Zimmer:
2
Badezimmer:
1
Toilette:
1
Baujahr:
2024
Neubau:
Ja
Zustand:
Erstbezug
Verfügbarkeit:
Verfügbar
Verfügbar ab:
per sofort

Beschreibung

_Willkommen in Ihrer neuen Wohnoase im 22. Wiener Gemeindebezirk!_

Entdecken Sie eine moderne Wohnhausanlage, die das Beste aus Stadt und Natur vereint. Mit zwei Gebäuden und insgesamt 18 Wohneinheiten bietet diese exklusive Anlage einen ruhigen Rückzugsort inmitten des pulsierenden Lebens Wiens.

 

Erstklassige Ausstattung für höchsten Komfort

Jede Wohnung ist ein Erstbezugs-Neubau, der darauf ausgelegt ist, Ihren Wohnkomfort auf ein neues Level zu heben. Großer Wert wird auf hochwertige Materialien und langlebige Ausstattung gelegt, damit Sie sich in Ihrem neuen Zuhause rundum wohlfühlen können. Von Klebeparkett über hochwertige Sanitäreinrichtungen bis hin zur vollwärmeschutzisolierten Fassade – hier wurde an jedes Detail gedacht.

 

Variabilität für Ihren Lebensstil

Mit Wohnungsgrößen von 36 bis 80 m² und 2 bis 3 Zimmern bietet diese Anlage für jede Lebenssituation die passende Lösung. Ob Sie eine Endnutzerwohnung oder eine Vorsorgewohnung suchen, hier stehen Ihnen beide Möglichkeiten offen. Die funktionale Raumaufteilung sorgt dafür, dass Sie jeden Quadratmeter optimal nutzen können.

 

Wohlfühlen in Ihren eigenen vier Wänden

Genießen Sie helle und freundliche Räume, die dank der 3-Scheiben-Verglasung und der modernen Heizungsanlage stets angenehm temperiert sind. Die Sonnenschutzmaßnahmen sorgen dafür, dass Sie auch an heißen Tagen eine angenehme Atmosphäre in Ihrer Wohnung vorfinden.

 

Perfekte Infrastruktur für Ihren Alltag

Die Lage dieser Wohnanlage könnte nicht besser sein. Dank der guten Anbindung an den öffentlichen Nahverkehr erreichen Sie das Stadtzentrum in kürzester Zeit. Die oberirdischen KFZ-Stellplätze bieten Ihnen die Flexibilität, Ihr Auto jederzeit bequem zu parken. Und für Ihre Fahrräder und Kinderwagen gibt es großzügige Abstellräume im Kellergeschoss.

 

Ihr neues Zuhause wartet auf Sie!

Sichern Sie sich jetzt Ihre Traumwohnung in dieser einzigartigen Wohnhausanlage. Mit einem tollen Preis-Leistungs-Verhältnis, hochwertiger Ausstattung und der perfekten Kombination aus Stadt und Natur werden Sie hier Ihr ganz persönliches Wohnparadies finden.

 

Hinweis: Die detaillierte Bau- und Ausstattungsbeschreibung erhalten Sie gerne auf Anfrage.

 

Die Fotos weisen teilweise KI-generierte Inhalte auf.

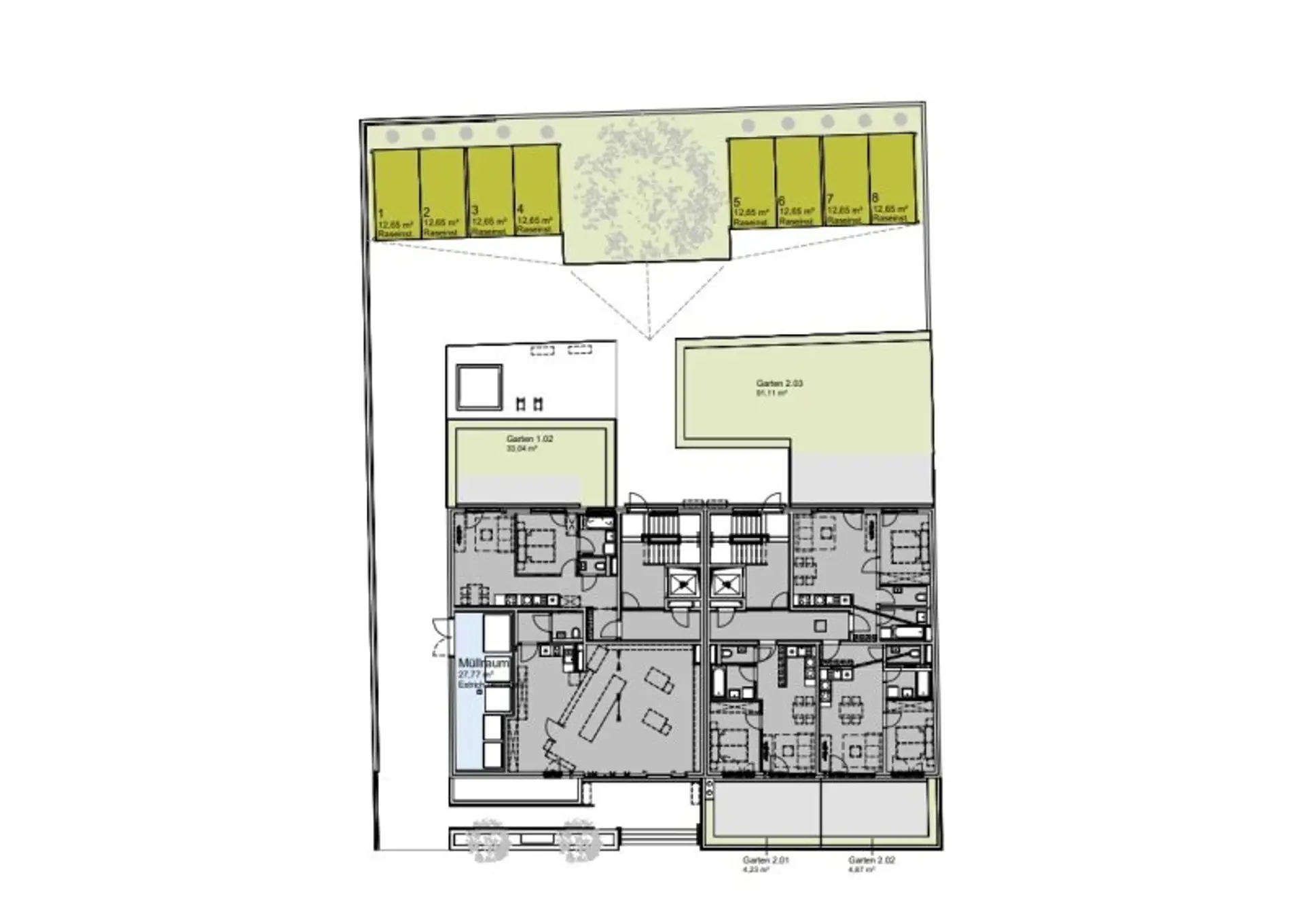
WOHNUNG TOP 2:

Die Wohnung mit CA. 46,62 M² WOHNFLÄCHE, CA. 12,36 M² TERRASSE UND CA. 33,90 M² GARTEN verfügt über folgende Raumaufteilung:

* Vorzimmer: ca. 8,47 m²
* WC: ca. 1,34 m²
* Badezimmer: ca. 4,40 m²
* Schlafzimmer: ca. 11,22 m²
* Wohnküche: ca. 21,19 m²

 

KAUFPREIS:

Der Kaufpreis beläuft sich auf 269.000,00 € für den Endnutzer. Der Anlegerkaufpreis beläuft sich auf 241.100,00 € NETTO ZZGL. 20% UST. 

Ein STELLPLATZ kann zu einem Preis von 24.000,00 € (Anleger: 21.600,00 € NETTO ZZGL. 20% UST.) erworben werden.

 

Provision: 3% zzgl. Steuer.

 

INFRASTRUKTUR:

Zweifelsohne ist dies ein sehr idyllischer Wohnort, wo man den Alltagsstress noch ablegen und die Seele baumeln lassen kann.

Die Verkehrsanbindung und Infrastruktur bieten ebenso viele Möglichkeiten wie Kulinarik und Kulturleben.
In nur ZWEI GEHMINUTEN erreicht man die Halltestelle der BUSLINIE 95A ADAM-BETZ-GASSE. Die U-BAHN-STATION SEESTADT U2 befindet sich 4,12km entfernt.
Geschäfte des täglichen Bedarfs sowie einige Gastronomie-Betriebe sind in Kürze zu erreichen.

Für die erholsamen und sportlichen Momente sorgen viele umliegende Grünflächen und Feldwege.

 

ENERGIEAUSWEIS:

Der Heizwärmebedarf für die Stiege 1 beträgt 31,8 KWH/M2A und entspricht der KLASSE B. 

 

Gerne steht Ihnen Herr KEVIN GÖDEL für weitere Fragen bzw. Besichtigungen unter 0664 41 28 427 oder kevin.goedel@prime-immobilien.at zur Verfügung.

Wir weisen darauf hin, dass zwischen dem Vermittler und dem zu vermittelnden Dritten ein familiäres oder wirtschaftliches Naheverhältnis besteht.

Der Vermittler ist als Doppelmakler tätig.

Infrastruktur / Entfernungen

Gesundheit
Arzt <1.000m
Apotheke <1.000m
Klinik <3.000m
Krankenhaus <5.500m

Kinder & Schulen
Schule <1.000m
Kindergarten <1.000m
Universität <1.000m
Höhere Schule <2.500m

Nahversorgung
Supermarkt <1.000m
Bäckerei <1.500m
Einkaufszentrum <1.500m

Sonstige
Geldautomat <2.500m
Bank <1.000m
Post <1.000m
Polizei <2.000m

Verkehr
Bus <500m
U-Bahn <2.500m
Straßenbahn <3.000m
Bahnhof <2.500m
Autobahnanschluss <6.000m

Angaben Entfernung Luftlinie / Quelle: OpenStreetMap
Beschreibung weiterlesen

Lage und Verkehrsanbindung

- In ruhiger Wohngegend
- Gute Verkehrsanbindung durch Bus und U-Bahn
- Nähe Naherholungsgebiete
- Umgeben von Grünflächen und Parks
- Familienfreundliches Viertel mit Spielplätzen und Freizeitmöglichkeiten

Buslinie 95A Adam-Betz-Gasse, U-Bahn-Station Seestadt U2 in der Nähe

Energieeffizienz

HWB:
31,8 kWh/(m²*a)
HWB Klasse:
B
fGEE:
0,75
fGEE Klasse:
A
Energieausweisart:
Energiebedarfs-ausweis

Grundrisse

Lageplan

1220 Wien | Wien 22., Donaustadt

Lade...
Kevin Gödel

Kevin Gödel

RIMMO Prime Vermittlungs GmbH

Lade...

Fotomix

Bild 1 Bild 2 Bild 3 Bild 4 Bild 5 Bild 6 Bild 7 Bild 8 Bild 9 Bild 10 Bild 11 Bild 12 Bild 13 Bild 14 Bild 15 Bild 16 Bild 17 Bild 18 Bild 19 Bild 20 Bild 21 Bild 22 Bild 23 Bild 24