NEU - Gartenwohnung ERSTBEZUG - Qualität auf höchstem Niveau - Hietzing / Hacking

Wohnung zum Kauf in 1130 Wien - Kaufpreis: 398.000 € / Objektnummer: 19652
Ausstattung: Barrierefrei Boden Fahrstuhl Bad Kabel/Satelliten-TV Fahrradraum Abstellraum Fußbodenheizung Garten

Preisinformationen

Kaufpreis:
398.000 €
Betriebskosten netto:
109,37 € / Monat
Vermittlungsprovision:
Ja
Provision:
3% des Kaufpreises zzgl. 20% USt.

Fakten

Objektnummer:
19652
Objekttyp:
Wohnung
Keller Fläche:
3 m²
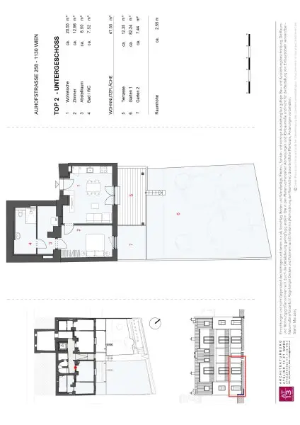
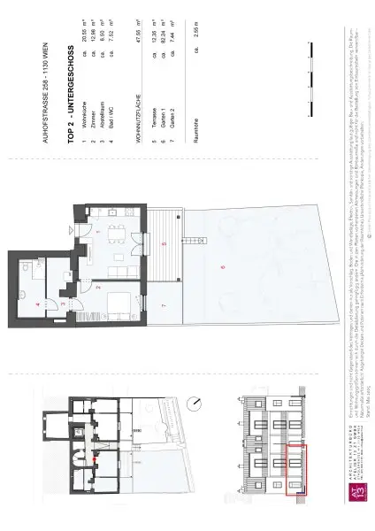
Wohnfläche:
47,55 m²
Gartenfläche:
89,68 m²
Zimmer:
2
Badezimmer:
1
Toilette:
1
Stockwerk:
-1
Baujahr:
2025
Neubau:
Ja
Zustand:
Erstbezug
Verfügbarkeit:
Verfügbar

Beschreibung

Dieses Erstbezugshaus (2025 fertiggestellt) befindet sich einer Lage, die fast keine Wünsche offen lässt: unmittelbar neben dem herrlichen Waldgebiet des Lainzer Tiergartens (lediglich ca. 1 Gehminute zum Nikolaitor) und gleichzeitig optimal an das Verkehrsnetz angebunden (ca. 9 Gehminuten zum Bahnhof Hütteldorf - UBahn/Schnellbahn).

Das ehemalige Vorstadthaus aus der Gründerzeit (spätes 19. Jahrhundert) wurde in seiner Grundsubstanz generalsaniert, mit dem Ziel das Haus (und den Garten mit wunderbaren Altbaumbestand) komplett zu erhalten. Daraus entstanden 6 exklusive Wohneinheiten samt großzügigen Freiflächen auf höchstem Niveau!

Diese exklusive 2 Zimmer Gartenwohnung ist gänzlich nach Nordosten ausgerichtet und hat sowohl vom Schlafzimmer als auch von der Wohnküche aus einen direkten Zugang zu einem ca. 102 m² Eigengarten, inkl. ca. 12,5 m² Terrasse. Ein Gartenzaum kann gerne auf Wunsch errichtet werden.

Verschaffen Sie sich hier einen Überblick - VIDEO UNTER:  https://youtu.be/QSjMd4PofoA

Die Lage vereint auf einzigartige Weise mehrere Vorzüge: Freizeit, Natur, Nahversorgung, _(Parkmöglichkeiten - befinden sich gerade im Umbau) _sowie die Anbindung an öffentliche Verkehrsmittel, Straßen und Radwege. 
Durch die verkehrsgünstige Lage nahe der Bahnlinie sowie der Wientalstraße ist ein erhöhter, jedoch stadtüblicher Geräuschpegel gegeben. Dieser steht im Einklang mit den Vorteilen der ausgezeichneten Infrastruktur und Anbindung.
Bauliche Maßnahmen sorgen für ein ruhiges Wohngefühl innerhalb der Wohnung. Des weiteren wurden vor ein paar Monaten auch 2 Lärmschutzwände errichtet, die zu einer Geräuschreduktion beitragen.

Weitere Highlights der Wohnung: 
Edler Parkettboden aus geölter Eiche (aus österreichischer Produktion); stilvolle Fliesen in Bad und WC; Hochwertige Sanitärausstattung; Holz-Alu-Fenster mit 3-fach-Isolierverglasung; Fußbodenheizung; Luftwärmepumpe für Heizung und Warmwasser; Vollmassive Eingangstüren im „Alt Wien“-Stil; Zentralschließanlage; TV-/Internetanschluss (A1); Video-Gegensprechanlage

Die Allgemeinbereiche überzeugen durch:
Elegantes Entree; Barrierefreier Lift; Kinderwagenraum; Überdachte Fahrradstellplätze im Garten mit direktem Ausgang zum Wiental-Radweg; Außenliegender, versperrbarer Müllraum; Heizung und Warmwasser mittels umwelt­freundlicher Luft-Wasser-Wärmepumpe

Angenommene Brutto Kosten/Monat:
Reparaturrücklage: EURO 53,73
Betriebskosten (inkl. Lift): EURO 146,45
Heizung: EURO 68,47
Warmwasser/Kaltwasserkosten: EURO 41,84
GESAMT: EURO 310,49

ALLES WAS DAS HERZ BEGEHRT befindet sich in 0,1 - 1 km Entfernung
Öffentliche Verkehrsanbindung: UBahn und SBahn Station Hütteldorf (Hütteldorf Bahnhof), ca. 650 m 
Auto: Auf- und Abfahrt zur Westautobahn sofort erreichbar
Fahrrad: Der Wiental-Radweg (ca. 12 km zum Stephansplatz) führt direkt an der Liegenschaft vorbei

Lebensmittel: Billa Plus, ca. 300 m; Spar, ca. 700 m; Fressnapf, ca. 400 m
Drogerie: Bipa, ca. 400 m, DM, ca. 800 m
Einkaufszentrum: Auhofcenter ca. 3 km
Bauhaus ca. 250 m
Apotheke: Belladonna Apotheke, ca. 800 m; St.-Nikolai-Apotheke, ca. 1 km
Spital: St. Josef-Krankenhaus ca. 900 m; Standort Penzing der Klinik Ottakring, ca. 2 km; Hanusch Krankenhaus, ca. 3,4 km; Klinik Hietzing, ca. 4,3 km 
Ärzte: ca. 400 m; 450 m; 750 m; 900 m; 1 km, usw.
Tierärzte: Tierpraxis Auhof, ca. 700 m; weitere ca. 700 m; 750 m; 950 m usw.
Freizeit/Natur: Lainzer Tiergarten (Nikolaitor), ca. 100 m; Wienfluss samt Wiental-Radweg, ca. 150 m; Hütteldorfer Bad, ca. 1,2 km

Kindergärten: Städtischer Kindergarten und Hort, ca. 550 m; Kindergarten Heidi - Hort Pädagogischer Verein, ca. 550 m; Kindergarten Hütteldorf, St. Nikolausstiftung, ca. 650 m; Pfarrkindergarten und Hort St. Andreas Hütteldorf, ca. 650 m; Kindergruppe Schäfchen Wolliweiss, ca. 650 m; Hort & Tagesheim der Dominikanerinnen, ca. 1 km; Kindergruppe Kükennest, ca. 1,1 km usw.
Volkschule: Volksschule Hütteldorf, ca. 600 m; Volksschule Hackinger Kai, ca. 750 m;  Volksschule der Dominikanerinnen, ca. 1,3 km
Mittelschule: Deutschordenstraße 4 mittelschule, ca. 1,3 km; Mittelschule der Dominikanerinnen, ca. 1,4 km; 
Gymnasium: Gymnasium u. wirtschaftskundliches Realgymnasium der Dominikanerinnen, ca. 1,4 km; Bundesinternat und Realgymnasium "Am Himmelhof", ca. 1,4 km
Montessori Schule: Montessori Campus Wien - Kinderhaus, ca. 700 m; Montessori Campus Wien - Primarstufe 1, ca. 700m; Montessori Campus Wien - Sekundarstufe 2, ca. 750 m
HTL: Fachschule und Aufbaulehrgang für wirtschaftliche Berufe der Dominikanerinnen, ca. 1.2 km

_Energieausweisdaten: HWB B 40,20 und fGEE A 0,826_

Wir weisen darauf hin, dass zwischen dem Vermittler und dem zu vermittelnden Dritten ein familiäres oder wirtschaftliches Naheverhältnis besteht.

Der Vermittler ist als Doppelmakler tätig.
Beschreibung weiterlesen

Lage und Verkehrsanbindung

Nikolaitor, Lainzer Tiergarten

Energieeffizienz

HWB:
40,2 kWh/(m²*a)
HWB Klasse:
B
fGEE:
0,83
fGEE Klasse:
A
Energieausweisart:
Energiebedarfs-ausweis
Gültig bis:
16.04.2035

Grundriss

Lageplan

1130 Wien | Wien 13., Hietzing

Lade...
Tania Oppel

Tania Oppel
native speaker: Englisch, Afrikaans

IMMO AGENCY GmbH

Lade...

Fotomix

Bild 1 Bild 2 Bild 3 Bild 4 Bild 5 Bild 6 Bild 7 Bild 8 Bild 9 Bild 10 Bild 11 Bild 12 Bild 13 Bild 14 Bild 15