NEU - Gartenwohnung in Hofruhelage

Wohnung zur Miete in 1200 Wien - Gesamtmiete: 979,00 € / Objektnummer: 1718/1749004
Ausstattung: Boden Fahrstuhl Bad Rollladen Kabel/Satelliten-TV Garage Parkplatz Fahrradraum Abstellraum Fußbodenheizung Balkon Terrasse Garten

Preisinformationen

Gesamtmiete:
979,00 € / Monat
Betriebskosten netto:
94,37 € / Monat
Umsatzsteuer:
89,00 €
Kaution:
3 Bruttomonatsmieten
Provision:
Gemäß Erstauftraggeberprinzip bezahlt der Abgeber die Provision.

Fakten

Objektnummer:
1718/1749004
Objekttyp:
Wohnung
Balkon:
1
Terrasse:
1
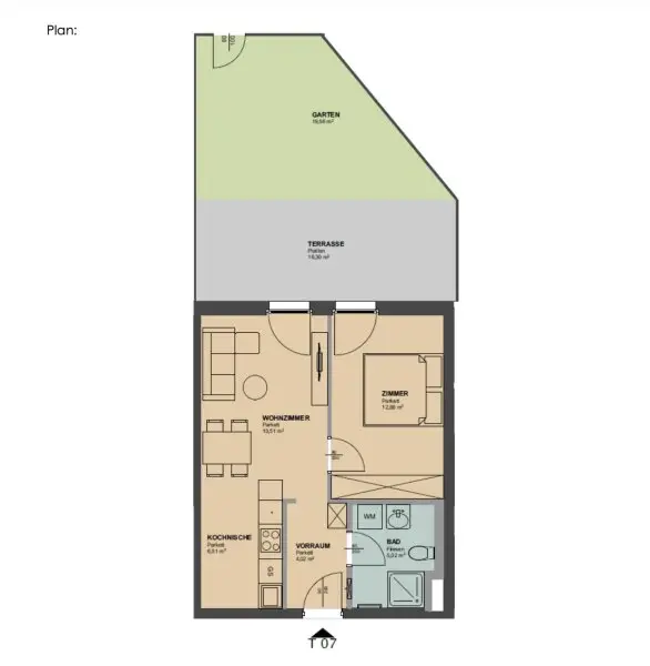
Wohnfläche:
42 m²
Nutzfläche:
42 m²
Gartenfläche:
19,56 m²
Zimmer:
2
Badezimmer:
1
Stockwerk:
1
Zustand:
Neuwertig
Verfügbarkeit:
Verfügbar

Beschreibung

Zur Vermietung gelangt diese 2-Zimmer Wohnung mit ca. 42 m²  in absoluter Ruhelage nahe Handelskai. Das Objekt befindet sich im 1.Liftstock. Die Wohnung ist ruhig ausgerichtet und verfügt über eine Küche welche bereits inkludiert ist zusätzlich ausgestattet ist bereits das, Bad, WC sowie ein großzügiges Wohnzimmer mit angrenzendem kleinen Schlafzimmer. Die Wohnung befindet sich in einem gepflegten Wohngebäude und ist in einem neuwertigen Zustand.

Die Wohnung kann ab sofort mit einer Befristung von 5 Jahren angemietet werden.

 

Qualität im Fokus:

* Sicherheitstüren für ein geborgenes Gefühl
* Eleganter Eichenparkettboden
* Feinsteinzeug Fliesen im Nassbereich
* Hochwertige Einbauküche in mattem Weiß
* Marken-Sanitärausstattung
* Fußbodenheizung, mittel Fernwärme, bedient durch ein zentrales
* Raumthermostat
* elektrisch betriebener Badheizkörper
* elektrische Außenbeschattung für heiße Sommertage
* Lift
* Einlagerungsräume
* Fahrradraum & Kinderwagenabstellraum
* Großzügige & schöne Freiflächen in allen Wohnungen (Balkon/Garten)
* Energiesparende Bauweise mit Klimazertifizierung
* Tiefgarage mit potenzieller E-Mobilität

Mietkosten:

Miete monatlich: € 979,- (inkl. USt und Betriebskosten)

Kaution: 3 Monatsmieten

_Die Kosten für Energie, Heizung und Wasser sind gesondert zu bezahlen und somit nicht im angeführten Mietpreis enthalten._

 

Öffentliche Verkehrsanbindung: 

* Straßenbahn: Höchstädtplatz: Straßenbahnlinien 2, 5, 30, 31 und 33
* Autobus: Friedrich-Engels-Platz: Buslinien 5A, 11A, 11B, N8
* U-Bahn: U6 - Dresdner Straße

 

Energieausweis:

BAUTEIL 1: Energieklasse A - 21,2 kWh/m²a

BAUTEIL 2: Energieklasse A - 20,5 kWh/m²a

 

Für Fragen bzw. Besichtigungen steht Ihnen Herr Julian Kukacka sehr gerne unter 0664 444 5770 zur Verfügung.

Wir weisen darauf hin, dass zwischen dem Vermittler und dem zu vermittelnden Dritten ein familiäres oder wirtschaftliches Naheverhältnis besteht.

Der Immobilienmakler erklärt, dass er – entgegen dem in der Immobilienwirtschaft üblichen Geschäftsgebrauch des Doppelmaklers – einseitig nur für den Vermieter tätig ist.

Infrastruktur / Entfernungen

Gesundheit
Arzt <125m
Apotheke <100m
Klinik <200m
Krankenhaus <650m

Kinder & Schulen
Schule <250m
Kindergarten <200m
Universität <150m
Höhere Schule <825m

Nahversorgung
Supermarkt <25m
Bäckerei <225m
Einkaufszentrum <200m

Sonstige
Geldautomat <225m
Bank <225m
Post <200m
Polizei <475m

Verkehr
Bus <50m
U-Bahn <425m
Straßenbahn <100m
Bahnhof <425m
Autobahnanschluss <1.000m

Angaben Entfernung Luftlinie / Quelle: OpenStreetMap
Beschreibung weiterlesen

Lage und Verkehrsanbindung

Dresdner Straße, Stromstraße, Adalbert Stifterstraße

Millennium City, Augarten, Donauinsel, Floridsdorfer Hauptstraße

Energieeffizienz

HWB:
21,2 kWh/(m²*a)
HWB Klasse:
A
fGEE:
0,79
fGEE Klasse:
A
Energieausweisart:
Energiebedarfs-ausweis

Grundriss

Lageplan

1200 Wien | Wien 20., Brigittenau

Lade...
Julian Kukacka

Julian Kukacka

RIMMO Prime Vermittlungs GmbH

Lade...

Fotomix

Bild 1 Bild 2 Bild 3 Bild 4 Bild 5 Bild 6 Bild 7 Bild 8