NEU - Gastronomie-Standort Muthgasse

Gastgewerbe zur Miete in 1190 Wien / Objektnummer: 1939/217226
Ausstattung:

Preisinformationen

Gesamtmiete (exkl. USt.):
5.521,80 € / Monat
Miete/m² netto:
15,00 €
Vermittlungsprovision:
Ja
Provision:
3 Bruttomonatsmieten zzgl. 20% USt.

Fakten

Objektnummer:
1939/217226
Objekttyp:
Gastgewerbe
Nutzfläche:
239,21 m²
Verfügbarkeit:
Verfügbar

Beschreibung

GASTRONOMIE & NAHVERSORGUNG IM NEUEN LEBENSRAUM MUTHGASSE – ÜBER 300 WOHNUNGEN, KINDERGARTEN & STUDENTENWOHNHEIM MIT 300 PLÄTZEN

Die Gastronomie- und Nahversorgungsflächen befinden sich im Erdgeschoss eines modernen, architektonisch hochwertigen Wohn- und Geschäftsensembles. Mit über 300 neu entstehenden Wohnungen, einem Kindergarten mit 6 Gruppen sowie einem Wohnheim entsteht ein vielfältiges, urbanes Quartier, das eine starke, verlässliche Grundfrequenz garantiert.

👥 STARKE, GANZTÄGIGE FREQUENZ DURCH VIELFÄLTIGE NUTZERGRUPPEN

Die Kombination aus Wohnen, Bildung, Arbeiten und Nahversorgung schafft ein durchgehend belebtes Umfeld. Die Gastronomie profitiert von einer außergewöhnlich breiten Zielgruppe:

*
_über 300 Wohnungen_* direkt im Quartier

*
Kindergarten mit 6 Gruppen – Eltern, Kinder, Pädagog*innen, tägliche Bring- und Abholfrequenz

*
Wohnheim – zusätzliche Grundauslastung und Abendfrequenz

*
Mitarbeiter*innen der umliegenden Büro- und Forschungsstandorte

*
Studierende der nahegelegenen Universitätsbereiche

*
Laufkundschaft durch die Nähe zur U4 Heiligenstadt

*
Besucher*innen des öffentlichen Platzes mit Wasserspielen und Aufenthaltszonen

Diese Mischung sorgt für kontinuierliche Frequenz vom frühen Morgen bis in den Abend – ideal für Frühstück, Mittagsgeschäft, Nachmittagsbetrieb und Abendgastronomie.

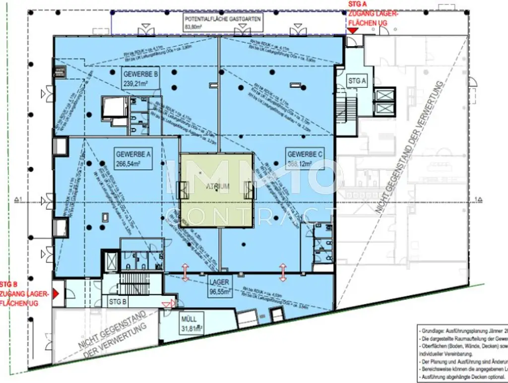
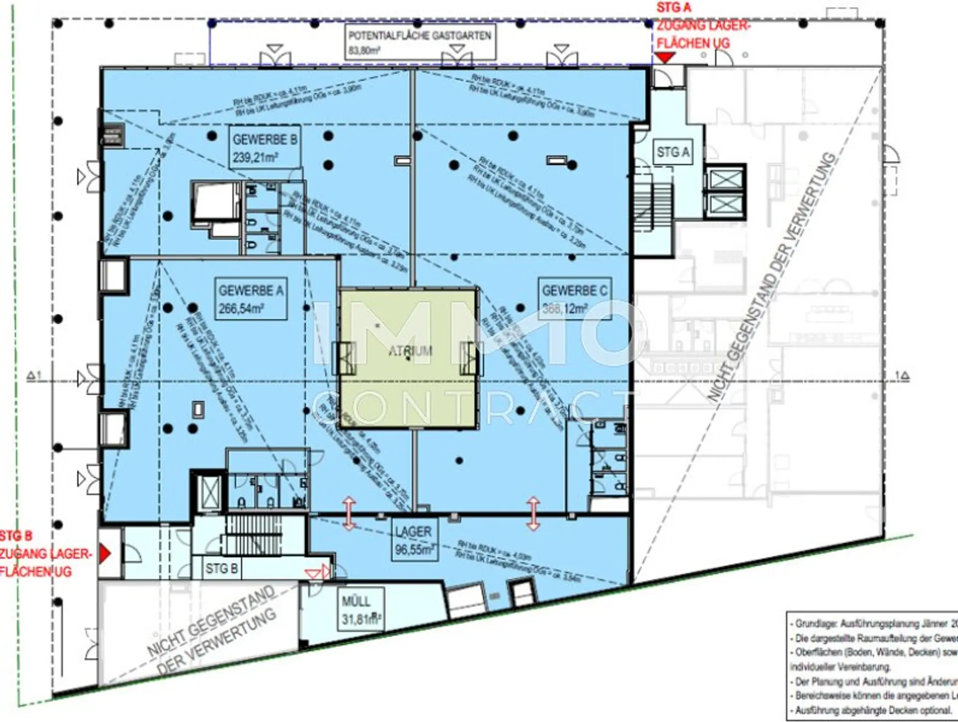
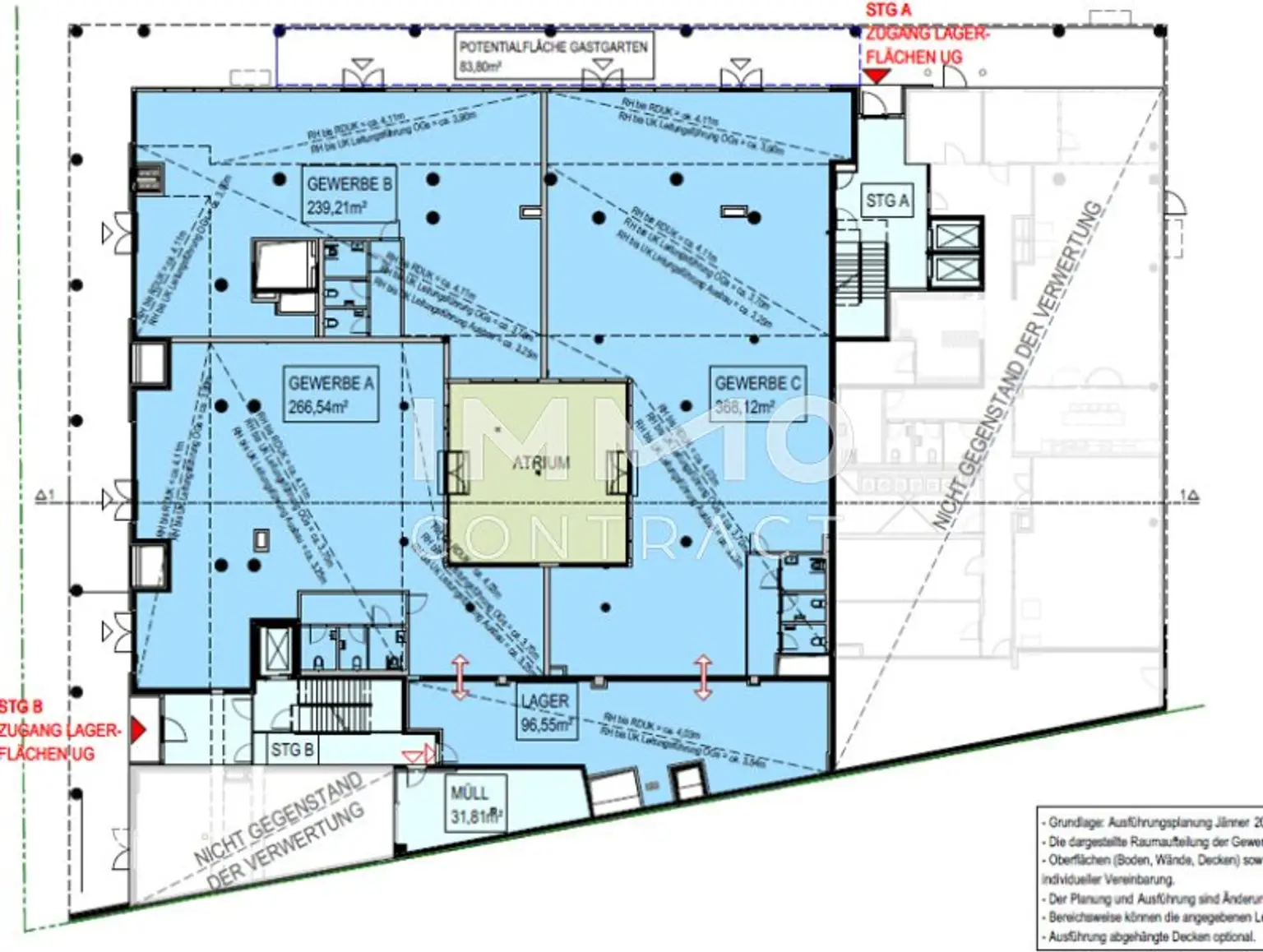
Flexible Gastronomieflächen mit Außenbereich

Die drei Einheiten im Erdgeschoss bieten ideale Voraussetzungen für unterschiedliche Betreiberkonzepte:

*
Gewerbe A – 266,54 m²

*
Gewerbe B – 239,21 m²

*
Gewerbe C – 368,12 m²

*
Gastgartenpotenzial – 83,80 m²

Großzügige Glasfronten, klare Grundrisse und moderne technische Vorbereitungen ermöglichen eine individuelle Gestaltung und hohe Sichtbarkeit. Lager- und Müllräume befinden sich in unmittelbarer Nähe, was den Betrieb effizient unterstützt.

URBANES, HOCHWERTIGES UMFELD

Der vorgelagerte Platz mit Wasserspielen, Sitzbereichen und Grünflächen schafft eine einladende Atmosphäre und erhöht die Aufenthaltsqualität. Die Gastronomie profitiert von:

*
attraktiven Außenbereichen

*
hoher Sichtbarkeit im Quartier

*
moderner Architektur

*
einem wachsenden, zukunftsorientierten Stadtteil

22,- Miete inkl. BK und inkl. ( Ust.)

Wir weisen darauf hin, dass zwischen dem Vermittler und dem zu vermittelnden Dritten ein familiäres oder wirtschaftliches Naheverhältnis besteht.

Der Vermittler ist als Doppelmakler tätig.

Infrastruktur / Entfernungen

Gesundheit
Arzt <500m
Apotheke <500m
Klinik <1.500m
Krankenhaus <2.000m

Kinder & Schulen
Schule <500m
Kindergarten <500m
Universität <500m
Höhere Schule <1.000m

Nahversorgung
Supermarkt <500m
Bäckerei <500m
Einkaufszentrum <500m

Sonstige
Geldautomat <500m
Bank <500m
Post <500m
Polizei <1.500m

Verkehr
Bus <500m
U-Bahn <500m
Straßenbahn <500m
Bahnhof <500m
Autobahnanschluss <500m

Angaben Entfernung Luftlinie / Quelle: OpenStreetMap
Beschreibung weiterlesen

Lage und Verkehrsanbindung

Die Liegenschaft Muthgasse 50 befindet sich im Herzen des 19. Bezirks, einem der gefragtesten und dynamischsten Entwicklungsgebiete Wiens. Das Areal liegt zwischen Donaukanal, Heiligenstadt, und der Döblinger Hauptstraße und profitiert von einer außergewöhnlich starken Infrastruktur, hervorragender öffentlicher Anbindung und einem wachsenden, hochwertigen Nutzungsmix.

Top‑Anbindung an den öffentlichen Verkehr
U4 Heiligenstadt in wenigen Gehminuten erreichbar

S‑Bahn & Regionalzüge direkt am Bahnhof Heiligenstadt

Straßenbahn & Buslinien in unmittelbarer Nähe

Direkte Verbindung in die Wiener Innenstadt und zum Knotenpunkt Spittelau

Hervorragende Erreichbarkeit für Individualverkehr
Schnelle Anbindung an die B14 (Heiligenstädter Lände)

Direkte Zufahrt zur A22 Donauuferautobahn

270 Tiefgaragenplätze im Projektumfeld, inkl. E‑Ladestationen

Grundriss

Lageplan

1190 Wien | Wien 19., Döbling

Lade...
Roman Schmatzer

Roman Schmatzer
Leitung Gewerbe

IMMOcontract Immobilien Vermittlung GmbH

Lade...