NEU - Geförderte Genossenschaftswohnungen in ruhiger Lage!

Wohnung zur Miete in 3100 St. Pölten - Gesamtmiete: 777,19 € / Objektnummer: 1760056
Ausstattung: Fahrstuhl Bad Abstellraum Loggia

Preisinformationen

Gesamtmiete:
777,19 € / Monat
Betriebskosten netto:
208,97 € / Monat
Heizkosten netto:
99,46 €
Umsatzsteuer:
59,81 €
Kaution:
1.999,87 €
Provision:
Gemäß Erstauftraggeberprinzip bezahlt der Abgeber die Provision.

Fakten

Objektnummer:
1760056
Objekttyp:
Wohnung
Loggia:
1
Wohnfläche:
68,02 m²
Loggia Fläche:
6,79 m²
Nutzfläche:
74,81 m²
Gesamtfläche:
74,81 m²
Zimmer:
2
Badezimmer:
1
Toilette:
1
Stockwerk:
2
Baujahr:
1975
Verfügbarkeit:
Verfügbar
Verfügbar ab:
ab sofort

Beschreibung

Geförderte Genossenschaftswohnungen  in ruhiger Lage!

In ruhiger, aber optimal an die Infrastruktur angebundener Lage unweit der Innenstadt, befindet sich dieses Wohnbauprojekt. Bei den Wohnungen handelt es sich um Genossenschaftswohnungen, die unbefristet vermietet werden. Die Vermittlung ist für Sie provisionsfrei.

Die Lage verbindet Stadt und Natur! Nicht nur der Bahnhof und die Innenstadt mit all ihren Möglichkeiten, sondern auch Naherholungsgebiete wie der Sturm19 Park und die Kellergasse sowie der Panoramaweg liegen hier nur ein paar Minuten entfernt.

Einige der Wohnungen sind renovierungsbedürftig. Gegen Selbstsanierung erhalten Sie eine Mietfreistellung, wobei die Dauer der Mietfreistellung vom Zustand der Wohnung abhängt.

Die Wohnungen werden wie sie liegen und stehen übergeben.

Haus 6 Wohnung Top 12:

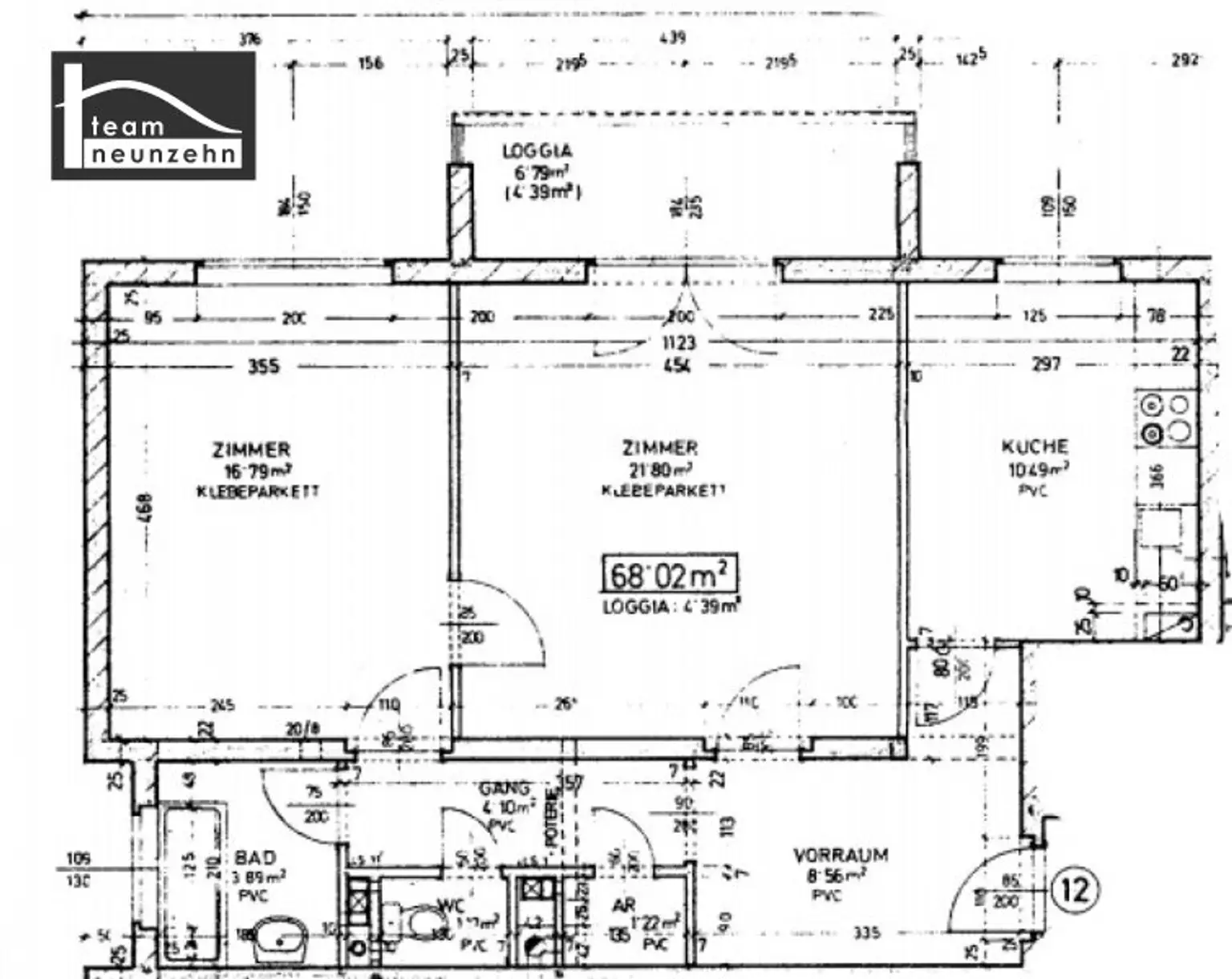
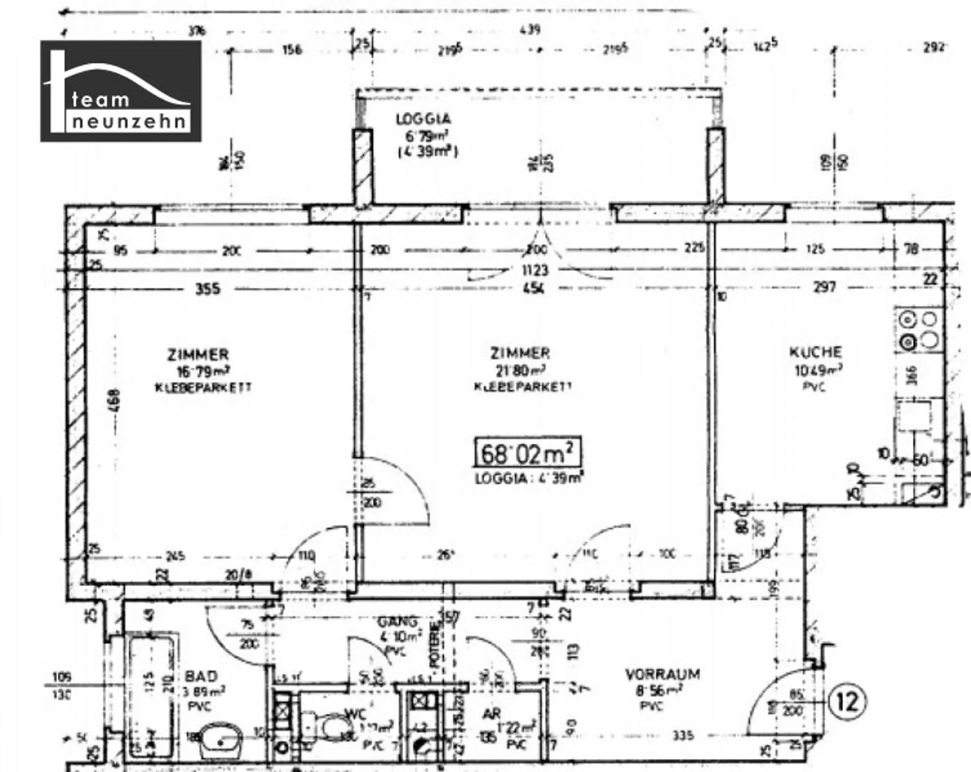
Die Wohnung befindet sich im 2. Obergeschoss und gliedert sich in folgende Raumaufteilung:

* Vorraum: ca. 8,56 m²
* Gang: ca. 4,10 m²
* Zimmer 1: ca. 21,80 m²
* Küche: ca. 10,49m²
* Zimmer 2: ca. 16,79 m²
* Abstellraum: ca. 1,22 m²
* Bad: ca. 3,89 m²
* WC: 1,17 m²

 

Mietkosten:

MIETFREISTELLUNG GEGEN SELBSTSANIERUNG!

 

Monatliche Mietkosten: 585,15 € (inkl. Betriebskosten und Umsatzsteuer)

Heizkostenakonto: 119,35 € (inkl. Umsatzsteuer)

Warmwasserakonto: 72,69 € (inkl. Umsatzsteuer)

Gesamtmiete monatlich inklusive Heizkosten & Warmwasser: 777,18 € (exklusive Strom)

Genossenschaftsbeitrag: einmalig 51 € pro Hauptmieter

Finanzierungsbeitrag: 1 249,73 €

Kaution: 1 999,87 €

PROVISIONSFREI

 

Lage und Infrastruktur:

Diese Liegenschaft ist in ruhiger Lage etwas außerhalb des Zentrums gelegen. Hier kann man die Natur genießen, ohne auf die Vorteile der Stadt verzichten zu müssen. Nur wenige Meter von der Eingangstür entfernt, befindet sich die Bushaltestelle Propst-Führer-Straße, an der die LUP Busse der Linien 4, 6 und 13 sowie die Buslinie 481 halten. Den Hauptbahnhof erreicht man zu Fuß in rund einer viertel Stunde, mit dem Bus und dem Rad sogar innerhalb von etwa 5 Minuten.

Dank der nahegelegenen Praterstraße gelangt man ebenso mit dem Auto in kürzester Zeit an sein Ziel.

Speziell der Sturm 19 Park (weniger als 10 min zu Fuß und etwa 3 min mit dem Rad entfernt) lädt zum Entspannen in der Natur ein. Auch die Kellerwege und der Panoramaweg befinden sich in der Nähe.

 

Energieausweis:

Der Heizwärmebedarf beträgt 105,10 kWh/m2a, welcher der Klasse D entspricht.

 

Für Fragen bzw. Besichtigungen steht Ihnen Frau Katharina Kurek sehr gerne unter 0676 852 243 512 zur Verfügung.

Wir weisen darauf hin, dass zwischen dem Vermittler und dem zu vermittelnden Dritten ein familiäres oder wirtschaftliches Naheverhältnis besteht.

Der Immobilienmakler erklärt, dass er – entgegen dem in der Immobilienwirtschaft üblichen Geschäftsgebrauch des Doppelmaklers – einseitig nur für den Vermieter tätig ist.

"Leben braucht Raum" * T19-RE Real Estate GmbH & Co KG * www.teamneunzehn.at [https://www.teamneunzehn.at]

Doppelmakler

Wir werden als Immobilienmakler kraft bestehenden Geschäftsgebrauchs als Doppelmakler tätig und haben sohin beide Seiten des Vertrages (Verkäufer-Käufer, Vermieter-Mieter) zu unterstützen.

Wirtschaftliches Naheverhältnis

Es wird bekannt gegeben, dass folgendes wirtschaftliches Naheverhältnis zwischen der teamneunzehn-Gruppe und dem Verkäufer/der vermietenden Partei besteht: ständige und dauerhafte Beauftragung mit der Vermittlung des bestehenden Immobilienportfolios

Haftungserklärung zum Inserat

Irrtum und Änderungen vorbehalten! Sofern es sich bei Bildern um Visualisierungen handelt, können Abänderungen zur tatsächlichen Ausführung resultieren. Wir weisen ausdrücklich darauf hin, dass das auf Fotos oder Visualisierungen ersichtliche Mobiliar bzw. Inventar nicht Bestandteil des inserierten Preises ist.

 

 

Infrastruktur / Entfernungen

Gesundheit
Arzt <775m
Apotheke <375m
Klinik <600m
Krankenhaus <400m

Kinder & Schulen
Schule <700m
Kindergarten <400m
Universität <750m
Höhere Schule <1.050m

Nahversorgung
Supermarkt <375m
Bäckerei <325m
Einkaufszentrum <1.000m

Sonstige
Bank <350m
Geldautomat <400m
Polizei <925m
Post <900m

Verkehr
Bus <50m
Bahnhof <850m
Autobahnanschluss <3.375m
Flughafen <6.725m

Angaben Entfernung Luftlinie / Quelle: OpenStreetMap
Beschreibung weiterlesen

Lage und Verkehrsanbindung

Nahe Praterstraße, Universitätsklinikum, Sturm 19 Park, Weiterner Straße, Kellergasse

Praterstraße, Universitätsklinikum, Sturm 19 Park, Weiterner Straße, Kellergasse

Energieeffizienz

HWB:
105,1 kWh/(m²*a)
HWB Klasse:
D
fGEE:
1,84
fGEE Klasse:
D
Energieausweisart:
Energiebedarfs-ausweis

Grundriss

Lageplan

3100 St. Pölten | Sankt Pölten (Stadt)

Lade...
Katharina Kurek

Katharina Kurek
Immobilienvermittlung

teamneunzehn-Gruppe

Lade...

Fotomix

Bild 1 Bild 2 Bild 3 Bild 4 Bild 5 Bild 6 Bild 7 Bild 8 Bild 9 Bild 10 Bild 11