NEU - Gemütliche 2-Zimmer-Wohnung in 1160 Wien

Wohnung zur Miete in 1160 Wien - Gesamtmiete: 742,58 € / Objektnummer: 2781
Ausstattung: Boden Bad Etagenheizung

Preisinformationen

Gesamtmiete:
742,58 € / Monat
Betriebskosten netto:
146,10 € / Monat
Umsatzsteuer:
67,51 €
Kaution:
3 Bruttomonatsmieten
Provision:
Gemäß Erstauftraggeberprinzip bezahlt der Abgeber die Provision.

Fakten

Objektnummer:
2781
Objekttyp:
Wohnung
Wohnfläche:
62,5 m²
Zimmer:
2,5
Badezimmer:
1
Toilette:
1
Baujahr:
1900
Altbau:
Ja
Verfügbarkeit:
Verfügbar

Beschreibung

Auf einer großzügigen Fläche von 62,5 m² erwarten Sie zwei lichtdurchflutete Zimmer, die Ihnen zahlreiche Möglichkeiten zur individuellen Gestaltung bieten. Ob als gemütliches Refugium für Singles oder als perfektes Nest für Paare – diese Wohnung wird Ihren Ansprüchen gerecht.

Die Miete von nur 742,58 € macht dieses Angebot besonders attraktiv. 

In der unmittelbaren Umgebung finden Sie alles, was Sie für den täglichen Bedarf benötigen. Ärzte, Apotheken, Kliniken, Schulen und Kindergärten sind in wenigen Minuten zu Fuß erreichbar. Für Studierende ist die Nähe zu Universitäten und höheren Schulen ein weiteres Plus.

Für Ihre Einkäufe stehen Ihnen diverse Supermärkte und eine Bäckerei in der Nähe zur Verfügung. Zudem profitieren Sie von einem Einkaufszentrum, das Ihnen eine breite Auswahl an Geschäften und Dienstleistungen bietet. Nach einem langen Arbeitstag können Sie in einem der vielen Cafés oder Restaurants der Umgebung entspannen und das Wiener Lebensgefühl genießen.

 

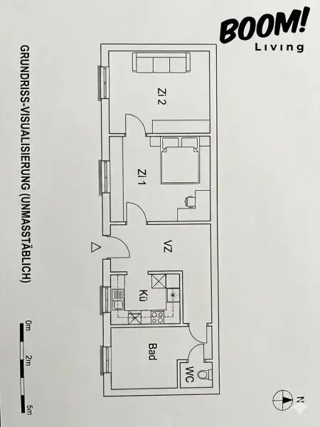
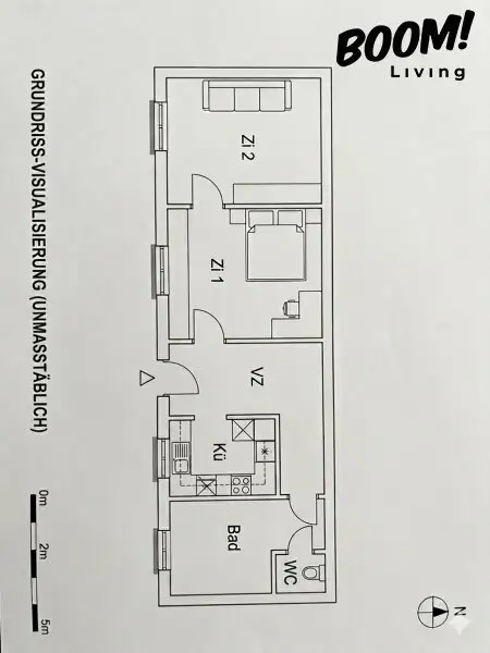
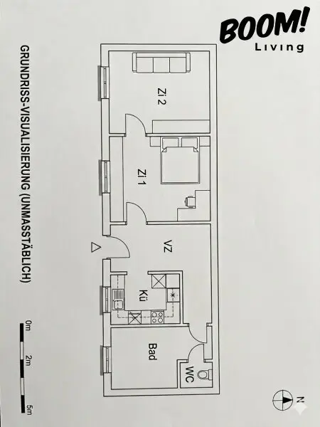
Leider gibt es zur Wohnung keinen Plan. Sie ist nicht zentral begehbar und folglich nicht WG-geeignet. Man gelangt über den großen Vorraum in die Küche, ins Wohnzimmer sowie über den Abstellraum / Abstelldurchgang in das Bad mit WC. Über das Wohnzimmer gelangt man ins Schlafzimmer.

1. Stock ohne Lift!

Aufteilung: nicht zentral begehbar, man kommt ins Vorzimmer über einen eigenen Laubengang. Vom Vorzimmer befindet sich rechterhand die Küche, Linkerhand kommt man ins Wohnzimmer und von dort ins Schlafzimmer. Das Bad, Abstellraum/Gang sowie WC erreicht man über den Vorraum.

 

Nutzen Sie die Gelegenheit, in dieser attraktiven Wohnung in 1160 Wien zu wohnen. Hier erwartet Sie eine perfekte Kombination aus Lebensqualität, Komfort und urbanem Flair. Überzeugen Sie sich selbst und vereinbaren Sie einen Besichtigungstermin – Ihr neues Zuhause wartet auf Sie!

 

Hinweis gemäß Energieausweisvorlagegesetz: Ein Energieausweis wurde vom Eigentümer bzw. Verkäufer, nach unserer Aufklärung über die generell geltende Vorlagepflicht, sowie Aufforderung zu seiner Erstellung noch nicht vorgelegt. Daher gilt zumindest eine dem Alter und der Art des Gebäudes entsprechende Gesamtenergieeffizienz als vereinbart. Wir übernehmen keinerlei Gewähr oder Haftung für die tatsächliche Energieeffizienz der angebotenen Immobilie.

Wir weisen darauf hin, dass zwischen dem Vermittler und dem zu vermittelnden Dritten ein familiäres oder wirtschaftliches Naheverhältnis besteht.

Der Immobilienmakler erklärt, dass er – entgegen dem in der Immobilienwirtschaft üblichen Geschäftsgebrauch des Doppelmaklers – einseitig nur für den Vermieter tätig ist.

Infrastruktur / Entfernungen

Gesundheit
Arzt <500m
Apotheke <500m
Klinik <1.000m
Krankenhaus <1.500m

Kinder & Schulen
Schule <500m
Kindergarten <500m
Universität <1.000m
Höhere Schule <1.000m

Nahversorgung
Supermarkt <500m
Bäckerei <500m
Einkaufszentrum <1.000m

Sonstige
Geldautomat <500m
Bank <500m
Post <500m
Polizei <500m

Verkehr
Bus <500m
U-Bahn <1.000m
Straßenbahn <500m
Bahnhof <1.000m
Autobahnanschluss <4.500m

Angaben Entfernung Luftlinie / Quelle: OpenStreetMap
Beschreibung weiterlesen

Lage und Verkehrsanbindung

Diese charmante Wohnung im 16. Bezirk von Wien bietet eine hervorragende Lage mit einer Vielzahl von Annehmlichkeiten in unmittelbarer Nähe. In der Umgebung finden Sie Ärzte, Apotheken, Kliniken sowie Schulen und Kindergärten, die den Alltag erleichtern. Supermärkte, Bäckereien und ein Einkaufszentrum sorgen für eine bequeme Nahversorgung. Die ausgezeichnete Anbindung an öffentliche Verkehrsmittel, darunter U-Bahn, Bus und Straßenbahn, macht das Pendeln einfach und komfortabel.

Grundriss

Lageplan

1160 Wien | Wien 16., Ottakring

Lade...
Philipp Puhr

Philipp Puhr

Boom Living GmbH & Co KG

Lade...

Fotomix

Bild 1 Bild 2 Bild 3 Bild 4 Bild 5 Bild 6 Bild 7 Bild 8