NEU - Gemütliche 2-Zimmer-Wohnung mit Balkon in Dornbirn

Wohnung zur Miete in 6850 Dornbirn - Gesamtmiete: 1.012,23 € / Objektnummer: 5360/1219
Ausstattung: Rollstuhlgerecht Boden Fahrstuhl Tiefgarage Parkplatz Außenparkplatz Fahrradraum Abstellraum Fußbodenheizung Balkon

Preisinformationen

Gesamtmiete:
1.012,23 € / Monat
Betriebskosten netto:
101,24 € / Monat
Umsatzsteuer:
92,02 €
Preisinfos:
Tiefgaragenplatz Optional zumietbar (100,00 €)
Kaution:
3 Bruttomonatsmieten

Fakten

Objektnummer:
5360/1219
Objekttyp:
Wohnung
Balkon:
1
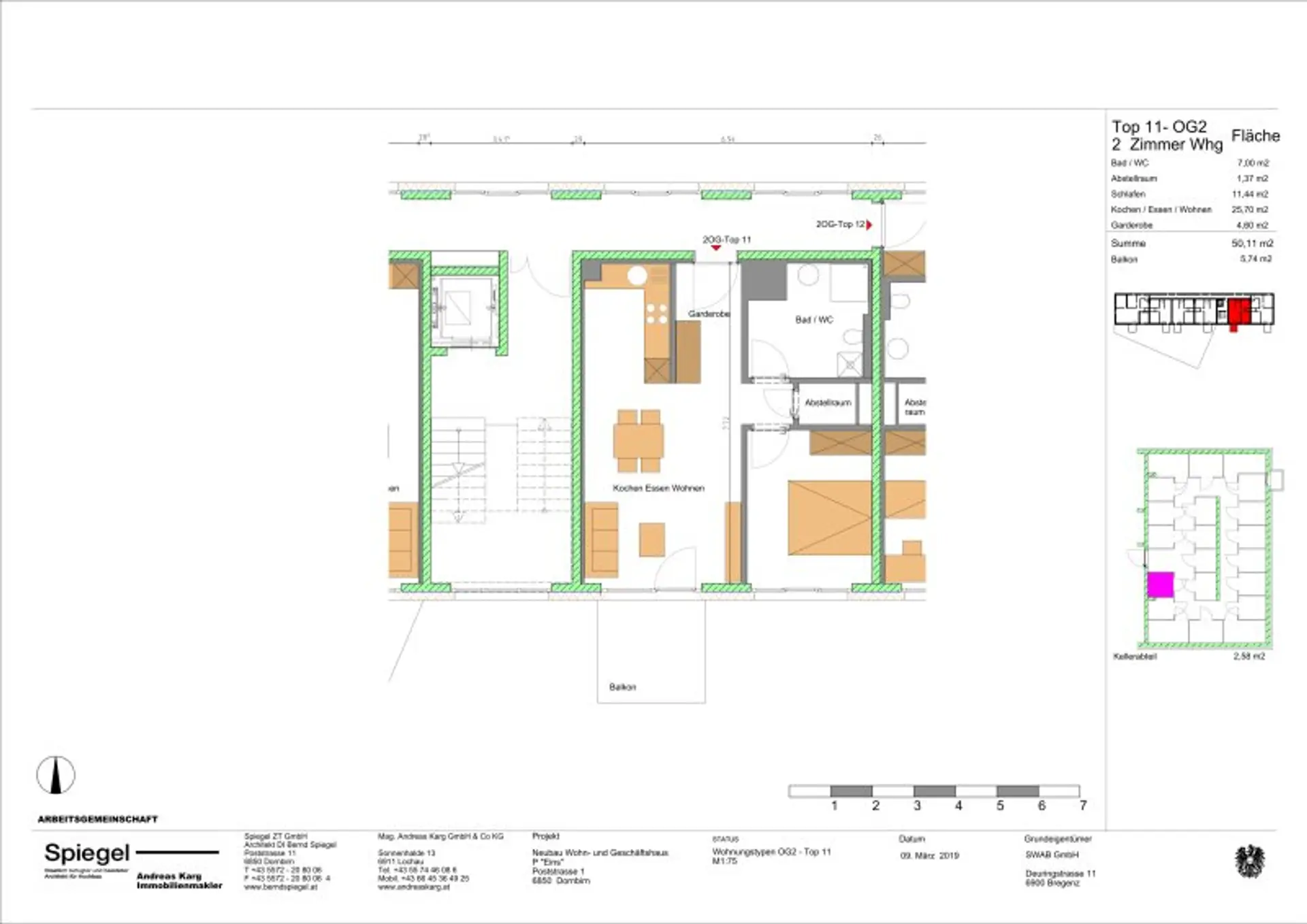
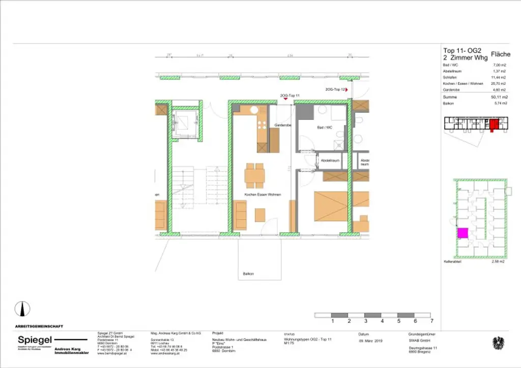
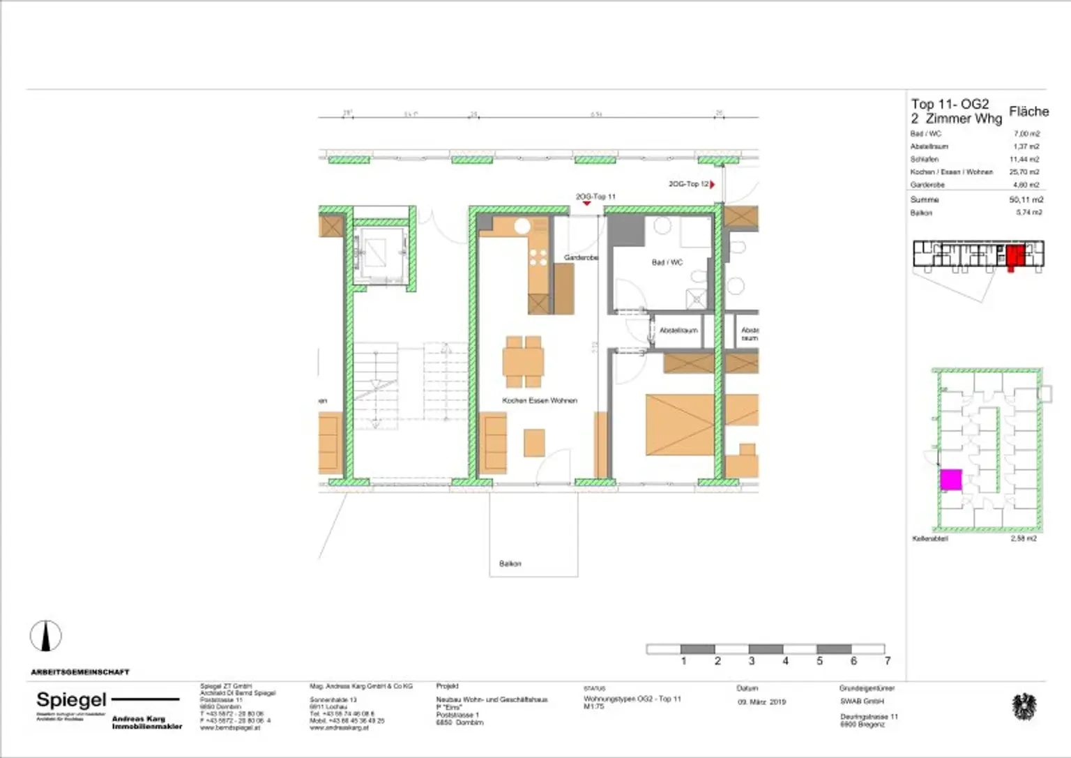
Wohnfläche:
50,46 m²
Zimmer:
2
Badezimmer:
1
Toilette:
1
Zustand:
Gepflegt
Verfügbarkeit:
Verfügbar

Beschreibung

Willkommen in Ihrem neuen Zuhause in der charmanten Stadt Dornbirn, Vorarlberg! Diese gepflegte Wohnung bietet Ihnen nicht nur ein modernes Wohnambiente, sondern auch eine perfekte Kombination aus urbanem Leben und naturnaher Umgebung.

Mit einer Fläche von 50,46 m² verteilt auf zwei lichtdurchflutete Zimmer, ist diese Wohnung ideal für Singles, Paare oder kleine Familien. Der durchdachte Grundriss schafft eine einladende Atmosphäre, in der Sie sich sofort wohlfühlen werden.

Die Wohnung ist mit hochwertigen Materialien ausgestattet, darunter elegante Fliesen und warmes Parkett. Die moderne Einbauküche ist nicht nur funktional, sondern auch der perfekte Ort, um kulinarische Köstlichkeiten zu zaubern. Die Fußbodenheizung sorgt in den kühleren Monaten für wohlige Wärme und ein angenehmes Wohnklima.

Zusätzlich profitieren Sie von einem Personenaufzug, der Ihnen den Zugang zur Wohnung erleichtert, sowie einem Parkplatz in der Tiefgarage, der Ihnen die Parkplatzsuche in der Stadt erspart.

Die verkehrstechnische Anbindung könnte nicht besser sein – mit einem Bus und dem Bahnhof in unmittelbarer Nähe sind Sie bestens vernetzt. Ob für den täglichen Arbeitsweg oder spontane Ausflüge, hier sind Sie immer gut aufgehoben.

Die Lage dieser Wohnung ist ebenso attraktiv wie die Immobilie selbst. In der Umgebung finden Sie alles, was Sie für den täglichen Bedarf benötigen: Ärzte, Apotheken, Schulen, Kindergärten, Supermärkte, Bäckereien und sogar ein Einkaufszentrum sind nur einen kurzen Fußweg entfernt. So bleibt mehr Zeit für die schönen Dinge im Leben.

Zögern Sie nicht und vereinbaren Sie noch heute einen Besichtigungstermin! Diese Wohnung in Dornbirn könnte schon bald Ihr neues Zuhause sein. Lassen Sie sich diese Chance nicht entgehen und erleben Sie selbst, wie es ist, in dieser fantastischen Immobilie zu leben.

Infrastruktur / Entfernungen

Gesundheit
Arzt <500m
Apotheke <500m
Krankenhaus <1.250m
Klinik <9.750m

Kinder & Schulen
Schule <250m
Kindergarten <500m
Universität <1.250m
Höhere Schule <8.500m

Nahversorgung
Supermarkt <250m
Bäckerei <250m
Einkaufszentrum <750m

Sonstige
Bank <250m
Geldautomat <250m
Post <250m
Polizei <250m

Verkehr
Bus <250m
Bahnhof <250m
Autobahnanschluss <2.250m
Flughafen <4.750m

Angaben Entfernung Luftlinie / Quelle: OpenStreetMap
Beschreibung weiterlesen

Lage und Verkehrsanbindung

Die Wohnung in 6850 Dornbirn bietet eine ideale Lage für Familien und Pendler. In unmittelbarer Nähe finden Sie alle wichtigen Einrichtungen des täglichen Bedarfs, darunter Arzt, Apotheke, Schule und Kindergarten. Supermärkte, eine Bäckerei und ein Einkaufszentrum sind schnell erreichbar. Zudem sorgen die gute Anbindung an öffentliche Verkehrsmittel wie Bus und Bahnhof sowie die Nähe zu Bank, Geldautomat, Post und Polizei für zusätzlichen Komfort. Hier wohnen Sie zentral und dennoch ruhig!

Grundriss

Lageplan

6850 Dornbirn | Dornbirn

Lade...
Erkan Cetin

Erkan Cetin
Immobilienkaufmann in Ausbildung

Breuss & Partner GmbH

Lade...

Fotomix

Bild 1 Bild 2 Bild 3 Bild 4 Bild 5 Bild 6 Bild 7 Bild 8 Bild 9 Bild 10