NEU - Generalsanierter 4-Zimmer Erstbezug mit moderner Ausstattung!

Wohnung zur Miete in 2171 Herrnbaumgarten - Gesamtmiete: 1.089,00 € / Objektnummer: 123535
Ausstattung: Boden Bad Kabel/Satelliten-TV Fahrradraum Abstellraum Zentralheizung Terrasse WG geeignet

Preisinformationen

Gesamtmiete:
1.089,00 € / Monat
Umsatzsteuer:
99,00 €
Kaution:
3 Bruttomonatsmieten
Provision:
Gemäß Erstauftraggeberprinzip bezahlt der Abgeber die Provision.

Fakten

Objektnummer:
123535
Objekttyp:
Wohnung
Terrasse:
1
Wohnfläche:
103 m²
Nutzfläche:
126 m²
Gesamtfläche:
126 m²
Zimmer:
4
Badezimmer:
1
Toilette:
2
Baujahr:
1972
Neubau:
Ja
Zustand:
Erstbezug
Verfügbarkeit:
Verfügbar

Beschreibung

Generalsanierter Erstbezug mit moderner Ausstattung

In zentraler Lage von Herrnbaumgarten, in einem gepflegten Wohnhaus aus dem Jahr 1972, entsteht aktuell eine komplett generalsanierte Mietwohnung im Innenhof, die ab Herbst 2026 bezugsfertig sein wird.

Hier verbindet sich solide Bausubstanz mit zeitgemäßer Technik und klarer, moderner Raumgestaltung – ideal für Paare oder kleine Familien, die ein durchdachtes Zuhause in ruhiger Umgebung suchen.

Die Wohnung – hochwertiger Erstbezug mit klarer Aufteilung

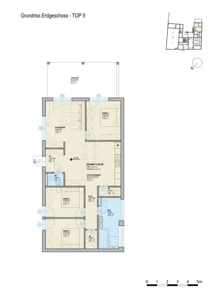
Die ca. 100 m² große Wohnung im Erdgeschoss verfügt unter anderem über drei Schlafzimmer, ein geräumiges Wohnzimmer, eine helle Essküche mit Einbauküche, eine direkt angeschlossene Terrasse sowie ein modern ausgestattetes Badezimmer mit Walk-in-Dusche und Badewanne.

Ein praktischer Abstellraum und ein separates WC runden das Raumangebot ab.

 

Hier geht es gleich zur Roomtour: https://getfloorplan.com/widget?id=b2d5402f-cea8-47f0-bf17-b74155b66f59 [https://getfloorplan.com/widget?id=b2d5402f-cea8-47f0-bf17-b74155b66f59]

 

Parkplätze stehen direkt vor und neben dem Haus zur Verfügung, ein gepflegter Gemeinschaftsgarten lädt zum Verweilen ein. Einkaufsmöglichkeiten (Nah & Frisch sowie Bäcker) sind direkt im Haus.

 

Ausstattung & Highlights

* Generalsanierter Erstbezug – alle Leitungen, Böden, Fenster & Sanitäranlagen neu
* Neue Kunststofffenster mit 3-fach Verglasung
* Neue Elektroinstallationen & neue moderne Pelletsheizung → niedrige Betriebskosten
* Fußbodenheizung
* 2,80m Raumhöhe
* Komplett ausgestattete Küche mit Markengeräten (Ceranfeld, Backrohr, Kühlschrank, Geschirrspüler, Umlufthaube)
* Badezimmer mit Walk-in-Dusche, Feinsteinzeug, Waschtisch & Waschmaschinenanschluss
* Laminatböden in Wohn- und Schlafräumen
* Abstellraum & getrenntes WC
* Eigene Terrasse südseitig, Abstellraum und Gartenmitbenutzung

 

Raumaufteilung im Überblick

* Vorzimmer: 4,3 m²
* WC: 2,03 m²
* Schlafzimmer 1: 13,23 m²
* Schlafzimmer 2: 11,34 m²
* Schlafzimmer 3: 11,34 m²
* Abstellraum: 2,2 m²
* Speis: 2,02m²
* Badezimmer: 10,36 m²
* Wohnzimmer: 16,84 m²
* Essküche: 24,14 m²

Gesamtfläche: 102,87 m²

 

Mietkonditionen

* Miete: € 990,-/Monat zzgl. Betriebskosten
* Energiekosten wie Warmwasser-, Heiz- und Stromkosten werden direkt nach Verbrauch abgerechnet
* Kaution: 3 Bruttomonatsmieten
* Mietdauer: 5 Jahre (mit Verlängerungsoption)
* Provisionsfrei – direkt vom Eigentümer
* Bezugsfertig in ca. 4 Monaten

 

Der Energieausweis ist in Erstellung und wird nachgereicht!

 

Kontaktieren Sie uns für weitere Informationen und eine Besichtigung – wir freuen uns auf Ihre Anfrage!

Der Immobilienmakler erklärt, dass er – entgegen dem in der Immobilienwirtschaft üblichen Geschäftsgebrauch des Doppelmaklers – einseitig nur für den Vermieter tätig ist.

Infrastruktur / Entfernungen

Gesundheit
Arzt <750m
Apotheke <4.950m
Krankenhaus <7.800m

Kinder & Schulen
Schule <4.300m
Kindergarten <5.025m

Nahversorgung
Supermarkt <4.350m
Bäckerei <4.925m

Sonstige
Bank <50m
Geldautomat <50m
Post <4.375m
Polizei <5.025m

Verkehr
Bus <25m
Autobahnanschluss <2.400m
Bahnhof <7.300m

Angaben Entfernung Luftlinie / Quelle: OpenStreetMap
Beschreibung weiterlesen

Grundrisse

Lageplan

2171 Herrnbaumgarten | Mistelbach

Lade...
Nicolas Krenkel

Nicolas Krenkel
Key Account Manager

BIP Immobilien Development GmbH

Lade...

Fotomix

Bild 1 Bild 2 Bild 3 Bild 4 Bild 5 Bild 6 Bild 7 Bild 8 Bild 9 Bild 10 Bild 11 Bild 12 Bild 13 Bild 14 Bild 15