NEU - Generalsaniertes Geschäftslokal im Tullnerbacher Zentrum

Einzelhandel zur Miete in 3013 Tullnerbach-Lawies / Objektnummer: 95261
Ausstattung: Boden Teeküche Bad Fußbodenheizung
Gewerbefläche
Außenansicht mit Eingang
Küche
Badezimmer
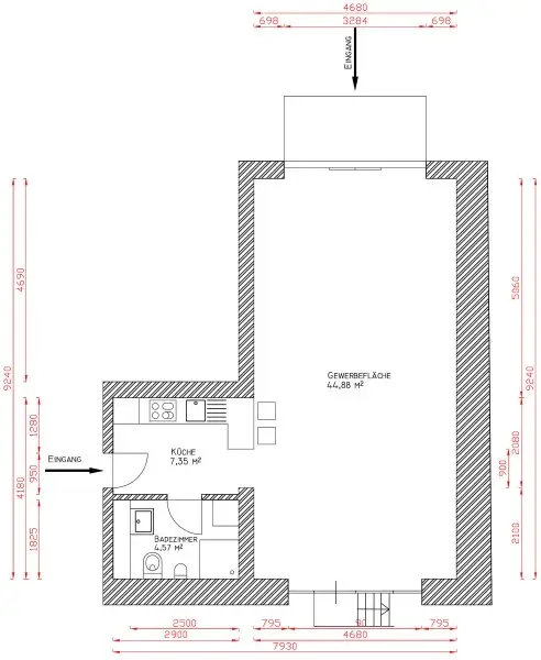
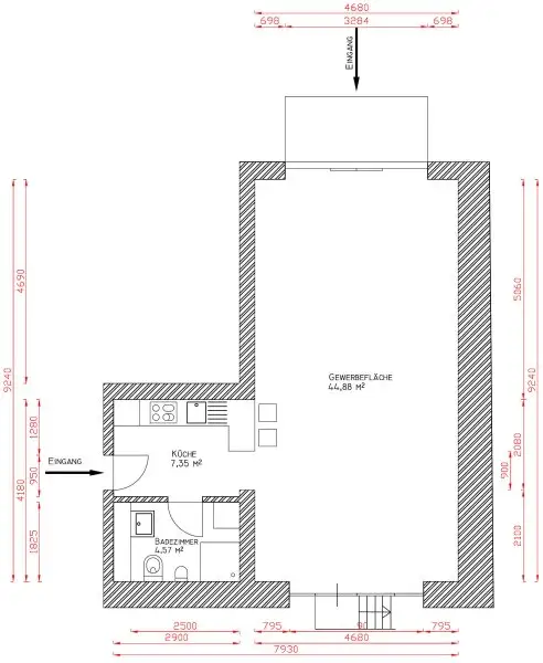
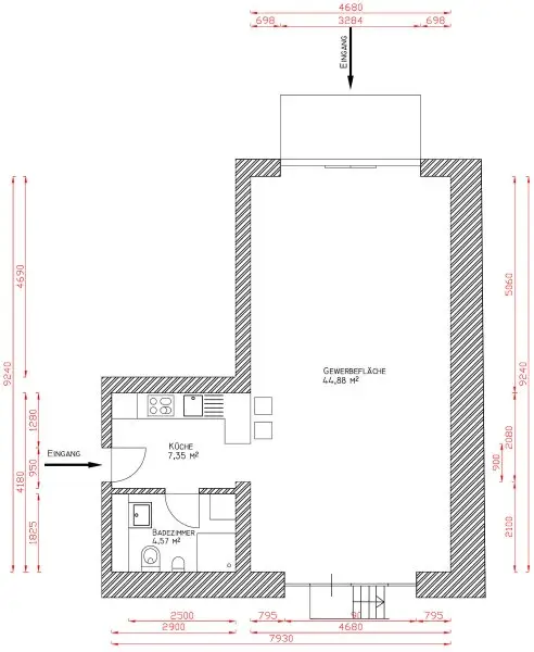
Grundriss

Preisinformationen

Gesamtmiete (exkl. USt.):
970,00 € / Monat
Kaution:
5.000,00 €
Vermittlungsprovision:
Ja
Provision:
3.492,00 € inkl. 20% USt.

Fakten

Objektnummer:
95261
Objekttyp:
Einzelhandel
Bürofläche:
57 m²
Badezimmer:
1
Zustand:
Teilsaniert
Verfügbarkeit:
Verfügbar

Beschreibung

Dieses Geschäftslokal, die ehemalige Blumeninsel, besticht vor allem durch die Top-Lage direkt im Tullnerbacher Ortszentrum an der B44. Zahlreiche Nahversorger (Fleischhauer Ströbel und Billa) sowie sämtliche Infrastruktureinrichtungen wie z.B. Gemeindezentrum, Ärzte und Gastronomiebetriebe sind im nächsten Umkreis vorhanden.

Das Objekt eignet sich zum Beispiel als Büro-, Geschäfts- oder Ladenlokal für Einzelhandel etc. (keine Gastronomie). Neben einer etwa 45 m² Geschäftsfläche, stehen außerdem eine Küche und ein Badezimmer (Dusche, WC, Waschbecken, Pissoir und Waschmaschine) zur Verfügung.

Die monatliche Gesamtmiete beträgt € 970,- und beinhaltet Betriebskosten und MwSt. Verbrauchsabhängige Kosten wie Strom und Gas sowie eventuelle Telefon- und/oder Internetgebühren sind von den Mietern direkt mit dem jeweiligen Anbieter abzurechnen.
 
Der Bahnhof Tullnerbach–Pressbaum mit regelmäßigen S-Bahnverbindungen nach Wien und St. Pölten liegt nur etwa fünf Gehminuten entfernt. Eine Bushaltestelle Richtung Purkersdorf befindet sich in unmittelbarer Nähe, die Wiener Stadtgrenze erreicht man in rund zehn Autominuten.

 

Der Vermittler ist als Doppelmakler tätig.

Infrastruktur / Entfernungen

Gesundheit
Arzt <500m
Apotheke <500m
Klinik <8.000m

Kinder & Schulen
Schule <500m
Kindergarten <500m

Nahversorgung
Supermarkt <500m
Bäckerei <500m

Sonstige
Bank <500m
Geldautomat <500m
Post <1.000m
Polizei <1.000m

Verkehr
Bus <500m
Bahnhof <500m
Autobahnanschluss <1.500m

Angaben Entfernung Luftlinie / Quelle: OpenStreetMap
Beschreibung weiterlesen

Energieeffizienz

HWB:
157 kWh/(m²*a)
HWB Klasse:
E
fGEE:
2,02
fGEE Klasse:
D
Energieausweisart:
Energiebedarfs-ausweis
Gültig bis:
26.07.2033

Grundriss

Lageplan

3013 Tullnerbach-Lawies | Sankt Pölten (Land)

Lade...
​Maximilian Cypris

​Maximilian Cypris
​Immobilienmakler

Rudi Dräxler Immobilientreuhand GesmbH

Lade...

Fotomix

Bild 1 Gewerbefläche Außenansicht mit Eingang Küche Badezimmer