NEU - Gepflegte Mietwohnungen in bester Lage beim Sonnwendviertel!

Wohnung zur Miete in 1100 Wien - Gesamtmiete: 1.367,88 € / Objektnummer: 1759970
Ausstattung: Boden Fahrstuhl Wohnküche / offene Küche Bad Kabel/Satelliten-TV Abstellraum Zentralheizung Loggia

Preisinformationen

Gesamtmiete:
1.367,88 € / Monat
Betriebskosten netto:
235,53 € / Monat
Umsatzsteuer:
124,35 €
Kaution:
3 Bruttomonatsmieten
Provision:
Gemäß Erstauftraggeberprinzip bezahlt der Abgeber die Provision.

Fakten

Objektnummer:
1759970
Objekttyp:
Wohnung
Loggia:
1
Wohnfläche:
72,16 m²
Loggia Fläche:
4,81 m²
Nutzfläche:
76,97 m²
Gesamtfläche:
76,97 m²
Zimmer:
3
Badezimmer:
1
Toilette:
1
Stockwerk:
3
Neubau:
Ja
Zustand:
Gepflegt
Verfügbarkeit:
Verfügbar

Beschreibung

Gepflegte Mietwohnungen in bester Lage beim Sonnwendviertel!

In der Humboldtgasse 38, 1100 Wien, befindet sich ein gepflegtes Wohnhaus mit geräumigen Wohnungen, die eine angenehme Kombination aus Wohnkomfort und urbaner Lage bieten. Das Haus verfügt über einen Aufzug, Kellerabteile, einen Fahrradraum sowie eine Garage.

Die Wohnungen sind auf 5 Jahre befristet und mit einer Einbauküche ausgestattet. Je nach Einheit steht eine Freifläche zur Verfügung. Die Ausrichtung erfolgt entweder zur verkehrsberuhigten Einbahnstraße Humboldtgasse oder hofseitig in den ruhigen Innenhof, wodurch eine hohe Wohnqualität gewährleistet ist.

Die Lage überzeugt durch eine ausgezeichnete öffentliche Verkehrsanbindung: Straßenbahnlinien entlang der Laxenburger Straße, die Nähe zu den U-Bahn-Stationen Keplerplatz und Reumannplatz sowie diverse Busverbindungen ermöglichen eine schnelle und unkomplizierte Mobilität. Auch der Wiener Hauptbahnhof ist rasch erreichbar.

In der näheren Umgebung befinden sich der Helmut-Zilk-Park im Sonnwendviertel, zahlreiche Einkaufs- und Freizeitmöglichkeiten, Restaurants und Cafés. Die Kombination aus ruhiger Wohnlage, guter Infrastruktur und urbanem Umfeld macht dieses Wohnprojekt zu einem attraktiven Standort im 10. Wiener Gemeindebezirk.

 

Das bietet Ihnen die Liegenschaft:

* Einbauküche
* 5 Jahre Befristung
* gute öffentliche Anbindung
* Gute Raumaufteilung & angenehme Helligkeit

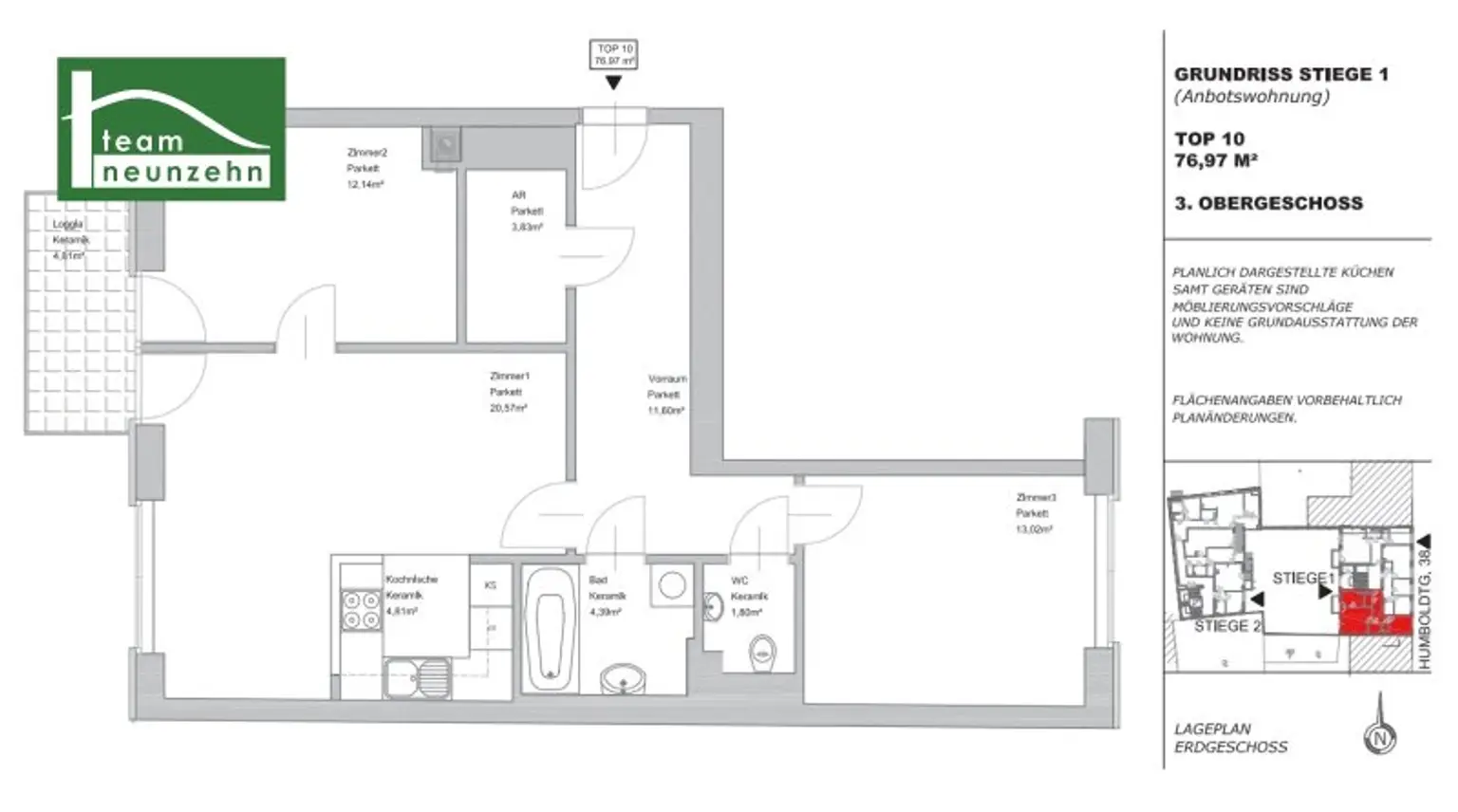
Wohnung Stiege 1 Top 10:

Zur Vermietung gelangt eine helle und gut geschnittene 3-Zimmer-Wohnung mit ca. 72,16 m² Wohnfläche inklusive ca. 4,81 m²  Loggia im 3. Liftstock eines gepflegten Wohnhauses in 1100 Wien. Die Wohnung ist 5 Jahre befristet zu mieten und ab 01.04.2026 bezugsbereit.

Raumaufteilung:

*
Großzügiger Vorraum mit ausreichend Platz für Garderobe o.Ä.

*
Offene Wohnküche mit moderner Einbauküche und Zugang zur westseitig ausgerichteten Loggia (Innenhoflage – ruhig und sonnig)

*
2 Schlafzimmer

*
Badezimmer mit Badewanne

*
Separates WC

*
Abstellraum

 

Einige Bilder des Inserats wurden zum Zweck der besseren Visualisierung digital mit KI möbliert. Die Wohnung wird unmöbliert übergeben.

Aufgrund dessen, das die Wohnung derzeit noch bewohnt ist, weisen wir höflichst darauf hin, dass es sich bei den Fotos anbei um Musterfotos handelt. Die Wohnung wird gleich oder gleichwertig übergeben.

 

Mietkosten:

monatliche Miete: € 1.367,88 (inkl. BK und USt.)

Akonto Heizung: € 193,04

Akonto Warmwasser: € 37,26

 

Nebenkosten:

Kaution: 3 Bruttomonatsmieten

Mietvertragserrichtungsgebühr: € 349,00 inkl. USt.

 

Infrastruktur:

Die Wohnung befindet sich in der Humboldtgasse 38 im 10. Bezirk von Wien, einer gut angebundenen Lage. In der unmittelbaren Umgebung finden sich zahlreiche Einkaufsmöglichkeiten, Restaurants und Cafés. Öffentliche Verkehrsmittel wie U-Bahn, Bus und Straßenbahn sind bequem zu erreichen, was eine schnelle Anbindung an das Stadtzentrum und andere Bezirke ermöglicht. Zudem lädt der nahegelegene Helmut-Zilk-Park zu Spaziergängen und Freizeitaktivitäten im Grünen ein, was die Wohnlage besonders attraktiv macht.

Die Anbindung ans öffentliche Verkehrsnetz ist ausgezeichnet, die U1 Station Reumannplatz ist zu Fuß rasch erreichbar. Weiters sind mehrere Bus- und Straßenbahnanbindungen vorhanden. Parkplätze sind meistens schnell zu finden. Supermärkte (Billa, Merkur) und Gastronomiebetriebe befinden sich ebenfalls in unmittelbarer Umgebung.

Öffentliche Verkehrsmittel in der Nähe:

* U-Bahn: U1 Reumannplatz & U1 Keplerplatz
* Straßenbahnlinien: 6, 11, O, D
* Buslinien: 14A, 68A, 68B, 65A

 

Energieausweis:

Der Heizwärmebedarf beträgt 36,9 kWh/m²a, welcher der Klasse B entspricht.

 

Für Fragen bzw. Besichtigungen steht Ihnen Frau Marija Ivanov sehr gerne unter ivanov@teamneunzehn.at sowie unter +43 676 852 243 531 zur Verfügung.

Wir weisen darauf hin, dass zwischen dem Vermittler und dem zu vermittelnden Dritten ein familiäres oder wirtschaftliches Naheverhältnis besteht.

Der Immobilienmakler erklärt, dass er – entgegen dem in der Immobilienwirtschaft üblichen Geschäftsgebrauch des Doppelmaklers – einseitig nur für den Vermieter tätig ist.

"Leben braucht Raum" * T19-RE Real Estate GmbH & Co KG * www.teamneunzehn.at [https://www.teamneunzehn.at]

Doppelmakler

Wir werden als Immobilienmakler kraft bestehenden Geschäftsgebrauchs als Doppelmakler tätig und haben sohin beide Seiten des Vertrages (Verkäufer-Käufer, Vermieter-Mieter) zu unterstützen.

Wirtschaftliches Naheverhältnis

Es wird bekannt gegeben, dass folgendes wirtschaftliches Naheverhältnis zwischen der teamneunzehn-Gruppe und dem Verkäufer/der vermietenden Partei besteht: ständige und dauerhafte Beauftragung mit der Vermittlung des bestehenden Immobilienportfolios

Haftungserklärung zum Inserat

Irrtum und Änderungen vorbehalten! Sofern es sich bei Bildern um Visualisierungen handelt, können Abänderungen zur tatsächlichen Ausführung resultieren. Wir weisen ausdrücklich darauf hin, dass das auf Fotos oder Visualisierungen ersichtliche Mobiliar bzw. Inventar nicht Bestandteil des inserierten Preises ist.

 

 

Infrastruktur / Entfernungen

Gesundheit
Arzt <225m
Apotheke <100m
Klinik <350m
Krankenhaus <1.575m

Kinder & Schulen
Schule <200m
Kindergarten <225m
Universität <975m
Höhere Schule <1.825m

Nahversorgung
Supermarkt <100m
Bäckerei <100m
Einkaufszentrum <425m

Sonstige
Geldautomat <100m
Bank <100m
Post <250m
Polizei <100m

Verkehr
Bus <125m
U-Bahn <125m
Straßenbahn <300m
Bahnhof <100m
Autobahnanschluss <1.575m

Angaben Entfernung Luftlinie / Quelle: OpenStreetMap
Beschreibung weiterlesen

Lage und Verkehrsanbindung

Gudrunstraße, Keplerplatz, Laxenburger Straße, Helmut-Zilk-Park, Sonnwendgasse

Energieeffizienz

HWB:
36,9 kWh/(m²*a)
HWB Klasse:
B
fGEE:
0,97
fGEE Klasse:
B
Energieausweisart:
Energiebedarfs-ausweis

Grundriss

Lageplan

1100 Wien | Wien 10., Favoriten

Lade...
Marija Ivanov

Marija Ivanov
Immobilienvermittlung

teamneunzehn-Gruppe

Lade...

Fotomix

Bild 1 Bild 2 Bild 3 Bild 4 Bild 5 Bild 6 Bild 7 Bild 8 Bild 9 Bild 10 Bild 11 Bild 12 Bild 13 Bild 14 Bild 15 Bild 16 Bild 17 Bild 18 Bild 19