NEU - Geschäftslokal als Ordination/Büro nutzbar - Nähe Murpark

Büro zur Miete in 8042 Graz-St. Peter - Gesamtmiete: 1.287,00 € / Objektnummer: 6789
Ausstattung: Zentralheizung

Preisinformationen

Gesamtmiete:
1.287,00 € / Monat
Gesamtmiete (exkl. USt.):
1.072,50 € / Monat
Umsatzsteuer:
214,50 €
Kaution:
5.000,00 €

Fakten

Objektnummer:
6789
Objekttyp:
Büro
Nutzfläche:
71,3 m²
Bürofläche:
71,3 m²
Zimmer:
4
Toilette:
1
Baujahr:
2019
Zustand:
Gepflegt
Verfügbarkeit:
Verfügbar

Beschreibung

Dieses attraktive Geschäftslokal befindet sich in einer Wohnanlage mit betreutem Wohnen !
Ideal kann das Lokal als Ordination, Praxis oder sonstige Art von Büro genutzt werden.

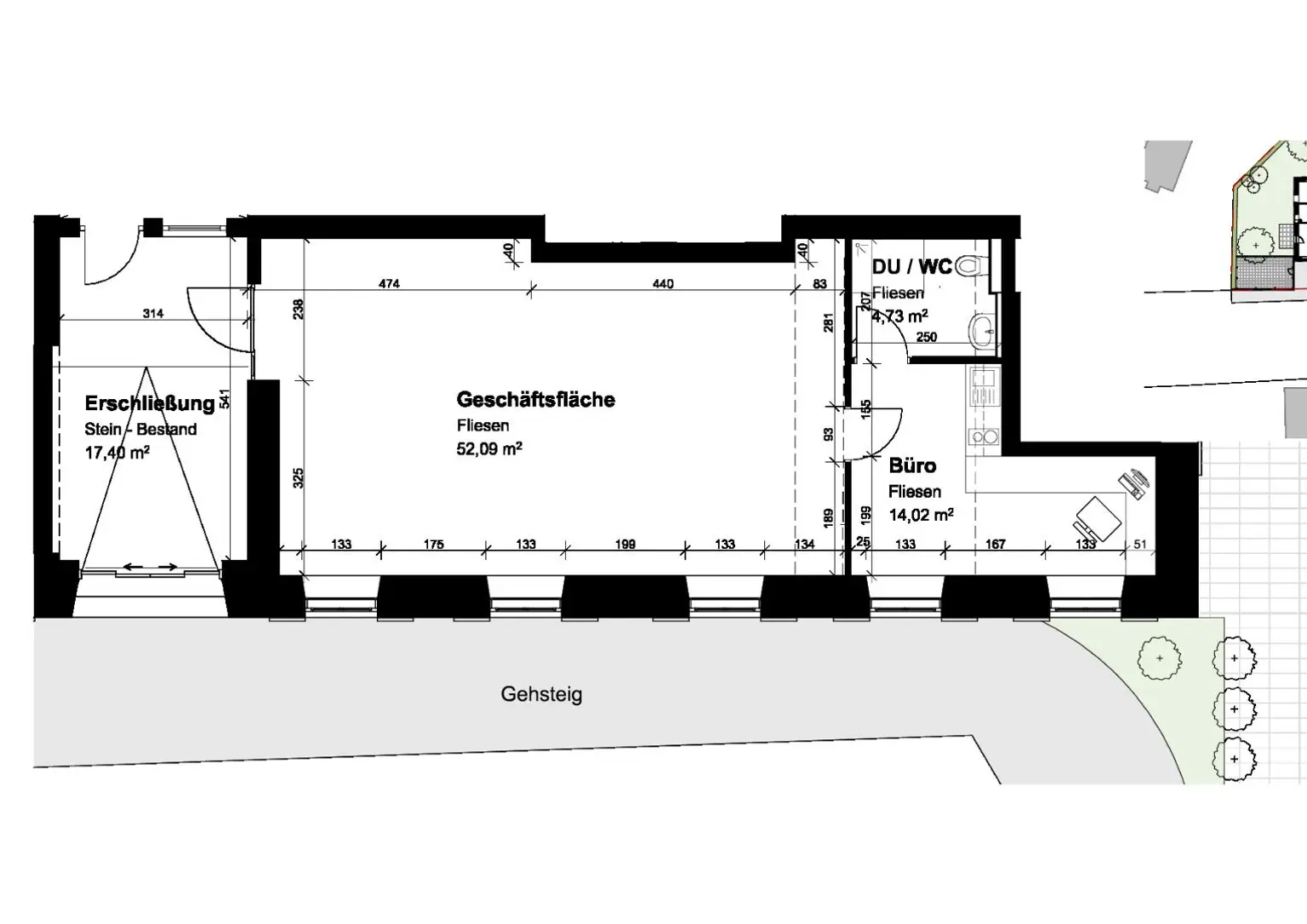
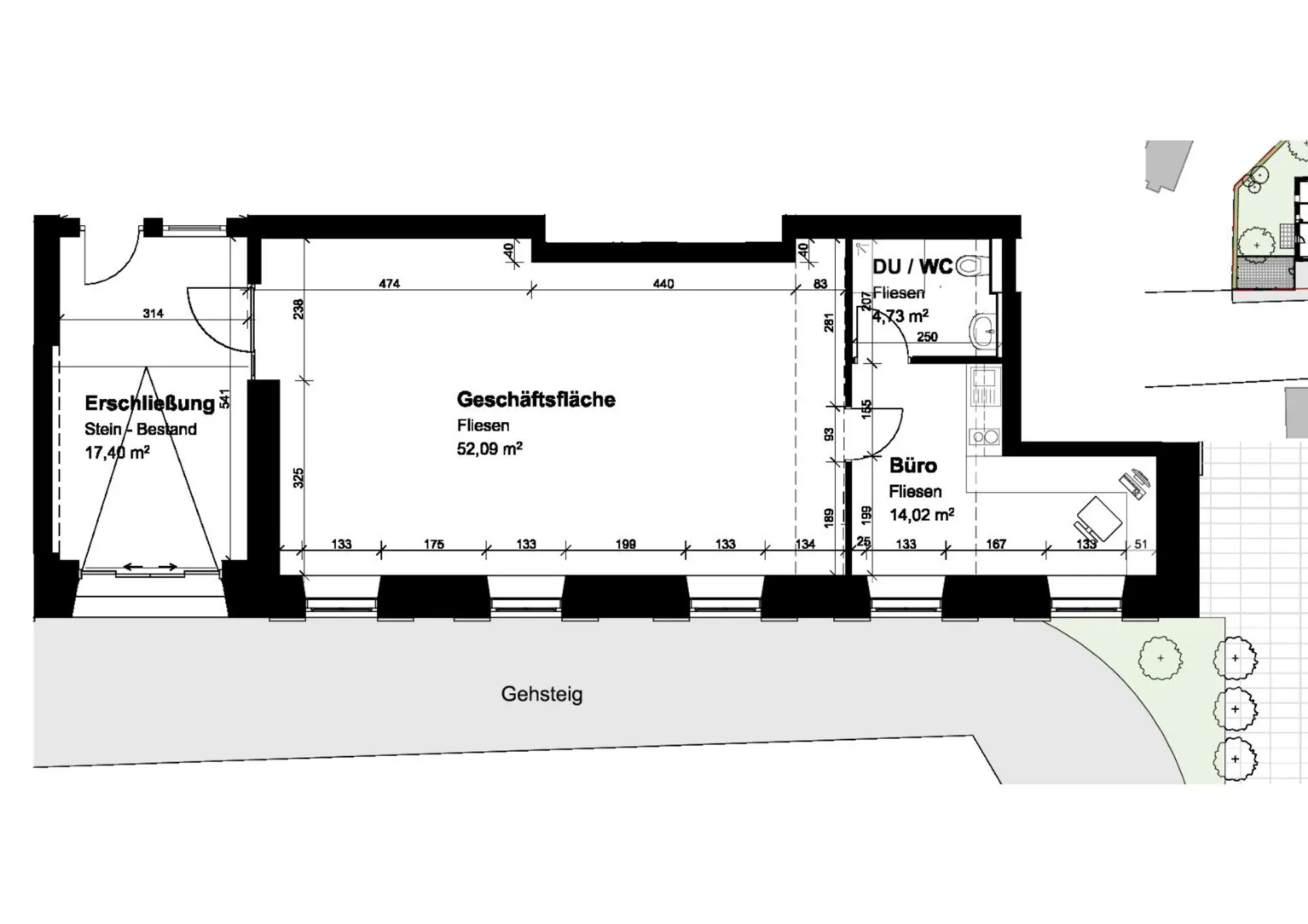
Das ca. 70m² große Gewerbelokal besteht aus einem großen Raum mit ca. 52m² und einem zweiten kleineren Raum der mit einer Teeküche ausgestattet ist. Zusätzlich ist auch ein Sanitärbereich mit einer Dusche vorhanden.

Vor dem Gebäude stehen genügend Parkplätze zur Verfügung.


Für sonstige Fragen und Besichtigungen stehe ich Ihnen gerne zur Verfügung.

Freue mich auf Ihren Anruf
Angaben gemäß gesetzlichem Erfordernis:
Miete 1072,5 zzgl 20% USt.
Umsatzsteuer 214,5
---------------------------------
Gesamtbetrag 1287
---------------------------------
Heizwärmebedarf: 32.9 kWh/(m²a)
Beschreibung weiterlesen

Energieeffizienz

HWB:
32,9 kWh/(m²*a)
Energieausweisart:
Energiebedarfs-ausweis

Lageplan

8042 Graz-St. Peter | Graz (Stadt)

Lade...
Dietmar Weiss

Dietmar Weiss

ix. immo gmbH

Lade...

Fotomix

Aussenfoto Raum 1 Raum 1 Teeküche Raum 2 Sanitärbereich grundriss geschäftslokal