NEU - Geschäftslokal in charmanter Lage im Jahrhundertwende-Haus im 18. Bezirk! Nähe Straßenbahnlinie 41 (Scheibenbergstraße)

Lager zum Kauf in 1180 Wien - Kaufpreis: 193.000 € / Objektnummer: 3148
Ausstattung: Boden Teeküche Bad Etagenheizung

Preisinformationen

Kaufpreis:
193.000 €
Kaufpreis/m²
2.501,62 €
Betriebskosten netto:
121,31 € / Monat
Vermittlungsprovision:
Ja
Provision:
3% des Kaufpreises zzgl. 20% USt.

Fakten

Objektnummer:
3148
Objekttyp:
Lager
Nutzfläche:
77,15 m²
Gesamtfläche:
77,15 m²
Zimmer:
3
Badezimmer:
1
Toilette:
1
Baujahr:
1910
Altbau:
Ja
Zustand:
Sanierungsbedürftig
Verfügbarkeit:
Verfügbar

Beschreibung

FAST FACTS: EIGENTUM | ALTBAU | 1180 | GESCHÄFSLOKAL | Erdgeschoss + Kellergeschoss | Nutzfläche rund 77,15 m² | Toilette separat | Badezimmer mit Dusche | Nähe Straßenbahnlinie 41 Scheibenbergstraße |

Das Geschäftslokal liegt in einer gepflegten Liegenschaft aus dem Jahr 1910 und verteilt sich auf zwei Ebenen im Erdgeschoss und Kellergeschoss. Insgesamt steht eine Nutzfläche von rund 77,15 m² zur Verfügung. Ein straßenseitiger Zugang ist nicht vorhanden - Der Zutritt zur Geschäftsfläche ist nur innerhalb der Liegenschaft möglich!

Die Geschäftsfläche wird im sanierungsbedürftigen Zustand angeboten und verfügt über eine Gasetagen-Heizung!

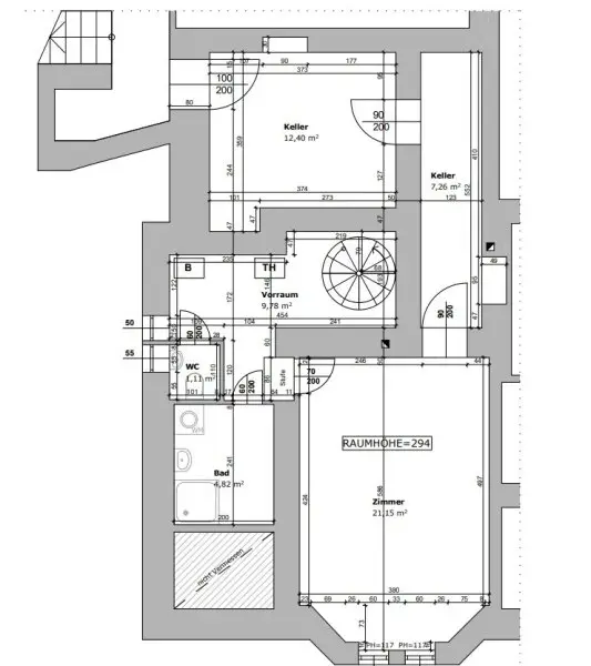
Im Erdgeschoss befindet sich der Vorraum, sowie ein Zimmer mit einer Fläche von rund 11,47 m². Über eine Wendeltreppe erreichen Sie das Kellergeschoss. Hier stehen insgesamt zwei weitere Räume mit einer Fläche von jeweils rund 21,15 m² und 12,40 m² zur Verfügung, sowie die separate Toilette und ein Badezimmer mit Duschkabine. 

Die Geschäftsfläche wird im sanierungsbedürftigen Zustand angeboten und verfügt über eine Gasetagen-Heizung!

Aufteilung:
- Vorraum Erdgeschoss (ca. 10,20 m²)
- Zimmer Erdgeschoss (ca. 11,47 m²)
- Vorraum Kellergeschoss (ca. 9,78 m²) 
- Badezimmer Kellergeschoss (ca. 4,82 m²)
- Toilette Kellergeschoss (ca. 1,11 m²)
- Raum Kellergeschoss (ca. 21,15 m²)
- Gangbereich Kellergeschoss (ca. 7,26 m²)
- Raum 2 Kellergeschoss (ca. 12,40 m²)

Ausstattung:
- Parkett
- Fliesen
- Gasetagenheizung
- Gegensprechanlage

Für einen Besichtigungstermin oder Fragen stehe ich Ihnen gern zur Verfügung.

Wir weisen darauf hin, dass zwischen dem Vermittler und dem zu vermittelnden Dritten ein familiäres oder wirtschaftliches Naheverhältnis besteht.

Der Vermittler ist als Doppelmakler tätig.

Infrastruktur / Entfernungen

Gesundheit
Arzt <500m
Apotheke <500m
Klinik <1.000m
Krankenhaus <2.000m

Kinder & Schulen
Schule <500m
Kindergarten <500m
Universität <1.500m
Höhere Schule <1.500m

Nahversorgung
Supermarkt <500m
Bäckerei <500m
Einkaufszentrum <2.500m

Sonstige
Geldautomat <500m
Bank <1.000m
Post <1.000m
Polizei <1.000m

Verkehr
Bus <500m
U-Bahn <2.000m
Straßenbahn <500m
Bahnhof <1.500m
Autobahnanschluss <3.500m

Angaben Entfernung Luftlinie / Quelle: OpenStreetMap
Beschreibung weiterlesen

Lage und Verkehrsanbindung

Der 18. Wiener Gemeindebezirk, Währing, zählt zu den begehrtesten Wohnlagen der Stadt. Geprägt von eleganten Altbauten, ruhigen Wohnstraßen und viel Grün bietet Währing eine hohe Lebensqualität in urbanem Umfeld. Zahlreiche Parks wie der Türkenschanzpark oder der Sternwartepark laden zur Erholung ein und verleihen dem Bezirk seinen besonderen Charme. Die ausgezeichnete Infrastruktur überzeugt mit vielfältigen Einkaufsmöglichkeiten, Schulen, Kindergärten sowie einer sehr guten medizinischen Versorgung. Cafés, Restaurants und kleine Geschäfte sorgen für ein lebendiges, aber dennoch entspanntes Bezirksleben. Dank der optimalen Anbindung an das öffentliche Verkehrsnetz ist die Wiener Innenstadt in kurzer Zeit erreichbar.

Öffentliche Verkehrsanbindung:
- Straßenbahnlinie 41
- Buslinie N41

Straßenbahnstation Scheibenbergstraße

Energieeffizienz

HWB:
181,4 kWh/(m²*a)
HWB Klasse:
E
fGEE:
3,9
fGEE Klasse:
F
Energieausweisart:
Energiebedarfs-ausweis
Gültig bis:
14.07.2029

Grundrisse

Lageplan

1180 Wien | Wien 18., Währing

Lade...
Markus Damej

Markus Damej

ViennaEstate Makler GmbH

Lade...

Fotomix

Bild 1 Bild 2 Bild 3 Bild 4 Bild 5 Bild 6 Bild 7 Bild 8 Bild 9 Bild 10