NEU - Geschäftslokal nähe Hütteldorfer Straße

Lager zur Miete in 1140 Wien - Gesamtmiete: 1.437,57 € / Objektnummer: 1649/4627
Geschäftslokal
Geschäftslokal
Geschäftslokal
Geschäftslokal
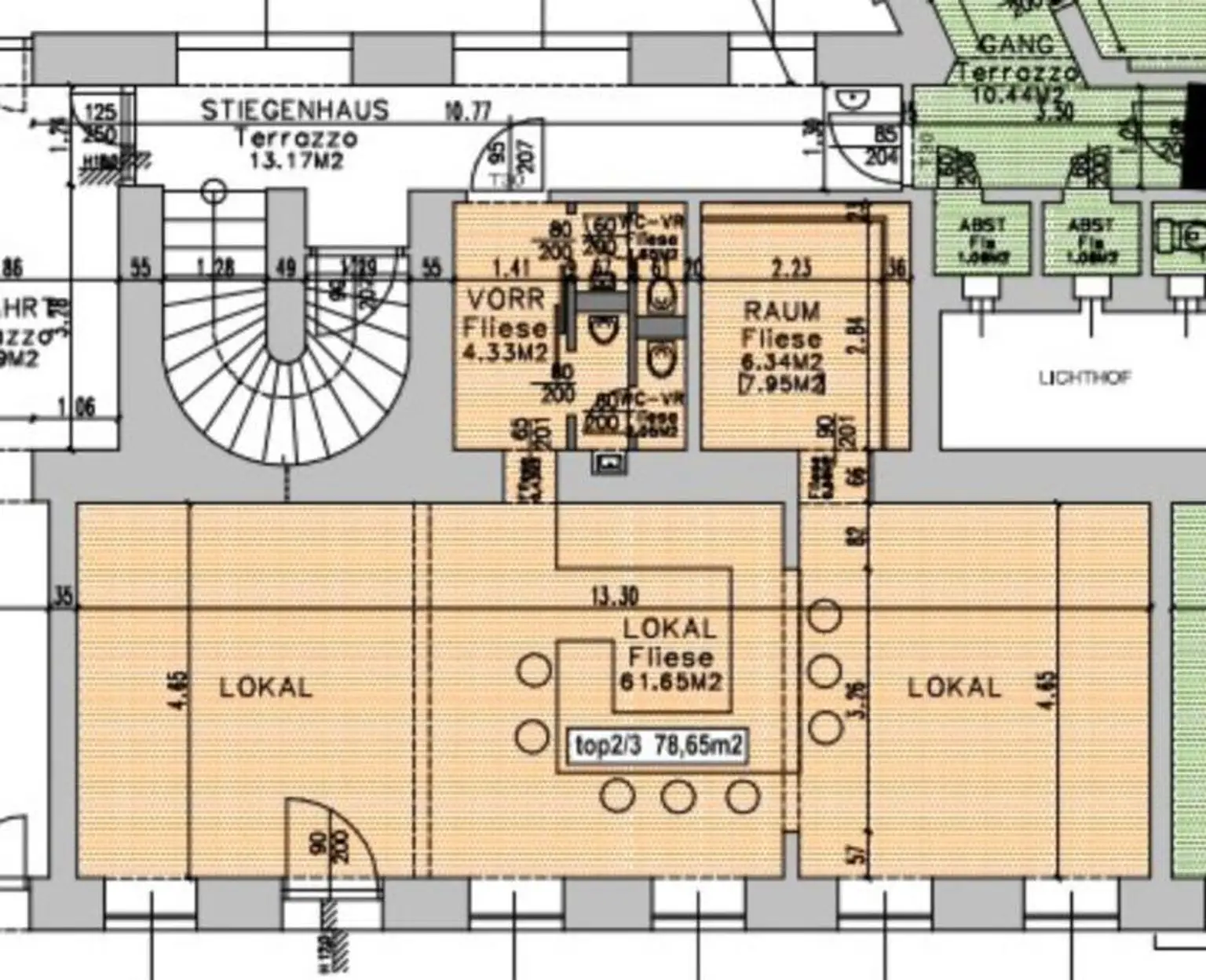
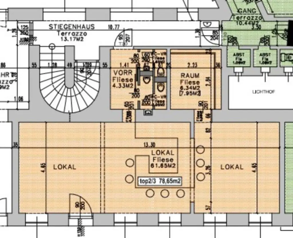
Grundriss EG

Preisinformationen

Gesamtmiete:
1.437,57 € / Monat
Gesamtmiete (exkl. USt.):
1.197,97 € / Monat
Nettomiete:
1.009,19 € / Monat
Betriebskosten netto:
188,78 € / Monat
Umsatzsteuer:
239,60 €
Miete/m² netto:
13,00 €
Kaution:
4.350,00 €
Provision:
3.0 BMM plus 20.0% USt.

Fakten

Objektnummer:
1649/4627
Objekttyp:
Lager
Nutzfläche:
77,63 m²
Gesamtfläche:
77,63 m²
Zimmer:
2
Toilette:
2
Baujahr:
1900
Verfügbarkeit:
Verfügbar

Beschreibung

Geschäftslokal 77,63 m² Nähe Hütteldorferstraße!

Unbefristet vermietet wird ein 77,63 m² Geschäftslokal (ehemaliges Cafe) in frequentierer Lage. Das Objekt wird derzeit vom Eigentümer geräumt und ohne Einrichtung vergeben. Fussboden wird erneuert. Objekt wurde ausgemalt übergeben. Es könnte bei Bedarf mit dem nebenan liegenden Geschäftslokal verbunden werden.

Keine Abend Gastro!!!

Raumaufteilung/Ausstattung:
3 großer Raum
2 kleinere Nebenräume
2 Toiletten
Notausgang
Gasetagenheizung

Das Lokal ist ab sofort verfügbar und wird branchenfrei ( KEINE ABENDGASTRO ) in unbefristeter Hauptmiete ablösefrei vermietet.
Ein Energieausweis wurde angefordert, bisher allerdings noch nicht vorgelegt.

Beschreibung weiterlesen

Lage und Verkehrsanbindung

Hütteldorfer Straße, Ameisgasse

Energieeffizienz

Endenergiebedarf:
72,7 kWh/(m²*a)
HWB:
72,7 kWh/(m²*a)
HWB Klasse:
C
fGEE:
1,5
fGEE Klasse:
C
Energieausweisart:
Energiebedarfs-ausweis

Grundriss

David Broscheit

David Broscheit

Altenburg Realitäten GmbH & Co KG

Anrufen
Lade...

Fotomix

Geschäftslokal Geschäftslokal Geschäftslokal Geschäftslokal