Gewerbeobjekt in zentraler Lage – 1020 Wien!

Lager zum Kauf in 1020 Wien - Kaufpreis: 199.000 € / Objektnummer: 8422/3464
Ausstattung:

Preisinformationen

Kaufpreis:
199.000 €
Betriebskosten netto:
341,00 € / Monat
Vermittlungsprovision:
Ja
Provision:
3% des Kaufpreises zzgl. 20% USt.

Fakten

Objektnummer:
8422/3464
Objekttyp:
Lager
Nutzfläche:
137 m²
Baujahr:
1900
Zustand:
Sanierungsbedürftig
Verfügbarkeit:
Verfügbar

Beschreibung

Beschreibung:

Dieses Gewerbeobjekt befindet sich in einer attraktiven Lage im 2. Bezirk von Wien, nahe dem Prater und der Donauinsel. In unmittelbarer Umgebung befinden sich Supermärkte, Bäckereien sowie Schulen und Kindergärten, was dieses Objekt ideal für diverse geschäftliche Nutzungsmöglichkeiten macht. Mit einer Nutzfläche von ca. 137 m² und der Lage im Erdgeschoss eignet es sich hervorragend für gewerbliche Zwecke oder als Anlageobjekt.

Das Objekt ist sanierungsbedürftig, bietet jedoch durch die Nähe zu den öffentlichen Verkehrsmitteln (U1/U2 Messe Prater-Vorgartenstraße, Bus) und das Stadtzentrum großes Potenzial. Innerhalb weniger Minuten erreichen Sie die Innenstadt Wiens.

Nutzungsideen:

Das Objekt bietet verschiedene Möglichkeiten der Nutzung, darunter:

    1.    Kreativstudio oder Fotostudio: Der großzügige Raum bietet ausreichend Platz für kreative Berufe wie Fotografie, Grafikdesign oder Kunst.
    2.    Yogastudio oder Fitnessraum: Ideal für sportliche Aktivitäten wie Yoga, Pilates oder kleinere Fitnesskurse. Die Lage nahe Wohngebieten und die gute Erreichbarkeit sprechen für ein solches Konzept.
    3.    Büro oder Co-Working-Space: Perfekt für Start-ups, Freiberufler oder kleine Unternehmen, die einen gut erreichbaren Arbeitsplatz in der Nähe des Stadtzentrums suchen.
    4.    Werkstatt oder Handwerksbetrieb: Das Objekt bietet sich für handwerkliche Tätigkeiten oder kleinere Produktionsstätten an, da es im Erdgeschoss liegt und flexibel genutzt werden kann.
    5.    Lagerfläche: Dank der guten Aufteilung und Erreichbarkeit lässt sich das Objekt auch als Lager für Unternehmen in der Umgebung nutzen.
    6.    Atelier für Künstler: Der offene Grundriss eignet sich besonders gut für Künstler, die viel Raum für ihre kreativen Arbeiten benötigen, sei es für Malerei, Bildhauerei oder andere Projekte.

Eckdaten:

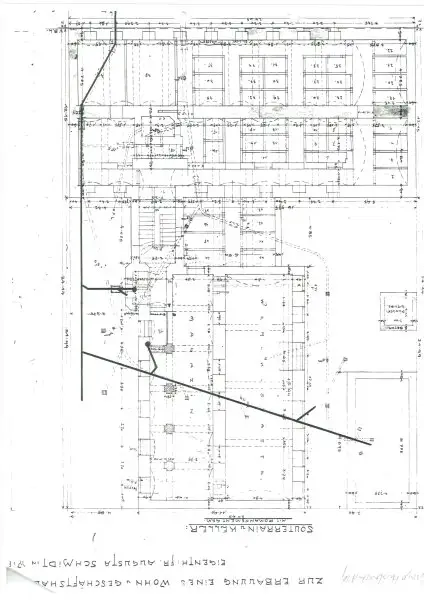
    •    Nutzfläche: ca. 137 m²
    •    Etage: Erdgeschoss
    •    Nutzungsart: Gewerbe, Anlage
    •    Beziehbar: Sofort
    •    Zustand: Sanierungsbedürftig
    •    Baujahr: 1900
    •    Extras: U-Bahn-Nähe

Preisinformationen:

    •    Kaufpreis: € 199.000
    •    Betriebskosten: € 341,00
    •    Reparaturrücklage: € 132,30
    •    Umsatzsteuer: € 34,10
    •    Monatliche Gesamtbelastung: € 507,40
    •    Provision: 3% des Kaufpreises zzgl. 20% USt.

Lage und Umgebung:

    •    Öffentliche Verkehrsmittel: Bus: 200 m, U-Bahn: 300 m, Bahnhof: 475 m
    •    Nahversorgung: Supermarkt: 100 m, Bäckerei: 275 m, Einkaufszentrum: 1.450 m
    •    Schulen und Bildungseinrichtungen: Kindergarten: 125 m, Schule: 425 m, Universität: 550 m

Kontakt:

Für weitere Informationen und einen Besichtigungstermin kontaktieren Sie bitte:

David Plishtiev
Geschäftsführender Gesellschafter, ADAMANT IMMOBILIEN GmbH
Tel: +43 664 466 4776 [tel:+436644664776]
E-Mail: d.plishtiev@adamant-immobilien.at
Web: www.adamant-immobilien.at

Wir weisen darauf hin, dass zwischen dem Vermittler und dem zu vermittelnden Dritten ein familiäres oder wirtschaftliches Naheverhältnis besteht.

Der Vermittler ist als Doppelmakler tätig.

Infrastruktur / Entfernungen

Gesundheit
Arzt <500m
Apotheke <500m
Klinik <1.000m
Krankenhaus <2.500m

Kinder & Schulen
Schule <500m
Kindergarten <500m
Universität <1.000m
Höhere Schule <2.500m

Nahversorgung
Supermarkt <500m
Bäckerei <500m
Einkaufszentrum <1.500m

Sonstige
Geldautomat <500m
Bank <500m
Post <500m
Polizei <500m

Verkehr
Bus <500m
U-Bahn <500m
Straßenbahn <500m
Bahnhof <500m
Autobahnanschluss <1.500m

Angaben Entfernung Luftlinie / Quelle: OpenStreetMap
Beschreibung weiterlesen

Lage und Verkehrsanbindung

Messe Prater-Vorgartenstraße
U1/U2

Energieeffizienz

HWB:
140,4 kWh/(m²*a)
HWB Klasse:
D
fGEE:
2,34
fGEE Klasse:
D
Energieausweisart:
Energiebedarfs-ausweis
Gültig bis:
01.08.2032

Grundriss

Lageplan

1020 Wien | Wien 2., Leopoldstadt

Lade...
David Plishtiev

David Plishtiev
Geschäftsführender Gesellschafter

ADAMANT IMMOBILIEN GmbH

Lade...

Fotomix

Bild 1 Bild 2 Bild 3 Bild 4 Bild 5 Bild 6 Bild 7 Bild 8 Bild 9 Bild 10 Bild 11 Bild 12 Bild 13 Bild 14 Bild 15 Bild 16