NEU - Gewölbekeller mit Potential | Gewerbe, Lager, Magazin, Verein, ...

Sonstige zum Kauf in 1160 Wien - Kaufpreis: 150.000 € / Objektnummer: 11396

Preisinformationen

Kaufpreis:
150.000 €
Betriebskosten netto:
108,98 € / Monat
Vermittlungsprovision:
Ja
Provision:
3% des Kaufpreises zzgl. 20% USt.

Fakten

Objektnummer:
11396
Objekttyp:
Sonstige
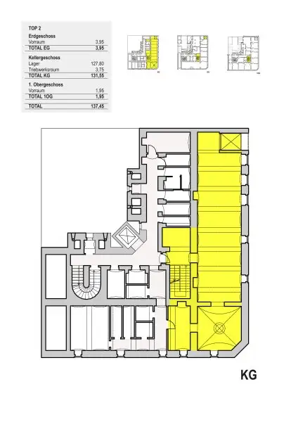
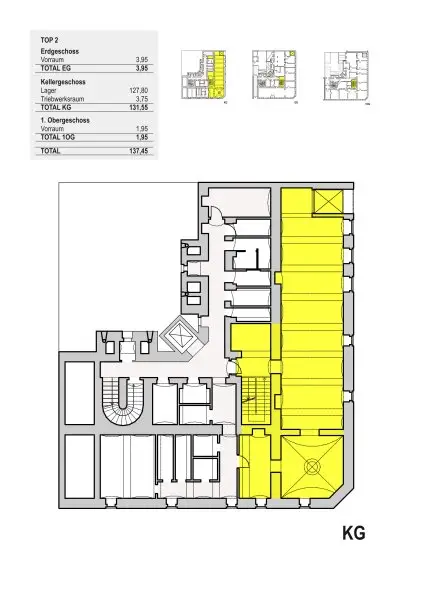
Wohnfläche:
137,45 m²
Nutzfläche:
137,45 m²
Gesamtfläche:
137,45 m²
Altbau:
Ja
Letzte Sanierung:
2018
Verfügbarkeit:
Verfügbar

Beschreibung

Vielseitig nutzbarer Gewölbekeller mit großem Potenzial!

Diese sanierungsbedürftige Magazinfläche befindet sich in einem charmanten Altbau in attraktiver Lage Haberlgasse / Koppstraße.

Das Objekt ist über das Stiegenhaus zugänglich und überzeugt durch mehrere Fenster mit Tageslichteinfall sowie eine beeindruckende Raumhöhe mit schöner Gewölbedecke.
Auf rund 140 m² Gesamtfläche eröffnen sich vielfältige Nutzungsmöglichkeiten – etwa als Büro, Lager/Storage, Vereinslokal, Proberaum und vieles mehr.

Auf Wunsch kann der Verkäufer ein fertig saniertes Gesamtkonzept vorstellen und eigene Ideen zur Gestaltung einfließen lassen.
Zudem besteht die Möglichkeit, Sanitärräume einzubauen, sowie einen direkten Zugang über einen Straßeneingang herzustellen.  

Aktuell verfügt das Objekt über einen Lastenaufzug, der erneuert werden müsste.
Alternativ könnte an dieser Stelle ein direkter Zugang über einen Straßeneingang geschaffen werden. 

Das Haus ist mit einer Zentralheizung ausgestattet; der Anschluss für das Objekt ist bereits vorbereitet.

Lage und Umgebung: 

Die Lage an der Koppstraße 38 / Ecke Haberlgasse im aufstrebenden Ottakring überzeugt durch ihre Vielseitigkeit: Eine ausgezeichnete Anbindung an das öffentliche Verkehrsnetz (Straßenbahn, Bus und U-Bahn), eine hervorragende Nahversorgung sowie ein vielfältiges gastronomisches Angebot machen diesen Standort besonders attraktiv. Direkt vor der Haustür laden neu gestaltete, öffentlich zugängliche Freiflächen zum Verweilen ein. Ergänzt wird das urbane Lebensgefühl durch zahlreiche Freizeit- und Kulturangebote in der Umgebung.

Der beliebte Brunnenmarkt und Yppenmarkt mit seinem multikulturellen Flair sind in wenigen Gehminuten erreichbar. Auch die nahegelegene Thaliastraße bietet eine breite Auswahl an Einkaufsmöglichkeiten.

Die öffentliche Verkehrsanbindung ist optimal: 
Straßenbahnlinien 9 und 46, die Buslinien 10A und 48A, sowie die nahegelegenen U-Bahnstationen der Linien U3 und U6 sorgen für schnelle Verbindungen in alle Teile der Stadt.

 

Hinweis:
Sämtliche Flächenangaben wurden sorgfältig und rechnerisch ermittelt, können jedoch von den tatsächlichen Maßen abweichen. Alle Angaben erfolgen ohne Gewähr; Irrtümer und Änderungen vorbehalten

Noch nichts gefunden? Wir informieren Sie über geeignete Immobilienangebote noch vor allen anderen.
Legen Sie jetzt Ihren individuellen Suchagenten unter folgendem Link an. Wir schicken Ihnen passende Immobilien exklusiv vorab zu.
Suchagent anlegen [https://accenta-immobilien.service.immo/registrieren/de] - https://accenta-immobilien.service.immo/registrieren/de

Hinweis gemäß Energieausweisvorlagegesetz: Ein Energieausweis wurde vom Eigentümer bzw. Verkäufer, nach unserer Aufklärung über die generell geltende Vorlagepflicht, sowie Aufforderung zu seiner Erstellung noch nicht vorgelegt. Daher gilt zumindest eine dem Alter und der Art des Gebäudes entsprechende Gesamtenergieeffizienz als vereinbart. Wir übernehmen keinerlei Gewähr oder Haftung für die tatsächliche Energieeffizienz der angebotenen Immobilie.

Wir weisen darauf hin, dass zwischen dem Vermittler und dem zu vermittelnden Dritten ein familiäres oder wirtschaftliches Naheverhältnis besteht.

Der Vermittler ist als Doppelmakler tätig.

Sie wollen auch Ihre Immobilien Verkaufen oder Vermieten?

Accenta Immobilien - Ihr Partner für Immobilienvermittlung
www.accenta-immo.at [https://www.accenta-immo.at/verkaufen]
01/997 12 93
 

Infrastruktur / Entfernungen

Gesundheit
Arzt 250m
Apotheke 500m
Klinik 750m
Krankenhaus 1.500m

Kinder & Schulen
Schule 250m
Kindergarten 250m
Universität 1.000m
Höhere Schule 1.000m

Nahversorgung
Supermarkt 250m
Bäckerei 250m
Einkaufszentrum 750m

Sonstige
Geldautomat 250m
Bank 500m
Post 500m
Polizei 500m

Verkehr
Bus 250m
U-Bahn 750m
Straßenbahn 500m
Bahnhof 750m
Autobahnanschluss 4.500m

Angaben Entfernung Luftlinie / Quelle: OpenStreetMap
Beschreibung weiterlesen

Lage und Verkehrsanbindung

Koppstraße / Haberlgasse

Haberlgasse

Grundriss

Martina Schütz

Martina Schütz
konzessionierte Immobilienmaklerin

Accenta Immobilien e.U.

Lade...

Fotomix

Bild 1 Bild 2

Lageplan