NEU - GRAZ 31m² Wfl - Kleines BAUHERRENMODELL in St.Leonhard 1.OG - Provisionsfrei - Klimaaktiv SILBER

Wohnung zum Kauf in 8010 Graz - Kaufpreis: 193.356 € / Objektnummer: 6683
Ausstattung: Barrierefrei Fahrstuhl Kabel/Satelliten-TV Zentralheizung
Hauszeichnung_St_Leonhard
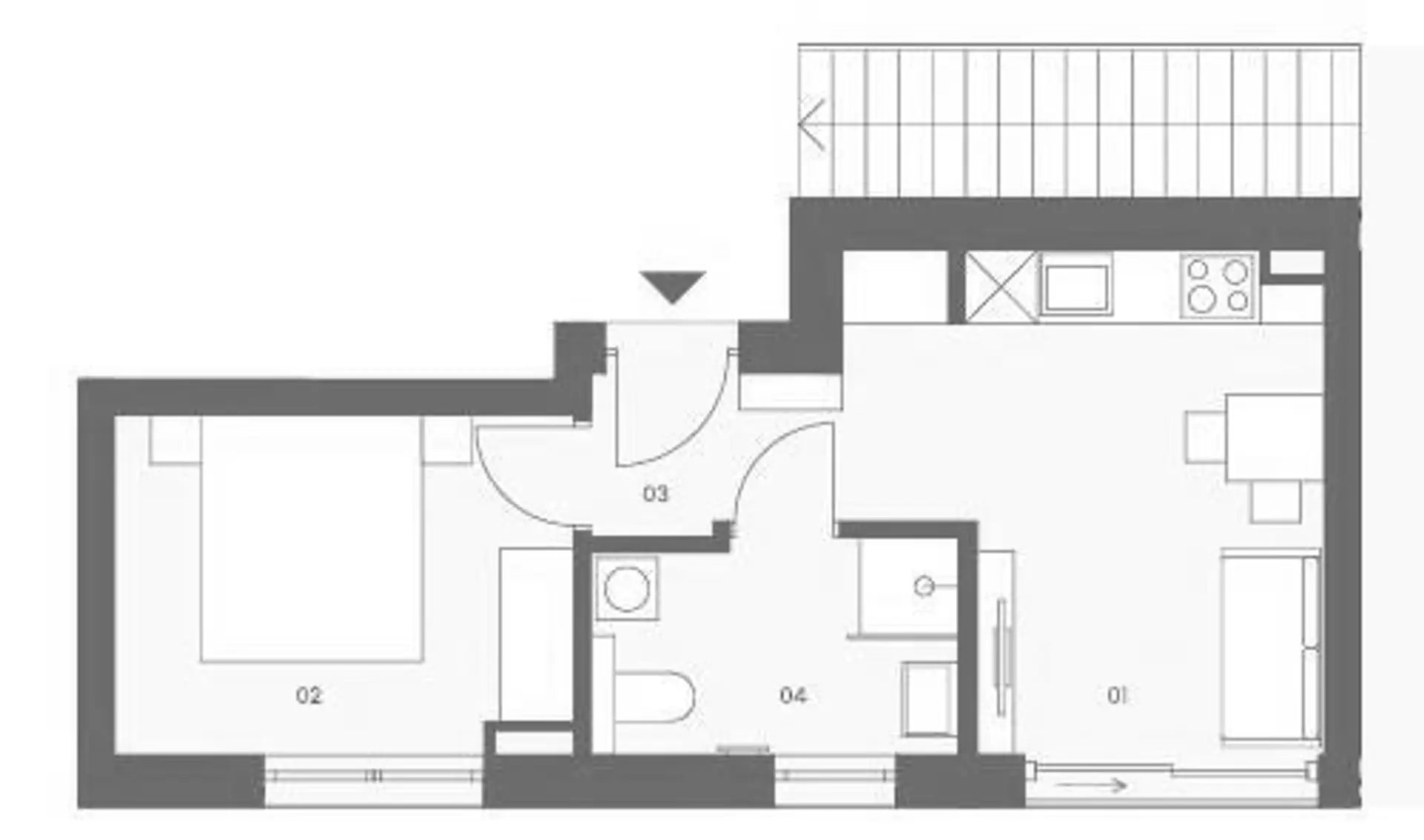
Top_6_1OG_St_Leonhard
Übersicht_St_Leonhard
Beispiel für eine schöne Küche
Beispiel für ein Bad -  Schatierung nach Wunsch
Fliessen_nach_Wunsch_St_Leonhard
Angenehme, hochwertige Materialien_St_Leonhard

Preisinformationen

Kaufpreis:
193.356 €
Betriebskosten netto:
129,67 € / Monat
Heizkosten netto:
51,67 €

Fakten

Objektnummer:
6683
Objekttyp:
Wohnung
Wohnfläche:
31,44 m²
Zimmer:
2
Schlafzimmer:
1
Badezimmer:
1
Toilette:
1
Stockwerk:
1
Baujahr:
2026
Neubau:
Ja
Zustand:
Erstbezug
Verfügbarkeit:
Verfügbar

Beschreibung

Ein kleines BAUHERRENMODELL mit Landes-Förderung und 15 Jahre steuerlicher Abschreibung

Top 6, 1.OG Preis für Anleger 193.356,- €
Top 6, 1.OG Preis für Endverbraucher 218.500,- €

*** Klimaaktiv SILBER ***

Die Baukosten werden über einen Zeitraum von 15 Jahren abgeschrieben, so dass Sie von erheblichen Steuervorteilen profitieren.
Es gibt ein Assanierung-Darlehen als Annuitätenzuschuss und wobei bis zu 30% nicht zurückgezahlt werden müssen.

Sie bekommen direktes Wohnungseigentum und partizipieren an der Wertsteigerung.
Die Eigenkapitalbelastung sinkt erheblich durch dieses Modell.
Ein neues Top Sanierungsprojekt mit attraktiven Steuervorteilen, direkt im Herzen von Graz.

*** 17 Wohnungen auf 4 Geschossen mit Freiflächen, direkt in der Nähe der TU Graz.
Im Obersten Stockwerk liegt eine exklusive Penthouse Wohnung mit 120m² und ca 40m² Freiflächen, mit direktem Liftzugang mit Privatsphäre + eigene Tiefgarage

* Allgemeingarten + Privatgärten, Terrassen, Balkone und Loggien
* Fahrradraum
* Lift

Angenehme Raumhöhe von 2,69 - 3,00 m
Top Bauausführung

Heller Eichen-Dielenparkett, 60 x 60 cm große Boden-Vorraumfließen in Feinsteinzeug mit angenehmen Farben, Sonnenschutz, helle Innentüren, Edelstahloptik oder Edelstahl (Sonderausstatung) Armaturen und Türbeschlägen, Badheizkörper, Waschbecken, Brausegarnitur ...

Mit dieser Investition schaffen Sie nachhaltigen und leistbaren Wohnraum und nützen eine maximale Rendite für Ihr Immobilieninvestment.
Mit Steuer- und Förderungsstrategie !!

Sie können sowohl als Endnutzer, als auch als Anleger kaufen.

Als Anleger kann man auch die Landesförderung in Anspruch nehmen und dank der verkürzten AFA auf 15 Jahre erhebliche Steuervorteile lukrieren. Und trotzdem sind Sie Wohnungseigentümer!!!!
Der Baubeginn ist mit April 2026 geplant und die Fertigstellung erfolgt bis Mitte 2027!
In den Kaufpreisen ist das Landesdarlehen inkludiert und kann noch in Abzug gebracht werden – Details dazu gerne in einem persönlichen Gespräch.

Für weitere Infos und Berechnungen zum Thema kleines Bauherrenmodell mit Landesförderung, Wohnungszuteilung und den damit verbundenen Steuervorteilen bin ich gerne erreichbar.
Es folgt noch eine Mail mit Berechnungsbeispielen.


Autobahnzubringer: A2 in 3,2 km; Verteilerkreis Webling: 8 km
Lieber zu Fuß ? Der Kaiser Josef Markt ist in 20 min oder der Hauptplatz in 30 min zu Fuß erreichbar.
Öffentlicher Bereich: Straßenbahn Linie 6 - in 11 am Hauptplatz und in 18 min am Hauptbahnhof oder mit dem Bus Nr. 64

Hofer 700m
DM 600 m
Schulzentrum 300m
Coffeeshop Barista 190m
TU Graz Infeldgasse 300m
MIttelschule Graz St.Peter 950 m (12min zu Fuß)
Apotheke 800m (10 min zu Fuß)



SIE ÜBERLEGEN eine IMMOBILIE ZU VERKAUFEN?

Kostenlose und unverbindliche Marktwerteinschätzung!
Jetzt anrufen: DI Ilona Moosbeckhofer - Tel. 0664/543 32 87
moosbeckhofer@remax-nova.at

Nebenkosten beim Immobilienkauf in Österreich
• Grunderwerbssteuer (3,5 % der Gegenleistung = in der Regel des Kaufpreises)
• Grundbucheintragungsgebühr für die Einverleibung des Eigentumsrechts (1,1 % des Kaufpreises)
• Vertragserrichtungskosten 1,0% + 20% MwSt.

• Einverleibung des Pfandrechts (1,2 % des Pfandrechtsbetrages)
• Kreditvertragsgebühren gemäß Kreditvertrag mit der finanzierenden Bank

Am 20.3.2024 wurde für Wohnimmobilien eine temporäre Befreiung von der Eintragungsgebühr für das Eigentumsrecht und für das Pfandrecht beschlossen. Die Voraussetzungen hierfür ergeben sich aus den künftigen §§ 25a bis 25c GGG (Gerichtsgebührengesetz).
Angaben gemäß gesetzlichem Erfordernis:
Heizwärmebedarf: 39.5 kWh/(m²a)
Klasse Heizwärmebedarf: B
Faktor Gesamtenergieeffizienz: 0.74
Klasse Faktor Gesamtenergieeffizienz: A
Beschreibung weiterlesen

Energieeffizienz

HWB:
39,5 kWh/(m²*a)
HWB Klasse:
B
fGEE:
0,74
fGEE Klasse:
A
Energieausweisart:
Energiebedarfs-ausweis
Ilona Moosbeckhofer

Ilona Moosbeckhofer

RE/MAX Nova in Graz und Laßnitzhöhe

Lade...

Fotomix

Hauszeichnung_St_Leonhard Top_6_1OG_St_Leonhard Übersicht_St_Leonhard Beispiel für eine schöne Küche Beispiel für ein Bad -  Schatierung nach Wunsch Fliessen_nach_Wunsch_St_Leonhard Angenehme, hochwertige Materialien_St_Leonhard