NEU - Großvolumiger günstiger straßenseitiger Geschäftsraum mitsamt Keller nahe Schönbrunn -5m Raumhöhe !

Immobilie zur Miete in 1140 Wien / Objektnummer: 24410
Möglicher Zustand nach Sanierung Erdgeschoß
Möglicher Zustand nach Sanierung Erdgeschoß
Möglicher Zustand nach Sanierung Erdgeschoß
Möglicher Zustand nach Sanierung Kellergeschoß
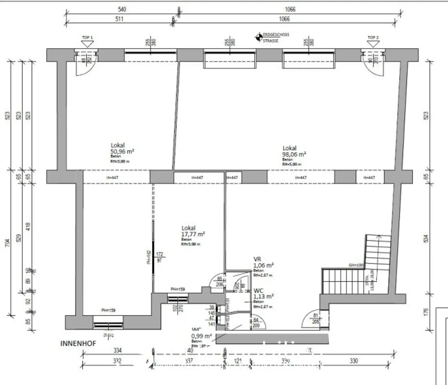
EG Ist Zustand
EG Ist Zustand
EG Ist Zustand
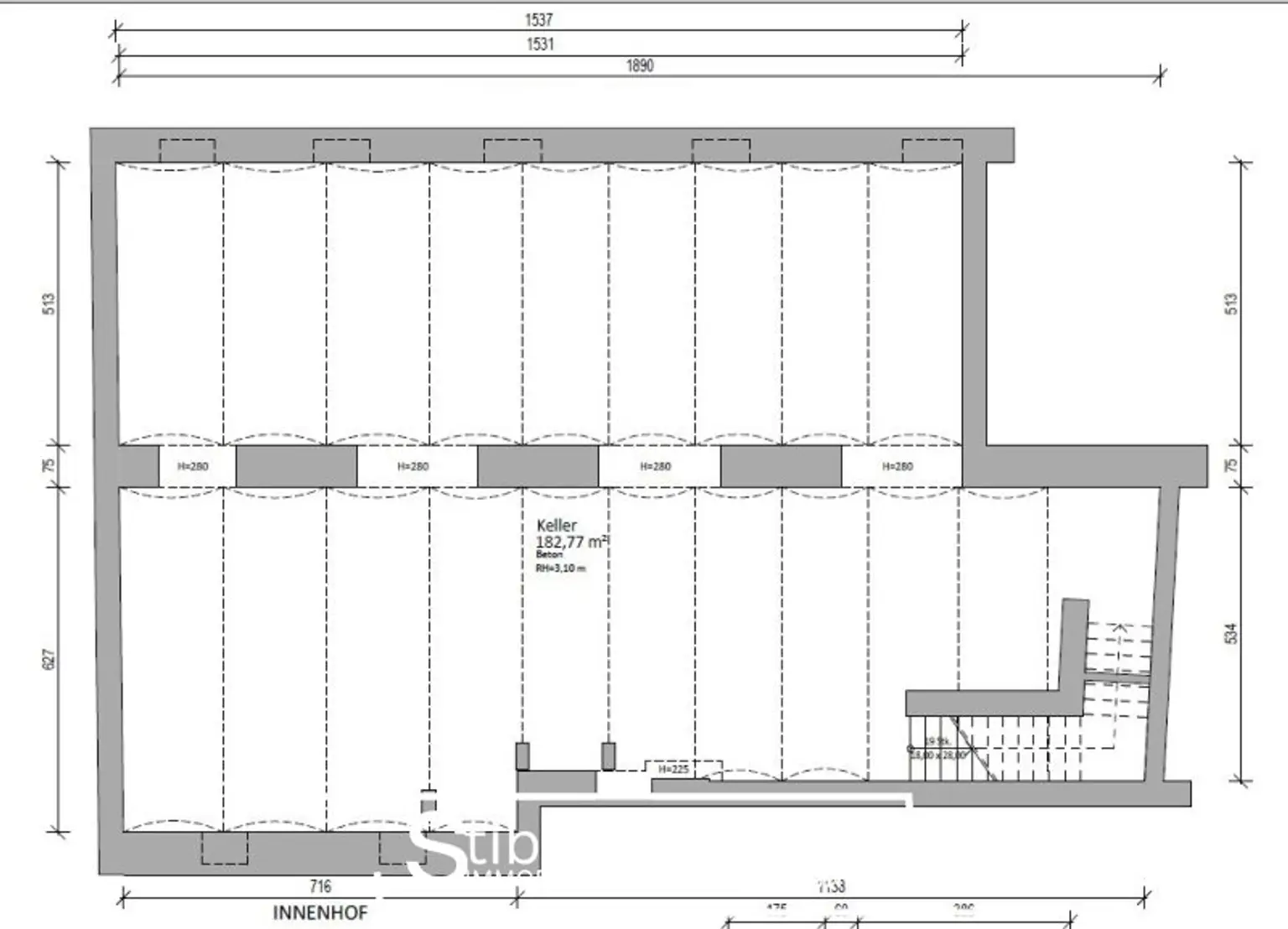
KG Ist Zustand
Erdgeschoß
Kellergeschoß

Preisinformationen

Gesamtmiete (exkl. USt.):
3.250,72 € / Monat
Betriebskosten netto:
690,80 € / Monat
Umsatzsteuer:
650,14 €
Miete/m² netto:
7,26 €
Kaution:
13.000,00 €
Vermittlungsprovision:
Ja
Provision:
11.702,59 € inkl. 20% USt.

Fakten

Objektnummer:
24410
Nutzfläche:
352,74 m²
Toilette:
3
Altbau:
Ja
Zustand:
Sanierungsbedürftig
Verfügbarkeit:
Verfügbar

Beschreibung

ZWEI GESCHÄFTSRÄUME IM ERDGESCHOSS VON CA.170 M²  UND EIN GROSSER KELLERBEREICH VON CA. 183 M² STEHEN BEREIT ZUM VERMIETEN.

DER KELLERBEREICH VON CA. 183M² IST DIREKT VON DER GESCHÄFTSRÄUMLICHKEIT IM EG ÜBER EINEN TREPENZUGANG  MIT DEM GESCHÄFTSLOKAL VERBUNDEN.

DIE GESCHÄFTSRÄUME SIND MIT GROSSEN AUSLAGEFLÄCHEN SOWIE MIT ROLLTOREN AUSGESTATTET UND SIND DADURCH VIELFÄLTIG NUTZBAR.

DIE RÄUME SIND VOLL ERSCHLOSSEN (STROM, GAS, WASSER)  UND SIND SANIERUNGS- BZW. AUF DIE GESCHÄFTSART ANPASSUNGSBEDÜRFTIG.

DIE KELLERRÄUME SIND VOLL ERSCHLOSSEN(STROM, GAS, WASSER) , FÜR AUSREICHEND TAGESLICHT SORGEN DIE GROSSEN FENSTER, IDEAL ALS LAGERRÄUME, PRODUKTIONSRÄUME ODER VEREINSRÄUME ZU NUTZEN (KEINE FEUCHTIGKEIT).

DER EIGENTÜMER IST BEREIT EINEN SERIÖSEN UND LANGZEITIGEN MIETER IN DER SANIERUNG UND DEM RAUMANPASSUNGSPROZESS ZU UNTERSTÜTZEN.

DIE ÖFFENTLICHEN ANBINDUNGEN SIND SEHR GUT, DIE U4 STATION HIETZING SOWIE DER BAHNHOF WIEN PENZING MIT DIVERSEN LINIEN BEFINDEN SICH 5 GEHMINUTEN VON DEM OBJEKT ENTFERNT.

ES WIRD EIN  UNBEFRISTETES MIETVERHÄLTNIS, ANGEBOTEN.

FÜR WEITERE INFORMATIONEN STEHE ICH IHNEN GERNE ZUR VERFÜGUNG.

DAS ANGEBOT GILT BIS AUF WEITERES, FREIBLEIBEND, SPÄTERE ÄNDERUNGEN VORBEHALTEN. EINE WEITERGABE DER INFORMATIONEN BEDARF DER ZUSTIMMUNG DER EIGENTÜMER BW. STIBI IMMOBILIEN, BILOBRK E.U. DER ENERGIEAUSWEIS WIRD BEI VERTRAGSUNTERFERTIGUNG VORGELEGT.

DIE ANGEFÜHRTE ANGABEN BASIEREN AUF INFORMATIONEN UND UNTERLAGEN DES EIGENTÜMERS, SIND UNSERERSEITS OHNE GEWÄHR.

FALLS SIE SELBST EINE IMMOBILIE VERKAUFEN ODER VERMIETEN WOLLEN ODER IMMOBILIENFINANZIERUNG BRAUCHEN, WÜRDE ICH IHNEN GERNE BEHILFLICH SEIN.

WEITERE OBJEKTE FINDEN SIE UNTER: WWW.STIBI-IMMOBILIEN.AT

FÜR WEITERE INFORMATIONEN STEHE ICH IHNEN GERNE ZUR VERFÜGUNG

 

HERR ING. IVAN BILOBRK

IMMOBILIENTREUHÄNDER

STIBI IMMOBILIEN

TEL: 0676/462 72 46

EMAIL:BAU@STIBI-IMMO.AT

WWW.STIBI-IMMO.AT

 

WWW.STIBI-IMMO.AT

Noch nichts gefunden? Wir informieren Sie über geeignete Immobilienangebote noch vor allen anderen.
Legen Sie jetzt Ihren individuellen Suchagenten unter folgendem Link an. Wir schicken Ihnen passende Immobilien exklusiv vorab zu.
Suchagent anlegen [https://stibi-immobilien.service.immo/registrieren/de] - https://stibi-immobilien.service.immo/registrieren/de

Wir weisen darauf hin, dass zwischen dem Vermittler und dem zu vermittelnden Dritten ein familiäres oder wirtschaftliches Naheverhältnis besteht.

Der Vermittler ist als Doppelmakler tätig.

Infrastruktur / Entfernungen

Gesundheit
Arzt <500m
Apotheke <500m
Klinik <500m
Krankenhaus <1.500m

Kinder & Schulen
Schule <500m
Kindergarten <500m
Universität <1.000m
Höhere Schule <2.500m

Nahversorgung
Supermarkt <500m
Bäckerei <500m
Einkaufszentrum <2.000m

Sonstige
Geldautomat <500m
Bank <500m
Post <500m
Polizei <500m

Verkehr
Bus <500m
U-Bahn <500m
Straßenbahn <500m
Bahnhof <500m
Autobahnanschluss <4.000m

Angaben Entfernung Luftlinie / Quelle: OpenStreetMap
Beschreibung weiterlesen

Lage und Verkehrsanbindung

Schönbrunn, U4 Hietzing, Wien Penzing Bahnhof

U4 Hietzing, Schloss Schönbrunn

Energieeffizienz

HWB:
296,1 kWh/(m²*a)
HWB Klasse:
G
fGEE:
1,73
fGEE Klasse:
C
Energieausweisart:
Energiebedarfs-ausweis

Grundrisse

Lageplan

1140 Wien | Wien 14., Penzing

Lade...
Ivan Bilobrk

Ivan Bilobrk
Geschäftsführender Gesellschafter

STIBI Immobilien GmbH

Lade...

Fotomix

Möglicher Zustand nach Sanierung Erdgeschoß Möglicher Zustand nach Sanierung Erdgeschoß Möglicher Zustand nach Sanierung Erdgeschoß Möglicher Zustand nach Sanierung Kellergeschoß EG Ist Zustand EG Ist Zustand EG Ist Zustand KG Ist Zustand