Großzügige 2-Zimmer Wohnung in toller Lage nahe der Donau - ab 01.06. beziehbar!

Wohnung zur Miete in 1200 Wien - Gesamtmiete: 1.229,00 € / Objektnummer: 1639610
Ausstattung: Boden Fahrstuhl Bad Tiefgarage Parkplatz Fahrradraum Abstellraum Fußbodenheizung Balkon

Preisinformationen

Gesamtmiete:
1.229,00 € / Monat
Betriebskosten netto:
179,84 € / Monat
Umsatzsteuer:
111,72 €
Kaution:
3 Bruttomonatsmieten
Provision:
Gemäß Erstauftraggeberprinzip bezahlt der Abgeber die Provision.

Fakten

Objektnummer:
1639610
Objekttyp:
Wohnung
Balkon:
1
Balkonfläche:
6,43 m²
Wohnfläche:
64 m²
Nutzfläche:
70,43 m²
Gesamtfläche:
70,43 m²
Zimmer:
2
Badezimmer:
1
Toilette:
1
Stockwerk:
5
Baujahr:
2020
Neubau:
Ja
Zustand:
Neuwertig
Verfügbarkeit:
Verfügbar

Beschreibung

KAY – WOHNEN IN DONAUNÄHE

Die angegebene Immobilie in der Engerthstraße 61-63 bietet eine attraktive Lage in der Nähe der Donau, beim Handelskai und der Millennium City in 1200 Wien. Sie verfügt über eine ausgezeichnete Ausstattung und gut durchdachte Grundrisse. Im Erdgeschoss befindet sich ein Billa-Supermarkt, und es besteht die Möglichkeit, einen Stellplatz in der Tiefgarage anzumieten. Zusätzlich gibt es ein Kellerabteil sowie einen Fahrrad- und Kinderwagenraum.

Die Wohnungen sind mit einer Einbauküche ausgestattet und verfügen über eine Freifläche sowie einen kleinen Spielplatz im Innenhof. Darüber hinaus steht allen Bewohnern eine Dachterrasse zur Verfügung. Die unmittelbare Nähe zur U-Bahn- und S-Bahn-Station Handelskai gewährleistet eine komfortable Anbindung an das öffentliche Verkehrsnetz. Dadurch gelangen Sie schnell und einfach in die Wiener Innenstadt. Zusätzlich stehen Ihnen in der Millennium City eine breite Palette an Einkaufs- und Restaurantoptionen zur Verfügung.

Erleben Sie das Projekt selbst und lassen Sie sich davon überzeugen!

Ausstattungsstandard:

* Alle Wohnungen mit Loggia, Balkon oder Terrasse
* Moderne Einbauküche mit Markengeräten
* Außenraffstores
* Eichen-Parkett
* Gegensprechanlage mit Video
* Stilvolles Bad mit ausgewählten Marken-Sanitärprodukten
* Fußbodenheizung
* Deckenkühlung
* klimaschonende Geothermie
* 2 hauseigene Grünterrassen mit Relaxzonen und Spielplätze
* Aufzug
* Tiefgarage
* Fahrrad- und Kinderwagenraum
* Kellerabteil

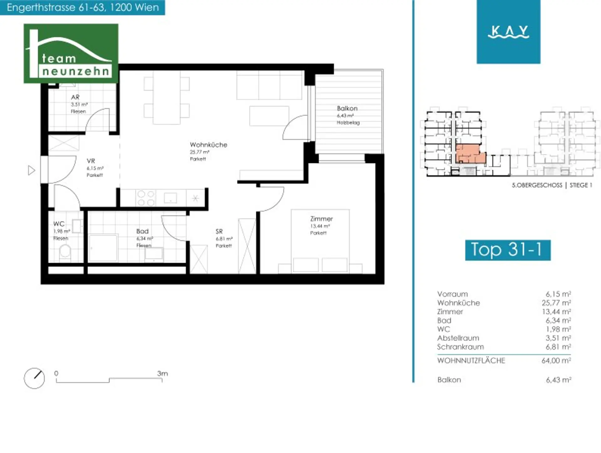
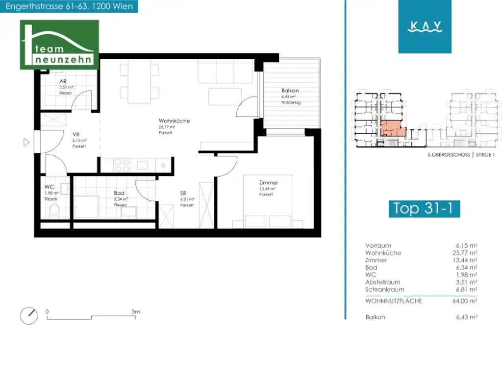
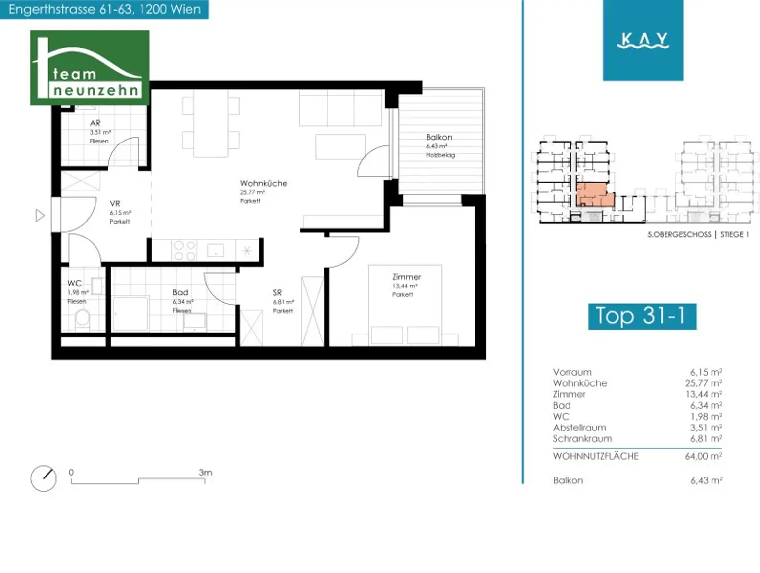
Wohnung Stiege 1 Top 31

Diese 2-Zimmer-Wohnung mit ca. 64,00 m² Wohnfläche + ca. 6,43 m² Balkon liegt im 5. Obergeschoss und gliedert sich in folgende Raumaufteilung:

* Vorraum: 6,15 m²
* Wohnküche: 25,77 m²
* Badezimmer: 6,34 m²
* Separates WC: 1,98 m²
* Schlafzimmer: 13,44 m²
* Schrankraum: 6,81 m²
* Abstellraum mit Waschmaschinenanschluss: 3,51 m²
 

Aufgrund dessen, dass die Wohnung derzeit noch bewohnt ist, weisen wir höflichst darauf hin, dass es sich bei den Fotos anbei um Musterfotos handelt. Die Wohnung wird gleich oder gleichwertig übergeben.

Einige Bilder des Inserats wurden zum Zweck der besseren Visualisierung digital mit KI möbliert. Die Wohnung wird unmöbliert übergeben.

 

Mietkosten:

Der Mietpreis für die Wohnung beläuft sich auf € 1.229,00 (inkl. BK und USt.)

Bei dem angeführten Mietpreis handelt es sich um die Kaltmiete, somit sind sämtliche Energiekosten wie Warmwasser-, Heiz- und Stromkosten nicht inkludiert. Diese werden direkt nach Verbrauch abgerechnet.

 

Nebenkosten:

Kaution: 3 Monatsmieten

Bearbeitungsgebühr: € 350,00 zzgl. 20% USt.

 

Garagenplätze:

monatliche Miete: 133,09 Euro (inkl. Betriebskosten und Umsatzsteuer)

Kaution: 3 Bruttomonatsmieten

 

Infrastruktur:

* Millennium City: Nur wenige Schritte entfernt befindet sich eines der größten Einkaufs- und Entertainmentzentren der Stadt, die Millennium City. Hier finden Sie alles, was Ihr Herz begehrt: von Geschäften und Restaurants bis hin zu einem Kino und einem Fitnesscenter.
* Hervorragende Verkehrsanbindung: Die U-Bahn und S-Bahn Station Handelskai ist in unmittelbarer Nähe. Damit haben Sie direkten Zugang zum öffentlichen Nahverkehr und können bequem durch die Stadt reisen.
* Donaunähe: Liebhaber von Spaziergängen und Radtouren werden die Nähe zur Donau schätzen. Dies ist ein Ort der Entspannung und Erholung inmitten der Stadt.

 

Öffentliche Verkehrsanbindungen:

* Bus Linien: 5A, 11A, 11B
* U-Bahn Linie: U6 - Handelskai
* S-Bahn Linien: S1, S2, S3, S4, S45, S7
* Straßenbahn Linien: 2, 31, 33 - Friedrich-Engels-Platz (10 min. Fußweg)

 

Energieausweis:

Der Heizwärmebedarf beträgt 21,20 kWh/m²a, welcher der Klasse A entspricht.

 

Für Fragen bzw. Besichtigungen steht Ihnen Frau Marija Ivanov sehr gerne unter ivanov@teamneunzehn.at sowie unter +43 676 852 243 531 [tel:+43676852243531] zur Verfügung.

Wir weisen darauf hin, dass zwischen dem Vermittler und dem zu vermittelnden Dritten ein familiäres oder wirtschaftliches Naheverhältnis besteht.

Der Immobilienmakler erklärt, dass er – entgegen dem in der Immobilienwirtschaft üblichen Geschäftsgebrauch des Doppelmaklers – einseitig nur für den Vermieter tätig ist.

"Leben braucht Raum" * T19-RE Real Estate GmbH & Co KG * www.teamneunzehn.at [https://www.teamneunzehn.at]

Doppelmakler

Wir werden als Immobilienmakler kraft bestehenden Geschäftsgebrauchs als Doppelmakler tätig und haben sohin beide Seiten des Vertrages (Verkäufer-Käufer, Vermieter-Mieter) zu unterstützen.

Wirtschaftliches Naheverhältnis

Es wird bekannt gegeben, dass folgendes wirtschaftliches Naheverhältnis zwischen der teamneunzehn-Gruppe und dem Verkäufer/der vermietenden Partei besteht: ständige und dauerhafte Beauftragung mit der Vermittlung des bestehenden Immobilienportfolios

Haftungserklärung zum Inserat

Irrtum und Änderungen vorbehalten! Sofern es sich bei Bildern um Visualisierungen handelt, können Abänderungen zur tatsächlichen Ausführung resultieren. Wir weisen ausdrücklich darauf hin, dass das auf Fotos oder Visualisierungen ersichtliche Mobiliar bzw. Inventar nicht Bestandteil des inserierten Preises ist.

 

 

Infrastruktur / Entfernungen

Gesundheit
Arzt <75m
Apotheke <125m
Klinik <125m
Krankenhaus <475m

Kinder & Schulen
Schule <125m
Kindergarten <350m
Universität <550m
Höhere Schule <1.400m

Nahversorgung
Supermarkt <50m
Bäckerei <125m
Einkaufszentrum <125m

Sonstige
Geldautomat <125m
Bank <125m
Post <600m
Polizei <425m

Verkehr
Bus <25m
U-Bahn <50m
Straßenbahn <475m
Bahnhof <100m
Autobahnanschluss <1.050m

Angaben Entfernung Luftlinie / Quelle: OpenStreetMap
Beschreibung weiterlesen

Lage und Verkehrsanbindung

Donau, Millennium City, Handelskai, Adalbert-Stifter-Straße, Allerheiligenpark

"Handelskai" U6 & S-Bahn, Millennium-City, Friedrich-Engels-Platz

Energieeffizienz

HWB:
21,2 kWh/(m²*a)
HWB Klasse:
A
fGEE:
0,78
fGEE Klasse:
A
Energieausweisart:
Energiebedarfs-ausweis
Gültig bis:
08.04.2030

Grundriss

Lageplan

1200 Wien | Wien 20., Brigittenau

Lade...
Marija Ivanov

Marija Ivanov
Immobilienvermittlung

teamneunzehn-Gruppe

Lade...

Fotomix

Bild 1 Bild 2 Bild 3 Bild 4 Bild 5 Bild 6 Bild 7 Bild 8 Bild 9 Bild 10 Bild 11 Bild 12 Bild 13 Bild 14 Bild 15 Bild 16 Bild 17 Bild 18