NEU - ++großzügige 3-Zimmer Wohnung im Zentrum von Linz++

Wohnung zur Miete in 4020 Linz - Gesamtmiete: 1.165,11 € / Objektnummer: 133101
Ausstattung: Fahrstuhl Loggia
IMG-20220906-WA0003
20251103_162026
20251103_162002
20251103_162106
20251103_162008
20251103_161952
20251103_162019
20251103_162120
20251103_162039
20251103_162131
20251103_162203
20251103_162138
20251103_162235
20251103_162156
Unbenannt

Preisinformationen

Gesamtmiete:
1.165,11 € / Monat
Nettomiete:
936,99 € / Monat
Betriebskosten netto:
122,20 € / Monat
Umsatzsteuer:
105,92 €
Kaution:
3.496,00 €
Vermittlungsprovision:
Ja

Fakten

Objektnummer:
133101
Objekttyp:
Wohnung
Loggia:
1
Wohnfläche:
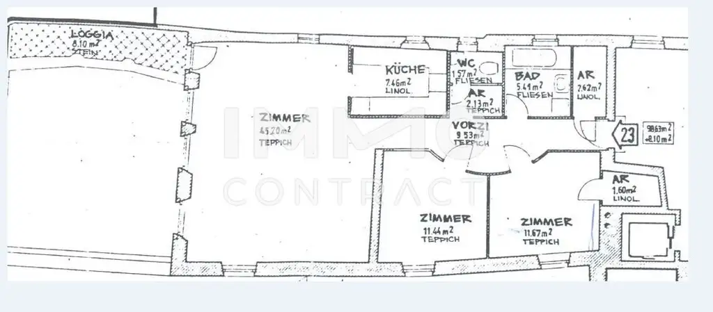
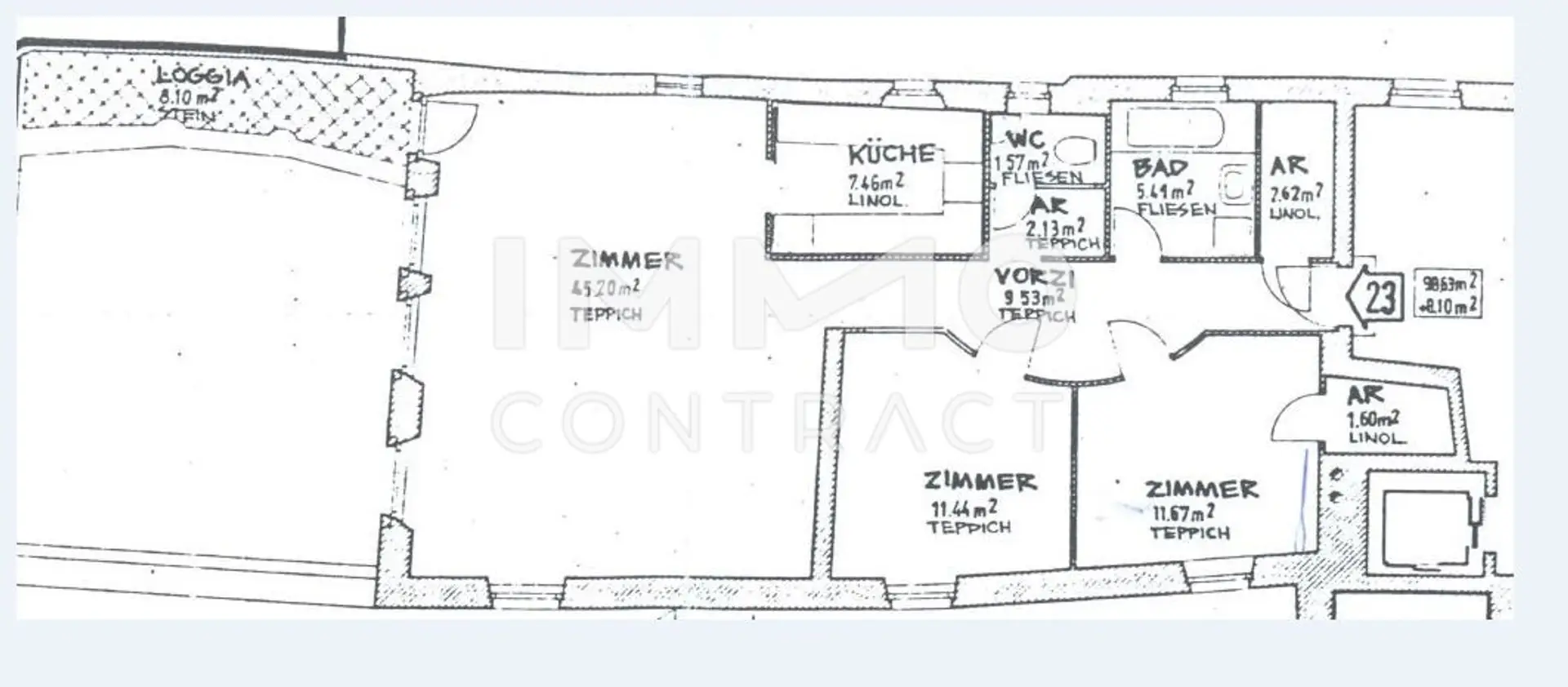
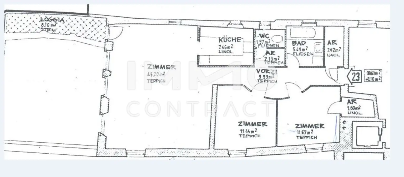
98,63 m²
Zimmer:
3
Zustand:
Gepflegt
Verfügbarkeit:
Verfügbar

Beschreibung

Diese 3-Zimmer-Wohnung liegt im 2. Obergeschoss eines historisch sehr interessanten Gebäudes, direkt am Linzer Hauptplatz (hofseitig). Die Einbauküche wurde erneuert und ist fixer Bestandteil der Wohnung (ablösefrei). Ein Personenlift ist vorhanden.

Direkt vor dem Objekt befinden sich zahlreiche Einkaufsmöglichkeiten mit der besten Infrastruktur.
Raumaufteilung: Vorraum, Abstellraum, Bad, WC, Kochnische, Wohn-Essbereich, 2 Schlafzimmer
Beschreibung weiterlesen

Lage und Verkehrsanbindung

Hauptplatz in Linz

Linz

Energieeffizienz

HWB:
62,8 kWh/(m²*a)
HWB Klasse:
C
fGEE:
1,25
fGEE Klasse:
C
Gebäudeart:
listing.status.epcBuildingType_wohn
Energieausweisart:
Energiebedarfs-ausweis
Ausstellung:
ab dem 1.5.2014
Gültig bis:
06.04.2032

Grundriss

Lageplan

4020 Linz | Linz (Stadt)

Lade...
Klaus Egger, LL.M.

Klaus Egger, LL.M.
Immobilienfachberater

IMMOcontract Immobilien Vermittlung GmbH

Anrufen
Lade...

Fotomix

IMG-20220906-WA0003 20251103_162026 20251103_162002 20251103_162106 20251103_162008 20251103_161952 20251103_162019 20251103_162120 20251103_162039 20251103_162131 20251103_162203 20251103_162138 20251103_162235 20251103_162156