NEU - Großzügige 3-Zimmer Wohnung mit Altbaucharme & Freifläche! Nähe U4 Margaretengürtel & Pilgramgasse! Unbefristet!

Wohnung zur Miete in 1050 Wien - Gesamtmiete: 1.653,01 € / Objektnummer: 3219
Ausstattung: Boden Bad Etagenheizung Loggia
Badezimmer

Preisinformationen

Gesamtmiete:
1.653,01 € / Monat
Betriebskosten netto:
229,24 € / Monat
Umsatzsteuer:
150,27 €
Kaution:
4.959,03 €
Provision:
Gemäß Erstauftraggeberprinzip bezahlt der Abgeber die Provision.

Fakten

Objektnummer:
3219
Objekttyp:
Wohnung
Loggia:
1
Wohnfläche:
104,81 m²
Loggia Fläche:
16,48 m²
Nutzfläche:
121,29 m²
Zimmer:
3
Badezimmer:
1
Toilette:
1
Baujahr:
1898
Altbau:
Ja
Zustand:
Gepflegt
Verfügbarkeit:
Verfügbar

Beschreibung

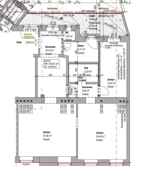
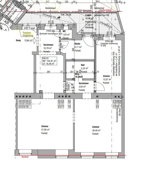
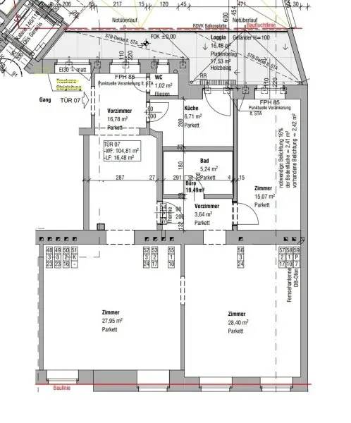
FAST FACTS WOHNUNG | MIETE | 1050 | Hochparterre mit Lift | Wohnfläche rund 104,81 m² | Loggia rund 16,48 m² | 3 Zimmer | Moderne Einbauküche | Toilette separat | Badezimmer mit Badewanne | Kellerabteil | Nähe U4 Margaretengürtel & Pilgramgasse |

Diese charmante 3-Zimmer-Altbauwohnung vereint historischen Charakter mit modernem Wohnkomfort. In einer gepflegten Liegenschaft aus dem Jahr 1898 gelegen, begeistert die Wohnung mit großzügiger Raumaufteilung, Freifläche und einer ausgezeichneten Lage im begehrten 5. Bezirk.

Auf rund 104,82 m² Wohnfläche erwartet Sie ein durchdachter Grundriss - Drei Zimmer bieten vielfältige Nutzungsmöglichkeiten, ob als Wohn-, Schlaf- oder Arbeitszimmer. Hohe Decken, stilvolle Details und ein angenehmes Raumgefühl unterstreichen das besondere Altbauflair.

Die moderne Einbauküche ist hochwertig ausgestattet und verfügt über alles was Sie für das entspannte Kochen benötigen – Ceran-Kochfeld, Dunstabzug, Backofen, Geschirrspüler und Kühlschrank mit Gefrierfach. Hier bleiben keine Wünsche offen. 

Das Badezimmer verfügt über eine Badewanne und die Toilette ist separat begehbar und befindet sich im Vorraum. 

Highlight der Wohnung ist eine Loggia mit rund 16,48 m², direkt vom Vorraum aus zu betreten und mit Ausrichtung in den Innenhof. Hier erwartet Sie viel Platz für die persönliche Gestaltung, um Ihren perfekten Rückzugsort zu schaffen. 

Raumaufteilung:
- Vorzimmer
- 3 Zimmer
- Küche
- Badezimmer
- Toilette separat
- Freifläche 

Ausstattung:
- Einbauküche
- Parkett
- Fliesen
- Badewanne
- Handtuchheizkörper

Umgebung:

Die Liegenschaft 1050 Wien, Kohlgasse 51 bietet Ihnen eine ideale Anbindung an die öffentlichen Verkehrsnetze. Die U-Bahnlinien U4 Margaretengürtel & Pilgramgasse sind in wenigen Gehminuten zu erreichen. Eine perfekte Nahversorgung ist dank einem reichhaltigen Angebot an Gastronomie und Einzelhandel in direkter Nachbarschaft garantiert. Der Bruno-Kreisky-Park bietet eine Grünfläche zur Entspannung in direkter Umgebung und der Naschmarkt, sowie die Einkaufsmöglichkeiten auf der Mariahilfer-Straße sind nach einem kurzen Spaziergang ebenfalls zu erreichen. 

Öffentliche Verkehrsanbindung:

* U-Bahnlinie U4 Margaretengürtel & Pilgramgasse
* Straßenbahnlinie 6, 18
* Buslinie 12A, 14A, 59A, N60

Für einen Besichtigungswunsch oder Fragen stehen wir Ihnen gerne zur Verfügung. Wir möchten darauf hinweisen, dass zwischen der ViennaEstate Makler GmbH und dem Auftraggeber ein wirtschaftliches Naheverhältnis besteht.

 

Der Immobilienmakler erklärt, dass er – entgegen dem in der Immobilienwirtschaft üblichen Geschäftsgebrauch des Doppelmaklers – einseitig nur für den Vermieter tätig ist.

Infrastruktur / Entfernungen

Gesundheit
Arzt <500m
Apotheke <500m
Klinik <1.000m
Krankenhaus <1.000m

Kinder & Schulen
Schule <500m
Kindergarten <500m
Universität <1.000m
Höhere Schule <1.000m

Nahversorgung
Supermarkt <500m
Bäckerei <500m
Einkaufszentrum <1.500m

Sonstige
Geldautomat <500m
Bank <500m
Post <500m
Polizei <1.000m

Verkehr
Bus <500m
U-Bahn <500m
Straßenbahn <1.000m
Bahnhof <1.000m
Autobahnanschluss <4.000m

Angaben Entfernung Luftlinie / Quelle: OpenStreetMap
Beschreibung weiterlesen

Lage und Verkehrsanbindung

Margareten zählt zu den hippen Bezirken Wiens und hat, neben zahlreichen Start-ups, auch allerhand urigen Charme zu bieten.
Verschiedene Innenhöfe der Umgebung – wie zum Beispiel das Schlossquadrat – bieten nicht nur ein vielfältiges Gastronomieangebot, sondern sind auch beliebte Schattenspender an heißen Sommertagen in der Großstadt.

Die belebte Reinprechtsdorfer Straße liegt direkt um die Ecke und bietet mit zahlreichen Nahversorgern, verschiedensten Cafés und Lokalen beinahe alles was man für das tägliche Leben brauchen kann.

Öffentliche Verkehrsanbindung:
U-Bahnlinie U4 Margaretengürtel & Pilgramgasse
Straßenbahnlinie 6, 18
Buslinie 12A, 14A, 59A, N60

U4 Margaretengürtel & Pilgramgasse

Energieeffizienz

HWB:
114,3 kWh/(m²*a)
HWB Klasse:
D
fGEE:
2,39
fGEE Klasse:
D
Energieausweisart:
Energiebedarfs-ausweis
Gültig bis:
06.02.2030

Grundriss

Lageplan

1050 Wien | Wien 5., Margareten

Lade...
Markus Damej

Markus Damej

ViennaEstate Makler GmbH

Lade...

Fotomix

Bild 1 Bild 2 Bild 3 Bild 4 Bild 5 Bild 6 Bild 7 Bild 8 Badezimmer Bild 10 Bild 11 Bild 12 Bild 13