NEU - Großzügige hofseitige 3,5-Zimmer-Altbau-Terassenwohnung

Wohnung zum Kauf in 1120 Wien - Kaufpreis: 543.500 € / Objektnummer: 1619/7622
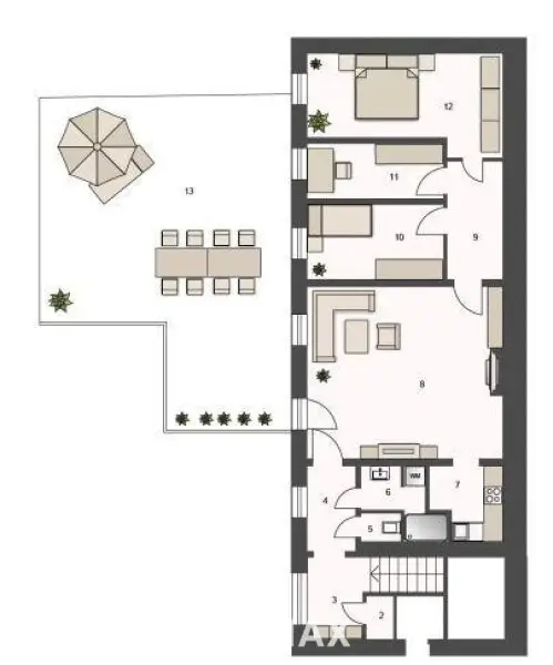
Ausstattung: Fahrstuhl Fußbodenheizung Terrasse
1 Wohnzimmer
2 Wohnzimmer
3 Küche
#remaxrealexperts-sicherverkaufen
4 Zimmer
5 Zimmer
6 Wohnzimmer
7 WC
8 Bad
9 Bad
10 Terrasse
Plan

Preisinformationen

Kaufpreis:
543.500 €

Fakten

Objektnummer:
1619/7622
Objekttyp:
Wohnung
Terrasse:
1
Keller Fläche:
2,5 m²
Wohnfläche:
85 m²
Zimmer:
3,5
Badezimmer:
1
Toilette:
1
Baujahr:
1900
Altbau:
Ja
Zustand:
Gepflegt
Verfügbarkeit:
Verfügbar

Beschreibung

Zum Verkauf steht diese geschmackvolle 3,5-Zimmer-Terrassenwohnung

Rundgang:
Die Wohnung ist aufgeteilt in ein großflächiges Wohnzimmer, sowie zwei Schlafzimmer, eines der Schlafzimmer ist mit einem Schrankraum ausgestattet, ein Badezimmer mit Dusche, einem separaten WC, einer praktischen Küchenecke, ein Kabinett sowie einem hellen Vorraum.

Die Wohnung ist aktuell leerstehend und steht ab sofort zur Verfügung und kann sowohl zur Eigennutzung oder Neuvermietung (MRG Vollanwendung) genutzt werden. Auch Airbnb Vermietung ist erlaubt.

Die Highlights auf einen Blick:

- 65 m² Terrasse
- 3.2 m Raumhöhe
- Fliesenboden
- Fußbodenheizung
- Einbauküche
- großzügiges Wohnzimmer mit Kamin
- 2 Schlafzimmer
- Kabinett

Öffentliche Anbindung / Umgebung:

Durch die nahe Anbindung an U-Bahn, Straßenbahn und Bus lassen sich die Vorzüge der Stadt problemlos erkunden, die Innenstadt ist in 15 Min gut öffentlich erreichbar.
In unmittelbarer Umgebung befinden sich der Meidlinger Markt mit tollen Restaurants und kulinarischer Vielfalt. Zusätzlich dazu befinden sich in unmittelbarer Umgebung Geschäfte des täglichen Bedarfs und div. Gastronomielokale.

Die nahegelegene Haydnpark, und Steinbauerpark, laden zum Entspannen, spazieren und spielen ein.

Bitte prüfen Sie vorab die Möglichkeit Ihrer Finanzierbarkeit nach nachstehenden Kriterien:

- 20% Eigenmittelanteil vom Kaufpreis
- Tilgungsrate max. 40% des Haushaltseinkommens
- max. 35 Jahre Laufzeit der Finanzierung

Infrastruktur / Entfernungen

Gesundheit
Arzt <500m
Apotheke <500m
Klinik <1.000m
Krankenhaus <1.000m

Kinder & Schulen
Schule <500m
Kindergarten <500m
Universität <1.000m
Höhere Schule <500m

Nahversorgung
Supermarkt <500m
Bäckerei <500m
Einkaufszentrum <1.000m

Sonstige
Geldautomat <500m
Bank <1.000m
Post <500m
Polizei <500m

Verkehr
Bus <500m
U-Bahn <1.000m
Straßenbahn <500m
Bahnhof <1.000m
Autobahnanschluss <3.000m

Angaben Entfernung Luftlinie / Quelle: OpenStreetMap
Beschreibung weiterlesen

Lage und Verkehrsanbindung

Haydnpark, Steinbauerpark

Energieeffizienz

HWB:
69 kWh/(m²*a)
HWB Klasse:
C
Energieausweisart:
Energiebedarfs-ausweis

Grundriss

Lageplan

1120 Wien | Wien 12., Meidling

Lade...
Alice Prat (Team Hubert Koller)

Alice Prat (Team Hubert Koller)

RE/MAX Real Experts Immobilien lifetime GmbH

Lade...

Fotomix

1 Wohnzimmer 2 Wohnzimmer 3 Küche #remaxrealexperts-sicherverkaufen 4 Zimmer 5 Zimmer 6 Wohnzimmer 7 WC 8 Bad 9 Bad 10 Terrasse