NEU - Großzügiges Altbauensemble im 2. Liftstock – Zwei Einheiten mit Zusammenlegungspotenzial und Balkonoption

Wohnung zum Kauf in 1030 Wien - Kaufpreis: 1.280.000 € / Objektnummer: 812
Ausstattung: Barrierefrei Boden Fahrstuhl Wohnküche / offene Küche Bad Möbliert Etagenheizung WG geeignet

Preisinformationen

Kaufpreis:
1.280.000 €
Betriebskosten netto:
406,42 € / Monat
Vermittlungsprovision:
Ja
Provision:
3% des Kaufpreises zzgl. 20% USt.

Fakten

Objektnummer:
812
Objekttyp:
Wohnung
Keller Fläche:
6 m²
Wohnfläche:
160 m²
Zimmer:
7
Badezimmer:
2
Toilette:
2
Stockwerk:
2
Baujahr:
1932
Altbau:
Ja
Zustand:
Gepflegt
Verfügbarkeit:
Verfügbar

Beschreibung

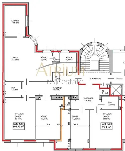
Zum Verkauf gelangen zwei Wohnungen im zweiten Liftstock, die sowohl getrennt als auch gemeinsam genutzt werden können.

Die kleinere Einheit verfügt über ca. 53 m² Wohnfläche und gliedert sich in:

*
Vorzimmer

*
Badezimmer

*
Separate Toilette

*
Schlafzimmer

*
Wohnzimmer mit offener Küche (erneuert 2018)

Die größere Einheit bietet ca. 107 m² Wohnfläche und umfasst:

*
Vorzimmer

*
Großzügigen Wohnraum mit offener Küche

*
Drei Schlafzimmer

*
Kabinett

*
Badezimmer

*
Separate Toilette

Ein besonderes Highlight:
Die meisten Wände sind nicht tragend, wodurch eine Zusammenlegung der beiden Wohnungen problemlos möglich ist.

Mit einer Raumhöhe von ca. 3,10 m und mehreren straßenseitig belichteten Räumen bietet dieses Objekt beste Voraussetzungen für die Schaffung einer hochwertigen Altbauwohnung.

Hier lassen sich Wohnträume verwirklichen – etwa mit klarer Trennung von:

*
repräsentativem Wohnbereich

*
privatem Rückzugsbereich

*
Homeoffice- oder Gästezone

Eine seltene Gelegenheit für Eigennutzer oder Anleger mit Weitblick.

_Für weitere Fragen und Details steht Ihnen Herr Djordjevic unter Tel. Nr.: +43660 5451310 gerne zur Verfügung, oder per Mail unter: bojan@atrium-real.at_

_BITTE BEACHTEN SIE, DASS WIR AUFGRUND DER NACHWEISPFLICHT GEGENÜBER DEM EIGENTÜMER NUR ANFRAGEN MIT VOLLSTÄNDIGER ANGABE DER KONTAKTDATEN BEARBEITEN KÖNNEN._

 

Noch nichts gefunden? Wir informieren Sie über geeignete Immobilienangebote noch vor allen anderen.
Legen Sie jetzt Ihren individuellen Suchagenten unter folgendem Link an. Wir schicken Ihnen passende Immobilien exklusiv vorab zu.
Suchagent anlegen [https://atrium-global-investment.service.immo/registrieren/de] - https://atrium-global-investment.service.immo/registrieren/de

Wir weisen darauf hin, dass zwischen dem Vermittler und dem zu vermittelnden Dritten ein familiäres oder wirtschaftliches Naheverhältnis besteht.

Der Vermittler ist als Doppelmakler tätig.

Infrastruktur / Entfernungen

Gesundheit
Arzt <500m
Apotheke <500m
Klinik <500m
Krankenhaus <500m

Kinder & Schulen
Schule <500m
Kindergarten <500m
Universität <500m
Höhere Schule <1.000m

Nahversorgung
Supermarkt <500m
Bäckerei <500m
Einkaufszentrum <500m

Sonstige
Geldautomat <500m
Bank <500m
Post <500m
Polizei <1.000m

Verkehr
Bus <500m
U-Bahn <500m
Straßenbahn <500m
Bahnhof <500m
Autobahnanschluss <2.000m

Angaben Entfernung Luftlinie / Quelle: OpenStreetMap
Beschreibung weiterlesen

Lage und Verkehrsanbindung

Diese charmante Wohnung in 1030 Wien besticht durch ihre zentrale Lage nahe dem beliebten Rochusmarkt. Hier genießen Sie eine hervorragende Infrastruktur mit Ärzten, Apotheken und Kliniken in unmittelbarer Nähe. Familien profitieren von Schulen und Kindergärten, während Studierende die Universität und höhere Schulen schnell erreichen. Supermärkte, Bäckereien und ein Einkaufszentrum sorgen für bequeme Besorgungen. Die Anbindung an öffentliche Verkehrsmittel ist ideal – Bus, U-Bahn, Straßenbahn und Bahnhof befinden sich in kurzer Distanz.

Rochusmarkt

Energieeffizienz

HWB:
133 kWh/(m²*a)
HWB Klasse:
D
fGEE:
2,26
fGEE Klasse:
D
Energieausweisart:
Energiebedarfs-ausweis
Gültig bis:
06.11.2029

Grundriss

Lageplan

1030 Wien | Wien 3., Landstraße

Lade...
Bojan Djordjevic

Bojan Djordjevic
Immobilienmakler-Assistent

Atrium Global Investment

Lade...

Fotomix

Bild 1 Bild 2 Bild 3 Bild 4 Bild 5 Bild 6 Bild 7 Bild 8 Bild 9 Bild 10 Bild 11 Bild 12 Bild 13