NEU - Großzügiges Büro/Praxis auf 2 Ebenen Nähe Stadtpark

Immobilie zur Miete in 1010 Wien / Objektnummer: 5177
Ausstattung: Boden Abstellraum

Preisinformationen

Gesamtmiete (exkl. USt.):
5.200,00 € / Monat
Kaution:
3 Bruttomonatsmieten
Vermittlungsprovision:
Ja
Provision:
3 Bruttomonatsmieten zzgl. 20% USt.

Fakten

Objektnummer:
5177
Nutzfläche:
158,81 m²
Zimmer:
7
Toilette:
1
Baujahr:
1872
Altbau:
Ja
Zustand:
Modernisiert
Verfügbarkeit:
Verfügbar

Beschreibung

Zur Vermietung gelangt ein großartiges Büro/Praxis auf zwei Etagen in bester Lage der Wiener Innenstadt.

Das im berühmten Wiener Historismus der Jahrhundertwende 1872 erbaute Haus befindet sich in einer belebten Seitengasse, im sogenannten Stubenviertel und wurde rundum saniert. Die historische, sehr kunstvolle Außenfassade wurde mit einem Steinsockel ausgebildet und ist somit über die gesamte Fläche beleuchtet. Das auf höchsten Niveau fertiggestellte Objekt, glänzt besonders durch die fantastische Lage sowie die einzigartige Auswahl der hochwertigen und exklusiven Materialien.

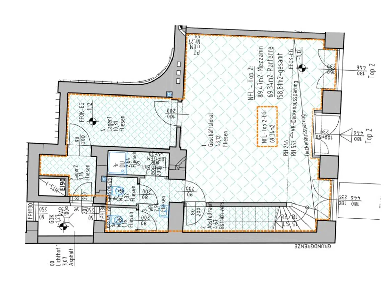
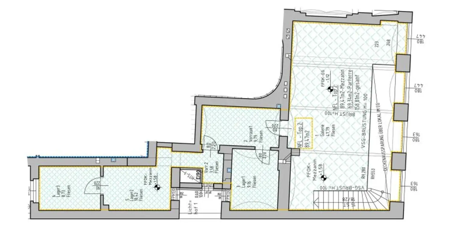
Das Erdgeschoss dieses lukrativen Lokals umfängt eine Fläche von ca. 69,34 m²; der Eingang befindet sich mittig zwischen zwei Schaufenstern. Sie betreten zu aller erst einen großen Raum mit ca. 43 m², in dem links die Treppe ins Obergeschoss hochführt und darunter mittels einer Trennwand ein kleiner Abstellraum entsteht. Gegenüber des großen Raumes befinden sich zwei verflieste Räume mit jeweils ca. 10,31 und 3,16 m². Hier im Erdgeschoss stehen Ihnen und Ihren Kunden eine Toilette mit Vorraum zur Verfügung. Einmal im Obergeschoss angekommen, welches insgesamt 89,47 m² beträgt, befinden Sie Sich in einer Art großzügigen Galerie mit einer Gesamtnutzfläche von mit ca. 48 m² und vier Fenster, die diesen Raum viel Licht spenden. Von hier gelangen Sie in fünf weitere Räume, welche teils als Vorraum sowie als Lagerräume konzipiert sind.

Ein Highlight ist die Nähe zum Stadtpark, sowie zur Kärntnerstraße, die zum Shoppen einlädt. Vor der Haustüre befinden sich ausgezeichnete Restaurants, das Akademietheater, das Wiener Konzerthaus sowie die Staatsoper und diverse Museen. Die öffentlichen Verkehrsmittel (Straßenbahnlinie 2,U-Bahn Linie 3) sind in nächster Nähe zu erreichen.

Überzeugen Sie sich selbst von diesem exklusiven Objekt.
Für Besichtigungen und nähere Informationen stehen wir Ihnen gerne zur Verfügung!

Hr. Christian Kiedl
national - Tel: 0664 336 0836 [tel:06643360836]
international - Tel: +43 664 336 0836 [tel:+436643360836]
e-mail: kiedl@lifestyle-properties.at

 

Wir weisen darauf hin, dass zwischen dem Vermittler und dem zu vermittelnden Dritten ein familiäres oder wirtschaftliches Naheverhältnis besteht.

Der Vermittler ist als Doppelmakler tätig.

 

 

Infrastruktur / Entfernungen

Gesundheit
Arzt <500m
Apotheke <500m
Klinik <1.000m
Krankenhaus <1.000m

Kinder & Schulen
Schule <500m
Kindergarten <1.000m
Universität <500m
Höhere Schule <500m

Nahversorgung
Supermarkt <500m
Bäckerei <500m
Einkaufszentrum <500m

Sonstige
Geldautomat <500m
Bank <500m
Post <500m
Polizei <1.000m

Verkehr
Bus <500m
U-Bahn <500m
Straßenbahn <500m
Bahnhof <500m
Autobahnanschluss <3.000m

Angaben Entfernung Luftlinie / Quelle: OpenStreetMap
Beschreibung weiterlesen

Energieeffizienz

HWB:
73,37 kWh/(m²*a)
HWB Klasse:
C
fGEE:
1,82
fGEE Klasse:
D
Energieausweisart:
Energiebedarfs-ausweis
Gültig bis:
27.07.2027

Grundrisse

Lageplan

1010 Wien | Wien 1., Innere Stadt

Lade...
Christian Kiedl

Christian Kiedl
akad. Immobilienmanager

IM Lifestyle Properties GmbH

Lade...

Fotomix

Bild 1 Bild 2 Bild 3 Bild 4 Bild 5 Bild 6 Bild 7 Bild 8 Bild 9 Bild 10 Bild 11 Bild 12 Bild 13 Bild 14 Bild 15 Bild 16 Bild 17 Bild 18