NEU - Großzügiges Geschäftslokal/Büro in guter Lage des 15. Bezirks!

Immobilie zur Miete in 1150 Wien / Objektnummer: 5908/1692
Ausstattung: Boden Bad Gäste-WC Klimaanlage Etagenheizung

Preisinformationen

Gesamtmiete (exkl. USt.):
1.403,97 € / Monat
Betriebskosten netto:
392,88 € / Monat
Umsatzsteuer:
280,80 €
Miete/m² netto:
7,59 €
Kaution:
5.000,00 €
Vermittlungsprovision:
Ja
Provision:
5.054,29 € inkl. 20% USt.

Fakten

Objektnummer:
5908/1692
Nutzfläche:
133 m²
Badezimmer:
1
Toilette:
2
Altbau:
Ja
Zustand:
Teilsaniert
Verfügbarkeit:
Verfügbar

Beschreibung

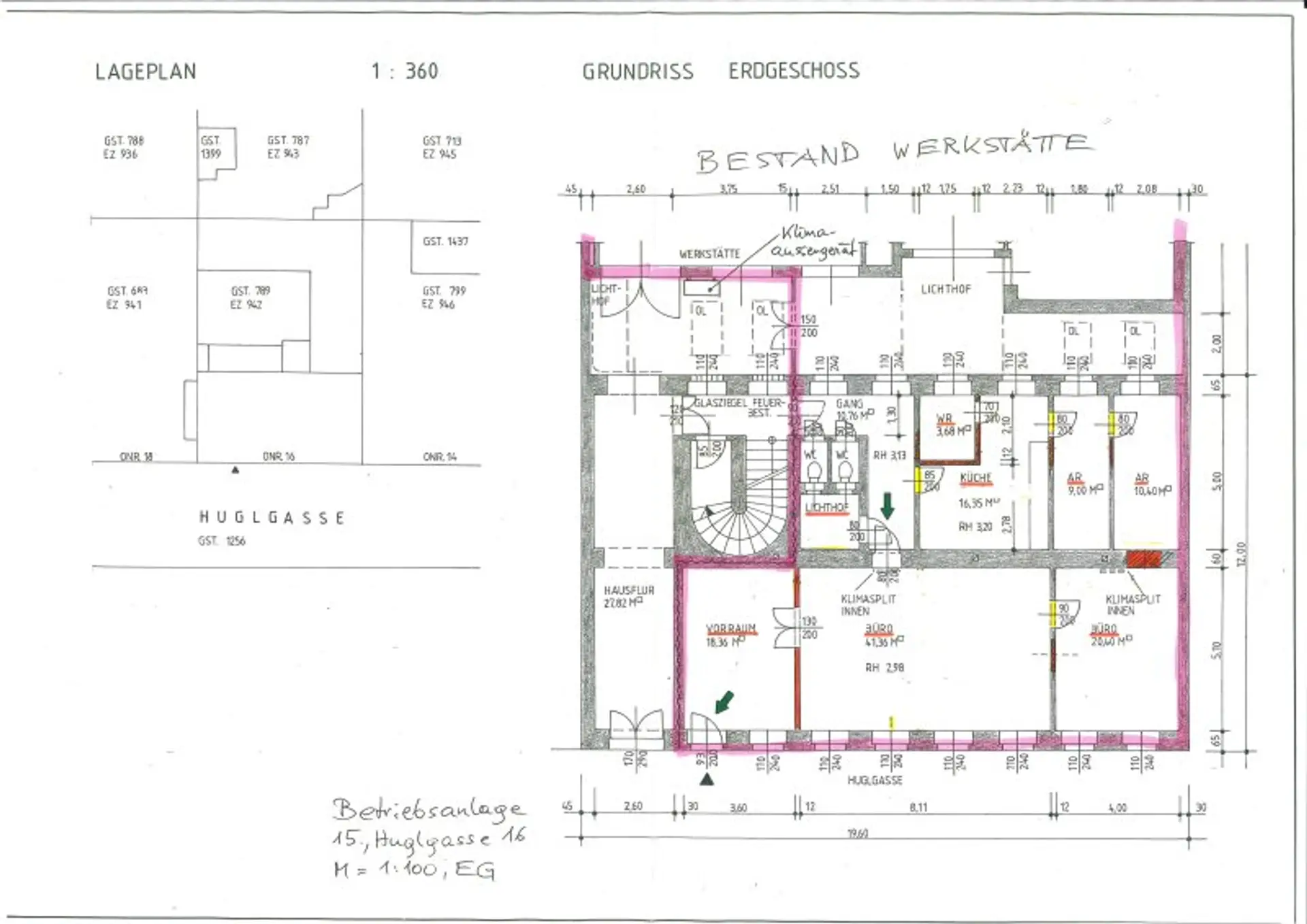
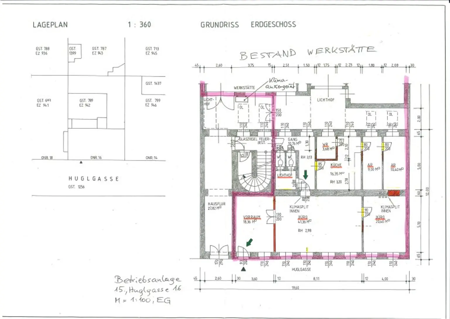
Das Büro/Geschäftsfläche Top 1 in der Huglgasse 16, 1150 Wien, bietet auf rund 225 m² großzügige, flexibel nutzbare Arbeitsflächen, die sich ideal für vielfältige gewerbliche Nutzungskonzepte eignen. Die durchdachte Raumaufteilung ermöglicht sowohl offene Arbeitsbereiche als auch die Einrichtung von Einzelbüros oder Besprechungsräumen. Zusätzlich besteht die Möglichkeit, Werbeschilder an der Fassade anzubringen, was eine gute Sichtbarkeit im Straßenraum garantiert.

Über einen zentralen Vorraum gelangt man in einen großzügigen Verkaufs- oder Büroraum mit 40 m²; daran anschließend befindet sich ein weiterer Raum mit ca. 20,4 m². Über einen Verbindungsgang sind die Küche sowie zwei weitere Räume zugänglich. Darüber hinaus stehen eine Duscheinheit sowie zwei separate WCs zur Verfügung. Ein zweiter Zugang über das Stiegenhaus bietet zusätzliche Flexibilität in der Nutzung.

Folgende Nutzungsmöglichkeiten sind grundsätzlich denkbar:

* Büro- und Dienstleistungsbetriebe
* Praxisräume 
* Verkaufs- oder Schauraum (Showroom)
* Bildungs- und Schulungsangebote
* Gesundheit & Wohlbefinden 
* Kombinationen (z. B. Büro mit Kundenverkehr)
 

Dank der Lage im 15. Wiener Gemeindebezirk Rudolfsheim-Fünfhaus profitieren Mieter von einer ausgezeichneten öffentlichen Verkehrsanbindung und einem Umfeld, das Wohnen und Arbeiten optimal verbindet. Das Objekt eignet sich besonders für Unternehmen, die eine geräumige, funktionale und gut erreichbare Gewerbefläche suchen. Nur wenige Gehminuten entfernt befinden sich die U3-Stationen Schweglerstraße und Johnstraße, die eine rasche Verbindung in die Wiener Innenstadt sowie zu Verkehrsknotenpunkten wie dem Westbahnhof oder der Landstraße/Wien Mitte ermöglichen.

Mehrere Straßenbahn- und Buslinien ergänzen die hervorragende Anbindung an das öffentliche Verkehrsnetz. Trotz der ruhigen Lage in einer Seitenstraße sind zentrale Verkehrsachsen wie die Hütteldorfer Straße, der Gürtel sowie die Hadikgasse in kürzester Zeit erreichbar. Somit ist sowohl der Stadtverkehr als auch die rasche Anbindung an die A1 und A2 gewährleistet.

Die Umgebung bietet eine ausgezeichnete Nahversorgung: Zahlreiche Supermärkte, Bäckereien, Apotheken, Cafés, Schulen und soziale Einrichtungen befinden sich in unmittelbarer Nähe und machen den Standort sowohl für Mitarbeitende als auch für Kundinnen und Kunden besonders attraktiv. Zusätzlich sorgen nahegelegene Parks und begrünte Innenhöfe für eine angenehme Aufenthaltsqualität im Grätzel.

Infrastruktur / Entfernungen

Gesundheit
Arzt <500m
Apotheke <500m
Klinik <500m
Krankenhaus <2.000m

Kinder & Schulen
Schule <500m
Kindergarten <500m
Universität <1.500m
Höhere Schule <1.500m

Nahversorgung
Supermarkt <500m
Bäckerei <500m
Einkaufszentrum <500m

Sonstige
Geldautomat <500m
Bank <500m
Post <500m
Polizei <500m

Verkehr
Bus <500m
U-Bahn <500m
Straßenbahn <500m
Bahnhof <500m
Autobahnanschluss <4.500m

Angaben Entfernung Luftlinie / Quelle: OpenStreetMap
Beschreibung weiterlesen

Grundriss

Lageplan

1150 Wien | Wien 15., Rudolfsheim-Fünfhaus

Lade...
Fanny Vorstandlechner

Fanny Vorstandlechner
Immobilienberatung

ABRA IC GmbH

Lade...

Fotomix

Bild 1 Bild 2 Bild 3 Bild 4 Bild 5 Bild 6 Bild 7 Bild 8 Bild 9 Bild 10 Bild 11 Bild 12 Bild 13 Bild 14 Bild 15 Bild 16 Bild 17 Bild 18