NEU - Großzügiges, trockenes Lager mit Lüftung - Hietzinger Hauptstrasse - Neubau

Lager zur Miete in 1130 Wien / Objektnummer: 19704
Ausstattung: Barrierefrei Fahrstuhl Garage Parkplatz
Lagerraum
Zugang Lager
Lift/Steigenhaus
www.bieberundsohn.at
Garage
Hausansicht/Strassenseite
Lageplan
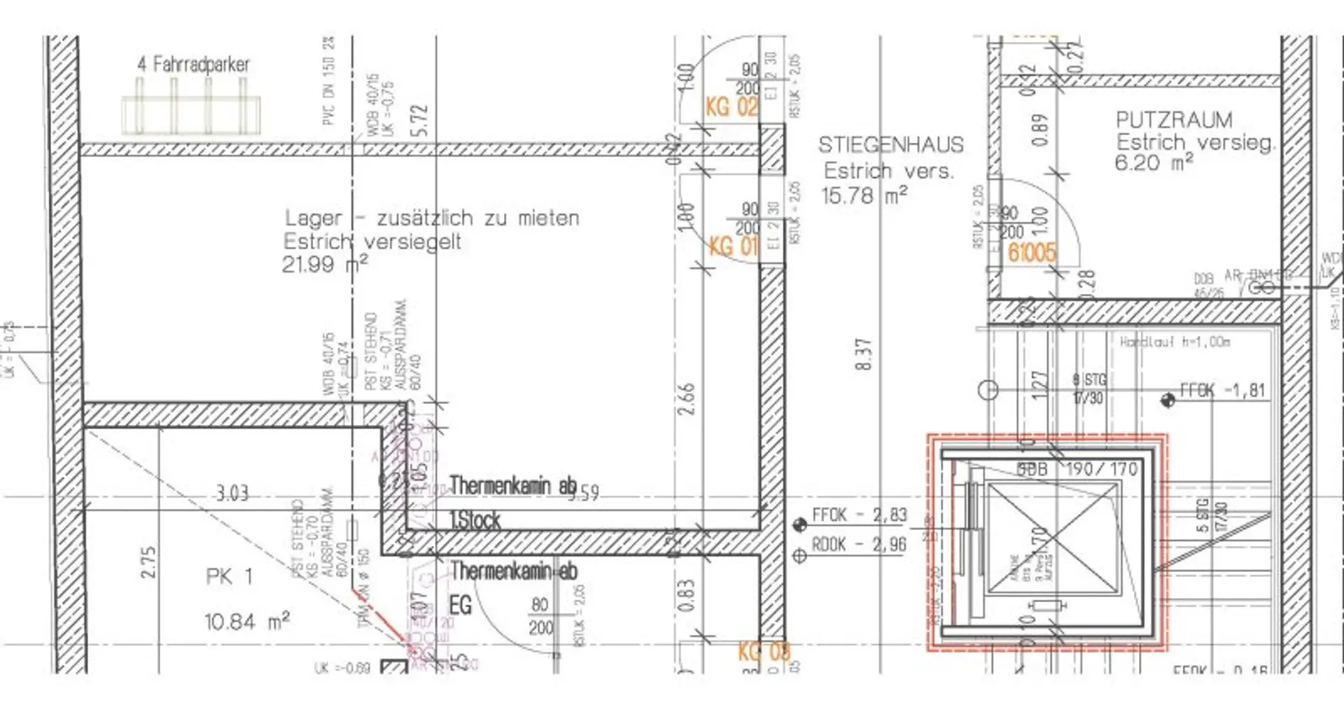
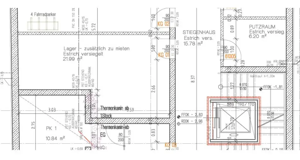
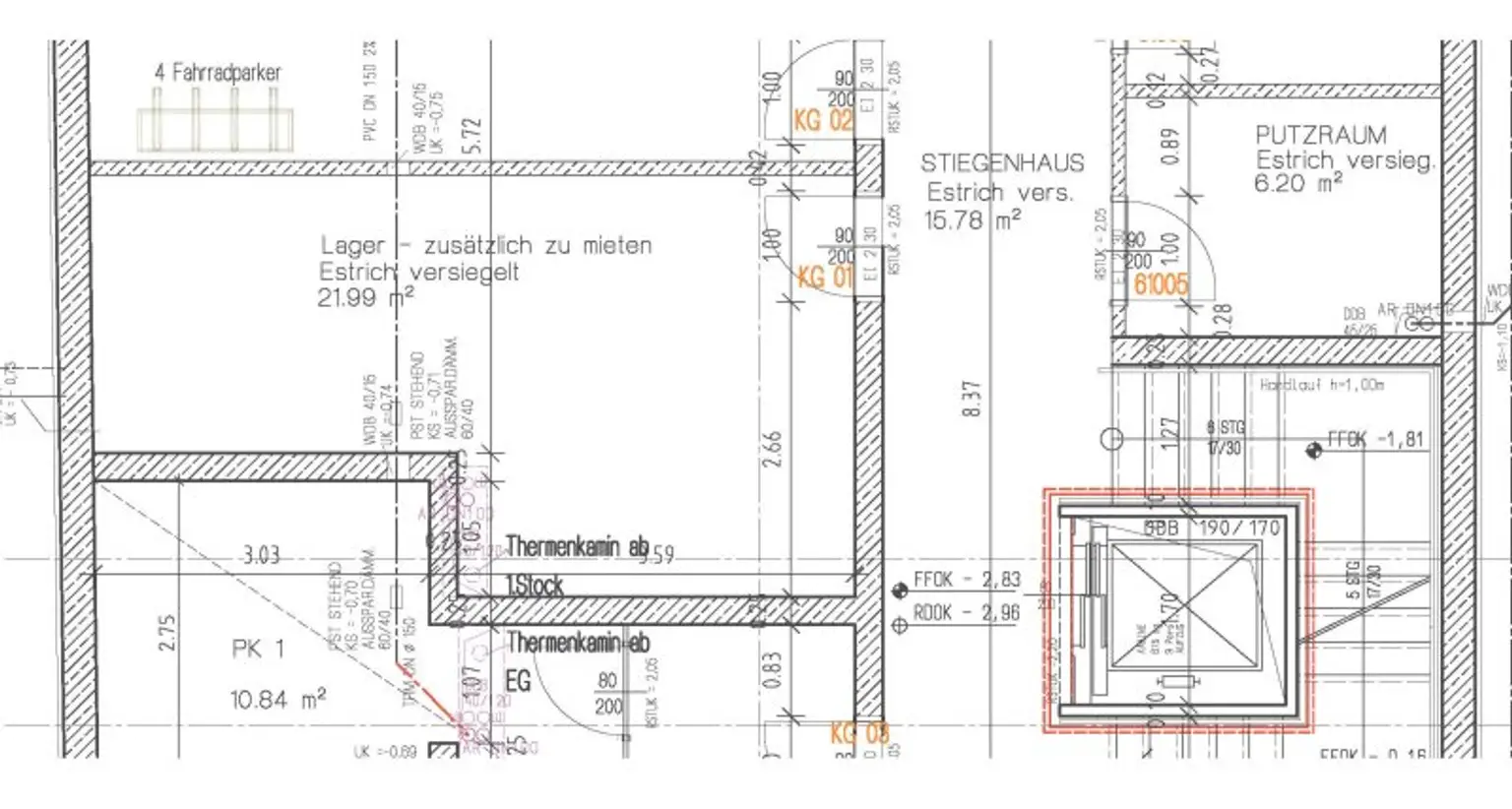
Grundriss

Preisinformationen

Gesamtmiete (exkl. USt.):
323,91 € / Monat
Betriebskosten netto:
60,03 € / Monat
Umsatzsteuer:
64,79 €
Kaution:
1.749,15 €
Vermittlungsprovision:
Ja
Provision:
1.166,08 € inkl. 20% USt.

Fakten

Objektnummer:
19704
Objekttyp:
Lager
Nutzfläche:
22 m²
Lagerfläche:
22 m²
Gesamtfläche:
22 m²
Zimmer:
1
Stockwerk:
-1
Baujahr:
2017
Neubau:
Ja
Zustand:
Neuwertig
Verfügbarkeit:
Verfügbar

Beschreibung

In einem 2017 fertiggestellten Neubau, bei der Hietzinger Hauptstrasse, wird dieses ca. 22m² große Lager extern zur Vermietung angeboten.

Der große und trockene Lagerraum befindet sich im Untergeschoss, der mit dem Lift und barrierefreiem Zugang erreichbar ist und mit einer Lüftung, Licht und Betonboden ausgestattet ist.

Ein Garagenplatz kann um 150,00 EUR/p.m. dazu gemietet werden.

Das Lager wird vorerst auf 5 Jahre befristet vermietet, Verlängerung ist möglich. 

Miete (netto): 263,88 EUR
Betriebskosten (netto): 60,03 EUR
Umsatzsteuer (gesamt): 64,78 EUR
Gesamtmiete: 388,69 EUR

Kaution: 1.749,11 EUR
Provision: 1.166,08 EUR inkl. 20% USt.
FA-Vergebührung: 233,22 EUR
MV-Errichtung: 200,00 EUR
Beschreibung weiterlesen

Lage und Verkehrsanbindung

Hietzinger Hauptstrasse

Energieeffizienz

HWB:
35,8 kWh/(m²*a)
HWB Klasse:
B
fGEE:
0,7
fGEE Klasse:
A+
Energieausweisart:
Energiebedarfs-ausweis
Gültig bis:
27.02.2026

Grundriss

Lageplan

1130 Wien | Wien 13., Hietzing

Lade...
Elisabeth Bieber

Elisabeth Bieber

Bieber Immobilien GmbH

Lade...

Fotomix

Lagerraum Zugang Lager Lift/Steigenhaus www.bieberundsohn.at Garage Hausansicht/Strassenseite Lageplan