NEU - GRÜNRUHELAGE MIT EIGENGARTEN - 3 Zimmer - 100 m² Garten

Wohnung zur Miete in 1220 Wien - Gesamtmiete: 1.193,91 € / Objektnummer: 3547
Ausstattung: Boden Fahrstuhl Bad Rollladen Fahrradraum Abstellraum Fußbodenheizung Terrasse Garten

Preisinformationen

Gesamtmiete:
1.193,91 € / Monat
Kaution:
3 Bruttomonatsmieten
Provision:
Gemäß Erstauftraggeberprinzip bezahlt der Abgeber die Provision.

Fakten

Objektnummer:
3547
Objekttyp:
Wohnung
Terrasse:
1
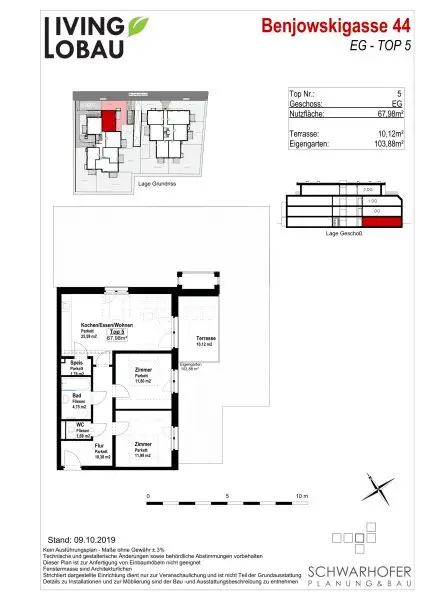
Wohnfläche:
67,98 m²
Gartenfläche:
103,88 m²
Zimmer:
3
Badezimmer:
1
Toilette:
1
Baujahr:
2019
Neubau:
Ja
Zustand:
Neuwertig
Verfügbarkeit:
Verfügbar

Beschreibung

Zur Vermietung gelangt eine helle Wohnung im Herzen von Aspern, unweit vom Asperner Heldenplatz in absoluter Grünruhelage. 

Die Dreizimmerwohnung ist ideal aufgeteilt. Sie verfügt über ein zentrales, geräumiges Vorzimmer, dieses führt in die beiden gleich großen Schlafzimmer und das lichtdurchflutete Wohnzimmer mit voll ausgestatteter Einbauküche und praktischer Speis. Das Bad mit Wanne und Waschmaschinenanschluss sowie das separate WC mit Waschbecken sind ebenfalls über den Gang zu erreichen. Der Garten ist das absolute Highlight der Wohnung. Er erstreckt sich über 100 m² und bietet genug Platz für Erholung. 

Die Wohnung ist mit Parkettböden ausgestattet, verfügt über eine Fußbodenheizung und dreifachverglaste Fenster mit Rolläden. Ein Kellerabteil steht ebenfalls zur Verfügung. Garagenplätze können angemietet werden. 

Die nächsten Schritte zu Ihrer Besichtigung: 

1. Sehen Sie sich die Bilder bzw. den 360° Rundgang an.

2. Ihnen gefällt das Gesehene? Senden Sie uns eine Anfrage - Sie erhalten ein automatisches Mail von uns. 

3. Klicken Sie "Weiter zum Immobilienangebot" und überprüfen Sie bitte Ihre Kontaktdaten.

4. Klicken Sie auf "Besichtigung anfragen" - wir melden uns werktags innerhalb von 24 Stunden bei Ihnen. 

Unser Service endet nicht mit der erfolgreichen Vermittlung der Immobilie. Zusätzlich verfügen wir über ein großes Netzwerk an Kooperationspartnern für alle Ihre Wünsche vor, während und nach dem Immobilienkauf bzw. der Vermietung. Angefangen von der Finanzierung über die Versicherung, Umzugsservice, Entrümpelungen, Renovierungsarbeiten, Reinigungsservice, Energieausweis, Rechtsanwälte und Notare.

Noch nichts gefunden? Wir informieren Sie über geeignete Immobilienangebote noch vor allen anderen.
Legen Sie jetzt Ihren individuellen Suchagenten unter folgendem Link an. Wir schicken Ihnen passende Immobilien exklusiv vorab zu.
Suchagent anlegen [https://aps-immobilien.service.immo/registrieren/de] - https://aps-immobilien.service.immo/registrieren/de

Der Immobilienmakler erklärt, dass er – entgegen dem in der Immobilienwirtschaft üblichen Geschäftsgebrauch des Doppelmaklers – einseitig nur für den Vermieter tätig ist.

Infrastruktur / Entfernungen

Gesundheit
Arzt <250m
Apotheke <250m
Klinik <1.500m
Krankenhaus <2.000m

Kinder & Schulen
Schule <500m
Kindergarten <500m
Universität <2.000m
Höhere Schule <1.750m

Nahversorgung
Supermarkt <500m
Bäckerei <500m
Einkaufszentrum <3.750m

Sonstige
Bank <500m
Geldautomat <500m
Post <1.250m
Polizei <1.000m

Verkehr
Bus <250m
U-Bahn <1.500m
Straßenbahn <750m
Bahnhof <1.500m
Autobahnanschluss <3.250m

Angaben Entfernung Luftlinie / Quelle: OpenStreetMap
Beschreibung weiterlesen

Lage und Verkehrsanbindung

Die Liegenschaft befindet sich in einer ruhigen Wohngegend im 22. Bezirk und überzeugt durch ihre angenehme Nachbarschaft sowie eine solide Infrastruktur. Einkaufsmöglichkeiten für den täglichen Bedarf, Schulen und Kindergärten sind in der Umgebung gut erreichbar. Die öffentliche Anbindung ist durch Bus- und Straßenbahnlinien gegeben, wodurch eine Verbindung in die umliegenden Bezirke sowie in Richtung Innenstadt gewährleistet ist. Zudem bietet die Nähe zu weitläufigen Grünflächen und Erholungsgebieten, wie der Alten Donau und der Donauinsel, einen hohen Freizeit- und Erholungswert.

Energieeffizienz

HWB:
27,44 kWh/(m²*a)
HWB Klasse:
B
fGEE:
0,61
fGEE Klasse:
A+
Energieausweisart:
Energiebedarfs-ausweis
Gültig bis:
20.09.2027

Grundriss

Lageplan

1220 Wien | Wien 22., Donaustadt

Lade...
Lukas Schwaiger

Lukas Schwaiger
Immobilienmakler

APS Immobilien GmbH

Lade...

Fotomix

Bild 1 Bild 2 Bild 3 Bild 4 Bild 5 Bild 6 Bild 7