Grund für Mehrfamilienhaus

Grundstück zum Kauf in 1220 Wien - Kaufpreis: 699.000 € / Objektnummer: 46508
Ausstattung: Kabel/Satelliten-TV
Start sonnig
03 Bebaubarkeit
02 Bebauungsplan
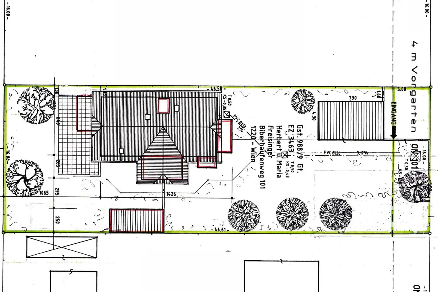
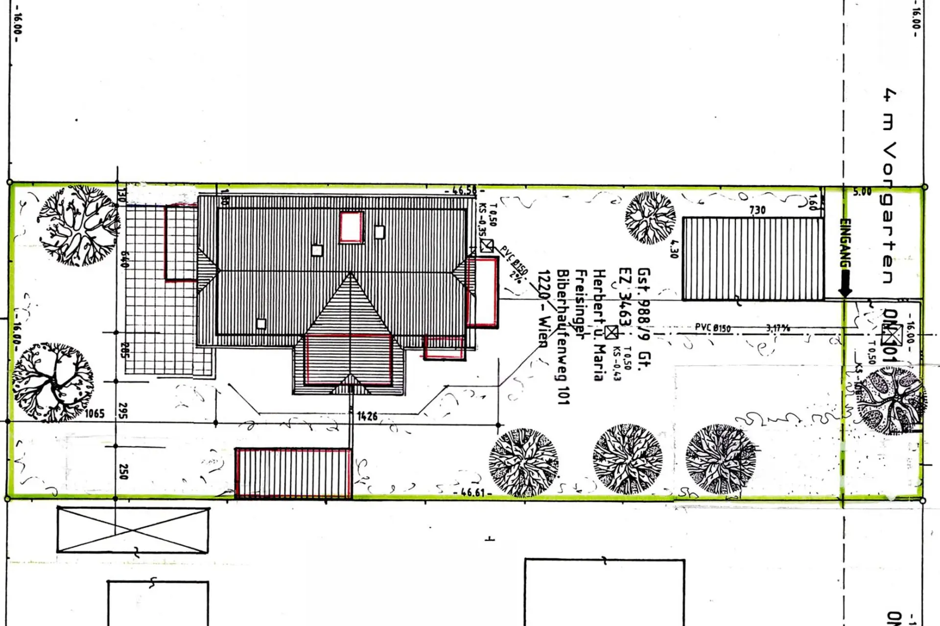
04 Bestand

Preisinformationen

Kaufpreis:
699.000 €
Provision:
3.00 %

Fakten

Objektnummer:
46508
Objekttyp:
Grundstück
Grundstücksfläche:
746 m²
Verfügbarkeit:
Verfügbar

Beschreibung

Grund für Mehrfamilienhaus

Bauträgergrundstück

Das Grundstück befindet sich im Nahbereich des Oberen Mühlwassers und die Gegend ist geprägt von Einfamilienhäusern und den Erholungsflächen in der Lobau. Einkaufsmöglichkeiten und andere Einrichtungen sind im Nahbereich vorhanden. Durch die Busse 93A, 94A und N91 ist das Zentrum von Wien leicht erreichbar. Nach Abbruch des Bestandes könnte ein Mehrfamilienhaus oder attraktive Wohnungen errichtet werden. Das Grundstück ist komplett aufgeschlossen und es fallen keine zusätzlichen Kosten an.


Sind Sie neugierig geworden?
Dann vereinbaren Sie einfach einen Besichtigungstermin unter 0660-2061 480

Eckdaten:

Grundstück: ca.746m2
Widmung: W1, o, gk (Wohnen, offen oder gekoppelt)
Gebäudehöhe: 6,5m + Dachaufbau 4,5m


Maklerhonorar 3% plus 20% Ust
Wir bitten um Verständnis, dass auf Grund der Nachweispflicht gegenüber dem Eigentümer nur Anfragen mit vollständigen Kontaktdaten (Name, Adresse, Tel., Email) beantwortet werden können. Es wird darauf hingewiesen, dass die angeführten Daten auf Informationen des Eigentümers oder Dritter (z.B. Behörden) beruhen, sodass für die Richtigkeit keine Gewähr übernommen werden kann.
_______________________________________________________
Beschreibung weiterlesen
Martin F. Kny

Martin F. Kny

RE/MAX First

Lade...

Fotomix

Start sonnig 03 Bebaubarkeit 02 Bebauungsplan 04 Bestand

Lageplan